CAFE

한옥의 시공과 종류

[스크랩] 17 한옥 설계도 - 전통한옥 표준설계도

작성자무한|작성시간12.09.18|조회수6,947 목록 댓글 8

 

「내 손으로 한옥 짓는 법」 공부하기 메모

 

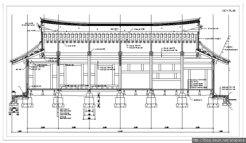
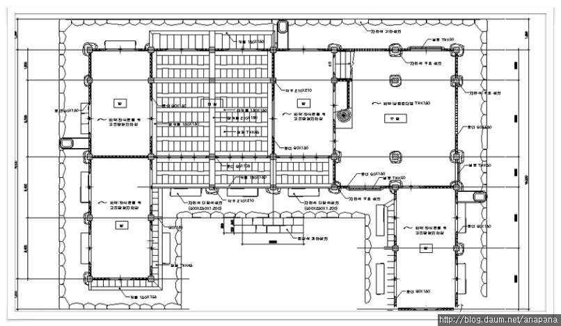
1. 전라남도 무료보급 전통한옥 설계도

ㅇ한옥 고유의 외관과 구조를 유지한 채 현대생활에 맞는 내부구조를 추구한다

ㅇ구조는 팔각집에 민도리 양식이다

ㅇ전통한옥보다 300-600mm 넓은 2,700-3,300mm 로 한다

 -전통한옥은 방(침실) 평면구성에 어려움이 있다

ㅇ본채의 실내공간 확보를 위해 툇마루는 2칸만 설치한다

ㅇ전통한옥에 없는 현관을 설치하여 편리성을 추구한다

ㅇ14개유형의 표준설계도를 제작한다

-투시도, 평면도,앙시도,단면도,입면도,지붕면도,창호도

-전등,전열,통신,위생,가스,난방설비 등

 

2.선택사항(방한)에 대한 배려

1. 방한 완충대 : 북위도 지방에서는 북측에 면한 벽을 2중으로 구성한다

2. 단열벽 : 전통한옥의 시공의 복잡성과 공기 소요, 외풍을 고려하여

   내부에 단열재를 추가하여 이중벽(단일벽)으로 하는 방법을 추장한다

3. 아울러 창호를 모두 2중창으로 하여 방한에 대비한다

4. 시멘트 벽돌에 비해 환경친화적이고 전통흙벽에 대해서도 시공이 간편하고

튼튼한 황토벽돌을 사용한다

5.온수 파이프 온돌을 사용하되 방 1개 정도는 구들을 설치하여 전통의 향취를 유지한다

 

3. 표준설계도면 12종

ㅇ일반형 6개(20평~33평형), 3세대현 4개(42~47평형), 2층형(41~75평형)

 

☞ 내가 소장한 표준설계도면은 위와 같이 12종에 대한 것이나

최근 입수한 웹자료 30평형(전라남도에서 추후 보완한 것인지 미확인)을 우선 올린다

 

 

 

 

 

 

 

 

 

 

 

 

 

 

 

 

 

 

 

다음검색
스크랩 원문 : 마음의 여행
현재 게시글 추가 기능 열기

댓글

댓글 리스트
  • 작성자초온아 | 작성시간 18.05.07 좋은자료 이제야 봅니다
  • 작성자집짓자 | 작성시간 18.08.15 다른 면적의 도면도 볼수 있을까요? 좋은자료 감사합니다.
  • 작성자pilgun | 작성시간 18.12.25 잘 보았습니다.!!!
  • 작성자레오88 | 작성시간 20.10.29 잘 보았습니다
    다른 면적의 설계도면을 봤으면 합니다
    감사합니다
  • 작성자드라고 | 작성시간 22.02.14 정말로 좋은자료입니다
댓글 전체보기
맨위로

카페 검색

카페 검색어 입력폼