자연과 인간의 삶, 용천리주택

▲ 산세와 어우러진 주택의 모습에서 여유로움이 느껴진다.

▲ 작업실 앞 데크에 나와 언제나 아름다운 자연을 감상할 수 있다.

◀ 다양한 외장재의 조화가 멋스러운 오른쪽 입면 ▶ 2층 내부와 연결된, 데크 깔린 지붕층은 이 집의 또 다른 산책로

◀ 주거공간과 별도로 마련된 건축주만의 아늑한 작업실 ▶ 시원하게 펼쳐진 마당은 드라마틱한 풍경을 만들어준다.
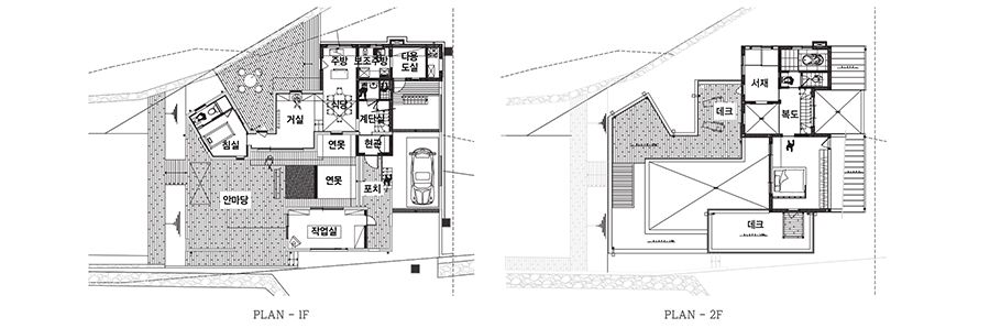
HOUSE PLAN
대지위치 경기도 양평군
지역지구 계획관리지역 / 자연보전권역, 수질보전특별대책지역
용도 단독주택
대지면적 837.00㎡(253.19평)
건축면적 157.60㎡(47.67평)
연면적 151.52㎡(45.74평)
1층 - 103.34㎡(34.26평)
2층 - 48.18㎡(14.57평)
규모 지상 2층
구조 철근콘크리트 + 일반목구조
시공 최형권(HOUSE PLAN)
설계 이윤하(건축사사무소 노둣돌) 02-776-3051, www.ecoarch.org
각 실의 공간의 크기는 축소 지향적으로 최적화하였다. 전체적인 덩어리를 들여놓고 덜어내는 과정 속에서 대지의 생김새와 건축주의 공간소비 취향으로 재구성하여 잉여 공간을 최소화하였다. 이미 절개된 대지라는 몸의 형상 위에 탑재되어 기억하는 내적 이미지와 감각을 건축물에 투영하였다. 평면의 동선은 중정을 에워싼 채 순환적이고, 수직 동선은 좁고 가파르다. 자연요소가 건물과 만나는 추상화된 자연의 동선은 느리고 완만하게 대지를 감싸고 돌아간다. 내재되어 있던 대지의 고유수용감각적(Proprioceptive Sense) 이미지들은 인공건축물과 만나서 추상화되어 나타난다.

◀ 새하얀 외벽이 눈길을 끄는 심플한 주방 ▶ 레트로풍의 소파가 모던한 공간에 경쾌한 포인트가 된다. PLAN – 1F

◀ 2층에 마련된 건축주를 위한 공간 ▶ 침실 맞은편에는 욕실과 게스트룸이 위치한다.

지금까지 생태적이고 친환경적인 집짓기 작업에 전념하여 왔다. 건축에 있어서 친환경적 요소인 에너지, 재료, 물, 녹지, 토양, 대기 및 실내 공기질 등을 정량화하고 물리적으로 구축하는데 많은 노력을 했다. 그러나 이번 작업은 건축주의 철학과 작품의 영향을 크게 받았다. 단순함과 간결함 속에서 자연적이거나 친환경적인 것이 인간의 삶과 결합하여 군더더기를 덜어내고, 공간이나 가벽 프레임 속에 추상화된 자연이 머물게 하는 것이다. 자연이 지니고 있는 본질적 속성과 인간의 주거생활이 무심하게 만나는 방식을 채택하였다. 물론 건축 주재료를 목구조와 노출콘크리트로 택한 것은 그 두 재료의 물성이 자연적 요소와 잘 결합될 수 있을 것 같아서였지만, 집주인의 캐릭터를 잘 표현할 수 있는 재료이기에 선택하기도 했다.
분명 추상적 개념을 건축 작업을 통해 형상화하고 건축주의 삶을 공간으로 구축하는 것이 쉬운 일은 아니다. 그러나 설계과정 속 명쾌한 동의와 시공과정 속에서 미술적 감각을 보탠 건축주가 이 집의 최종 설계자라고 해도 과하지 않을 만큼 많은 도움으로 완성한 이 집 한 채를 이제 세상에 내보낸다. <글 _ 이윤하>
건축가 이윤하
시인이며 건축가. 현재 건축사사무소 노둣돌의 대표이다. 생태주의와 친환경을 주제로 설계와 연구를 하고 있으며, 홍익대학교에서 건축설계를 가르치고 있다. 저서로는 <아홉건축가 아홉무늬>, <친환경건축설계가이드북(공)> 등이 있고, ‘한국생태건축상’, ‘2012년 교보생명 문화대상’을 포함한 여러 수상이력이 있다.
주요작품 : 조태일시문학관, 세진당, 물아당, 어깨동무어린이집, 하늘뜨락, 남한산초 리모델링 외 다수
농가주택 .시골집 수리하기.전원주택,통나무 주택,목조주택,주말주택,컨테이너 하우스, 아동식주택.세컨드 하우스.황토주택,
귀농,귀촌, 강원도 부동산, 횡성 부동산의 모든것이 사람 흙과 나무에 다 있습니다


