숨 가쁜 일상에서 벗어나 현재의 삶을 즐기고, 가족과 다 함께 캠핑을 하고…, 그곳이 집이었으면 좋겠다. 세종시에 연구원 부부 4인 가족이 낙락당을 지은 이유다. 대지의 경사도 활용, 실개천을 품은 보행자 도로와 연결, 아이들의 쾌적한 학습 환경, 기능에 충실한 공간…, 그리고 아지트와 같은 공간을 둔 낙락당으로 지상 집들이를 떠나자.
글 윤홍로 기자 | 사진 백홍기 기자
취재협조 브랜드하우징
DATA
위치 세종시 고운동
지역/지구 제1종 전용주거지역, 지구단위계획구역
건축구조 지하 - 철근콘크리트, 지상 - 경량 목구조
대지면적 402.10㎡(121.63평)
건축면적 111.41㎡(33.70평)
건폐율 27.70%(법정 40%)
연면적 256.05㎡(77.45평)
지하 65.52㎡(19.81평)
1층 111.15㎡(33.62평)
2층 79.38㎡(24.01평)
용적률 47.38%(법정 80%)
최고높이 9.14m
공사기간 2018년 3월~8월
설계 카이 건축사사무소 031-712-2207
시공 ㈜브랜드하우징 031-714-2426
https://cafe.naver.com/metalwood
MATERIAL
외부마감
지붕 - 리얼징크
벽 - 백고파벽돌
데크 - 석재(고흥석 30T)
내부마감
천장 - 실크벽지
벽 - 실크벽지
바닥 - 강마루(동화자연마루 나투스진)
계단실
디딤판 - 멀바우
난간 - 철제
단열재
지붕 - 수성 연질폼(캐나다 아이씬)
외단열 - 비드법 보온판 T50 2종(에어폴)
내단열 - 수성 연질폼(캐나다 아이씬)
창호 미국식 시스템창호(대건아키텍 프라임)
현관문 베나토(YKK)
중문 이건라움 S-LITE
주요 조명 LED
주방가구(싱크대) 제작
위생기구 아메리칸 스탠다드
난방기구 가스보일러(경동나비엔)
신재생에너지 태양광 패널(3.5㎾)
연구원 부부와 두 자녀, 4인 가족이 사는 세종시 고운동의 ‘낙락당樂樂堂’. 넓은 마당과 데크, 그리고 집 안 곳곳에 재밌는 숨을 곳을 둔 모던한 주택과 택호宅號가 너무 잘 어울린다. 부부가 단독주택을 지은 이유가 여기에 함축돼 있다.
“저희 부부는 둘 다 연구원인데 일에 매여 지내는 데다 늘 하던 대로만 하는 사람들이라 일탈 같은 것은 잘하지 못하거든요. 이제는 좀 놓고 즐기는 삶을 살고 싶은데, 이왕이면 그 공간이 집이었으면 좋겠다고 생각했어요. 그리고 가족이 캠핑을 너무 좋아해서 아이들이 어렸을 때는 한 달에 두세 번 캠핑하러 다녔어요. 하지만 큰애가 중학교에 입학하면서 캠핑을 못 떠나는 거예요. 그러면 집을 짓고 집에서 캠핑을 하자, 그래서 마당이 있는 단독주택을 지은 거예요. 낙락당은 신랑의 조상 중 상당히 존경받는 분(박택: 1521∼1566, 조선 명종 때 학자)의 호에서 따온 것으로 ‘집에서 즐겁게 지내자’, 또 ‘웃어른을 공경하고 따르자’는 두 가지 의미가 있어요.”
현관과 복도 사이에 이건라움 S-LTE 중문으로 개방감을 주고, 천장에 T5 LED 간접조명으로 라인조명 효과를 냈다. 마이너스 몰딩 안쪽에 설치한 픽쳐 레일을 잘라 그 위에다 아크릴을 올려놓은 것으로 브랜드하우징 대표의 아이디어다.
현관에서 마당과 대문뿐만 아니라 실내 계단을 통해 지하 주차장으로 이어지는 동선이 만난다.
택지개발지구 내 단독주택지는 대개 바둑판처럼 필지를 작게 쪼개 전망과 프라이버시 확보는 접어두고 뒷집이 앞집의 뒤통수를 바라보곤 한다. 하지만 낙락당이 앉혀진 고운동의 단독주택지는 세종시에서도 필지당 면적이 넓고 녹지 비율도 높으며 중심 상가로의 접근성도 편리하다. 부부는 입지를 선정할 때, 여기에 더해 경사지도 염두에 뒀다.
“이곳은 필지당 면적이 100평 이상이 기본인데, 저희는 121평으로 조금 더 넓은 편이에요. 경사지를 택한 이유는 지구단위계획상 담장을 80㎝ 이상 쌓을 수 없어요. 그것도 울타리 등 자연물로만 쌓아야 해요. 그래서 평지에 집을 지으면 외부 시선에 그대로 노출되기에 마당에서 캠핑을 즐길 수 없다고 생각했어요. 경사지를 선택해 도로보다 집터를 2m 높여 집을 앉히고 넓은 지하 주차장과 마당, 데크를 만들었는데, 외부의 시선에서 자유로운 거 같아요. 우리 가족만의 라이프스타일도 즐기고…, 좋은 점이 많아요.”
전망이 좋은 식당 부분에 천장고를 높여 공기 순환력이 좋은 실링팬을 달았다.
화이트 톤으로 꾸민 식당은 가구를 11자형으로 배치했다. 가구는 라돈 방출로 문제가 된 대리석 대신 원목 상판을 사용했다.
가전제품 배치 공간과 다용도실이 드러나지 않도록 복도의 비내력벽 상단을 활용해 스크린 월로 처리했다.
낙락당의 대지는 단지의 주도로에서 후프Hoop 형태로 후퇴한 6m 진입도로 안쪽 맞은편에 위치해 진입 거리가 짧고 차량의 소음도 덜하다. 좌향은 남동향이며, 지형·지세는 정방형에 가깝고 실개천과 보행자 도로가 있는 남서쪽이 진입도로가 있는 북동쪽보다 3m 정도 높은 편이다.
부부는 인터넷 서핑 중 알게 된 카페를 통해 설계는 카이건축사사무소에, 시공은 브랜드하우징에 의뢰했다. 설계 시 대지의 경사도 활용, 실개천을 품은 보행자 도로와 연결, 아이들의 쾌적한 학습 환경, 기능에 충실한 공간…, 그리고 무엇보다 아지트와 같은 공간을 요구했다.
주방과 분리해 남동향으로 배치한 거실. 몰딩 대신 전체를 픽쳐 레일로 처리해 액자를 걸고 떼기에 좋다. 안쪽으로 복도와 중정을 사이에 두고 안방과 서재를 계획했다.
카이건축사사무소에서는 “북동쪽 진입 도로와 남서쪽 보행자 도로에서의 차량과 사람의 편리한 출입, 외부의 시선에서 최대한 벗어난 프라이빗한 마당, 풍부한 채광과 녹지대(고운뜰공원) 조망권 확보 등을 염두에 두고 낙락당의 매스를 ‘역기역’자로 계획해 남동향으로 배치했다”고 한다. 진입 도로에 들어서면서 낙락당을 바라보면 해맑고 포근하게 두 팔을 벌려 반기는 듯한 느낌이다. 외부 동선은 지하 주차장에서 실내 계단을 통해 곧장 현관으로, 또 도로에서 경사가 완만한 외부 계단과 마당을 거쳐 현관으로 이어진다. 평면은 ‘一’자형 복층 주거 공간인 본채의 좌측에 단층 연구(서재) 공간을 별채 형태로 분리해 독립시킨 구조다.
건축주는 “안방은 아무런 방해를 받지 않고 오로지 잠만 자는 공간으로 작게 뺐다”고 한다.
1층은 부부의 영역과 공용 공간으로, 사용이 많은 주방/식당과 거실, 서재가 남동쪽을 향하고 있다. 우측 끝에 배치한 침실과 복도로 연결되는 별채 사이에 실개천과 보행자 도로 쪽으로 중정을 둠으로써 침실에 프라이버시뿐만 아니라 채광과 개방감을 동시에 확보한 구조다. 고운뜰공원이 바라보이는 전망이 좋은 곳에 배치한 주방/식당은 지하주차장 상부를 이용해 만든 넓은 데크와 연계해 공간이 효율적이고 개방감이 든다.
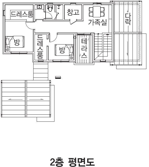
지하 주차장에서 2층까지 수직 연장선으로 구성한 실내 계단실은 햇살이 잘 드는 전면에 배치한 데다 긴 수직 창을 내고 핸드레일에 T5 LED 간접 조명을 설치해 분위기가 밝고 환하다. 2층에 오르면 가족실이 보이고, 복도 좌측 전면으로 베란다와 두 개의 자녀 방이 나온다. 계단실 우측에 주방 상부 공간을 활용해 만든 다락이 있는데, 개구부를 통해 식당과 소통하는 구조다. 복도 안쪽의 위생 공간은 1층의 위생 공간과 위치를 같이하고 각종 관을 수직으로 배치해 시공과 관리 면에서 효율적이다.
카이건축사사무소는 “외관을 단순하게 처리하기 위해 기능과 크기가 다른 두 개의 매스를 평면으로 연결하고, 상·하의 매스가 중첩되게 입면을 구성했다”면서, “외장재는 단일한 형태와 색상의 벽돌 타일로 통일감이 들게 하고, 지붕재는 목구조 특성상 중량 마감재를 피하기 위해 금속 판재를 적용해 박공 형태로 단순미를 갖도록 했다”고 한다.
‘一’자형 복층 주거 공간인 본채 좌측에 단층 연구(서재) 공간을 별채 형태로 분리해 독립시킨 구조다. 천장고가 높은 대신 중간중간에 공학목재인 패럴램(PSL)으로 보강했다.
보통 거실과 주방/식당을 공간이 넓어 보이도록 통합하는데, 낙락당은 주요 실을 명료하게 분리 배치했음에도 공간이 여유롭다. 또한 집 안 곳곳에 숨을 만한 공간 많다.
“‘따로 또 같이’가 우리 집의 콘셉트예요. 식사할 때, 또 거실에서 TV를 볼 때 저는 가족이 거기에만 집중하기를 바라니까요. 중학생인 아이들에게도 각자의 공간이 필요했고요. (간이 농구대가 있는)지하, 신랑의 서재, 아들의 다락…, 아지트 같은 공간들은 심리학 서적을 보니까, 남자들에게 자신만의 공간이 필요하다고 해서 만들어 준 거예요. 다락은 아들이 책을 읽고 잠도 자는 공간이고, 서재는 신랑하고 술 한잔하거나 혼자 있고 싶을 때 다른 공간에서 거리감이 있기에 문만 닫으면 별채나 다름없어요. 저희는 맞벌이 부부라 처음 세팅해 놓은 그대로 오래갈 수 있는 집을 원했는데, 살아 보니 공간이 딱딱 떨어지고 관리하기 편한 것이 설계와 시공이 잘 됐어요.”
현관과 복도 사이에 이건라움 S-LTE 중문으로 개방감을 주고, 천장에 T5 LED 간접조명으로 라인조명 효과를 냈다. 마이너스 몰딩 안쪽에 설치한 픽쳐 레일을 잘라 그 위에다 아크릴을 올려놓은 것으로 브랜드하우징 대표의 아이디어다.
간편한 공간분할과 모던한 디자인 도어, 이건라움 S-LITE
이건라움은 독일에서 30년 이상 노하우를 축적한 인테리어 시스템 전문 기업 라움플러스와 이건창호가 독점 제휴해 출시한 공간분할 인테리어 솔루션이다.
이건라움의‘S-LITE’는 슬림하면서 견고한 알루미늄 프레임에 디자인 패턴 유리를 접목해 모던하고 고급스러운 분위기를 연출할 수 있는 슬라이딩 도어다. 작은 힘으로도 쉽게 열고 닫히는 구동감과 여러 번 열고 닫아도 고장이 없는 내구성이 특징이다. 특히 독일산 오리지널 특수 댐퍼(damper)가 문을 여닫을 때 자체적으로 충격을 완화해주는 기능을 갖춰 손끼임 등의 안전사고 위험도 줄였다.
현관 중문, 거실과 주방 분리, 욕실, 드레스룸 등 다양한 위치에 시공할 수 있고, 적용 장소의 디자인 컨셉에 맞게 레일을 매립하여 시공할 수 있다. 프레임 색상, 두께, 유리 종류를 자유롭게 선택할 수 있어 차별화된 공간을 만들기에 적합하다.
계단실은 햇살이 잘 드는 전면에 배치한 데다 긴 수직 창을 내고, 핸드레일에 T5 LED 간접 조명을 설치해 분위기가 밝고 환하다.
2층 계단실 전면에 계획한 가족실
2층 가족실과 복도
주방 상부 공간을 활용해 만든 막내아들의 아지트인 다락, 개구부를 통해 1층 식당과 소통하는 구조다.
인테리어는 주택 구성 자체가 짜임새가 있어서 그런지 단순한데도 그 자체만으로 멋스럽다. 담백하고 산뜻한 가운데 안정감과 개방감이 동시에 느껴진다.
“브랜드하우징 소장님하고 제가 자주 한 얘기가 ‘집은 그냥 도화지’여야 한다는 거였어요. 그래야 뭘 갖다 놓아도 이질감이 없거든요. 하지만 뭘 꾸며 놓으면, 그 공간은 딱 그렇게밖에 못 쓰잖아요. 가구 하나도 바꿀 수 없고…, 그래서 바닥은 어둡게 벽과 천장은 밝고 심플하게 꾸몄어요. 쓰던 가구들을 다 갖고 왔는데, 예전 집에서 잘 어울렸던 것들이 여기에 와서도 잘 어울리는 것 같아요.”
아들의 방. 드레스룸으로 계획한 공간을 현재 독서실 분위기로 꾸며 공부방으로 사용하고 있다.
주택 좌측에 배치한 딸의 방
두 명이 사용하기 편리하도록 세면기와 화장실, 샤워부스로 위생공간을 분리했다.
2층 베란다
낙락당은 기초 철근부터 구조재, 단열재 등 엄선한 자재를 사용했다.
“벽지와 마루는 제가 선택한 걸 시공해준 거잖아요. 그걸 걷어 내고 꽉 찬 속을 더 보여주고 싶은데…, 기초할 때 철근 들어가는 것을 카페 회원들이 보고 ‘빌딩을 짓느냐’고 할 정도로 튼튼하게 지었어요. 구조재는 1등급을 사용하고, 단열재는 수성 연질폼(내단열)과 에어폴(외단열)을 사용했고요.”
브랜드하우징 현장소장은 “바닥 기초에 16㎜ 철근이 200㎜ 간격으로 5t 정도 들어갔고, 구조재의 경우 벽체는 전량 캐나다산 JAS 등급(J-Grade) 2″×6″를 사용하고 장선(2″×12″) 중간중간에 공학목재인 패럴램(PSL)으로 보강했으며, 샛기둥과 장선, 서까래(2″×10″) 사이에 단열과 기밀, 차음 등 성능이 우수한 아이씬 수성 연질폼을 130∼140㎜ 두께로 발포하고 외벽을 사면 끼움형 고기밀 단열재인 에어폴로 감쌌다”고 한다.
주차장 입구과 수납공간
가로로 긴 경사형 부지이다 보니 현관으로 이어지는 지하 주차장이 안쪽으로 깊게 들어왔다. 그 공간을 활용해 취미실과 창고(팬트리) 등 기능적인 공간을 배치했다.
낙락당의 지붕에는 자세히 보지 않으면 있는지 없는지 모를 3.5㎾ 태양광 패널이 있는데, 미관을 저해하지 않고 방수층도 훼손하지 않는 신형 모델이다.
“저희가 아는 건축주 중에 태양광을 전문으로 연구하는 교수분이 추천해준 거예요. TV 수신료 빼고 한 달 전기요금이 4, 5만 원 나오다가 저걸 달고부터 1만 2천 원 정도 나와요. 한 달에 3만 원씩 세이브해서 10여 년은 써야 초기 투자비를 뽑는데, 꼭 돈이 문제가 아니라 일단 화석연료 안 쓰고 친환경 에너지를 쓴다는 것 자체만으로 의미가 있잖아요.”
침실과 복도로 연결되는 별채 사이에 실개천과 보행자 도로 쪽으로 중정을 둠으로써 침실에 프라이버시뿐만 아니라 채광과 개방감을 동시에 확보한 구조다.
*
아파트가 아닌 마당이 딸린 단독주택에서 살면서 무엇이 달라졌을까.
“층간 소음에서 자유롭고, 무엇보다 현관문을 나서자마자 땅을 밟는 게 좋아요. 아파트는 밥 먹고 잠자는 곳, 내 집인데도 내 집이 아니란 느낌…, 하지만 이곳은 사람 사는 곳이란 느낌이 들어요. 요즘 젊은 사람들도 단독주택을 많이 짓는데, 아이들이 눈치 보지 않고 뛰어놀고 데크에 그림도 그리고 하는 게 너무 부러웠어요. 저희는 맞벌이하다 보니 아이들이 어릴 땐 부모님 집 가까이 살면서 도움도 받아야 하고, 직장생활을 하면서 집을 관리하는 것이 엄두도 안 나고…, 그래서 늦은 편인데 아이들이 좋아하는 모습을 보니 조금 더 어릴 때 왔을 걸 하는 생각이 들어요.”
외부의 시선에서 최대한 벗어난 프라이빗한 마당, 풍부한 채광과 녹지대(고운뜰공원) 조망권 확보 등을 고려해 낙락당의 매스를 ‘역기역’자로 계획해 남동향으로 배치했다.
아파트는 내 집임에도 내 집 같지 않다는 말이 돌아오는 길 내내 뇌리에 맴돌았다. 마치 지나쳐야 할 간이역처럼……. 마당이 딸린 단독주택은 그런 의미에서 부모 세대에게 종착역이고, 또 그곳에서 아름다운 추억을 차곡차곡 쌓아가는 아이들에게 일종의 고향역일 것이다. 낙락당이란 택호처럼 가족의 즐겁고 행복한 일탈을 기대해 본다.
농가주택 .시골집 수리하기.전원주택,통나무 주택,목조주택,주말주택,컨테이너 하우스, 아동식주택.세컨드 하우스.황토주택,
귀농,귀촌, 강원도 부동산, 횡성 부동산의 모든것이 사람 흙과 나무에 다 있습니다
