CAFE

보일러

보일러 알아 보기.

작성자장 영실|작성시간13.10.11|조회수552 목록 댓글 0

미 전역에서 사용하고 있는 보이러는 여러 가지가 있으나 동부 지역에 가장 많이 사용하고 있는

보일러는 두 가지로 Fulton과 Columbia에 관하여 알아 봅니다.

 

먼저 Fulton 보이러에 대하여 알아 봅니다.

 

 

 

 

 

 보일러의 작동 순서와 원리.

1. Power 공급.

power가 공급되면 첫 번째로 수위 감시가 이루어 지면서 펌프 가동 여부가 결정되어 작동하게 됩니다.

본 감시는 보일러 전원 스위치가 꺼질 때 까지 이루어 짐니다.

 

2. 콘트롤 박스 외부에 있는 리셌 버튼을 누른다.

본 리셌 버튼을 버튼을 누르지 않으면,보일러는 가동 하지 않습니다.(반드시 눌러야 합니다.)

만약 보일러 가동 중 수위가 일정 레벨 이하로 내려 갈 경우 보일러 가동은 중지 되어 본 리셌 버튼을 반드시 눌러야만

보일러가 다시 가동 됩니다.

만약 리셌 버튼을 계속 눌러야 한다면,

리턴 탱크와 보일러 물 주입 사이간에 문제가 있을 수 있습니다.

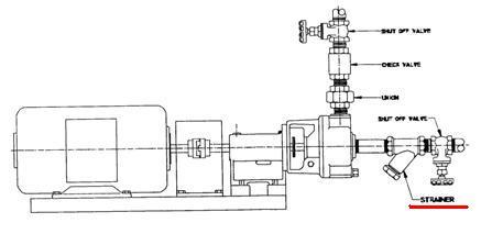
문제 발생 경우수:

1.리턴 탱크와 펌프 사이가 막힘

탱크와 펌프 간에 있는 스트레이너(Strainer)가 막힐 수 있습니다.

 

 

그리고 오래된 파이프도 막힐 수 있습니다.

 

2.체크 밸브(Check Valve) 문제.

체크 밸브에는 두가지가 있습니다. 스프링(Spring)체크 밸브와 스윙(Swing)체크 밸브가 있습니다.

 

상위 두 체크 밸브 중 상위에 있는 것이 스프링 체크 밸브이고, 하단에 있는 것이 스윙 체크 밸브 입니다.

 

본 밸브의 역활:

     본 밸브의 역활은 보일러의 압력이 리턴 탱크로 압력이 전달되지 않토록 하기 위한 부품 입니다.

 

본 밸브가 문제를 발생 하면?

     보일러의 스팀 압력이 리턴 펌프를 통하여 리턴 탱크까지 영향을 미치게 됩니다.

     따라서 탱크에서는 보일러의 스팀 영향이 있습니다.

     즉 탱크 속에서는 물과 스팀이 맞나니 뽈그랏 소리를 내며,펌프는 본연의 작동인 보일러에

     물을 공급 할 수 없습니다.

     그러면서 펌프가 제 역활을 하지 못하여 수위는 내려가고,보일러의 작동은 멈추게 되고 맙니다.

     그 이유로 우리가 사용하고 있는 펌프는 액체 펌프이지 기체 펌프가 아님니다.

 

증세 확인:

     보일러 가동 중 리턴 펌프가 가동 되면 보일러 수위를 알 수있는 수면계 위치가 상승하여야 하는데

     오히려 하강하기 시작 합니다. 그리고 수위는 수면계 밑으로 내려가면서 보일러의 작동은 멈추고

     그러나 펌프는 계속 돌아 갑니다. 보일러의 압력이 40Psi 이하로 내려가야,펌프 소리가 변화 하면서

     조금 후 수면계에 수위가 보이기 시작하고 수면계의 절반 이상으로 수위가 되였을 때에야

     펌프가 작동을 멈추게 됩니다.

     만약 상위 증세가 같으면, 진짜 체크 밸브 문제 인가을 확인하기 위하여,

     펌프에 찬 물을 한 컵 정도 부으면,본 찬 물이 펌프에 있는 스팀을 액화

    시키므로 펌프는 본연의 임무 즉 액체 펌프 역활을 하면서 먼저 소리가 변함니다.

    펌프 소리가 날카롭게 변화 하면서 조금 후 보일러 수면계에 수위가 보이기 시작하게 됩니다.

    펌프에 찬 물을 공급하는 시기는 수면계의 수위가 내려 가는 시점에 하셔도 무방 함니다.

 

3.버너가 작동을 시작하게 됩니다.

   우리가 사용하는 버너의 종류.

     1. Gas

     2. Oil 이있습니다.

        먼저 Gas 버너의 구조,콘트롤러,작동 순서에 알아 봅니다.

   a) Gas 버너 구조.

 

 

 

 

 

b)콘트롤러 RM7895A 작동 원리.

   본 콘트롤러에는 두가지의 전원이 공급되여 있는데 하나의 전원은 본 콘트롤러의 Power에

   항상 들어와 있습니다.

   또 하나의 전원은 아래의 Pressure Switch를 통하여 공급되면서 압력을 만들어 냅니다.

 

상위의 Pressure Switch에는 두 가지가 있는데,하나는 High Limit Pressure Switch( 상위 사진 중 하단부)와

Operting Pressure Switch(상위 사진의 상단부)가 있습니다.

High Limit Pressure Switch는 보일러의 Operting Pressure Switch가 고장이 났을 때 보일러를 보호하기

위하여 이 단계 압력 보호 스위치 입니다.

 

상위 콘트롤 박스 내에 맨 아래에 있는 Presure Switch가 세 개가 있습니다.

왼 쪽으로 부터 Low Presure Operting Switch,Operting Presure Switch,High Limit Presure Switch가

있습니다.

High Limit Presure Switch 박스위에는 메뉴얼 리셌 스위치가 있습니다(적색 원)

Operting Presure Switch의 셋팅 압력 이하일 경우 콘트롤러는

제일 먼저 휀을 돌려 혹시 개스 밸브 누출로 있을 수 있는 보일러 내부에 있는 누출 개스를

외부로 내 보내여 폭발 사고를 방지 합니다.

그런데 이전에 휀이 정상 작동하는지를 감시 합니다.

이 것이

 

 

휀를 감시 하는 에어 스위치 입니다.

휀이 돌아 가고 있다고 콘트롤 박스가 알고 나면

휀이 얼마나 돌아 갈 것인가를 결정하는 Purge Timer가 작동을 하게 됩니다.

 

 

Purge Timer는 두 가지가 있습니다.

7초와 30초입니다.

본 Purge Timer가 작동 후

Pilot 개스 밸브와 Trans가 작동 하여 불 씨가 생성이 됩니다.

이를 Frame Rod나 Ultraviolet Flame 센서가 감시 후 일정 레벨이 되면 본격적인

메인 개스 밸브를 열려 작동을 하면서

이들 Frame Rod와 Ultraviolet Flame 센서는 버너의 불을 계속 감시 하여 상태가 좋으면

지금의 상황을 유지 하지만,만약 Frame 상황이 저조하면, 언제라도 메인 개스 밸브를

닫고 경고 싸인을 보내면서 보일러 작동은 멈추고 맙니다.

 

 

상위 사진은 Frame Rod 입니다. 그리고 Ultraviolet Flame 센서에 대하여 알아 봅니다.

 

 

 

상위 사진과 갖은 Frame 센서 중 하나가 작동하면서 보일러 작동을 감시 합니다.

그러면서 보일러 압력이 설정 압력으로 되면 작동이 정지 되고,

스팀 압력이 내려가면 다시 Operting Pressure Switch가 작동을 하면 작동을 반복하게 됩니다

다음검색
현재 게시글 추가 기능 열기

댓글

댓글 리스트
맨위로

카페 검색

카페 검색어 입력폼