CAFE

보도블럭 이끼발생 개선책 검토 부탁드립니다.

작성자똘똘이|작성시간17.03.15|조회수1,369 목록 댓글 4

안녕하세요, 저는 아파트 관리자입니다.

지난 번 보도블럭 이끼 발생건으로 이 곳 전문가님들의 의견을 구한적이 있는데요..

아래와 같은 의견 외 해결 사례 등 정보를 얻은 바가 있습니다.

그런데, 당최 어디서부터 어떻게 해결점을 찾아야 할지 감이 잡히지 않아서 다시 한 번 고수님들의

조언을 구하고자 글을 올려 봅니다. 


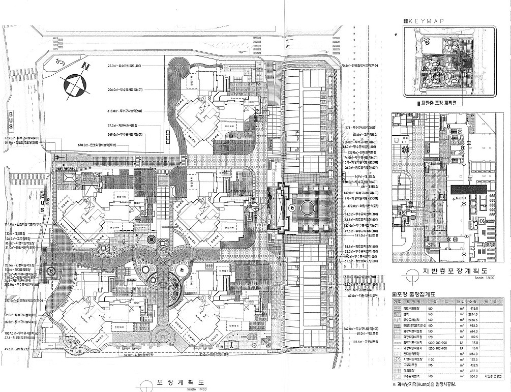
실제 시공상태는 아래 포장 상세와 다르지 않은 것으로 보여지는데요..

지난 번 주셨던 개선책인 다발관 시공  또는 코아-부직포시공 등 공사 시

공사 비용이 어느 정도나 들지...확실한 효과를 기대해도 좋을지....

전문가님들의 의견을 다시 한 번 부탁드리오니, 많이 바쁘시더라도 여러 의견 부탁드립니다.


**이끼발생으로 안전상 위험이 있는 부분은 투수규사블럭 시공부위입니다.**



[회원님중 한분이 고민이 하나 있다 합니다

우리가 흔이 철거현장에서 보는 보도블럭에 이끼가 여기저기 자라고 있는것을 볼겁니다

메지 사이에 자라는것은 그래도 좋은데

블럭전면에 이끼가 있다면 문제입니다

미끄러워저 위험합니다 안전 사고가 수시로 발생 합니다

 

이런상담을 여러번 받았습니다

첫번째는 응달에서 발생합니다

두번째는  담벽,화단옆 물줄기가 있는곳에 발생합니다

세번째는 물이 모이는곳에 이끼가 자라고 있습니다

 

고압세척기로 (청소용 분무기) 청소하면 아주 쉽게 제거 합니다

 소금을 듬뿍 뿌리면 임시 이끼제거가 됩니다 (백화현상 발생)

 우래탄 페이트을 칠하면 이끼가 자라지 않습니다 (소량일경우)

 

보도블럭 모래층에 물이(습기) 항시 있기때문에 이끼가 이쁘게 자라고 있는겁니다

 

보도블럭 색상에 따라 이끼가 잘자라는 것을 볼수 있을 겁니다

햇빛 반사 흡수에 따라 다르지요

 

 배수가 문제입니다

광장일 경우에는 .. 조경에서 사용하는 다발관을 사용

   .. 보도블럭 4~5장 한줄로 쭈욱 빗물받이 있는곳까지 걷고

......모래층까지 파올려 다발관 매설 모래포설 블럭 포장 이렇게함면 이끼 제거가 됩니다

 

골재층 모래층에 물이 빠저 나갈곳을 만들어 주어야 합니다

나무 가지치기도 아주 중요 합니다

이끼는 응달 습기가 있는곳에 자라는 식물입니다 (습기 제거)

광장 웅벽 주변에는 유공관을 매설합니다

 

보행자 도로에도 이런 경우가 있습니다

보차도 경계석 줄눈메지을 절단하고

부직포을 돌돌 마라 경계석까지 매설 모래포설 블럭포장 이끼가 없더군요

 

물이 갈수 있는 통로을 만들어 주는것이 우선 되어야 한다고 생각합니다

 

회원님들 좋은 경험 있으면 이야기 해주세요]








다음검색
현재 게시글 추가 기능 열기

댓글

댓글 리스트
  • 작성자세종 연구소 최팀장 | 작성시간 17.03.16 이끼발생을 예방 제시공할경우 골재층을 쇄석을 사용하고
    쇄석위에 부직포 .부직포위면에 모래.모래위에 블럭시공하면 이끼가 발생하지 않습니다
  • 답댓글 작성자똘똘이 작성자 본인 여부 작성자 | 작성시간 17.03.16 답변 감사드립니다.

    이것 저것 자료 찾다가 옳다쿠나 봤더니 역시나 이곳이었네요...블럭 시공관련 정답은 이곳으로 통하나 봅니다.

    자료와 답변을 정리하니....우리 단지는 포장계획도에는 투수규사블럭 시공으로 되어 있는데...포장 상세도에 보면 불투수블록 시공방법을 적용한 것 같습니다. 그래서 이 곳 자료에 혼합골재 사용은 절대 안된다고 했는데..혼합골재가 들어가 있고, 부직포 시공도 생략되어 있고...

  • 작성자보도 | 작성시간 17.03.17 투수.불투수 구분을 못하는 경우가 많이 있습니다
    투수블럭시공하기가 힘들거든요
    시공비도 더 들어갑니다
    쇄석층 골재 다짐비/ 부직포 포설비/ 모래 중사. 왕사 사용/ 투수블럭
  • 답댓글 작성자똘똘이 작성자 본인 여부 작성자 | 작성시간 17.03.17 감사합니다~ 숙원사업 해결입니다~~
댓글 전체보기
맨위로

카페 검색

카페 검색어 입력폼