CAFE

건축전 사례조사

리차드 마이어 - 스미스 하우스

작성자24기 강소연|작성시간12.08.26|조회수5,272 목록 댓글 4

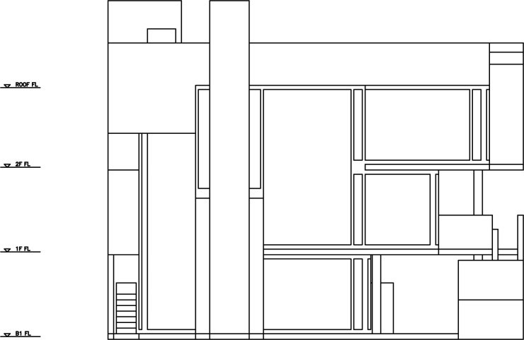
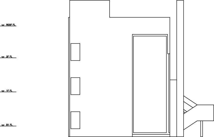
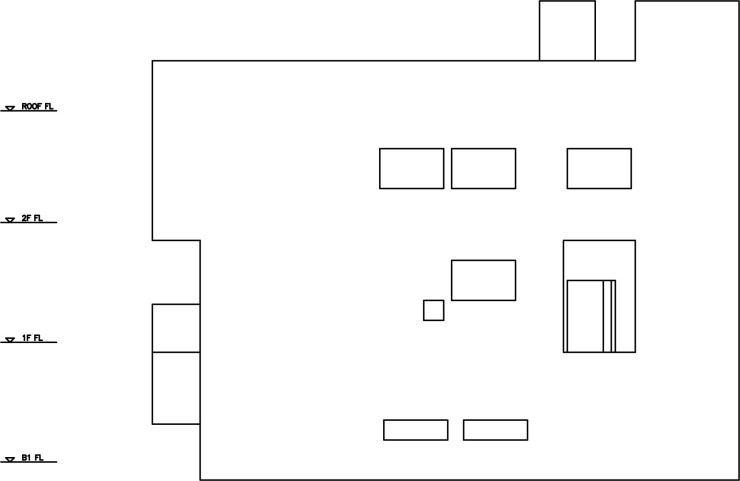
건축가: 리차드마이어

건축물: 스미스 하우스

 

 

 

 

 

 

 

 

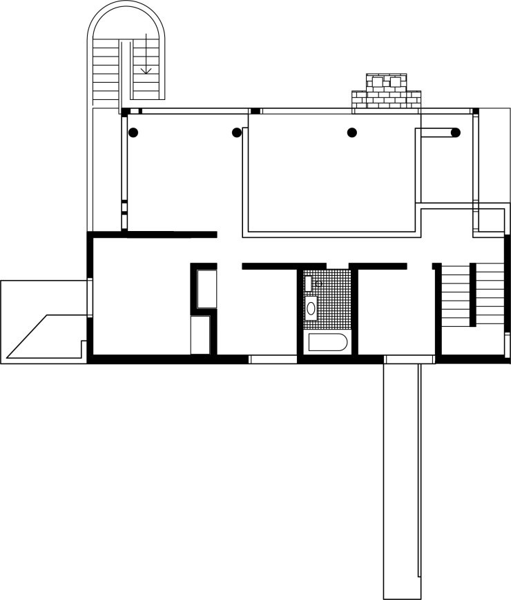
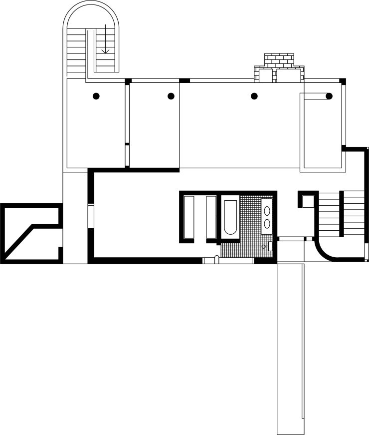
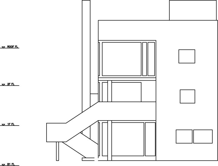
지하1층

 

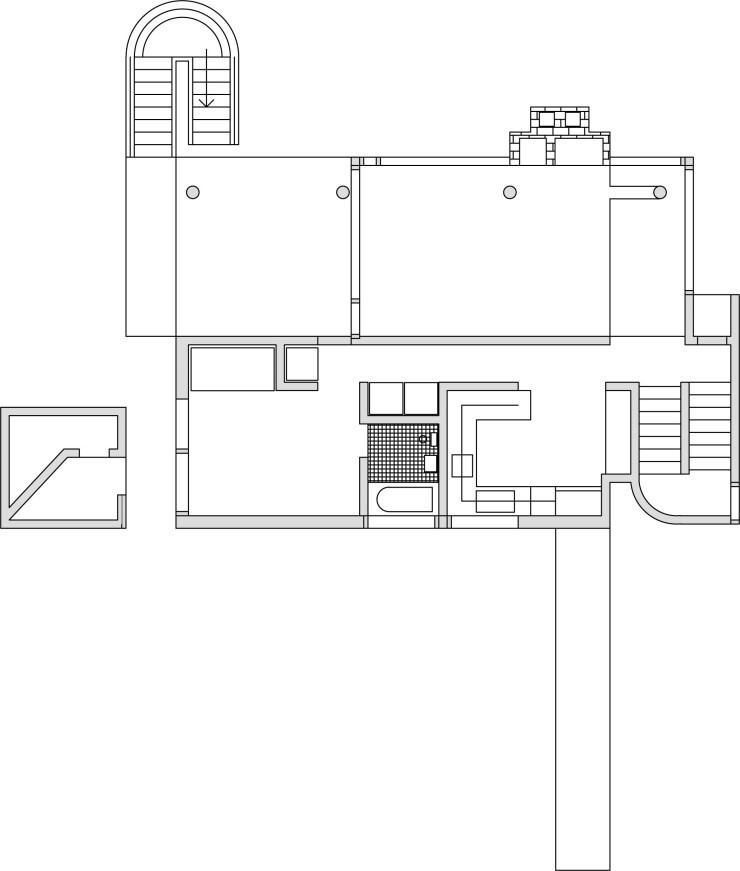
지상1층

 

지상2층

 

옥상

 

 

 

 

 

 

 

 

 

 

 

 

 

 

 

 

다음검색
현재 게시글 추가 기능 열기

댓글

댓글 리스트
  • 작성자22기 이원선 | 작성시간 12.09.03 동방에 모형있음 ㅋㅋ
  • 답댓글 작성자24기 강소연 작성자 본인 여부 작성자 | 작성시간 12.09.08 있구나ㅠㅠ 찾아봐야겠내요ㅋㅋ
  • 작성자22기 이원선 | 작성시간 12.09.11 옷장 위에 있음 ㅋ
  • 답댓글 작성자24기 강소연 작성자 본인 여부 작성자 | 작성시간 12.09.12 넹 알겠습니다ㅋㅋㅋ
댓글 전체보기
맨위로

카페 검색

카페 검색어 입력폼