CAFE

건축전 사례조사

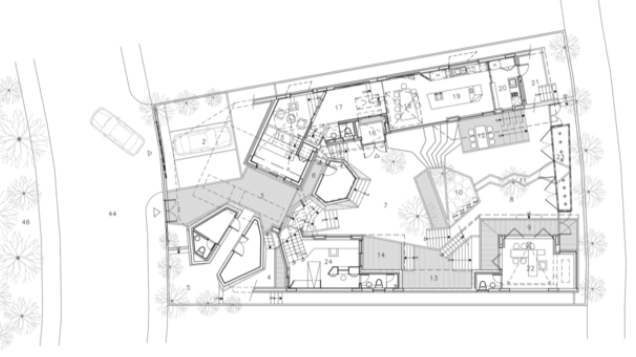
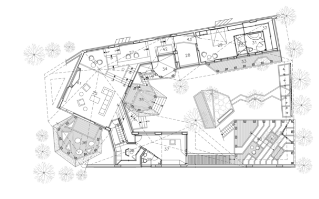
분당 가온재/ 이로재김효만건축사사무소

작성자27기나웅희|작성시간15.04.17|조회수1,151 목록 댓글 0

 

 

 

 

 

 

 

다음검색
현재 게시글 추가 기능 열기

댓글

댓글 리스트
맨위로

카페 검색

카페 검색어 입력폼