CAFE

김천35

김천현장 설계도면입니다(평면도,정면도,좌우측면도,지붕도,배면도)

작성자촌목 - 강산택|작성시간10.02.16|조회수7,565 목록 댓글 4

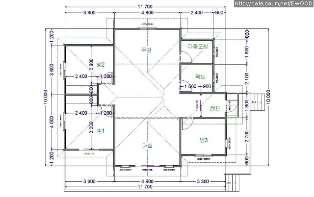
김천현장(30평) 도면을 올립니다.

 

 

 

평면도

 

 

 

정면도

 

 

 

좌측면도

 

 

 

우측면도

 

 

 

배면도

뒷모습입니다.

 

 

 

 

지붕그림입니다.

다음검색
현재 게시글 추가 기능 열기

댓글

댓글 리스트
  • 작성자옛터사랑 | 작성시간 10.02.16 김천 어디쯤인지 알려주시면 공사 할때 한 번 가보고싶습니다.
  • 답댓글 작성자촌목 - 강산택 작성자 본인 여부 작성자 | 작성시간 10.02.16 김천현장 시작하면 연락주십시요.... 요즘 주소는 올리기가 거시기 머시기 하네요...^^
  • 답댓글 작성자오상덕 | 작성시간 10.02.17 증산면 부항리입니다...^^
  • 작성자겨울라온 | 작성시간 26.02.07 쿠팡 파트너스 활동의 일환으로, 이에 따른 일정액의 수수료를 제공받습니다.

    고당도 새콤달콤 설향 딸기
    https://link.coupang.com/a/dvYPek
    댓글 첨부 이미지 이미지 확대
댓글 전체보기
맨위로

카페 검색

카페 검색어 입력폼