CAFE

양평 조현35

건축계획보고서

작성자송진숙|작성시간13.07.26|조회수722 목록 댓글 1

 

다운로드:첨부파일 조현리 건축계획 v0.1.docx

 

1.     건축계획

<1층 평면도>

 

1차 계획에서 직사각형 모양이던 평면도가 뒷집의 민원과 외양을 좀더 고려하여 ㄱ 자형으로 변경했습니다.

화장실 2개를 1개로 과감히 축소하고 주로 거실에서 활동을 많이 하는 우리 가족에 맞춰서 거실을 최대로 확보하고 주방은 애초 ㄷ 자형 구조에서 ㄱ 자형으로 바꾸고 식탁테이블을 가운데에 배치하였습니다.

다용도실은 아내의 요청으로 주방과 분리하여 다용도실의 새탁기 소음을 차단하였고 수납공간을 오픈형으로 최대한 확보하였습니다.

다용도실에 외부 출입문을 두고 작은 데크를 두고 외부전원을 연결하여 외부에서 생선을 요리할 수 있게 하였습니다.

거실과 주방에는 씰링팬을 설치하여 실내 공기 흐름을 원활히 할 예정입니다.

<다락평면도>

 

다락방은 접이사다리를 이용하며 수납 및 아이들 놀이공간으로 사용합니다.

그리고 다락방에서 다락 공간으로 작은 문을 두어 다락 공간에 있는 설비를 정비 할 수 있도록 합니다.

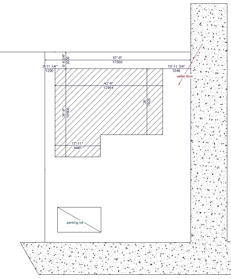
<배 치 도>

 

건물의 배치는 뒷집의 민원으로 인해 최대한 좌측(서쪽)대지경계선에 가깝게(1.2m) 배치했습니다.

그리고 비가 많이 오면 우측 도로를 통해 물이 내려오다가 저희 대지 안쪽으로 가로질러서 물이 흘러갑니다.

또한 토질은 점토질이어서 비가오면 뻘처럼 변해서 문제가 많았습니다.

아무래도 토질 개선과 성토 및 배수처리가 필요해 보입니다.

건물 전면과 후면의 표고차는 약 40cm정도이고 크롤스페이스 공간은 최소 1000mm, 가능하면 1200mm를 확보하여 저장창고, 배관 유지보수, 온돌 아궁이 난방 및 환기용 공간으로 사용 할려고 하는데 현실적으로 가능할 지는 모르겠습니다.

관에서 하수관 공사가 진행되고 있는데 2013년도까지 완공예정입니다.

그래서 정화조를 묻을 필요 없이 맨홀에 연결만 하면 되는데 문제는 만약 올해 안에 하수관공사가 완료되지 못하면 입주가 불가능 할 수 있습니다.

 

 

2.     구조

 

대부분의 사항은 평창 주택과 동일하게 선택했습니다.

건축주는 저탄소 저에너지 주택에 관심이 있습니다.

하지만 완벽하게 패시브하우스로 가기엔 비용이 너무 많이 들어 비교적 저렴한 저에너지하우스로 선택을 하였습니다.

 

아래는 패시브하우스 건축기준 입니다

가)   단열

-       외벽 : 0.15

-       지붕 : 0.11

-       창호 : 0.85, g>0.5

-       : 0.8

나)   기밀 : 0.6/h, (1.5/h)

다)   열교환기

-       75% 이상

-       0.45w/m3h

입니다.

조현리 주택에 적용할 사항은

가)   단열성능 강화

-       바닥장선 단열성능 강화 – R30

-       외벽 단열성능 강화 고밀도 글라스울(24k) 사용 또는 셀룰로우스 단열재 사용

스터드 간격 24”

내부 배관 완벽한 단열처리

나)   기밀성능 강화

-       벽체 만나는 곳 기밀시공

-       창문 기밀테이프-Contega

-       콘센트, 배관 기밀처리

다)   투습성능 강화

-       가변형 방습지 – Intello

-       투습방수지-mento 3000

라)   열회수 공기청정기 사용

스터즈스터링코리아 폐열회수공기청정기 또는

독일 전열회수공기청정기 사용

등 입니다.

 

 

다음검색
현재 게시글 추가 기능 열기

댓글

댓글 리스트
  • 작성자본부-한진섭 | 작성시간 13.07.27 건축주님 감사합니다.
    하나하나 꼼꼼히 준비 하겠습니다.
댓글 전체보기
맨위로

카페 검색

카페 검색어 입력폼