CAFE

인제 용대 28

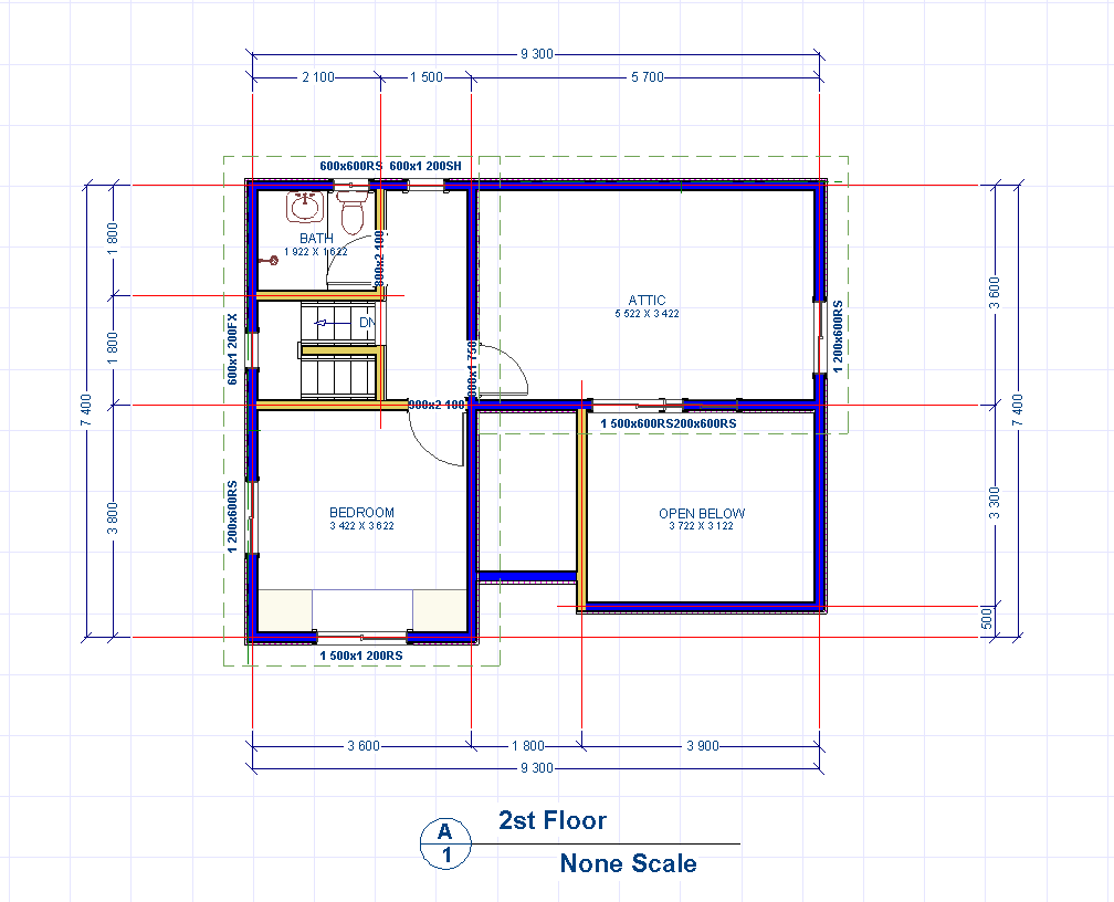
3차 수정도면입니다.

작성자레브|작성시간20.06.25|조회수367 목록 댓글 1




















다음검색
현재 게시글 추가 기능 열기

댓글

댓글 리스트
  • 작성자몬당 | 작성시간 20.06.26 설계 수정 감사드립니다.
    추가 수정내용이 있어 댓글 드립니다.
    1. 방 2개 전면 창 1500x1200을 1800x1200으로 변경.
    2. 2층창 옆의 붇박이장은 삭제해 주시고 평상만 방넓이로 키워 주세요.
    3. 계단실 창고 여닫이문 삭제하고 계단 입구 및 창고입구 앞에 1600?x2100 양 미닫이 문으로 변경.
    계단이용시는 미닫이문 2개로 창고 가리고 창고 이용시는 계단 입구로 문 2개 가림, 2층 이용 않할때는 미닫이문으로 계단입구 및 창고 모두 막을수 있는 계념입니다.
    4. 계단참 양 모서리로 2개의 스텝 추가 바랍니다.
댓글 전체보기
맨위로

카페 검색

카페 검색어 입력폼