CAFE

평창 미지원 현장

수정 도면 추가

작성자호보|작성시간26.03.30|조회수31 목록 댓글 0

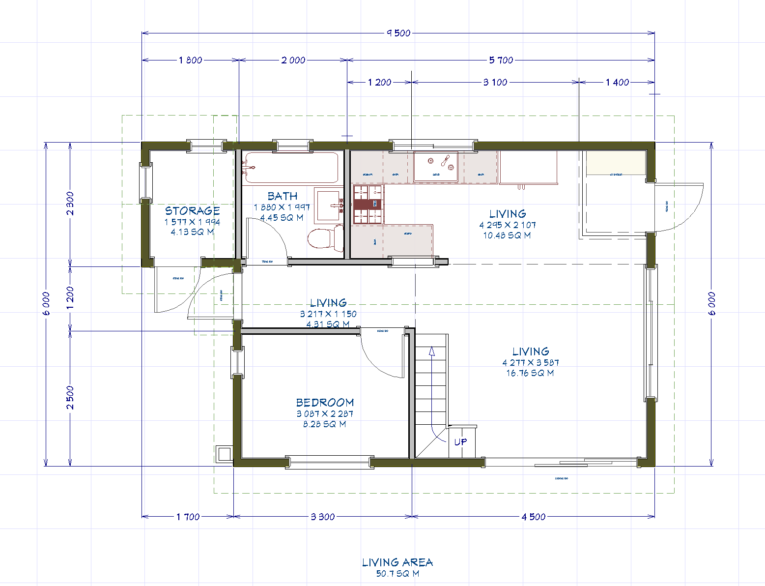
   욕실 변경을 원하셨는데 

   도면을 새롭게 작성하다보니까 몇가지 더 추가^ 추가^하게 되네요. 

 

1. 다락을 받쳐주는 내력벽으로 욕실 내벽을 거실 앞까지 끌어 왔습니다. 

    그대신 답답함을 덜어주기 위해서 창이 없는 개구부(Pass Through) 를 설치했습니다. 

2. 다락을 효율적으로 사용하시도록 지붕을 약간 높이면서 기울기도 22.5˚ 완만하게 했습니다. 

3. 다락 좌우로 벽을 세워서 실내공간의 편안함을 주었습니다.  

4. 다락 난간을 줄이고 일부 벽으로 대신함으로 안전하고 안정감 있게했습니다.  

5. 지붕 서까래를 중목구조식으로 노출시켰었는데

    다락 공간 활용을 위해서는 아무래도 불편할 것 같아서 적용하지 않았습니다 .

    필요하시면 다시 첨부할 수 있겠습니다. 

6. 혹 다락의 여유있는 공간이  법적으로 문제가 되지 않을지 걱정할 수 있겠는데 

    가중평균치 계산을 보니까 1.7m (최고 높이 2m 다락 좌우벽 높이 1.4m) 정도로 별 문제가 없겠습니다. 

    다음 설계상의 다락 층고를 참고하세요 

7. 계단을 올라서서 사방으로 둘러친 난간 대신 전면 벽을 세워서  안전하고 안정감있게 했습니다.    

8. 계단 하부 공간을 횡하니 비워두기가 그래서 일단 벽으로 채웠습니다만

    필요하신대로 선반을 설치하던가 그러시면 좋을 것 같습니다. 

9. 동시에 주방에 냉장고 위치를 변경하고 가스랜지의 위치도 변경했습니다.   

 

  이미 기초공사가 시작되셨지만 아직은 늦지 않으니까 살펴보시고 원히는대로  반영하시면  좋을 것 같습니다.  

 

다음검색
현재 게시글 추가 기능 열기

댓글

댓글 리스트
맨위로

카페 검색

카페 검색어 입력폼