CAFE

강릉 제왕 현장

수정 2차 도면

작성자호보|작성시간26.03.15|조회수78 목록 댓글 0

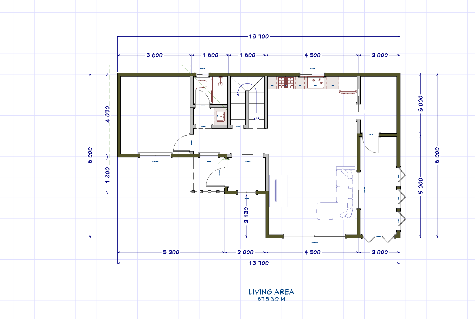
1차 수정된 도면을 참고해서 전체를 다시 설계했습니다. 

2층도 원하시는대로 수정했는데 고려할 사항이 많을 것 같습니다. 

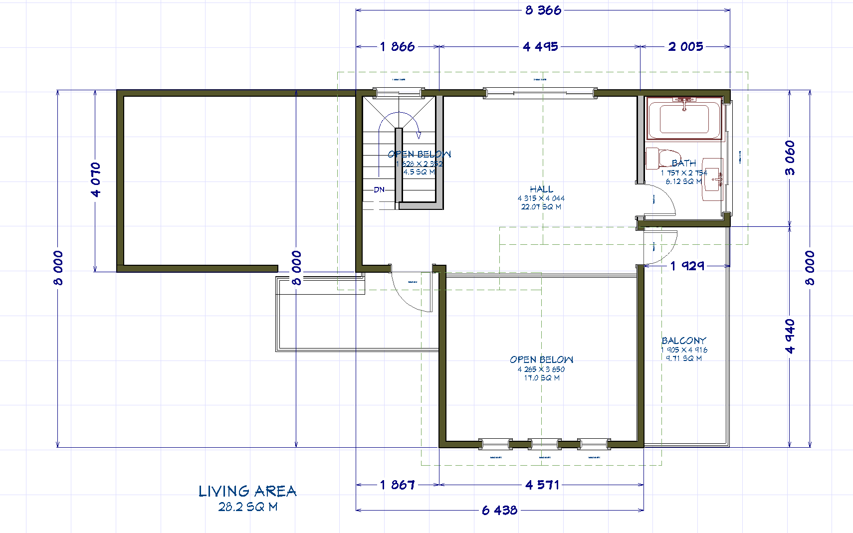
우선 다락방은 출입문 진입이 불가해서 일단 제외시켰습니다만 

도모창을 포함한 다락방에서 출입문을 넣었을 때의 입체도면을 마지막 이미지로 올렸는데 참고하세요.  

다락방을 살릴 수 있는 좋은 방법이 있으면 제안해 주세요. 

그리고 2층 전면부 발코니를 우측으로 확장하셨는데

구조적인 안정성 및 1층 지붕 위로 올려지는데 괜찮을지 고려해 보아야 할 것입니다. 

2층 욕실을 기존 발코니 뒷면으로 옮기기를 원하시는대로 변경했습니다. 

일단 다음 도면을 살펴보세요  

 

 

 

다락방으로 들어가는 출입문인데 지붕을 올리는 등 조정해도 출입이 불가할 것 같은데요 ㅜㅜ 기어서 들어가면 가능할까?

 

다음검색
현재 게시글 추가 기능 열기

댓글

댓글 리스트
맨위로

카페 검색

카페 검색어 입력폼