CAFE

문경 연천③ 현장

설계 수정 요청 1

작성자문경연천3전찬우|작성시간26.03.01|조회수142 목록 댓글 1

안녕하세요! 지난 번 주신 설계 토대로 수정 요청 드립니다.

 

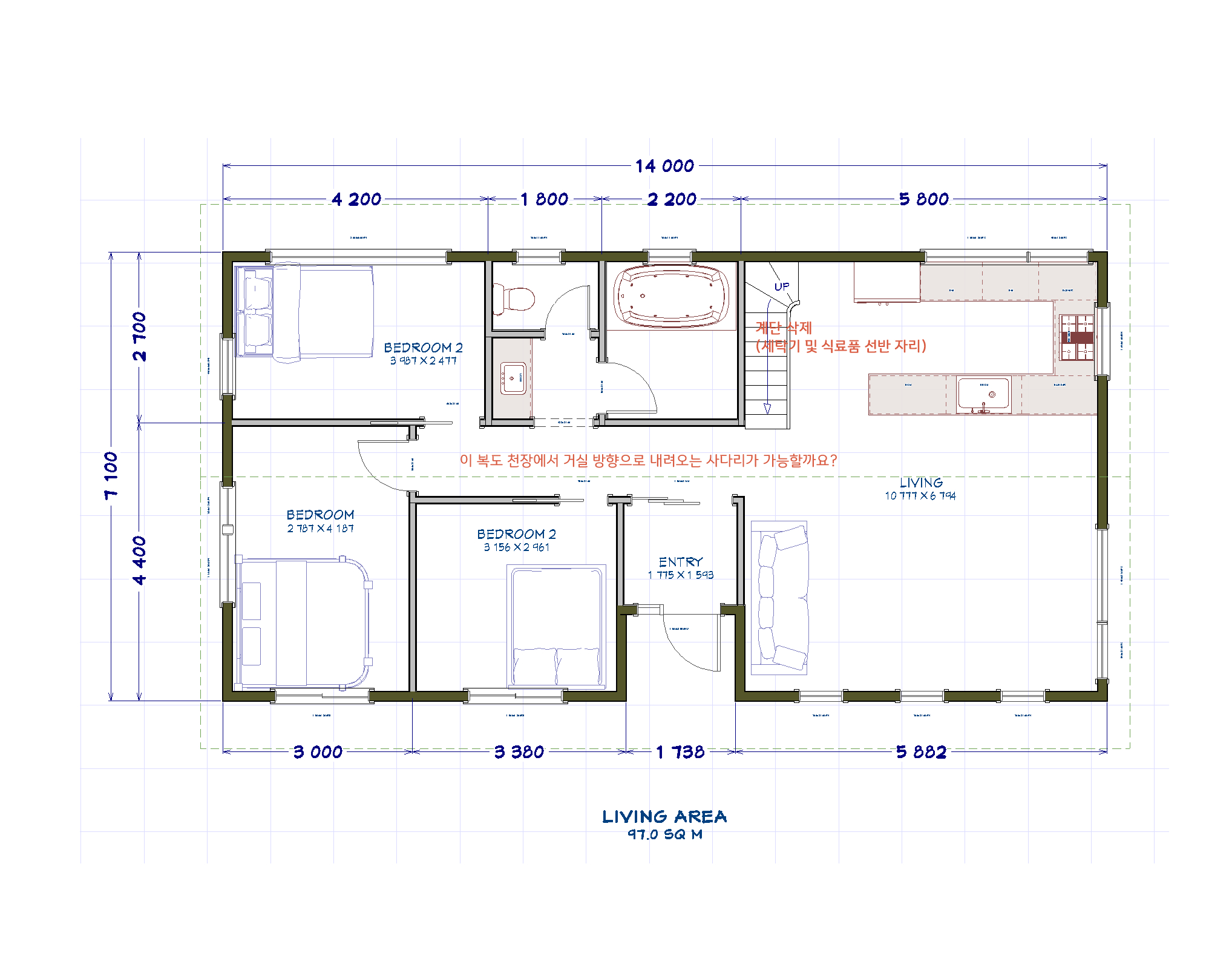
1. 다락으로 올라가는 방법은 계단이 아니라 원래 요청대로 사다리로 하고 싶습니다.

앞으로 아이들을 위한 신비한 공간으로 만들고 싶어 사다리로 하려고 해요.

계단으로 올라가는 다락엔 오래 살아봤기 때문에 사다리로 하려는데, 집 왼편 방과 화장실로 이어지는 복도 천장에서 내려도 공간이 충분하다면 그렇게 하고 싶습니다!

 

초안에서 계단을 넣어주신 부분엔 세탁기와 식료품 선반 등이 들어갈 예정입니다.

컴팩트하고 아늑한 아지트처럼 쓸 생각이어서 도모 지붕은 없어도 될 것 같아요. 초안의 천장 높이가 높은 쪽/낮은 쪽 각각 어느 정도인 걸까요?

그리고 초안의 다락 면적이 몇 평 정도인가요? 

 

저희가 생각하는 다락의 규모는 아래 두 사진과 느낌이 비슷합니다. 다락에는 두번째 사진처럼  직사각 어닝창을 하고 싶어요. 

 

2. 창호 사이즈 관련 

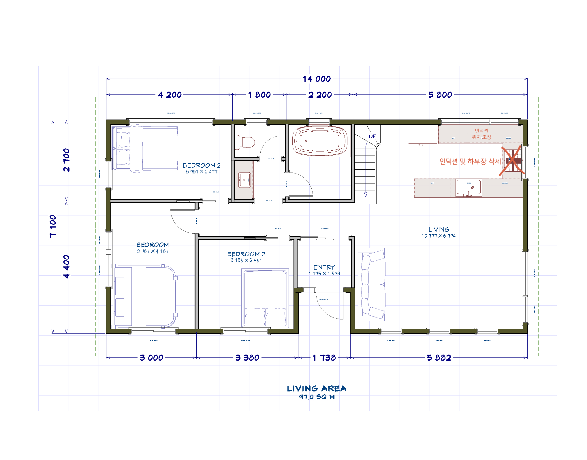
-거실 3개의 고정창 가로 사이즈가 각각 지금의 반으로 줄었으면 합니다.

-반대편 주방 창은 상부장과 하부장 사이에 들어갈 만한 사이즈로 했으면 합니다.

-초안 도면의 거실 위쪽 벽에 있는 창은 없애주세요! 그쪽이 북쪽이라 필요가 없을 것 같습니다

 

창호는 건축 중에 크기를 좀 바꿔도 별로 상관없다고 들었지만 (맞나요?) 체크해봅니다!

 

3. 지붕 모양 관련

-지붕 모양 때문인지 모델링 상의 튀어나온 부분이 마음에 들지 않는데

주방과 거실  쪽엔 한쪽으로만 비스듬한 지붕을 쓰고 싶어요.

가능하다면 아래 모양처럼 하고 싶은데 설계나 비용, 다락쪽 지붕과의 조화가 걱정입니다. 

무리라면 화성 봉가 현장처럼 이렇게 해도 좋을 것 같습니다.

(화성 봉가 설계도면 일부)

 

이렇게 바뀔 경우 다락쪽 지붕에 박공 외에 다른 대안이 있는지도 궁금합니다. 원래대로 박공 지붕도 좋습니다.

 

4. 주방 상세 조정

5. 보일러실 위치

작은 지붕을 별개로 하여 보일러실을 하나 추가하고 싶습니다. 기름보일러와 온수기가 들어갈 공간입니다. 위치는 이렇게 생각하고 있습니다.

 

다음검색
현재 게시글 추가 기능 열기

댓글

댓글 리스트
  • 작성자호보 | 작성시간 26.03.03 제시해 주신 도면을 참고한 모델링으로 30평 정도인데 25평에 맞추기 위해서 어디를 줄이면 좋을지 알려주시면 좋겠습니다. 보일러실까지 추가하면 좀 더 넓어 지겠네요. 박공 지붕 밑 다락 공간을 최대한 넓게 (계단 및 작은 창고 포함 40.42 m2) 편하게 서서 사용하시도록 도모지붕을 넣었습니다만 원하시는대로 바꾸겠습니다. 거실에 천정이 내려온 것도 수정이 가능하겠습니다만 다락을 오르내리는 사다리를 어디다 두어야할지는 고민이 되네요. 방과 접한 복도로 내려온다면 많이 불편할 것 같은데요 ,
댓글 전체보기
맨위로

카페 검색

카페 검색어 입력폼