CAFE

문경 연천③ 현장

설계 3안

작성자호보|작성시간26.03.08|조회수137 목록 댓글 1

요청하신대로 수정입니다.

살펴보세요 

 

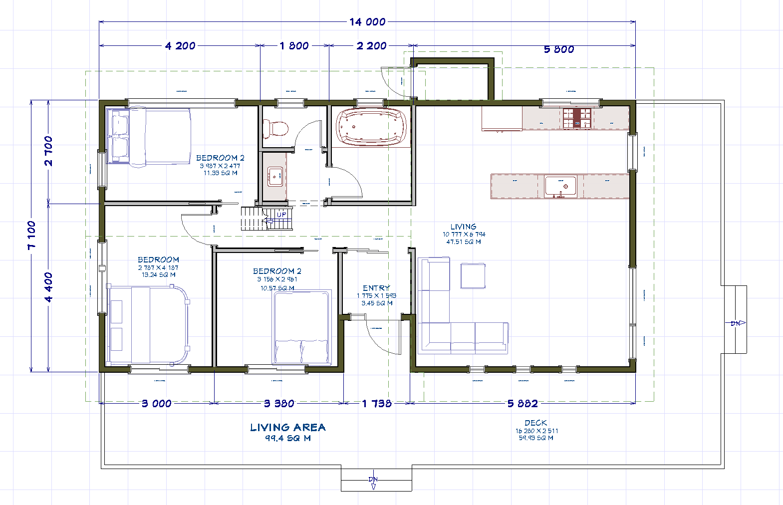
1층 평면도

 다락 평면도 

다락방 접이식 사다리 

다락방 

다음검색
현재 게시글 추가 기능 열기

댓글

댓글 리스트
  • 작성자문경 연천 전찬우2 | 작성시간 26.03.19 답글로 수정요청사항 전달했는데, 혹시 확인하셨는지요?
댓글 전체보기
맨위로

카페 검색

카페 검색어 입력폼