CAFE

문경 연천③ 현장

설계 4안

작성자호보|작성시간26.03.24|조회수113 목록 댓글 5

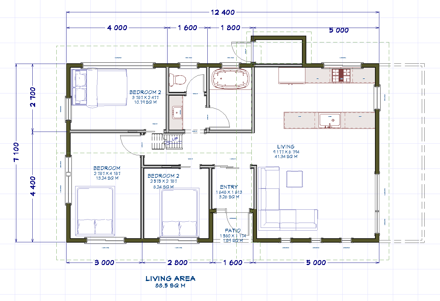
원하시는대로 다시 조정한 도면입니다.

다락 천정을 조금이라도 높이기 위해서 박공지붕 각도를 22.5˚ 로 했는데 

살펴보시고 필요하시면 다시 변경할 수 있겠습니다. 

다음검색
현재 게시글 추가 기능 열기

댓글

댓글 리스트
  • 작성자문경 연천 전찬우2 | 작성시간 26.03.24 Bedroom 2 미닫이 문 변경/초안 4m 방향 벽에 위쪽 고정창이 있었습니다. 추가 부탁합니다!
    지붕 각도 이대로 좋습니다.

  • 작성자호보 작성자 본인 여부 작성자 | 작성시간 26.03.26 네^ 추가했습니다. 그런데 방문 폭이 최대로 해도 706mm 너무 좁은 것 같은데 괜찮을지요?

  • 답댓글 작성자문경 연천 전찬우2 | 작성시간 26.03.26 추가하시면서 집이 다시 커졌어요. (거실이랑 방 크기 모두) 3안 답글로 밀씀드린 요청사항이 반영되어있지않아요. 반영해도 공간이 부족할까요?
  • 작성자호보 작성자 본인 여부 작성자 | 작성시간 26.03.26 수정한 4안이 아닌 3안을 올렸네요. 다시 올렸습니다만 방문 때문에 100~200mm 정도는 방을 넓혀야 할 듯 합니다.
  • 답댓글 작성자문경 연천 전찬우2 | 작성시간 26.03.26 그러면 방문 들어갈 후 있게 집 왼쪽 전체를 200mm늘려주세요! 그렇게 마무리하면 될 것 같습니다
댓글 전체보기
맨위로

카페 검색

카페 검색어 입력폼