설계일자 : 2009. 11. 23.
프레임 시공일자 : 2009. 11. 24 ~ 27
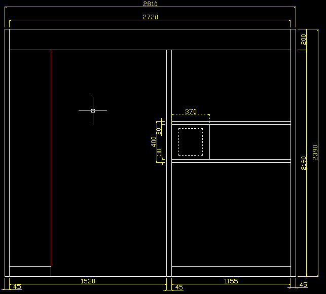
현장개요 : 기존 개여닫이 강화도어가 풍압에 의해 틈이 벌어지는 현상을 막기 위해
현관 캐노피를 확장하여 3면 밀폐 후 1,880mm의 방풍실을 마련한다.
로비폰 신설 및 3면 강화유리 벽체 천정마감을 하고
전면엔 3피스(3Piece) 자동문을 신설한다.
정면도
측면도
평면도
다음검색
설계일자 : 2009. 11. 23.
프레임 시공일자 : 2009. 11. 24 ~ 27
현장개요 : 기존 개여닫이 강화도어가 풍압에 의해 틈이 벌어지는 현상을 막기 위해
현관 캐노피를 확장하여 3면 밀폐 후 1,880mm의 방풍실을 마련한다.
로비폰 신설 및 3면 강화유리 벽체 천정마감을 하고
전면엔 3피스(3Piece) 자동문을 신설한다.
정면도
측면도
평면도