CAFE

………인테 ˚ 리어

전세가로 지은 몽치와 3인가족의 양평전원주택

작성자ㅌ Hㅅr ㄹ6|작성시간23.05.08|조회수105 목록 댓글 0


오늘 소개해드릴 공간은 성남에서 전세로 거주하다 전세가로 양평 국수리에 집을 신축한 부부의 전원주택입니다.
대부분의 사람들이 전원주택 생활을 망설이는 이유는 불편한 교통과 난방비,
주택관리가 제일 큰 걱정거리임에도 불구하고 부부가 이곳을 선택한 이유는 과연 무엇일까요
?


이 주택은 국수역 근처에 위치한 역세권으로 교통편이 좋으며 층간소음을 신경 쓰지 않아
어린
아이와 반려견에게 좋은 환경과 놀이공간을 만들어줄 수 있을 것 같아 집을 짓기로 결정했다고 하는데요.
일반 단독주택과 달리 단지 형태로 구성되어 있어 이웃과 소통하며 외롭지 않은 생활을 하실 수 있으며
도시가스로 실생활이 매우 편리하다고 합니다
.
실제 지내온 부부의 말씀으로 겨울철 난방비가 인근 가스보일러 사용가구에 비해 20만원 정도 저렴하게 나와
생활비 절감을 할 수 있다고 합니다
.


3층 다락방에는 아내의 의견을 반영하여 아이를 위한 놀이공간까지 있어 더욱 좋은 환경을 전해주는
경기도 양평군 국수리에 위치한 보금자리
! 반려견 몽치와 3인 가족의 달콤한 이야기를 담아낼 수 있는 전원주택을 소개합니다.


HOUSE INFO


단지명 청담채
위치 경기도 양평군 양서면 국수리
구조 철근 콘크리트
외부 징크판넬, 파벽돌, 스타코플렉스
연면적 142.69(43.16PY)
전용면적 204.00(61.71PY)
도로면적 29.95(9.06PY)
대지면적 233.95(70.77PY)
규모 지상 3
1 거실 주방 드레스룸 욕실 야외테라스
2 보조주방 아이방 안방 발코니 욕실
3 다락방 놀이방 야외테라스
설계시공 토리디엔씨


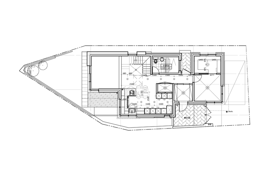
▲1층 평면도


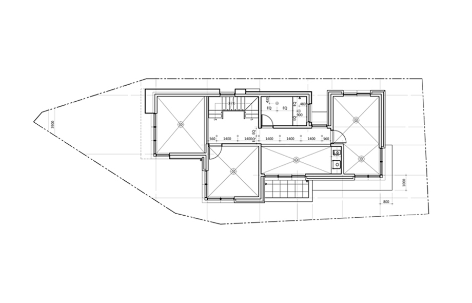
▲2층 평면도



▲다락 평면도




여유로운 생활에 주택만한 공간이 있을까요? 주변에 생기를 불어넣어주는 조경과 여러 창문이 설치되어 있어
집안에 햇빛이 잘 들어오는 주택으로
푸르른 자연과 함께 할 수 있는 생활을 만끽할 수 있습니다.


우리 집의 보디가드! 듬직한 몽치가 지키고 있는 깔끔한 현관




이 집을 지키는 듬직한 반려견 몽치가 현관에서 반겨주고 있습니다~
블랙 컬러의 타일로 무게감을 더해 바닥을 마감해주었으며 새하얀 화이트톤의 신발장을 설치하였습니다.
알판이 없는 슬라이딩 도어로 답답함 없이 공간을 분리해주었습니다.



비밀스러운 수납공간까지 있는 깔끔한 복도




거실과 주방으로 안내해주는 긴 복도에는 붙박이장을 설치하여 수납공간을 확보해주었습니다.


우리가족 웃음소리가 끝이지 않는 공간! 벽돌과 우드로 분위기 있게 연출한 거실





우선 1층에는 가족의 공용공간인 거실, 주방, 안방, 욕실이 자리 잡고 있습니다.
거실은 짙은 톤의 바닥 마루와 벽재로 쓰인 벽돌 소재가 어우러져 완성하였습니다.
그레이톤의 소파를 배치하였으며 화이트톤의 커튼까지 더해져 모던 심플한 거실을 연출하였습니다.





천장고가 높아 답답하지 않은 쾌적한 생활을 하실 수 있으며 높으면서 넓게 설치된 창을 통해 바깥 풍경을 보실 수 있습니다.
커튼을 통해 들어오는 은은한 햇빛은 공간에 따스함을 불어넣어 줍니다.




한쪽에는 간단한 업무를 할 수 있는 책상과 아이에게 자신만의 독립적인 공간을 제공해주는
아늑한 인디언텐트를 거실에 두어 아이를 돌보며 시간을 보낼 수 있도록 하였습니다
.






아이의 장난감과 동화책들을 깔끔하게 보관할 수 있는 수납장을 설치해주었습니다.
수납장은 블랙 프레임과 우드로 이루어져 고급스러움을 더해주었으며 아이가 함께하는 거실인 만큼
가족들의 웃음소리가 끝이지 않을 것 같습니다
~


가족들과 소통하면 조리할 수 있는 화이트톤의 깔끔한 오픈키친




주방은 거실과 공간 분리 없이 위치해있으며 부족할 수 있는 수납공간을 확보해주기 위해 상부장과 하부장을 설치해주었습니다.




거실과 마주 보고 있는 오픈 키친에는 노출 후드를 설치하였으며 거실을 바라보며 조리할 수 있습니다.
하부장과 바로 이어지도록 식탁을 배치하여 동선이 편하도록 구성하였습니다.


필요한 것들로만 배치하여 심플하게 꾸며준 아늑한 드레스룸






방에 숨겨진 공간으로 드레스룸과 파우더룸이 한 공간 안에 위치해있습니다.
사용에
편리한 슬라이드 도어를 설치하였으며 가구는 깔끔한 화이트톤으로 맞추었습니다.


깊고 넓은 조적욕조로 내 하루의 마무리를 책임져줄 1욕실




하부를 띄운 세면대와 넓은 미러슬라이드장, 화이트톤의 깔끔한 수납장으로 수납공간을 확보해주었습니다.
벽면과 바닥은 그레이톤의 타일을 사용하여 모던한 분위기를 연출하였습니다.




1층 욕실에는 아이와 함께 물놀이를 할 수 있는 넓은 조적욕조가 있습니다.
조적욕조란 욕조형태로 벽을 쌓고 타일을 시공하여 만든 욕조로 목욕탕이나 수영장에서 많이 보이는 디자인입니다.
꼼꼼하게 방수작업을 하지 않으면 누수로 인한 하자가 발생할 수 있기 때문에 매우 꼼꼼한 작업이 필요한데요.
그만큼 시공비가 비싸다고 합니다. 그럼에도 부부가 조적욕조를 선택한 이유는 아이와 부모가 함께 이용할 수 있어
추억을 만들수 있는 가족 욕조로 사용할 수 있기 때문이지 않을까 싶습니다.



하부지지대 없이 심플한 형태의 감각적인 계단




단독주택이나 복층 집을 새로 지으려는 경우 디자인적인 부분은 물론 안전과 실용성도 함께 고민해야 하는 계단이 걱정이실 텐데요.
이 주택은 하부 지지대 없이 얇은 판의 형태로 이색적인 모습으로 구성하였습니다.


공간의 활용도를 높여주는 2층에 위치한 보조주방






1층에 주방과 다이닝룸이 있지만 2층에는 간단하게 조리할 수 있는 보조주방이 자리 잡고 있습니다.
일자형 주방 조리대와 우드 벽선반으로 심플하게 이루어져 있습니다.
에어컨과 부피를 많이 차지하는 냉장고를 배치해주어 공간의 활용도를 높여주었으며 천장에 설치된 조명이 세련된 멋을 더해줍니다.


나이가 어린아이를 위해 꾸며준 포근한 방




아직 나이가 어린 아이를 위해 높은 침대보다 안전한 매트를 깔아주었습니다.
아이가 편히 머무를 수 있는 포근한 공간을 선사해주었습니다.


화이트와 그레이로 밝고 화사하게 꾸며준 2층 욕실






2층에 위치한 욕실은 화이트톤으로 화려함보다는 밝고 심플하게 꾸며주었습니다.
바닥은 그레이톤의 사각 타일로 무게감을 잡아주었으며 유리 파티션으로 샤워공간을 분리해주었습니다.





아이에게 좋은 추억을 만들어줄 수 있는 꿈의 다락방





다양한 장난감과 책 보관을 할 수 있어 정리정돈은 물론 깔끔하면서 실용적인 공간입니다.
우드를 사용하여 내추럴함과 부드러운 감성을 전해주는 다락방입니다.






창문을 통해 따사로운 햇빛이 들어와 아늑한 공간을 연출해줍니다.








3층 안쪽으로 들어가면 아내의 의견을 토대로 다락방에 위치한 놀이방이 있습니다.
전원주택의 장점 중 하나가 아이가 자유롭게 뛰어놀 수 있다는 점인데요.
아무리 쿵쿵 뛰어 놀아도 제지가 없어 아이가 맘편히 놀 수 있으며 비밀스러운 다락방의 이미지만큼
우리 아이만의 아지트로 만들어 아이에게 특별한 공간을 선물해줍니다
.





전원주택 생활의 묘미를 보여주는 시크릿한 야외테라스





3층에 위치한 야외테라스입니다. 청량한 하늘이 한눈에 보여 답답함을 해소할 수 있으며 접이식 테이블과 의자를 두어
사용에 따라 설치할 수 있습니다
. 또한 벽의 단차가 높아 프라이빗한 시간을 보낼 수 있습니다.


화장한 날씨에 망중한을 즐길 수 있는 뒷마당





1층에는 뒷마당으로 연결되어있는 비밀스러운 문이 있습니다. 안으르 들어가면 과연 어떤 공간이 나올까요~?









다른 집의 시선을 신경 쓰지 않아도 되는 뒷마당에는 우드 소재의 테이블과 의자를 배치해준 야외테라스가 있습니다.
푸른 자연과 함께 힐링할 수 있는 공간을 만들어주었습니다.
특별한 날이나 주말 같은 경우 가족이 한자리에 모여 바비큐 파티나 저녁을 먹으며 시간을 보낼 수 있습니다.



글과 사진: 집데코
건축 자료제공: 토리디엔씨
다음검색
현재 게시글 추가 기능 열기
  • 북마크
  • 신고 센터로 신고

댓글

댓글 리스트
맨위로

카페 검색

카페 검색어 입력폼