CAFE

팬직 (Fanzic)

대형 덕트팬

작성자pohangfan|작성시간12.08.10|조회수175 목록 댓글 0

054-242-0831/환풍기총판장


 

다음검색
현재 게시글 추가 기능 열기

댓글

댓글 리스트

카페 검색

카페 검색어 입력폼
특징
ㅇ 저소음 설계
ㅇ 대풍량

용도
ㅇ 창고 환기용
ㅇ 제품 냉각용

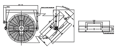
성능 곡선도
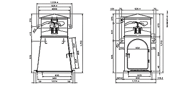
TFD-G80 HT 스탠드형 ※ 도면을 클릭하시면 확대된 이미지를 보실 수 있습니다.

모델명 날개치수
(mm)
전원
(v)
극수
(P)
최대풍량
(㎥/h)
입력
(W)
정격전류
(A)
중량
(kg)
주문
번호
TFD-G80 HT 800 3Ø 220/380V 60Hz 6 22,800 2,240 8.8/5.1 115 D06
3Ø 440V 60Hz 4.4
TFD-G80 HT 상부거치형 ※ 도면을 클릭하시면 확대된 이미지를 보실 수 있습니다.

모델명 날개치수
(mm)
전원
(v)
극수
(P)
최대풍량
(㎥/h)
입력
(W)
정격전류
(A)
중량
(kg)
주문
번호
TFD-G80 HT 800 3Ø 220/380V 60Hz 6 22,800 2,240 8.8/5.1 115 D06
3Ø 440V 60Hz 4.4
특징
ㅇ 저소음 설계
ㅇ 대풍량

용도
ㅇ 일반공장, 도장공장 등의 배기
ㅇ 제철소의 온도, 습도 조절
ㅇ Hot Coil 냉각용, Steam 배기용

성능 곡선도
TFD-G100 HT ※ 도면을 클릭하시면 확대된 이미지를 보실 수 있습니다.

모델명 날개치수
(mm)
전원
(v)
극수
(P)
최대풍량
(㎥/h)
입력
(W)
정격전류
(A)
중량
(kg)
주문
번호
TFD-G100 HT 1,000 3Ø 220/380V 60Hz 6 42,000 3,500 13/7.5 250 D08
3Ø 440V 60Hz 2,850 5.2 D09
TFD-F100 MT ※ 도면을 클릭하시면 확대된 이미지를 보실 수 있습니다.

모델명 날개치수
(mm)
전원
(v)
극수
(P)
최대풍량
(㎥/h)
입력
(W)
정격전류
(A)
중량
(kg)
주문
번호
TFD-G100 MT 1,000 3Ø 220/380V 60Hz 4 68,000 10,000 39/15 250 D10
3Ø 440V 60Hz 15 D11
TFD-H110 HT ※ 도면을 클릭하시면 확대된 이미지를 보실 수 있습니다.

모델명 날개치수
(mm)
전원
(v)
극수
(P)
최대풍량
(㎥/h)
입력
(W)
정격전류
(A)
중량
(kg)
비 고
TFD-H110 HT 1,100 3Ø 440V 60Hz 8 42,000 3,360 6.65 250
TFD-G60 ES ※ 도면을 클릭하시면 확대된 이미지를 보실 수 있습니다.

모델명 날개치수
(mm)
전원
(v)
극수
(P)
최대풍량
(㎥/h)
입력
(W)
정격전류
(A)
중량
(kg)
주문
번호
TFD-G60 ES 800 1Ø 220V 50Hz 6 5,400 355 1.6 34 D12
1Ø 220V 60Hz 5,600 550 2.4
특징
ㅇ 저소음 설계
ㅇ 대풍량

용도
ㅇ 일반공장, 도장공장 등의 배기
ㅇ 제철소의 온도, 습도 조절
ㅇ Hot Coil 냉각용, Steam 배기용

성능 곡선도
TFD-F60 GT ※ 도면을 클릭하시면 확대된 이미지를 보실 수 있습니다.

모델명 날개치수
(mm)
전원
(v)
극수
(P)
최대풍량
(㎥/h)
입력
(W)
정격전류
(A)
중량
(kg)
주문
번호
TFD-F60 GT 600 3Ø 440V 60Hz 4 18,000 1850 3 96 D05
TFD-G75 SP ※ 도면을 클릭하시면 확대된 이미지를 보실 수 있습니다.

모델명 날개치수
(mm)
전원
(v)
극수
(P)
최대풍량
(㎥/h)
입력
(W)
정격전류
(A)
중량
(kg)
주문
번호
TFD-G75 SP 750 3Ø 440V 60Hz 6 25,000 1650 3 284 D13
TFD-H100 SP ※ 도면을 클릭하시면 확대된 이미지를 보실 수 있습니다.

모델명 날개치수
(mm)
전원
(v)
극수
(P)
최대풍량
(㎥/h)
입력
(W)
정격전류
(A)
중량
(kg)
주문
번호
TFD-H100 SP 1,000 3Ø 440V 60Hz 8 21,000 330 1.00 95 D07