알텍 A5 스피커 유닛의 구성과 튜닝 방법, ALTEC A5
알텍 A 시리즈는 The Voice of Theatre라는 별명과 함께 출시된 것들입니다
중고역에는 혼을 채용하여 넓게 퍼지게 하였고, 음압 우퍼에 비해 3~4 dB 높게 튜닝을 하였다.
알텍은 저항을 싫어하고 코일을 좋아한다고 합니다.
따라서,혼 특유의 소리가 과장되고.. 상당히 자극적인 소리가 되는 것 같습니다
15인치 우퍼는 음압이 상당히 높으나, 제대로 구동하기가 어렵다
저역을 살리지 못하면 귀에 자극이 심하게된다
양질의 전원은 필수조건이다.전압유지가 또한 중요하다.
혼 스피커로 단단한 저역을 얻기란 쉽지않다.
조그마한 홀에서는 이 스피커들의 진정한 매력을 느끼기가 힘들다.
발매당시 A5는 515우퍼, 288드라이버, 1005혼, H110인클로우저 로 구성이 되었다
'보이스 오브 시어터(Voice of Teather)'라 명명된 알텍 시리즈는 모두 10가지가 시판되다.
A1-A6 , 1954년에 발매를 시작하는 A7,
1960년대에 들어서 나오는 A8, A9, A10 입니다
인기가 있었던 모델은 70년대를 전후해서 발매된 515B 우퍼와 288-16G를 채택한
A5시스템이었다.
515우퍼는 515, 515B,515C,515E순서로 이어 지는데 515E부터는 페라이트입니다.
515 픽스트엣지가 대접을 받는것은 후기형들에 비해 500헬즈 컷팅이 용이하다는 것입니다
288드라이버는 288, 288B, 288C, 288D, 288-16G, 288-16H, 288K( 페라이트)로 이어집니다.
288B는 중역대가 리얼하며 관악기보컬에 장점,288a는 음악성이 우수하다
828인클로져의 저음 부족은 정평이 나 있습니다.
515계열 저역 재생능력이 30hz까지 내려감에도 불구하고 828에서는 60hz언저리에서
급격히 감소한다고 합니다.오디오용이 아닌 PA용으로 제작되어 중음특성이 강조하다 보니 이러한
현상이 나타나는것 같으며,, 이 828인클로져의 저음 부족은 유저의 불만이 되어 온게 사실입니다.
828은 일단 825보다는 가격이 싸ㄷ다.단단한 중역의 특성을 살리기위해서 보통 825통을 선호를 합니다
통 나무를 깍아 혼 개구부를 만든 825통,선호하는 드라이버는 역시 288a입니다만 제대로 된 헐리웃 버전을 구하기가 어렵습니다.
네트워크 n500c,n500f
혼(드라이버에 붙여서 쓰는 혼)1005,805,1505
sacd 등이 나와서 초고역의 소리를 원하는 분들에게는 고음용 유닛인 수퍼 트위터를 붙여서 사용할 수도 있습니다.
수퍼트위터를 사용하면 3way 스피커가 된다,
515B, 515C는 좁은 장소에서는 3Way용(300헬즈로 컷팅)으로 사용도 가능해 보입니다
515A 종이엣지의 가볍고 유연함이 후기형 주름엣지보다 500헬즈 근처에서 우위에 있다면 이 우퍼로 2Way 구성이 우위에 있게된다.
알텍 A5나 A7은 50hz 이하는 재생되지 않습니다. 그 이유는 설계시 정확한 영화대사 전달에 중점을 두었기 때문입니다.
이것을 현대소스에 어울리도록 주파수를 내리는 방법은 스피커 전면에 있는 구멍 크기를 몇 분의 일로 줄이면 됩니다.
1)288-16G 드라이버에 1005혼(500 Hz에서 15,000 Hz), 그리고 515 우퍼로 구성
2)알텍 최초의 드라이버인 288 2쌍에 1505 혼, 그리고 우퍼는 515B . 160W 출력의 알텍 1570 파워 앰프..
3)유명한 1005 타르혼에, 288B 드라이버에, 515우퍼에, 오리지널 통
4)우퍼는 "515B(50에서 1,000 Hz)"를 사용하고,H.F Driver는 "288C(500 Hz에서 15,000 Hz)"를 씁니다.
크로스오버(Network)는 "N500-C"에, 인클로저는 "825"이며,
혼 스로트(Horn Throat(나팔과 고음 스피커를 연결 해주는 부분))는 "30162"를 사용.
그리고 30162 혼 스로트는 반드시 "805" 계열 나팔(Horn)에 부착되어야하는데,
다른 것을 사용하지 못하는 이유는 혼 계열이 달라지면 혼 스로트의 규격도 달라져야 하기 때문입니다
altec red 515 우퍼,altec red 288드라이버

오리지날 콘지,진동판의 중요성은 아무리 강조해도 지나치지가 않습니다


|

ALTEC 288-16G

40년대 오리지널 828통
알텍 515A 우퍼
알텍 288B 드라이버
알텍 1005 타르혼
오리지날통에 우퍼는 515, 드라이버는 288B 혼은 1005 네트워크는 N-500F 구성
Altec 288c 24ohm, 515b 16ohm, 1005b, N500C
N500C
288C HF 드라이버, 515B 우퍼, N500C 크로스 오버, 805B
Altec 802D 16 옴

오리지널 A5 스타일의 스피커 캐비닛,초기 IPC 515 우퍼,88 드라이버, H-1505 타르 혼,Altec Lansing in Hollywood CA.
IPC Altec Lansing
cabinet measures 77'' wide at the front, 35'' deep and 42'' tall
Low Frequency Drivers
| Model | Tenure | Original Impedance |
AES Power rating | Recommended replacement diaphragm |
Comments |
515 |
1945-1955 | 16-20 Ohms | 35 watts | R515-16G, 75W R515- 8G, 75W |
Original 515, has great midrange, lacks low bass. |
515B |
1955-1978 | 16 Ohms | 75 Watts | Same as above | Has great low bass, impedance drops below 16 ohms in earlier versions at midrange. Later reconed units lack midrange. Recone with 515C series cones for bass horns will solve this problem. Works great in vented bass with standard cone. |
|
|
1978-1982 | 16 Ohms | 75 Watts | Same as above | 16" frame version of 515B. has regular constant impedance voice coil, lacks mids in horn enclosures. Great vented box woofer. Same remedies apply as 515B, last Alnico magnet 515. |
| 515E | 1982-1984 | 16 Ohms | 75 Watts | Same as above | Ferrite magnet version of 515C. Lacks even more mids in horn enclosures. Don't use in larger VOT cabinets (210, 211). Great vented box woofer. Ok for A5, A7. |
![]() 515G Series |
1984----- | 8, 16 Ohms | 75 Watts | Same as above | Newest version of 515C. Built exclusively for horn enclosures. Don't use in vented or sealed boxes. Works better than any previous model. Great woofer. |
High Frequency Drivers
|
|
|
Impedance |
Rating |
Replacement Diaphragm |
|
![]() 288 |
1945-1949 | 20-22 Ohms | 20 Watts | 20221 24 ohms 25885 16 ohms 25884 8 ohms |
First permanent magnet high quality theater high frequency driver. Magnetic shorting ring must be removed by Altec factory before installing new diaphragm. |
| 288B | 1949-1959 | 20-22-24Ohms | 20 Watts | Same as above | Has deeper top plate than 288, otherwise similar to 288. Also must be converted by Altec before rediaphragming. |
288C |
1959-1972 | 24 Ohms | 20 Watts | Same as above | Similar to 288B, has no shorting ring, however ought to be remagnetized. |
288D |
1959-1970 | 16 Ohms | 20 Watts | Same as above | 16 Ohm version of 288C |
| 288-8E | 1970-1972 | 8 Ohms | 20 Watts | 25884 8 Ohms 50 Watts |
8 Ohm version of 288C. |
![]() 288G Series |
1972-1979 | 8, 16, 32 Ohms | 20 Watts | 34400 32, 20W 25885 16, 50W 25884 8, 50W |
Improved larger Alnico magnet models, has 2 db more sensitivity over previous units. Also 2 db more output over 10KHZ. |
| 288H Series | 1979-1980 | Same as above | 20 watts | Same as above | Has new radial phasing plug, some increase of extreme high frequency performance over 288G, same magnet. Last of Alnico magnet models. |
| 288K Series | 1980-1987 | Same as above | 20 watts | Same as above | Ferrite magnet version of 288H. Same specifications. |
| 288L Series | 1987----- | 8,16 Ohms | 20 watts | 25885 16, 50W 25884 8, 50W |
Virtually identical to 288K. Built to more stringent tolerance. |
![]()
|
1968-1973 | 16 Ohms | 40 watts | 25885 16, 50W | Composite diaphragm version of 288C. Has somewhat less high frequency performance and less transient response than 288s. Later 291s followed magnet development of 288s. Rediaphragm with 299 diaphragms. |
299A |
1987----- | 8, 16 Ohms | 50 watts | 25885 16, 50W 25884 8, 50W |
Newest Altec high frequency driver. Has good sound of 288 with 2½ times the power handling. Costs less. Use this unit whenever possible. When rebuilding older 288s or 291s, use its diaphragm. |
클래식을 잘 재생해 내기위한 방법-이규영님글입니다.
알텍스피커를 잘 다듬어 놓으면 클래식 공연소리와 가장 흡사한 스피커란 것을
거듭 강조하고 싶을 뿐입니다.
알텍으로 클래식을 재생하지 못하는것은 알텍유닛 잘못이 절대 아닙니다.
A5든 A7이든, 페라이트든 알리코든, 픽스트든 주름이든, 초기형이든 후기형이든...
그 잘못은 1차적으로 클래식엔 써선 안될 828통,멀티셀혼,오리지날 네트웍에 있다고 생각합니다.
알리코 초기형을 달아논다해서 무조건 클래식을 잘 내주지 않습니다.
알텍으로 클래식을 잘 울려주고 싶다면....
저역을 홀쭉하게 하고, 중역에 왜곡을 줘 버리는 828통은 버리고,
고역을 산만하고 건조하게 만들어 버리는 멀티셀혼을 버리고,
위상문제와 부품의 한계가 지나친 오리지날 네트웍을 버리는것입니다.
그 다음으로 엠프쪽에 매달려야 합니다.
민감하고 솔직한 알텍스피커에서 엠프에 따른 소리차는 하늘과 땅일수도 있습니다.
솔직히 트랜스방식이 아니면 안될만큼 엠프를 많이 가린다는것을 확인했고 회로에따라서
부품에 따라서 전혀 다른음을 내 주기에 엠프엠프 하는것입니다.
1.인크로져
항상 외치는 얘기이지만 828통으로는 품위있는 클래식을 재생하질 못합니다.
흔히들 클래식은 저음이 없어도 된다고 생각하지만 현장음을 잘 들어보면 스피커에선 엄두도 낼수 없을만큼
엄청난 저음이 쏟아져 나옴을 알수 있습니다.
828통은 정보를 또렷히 멀리 보내기 위해 저역을 인위적으로 롤오프 시키고 중역을 강조할수 있도록
만들어진 통입니다.
예로 극장에서 828통 대신 베이스 리플렉스통을 사용한다면 뒤에 앉은 사람은 벙벙거리는 소리만 들릴것입니다.
극장에선 828통을 사용하지 않으면 안된다는 말씀입니다.
그런데 극장에서 나오는 풍성한 저역은 828통에서 나오는 저역이라기 보다는 큰 공간의 울림에다
이 통을 썼던 대부분의 극장이 828 가운데다 서브우퍼를 사용했었습니다.
이러한 이유로 특히 가정의 좁은 공간에서 클래식 전용으론 중음이 왜곡되고 불룩 터져나온
'기형혼통'보다는 피라밋형태의 평탄한 음상을 제공하는 베이스 리플렉스통이 훨씬 유리합니다.
클래식을 잘 울리기위해선 젤 먼저 828통을 버려야합니다.
베이스 리플렉스 통중에서는 606통이 정평이 나있고 또 다른 대안이 없어 보입니다.
다만 통을 제작할때 반드시 오리지날 도면에 충실해야합니다.
606통에는 네모막통에 없는 장점이 있습니다.
이 통의 구조는 우퍼 뒷면이 삼각형으로 되있어 백로드 혼과 같은 역할을 하는것 같습니다.
그래서 중역대의 밀도감과 강렬함이 828에 전혀 뒤지지 않습니다.
이통의 저역이 풀어진다고 생각하신분들은 무엇인가 큰 잘못이 있을겁니다.
정사각형 기둥한쪽 모서리를 싹둑 잘라낸듯한 기묘한 구조에 카리스마가 펄펄 넘치는,
알텍유닛특성을 잘 살려주는 통이라고 생각됩니다.
다만 이통을 만들때 반드시 오리지날 도면에 충실해야 그 가능성을 최대로 끌어낼수 있을겁니다.
사이즈는 말할것도 없고 내부 보강목 크기와 붙임형태,통의 접합형태등에도 일체의 오차가 생겨서는
안된다고 봅니다.
재질로는 자작나무 합판이 젤 좋아 보이지만 MDF도 전혀 손색이 없을것 같습니다.
ALTEC(알텍) 606 오리지널
ALTEC(알텍) 606 오리지널 통
[알텍 606통 튜닝포인트]
1.흡음
흡음제는 전면 배플과 천정부분은 떼내야 소리가 맑아집니다.
배플은 어느 스피커나 마찬가지이고 4각통의 경우 서로 대칭되는 면중 한쪽은 흡음처리를 하지 않아야 하는데
606통은 상하말고는 대칭되는 면이 없습니다.
제작자께서 천정까지 친절하게 타카로 팍팍박아서 보내주셨는데 워낙 단단히 박혀 그놈들 떼 내는데만
3시간 넘게 걸렸습니다.
천정 한군데 빈곳을 확장하는것 만으로 저역의 양감과 투명감을 동시에 얻을수 있습니다.
오리지날 도면도 잘 살펴보면 바닥과 사이드의 언급과는 달리 천정과 배플에 흡음처리하란 말이 없습니다.
이래도 저음의 탄력이 부족하면 뒷판쪽 흡음면적을 조심스레 조절하면 저역의 풍성함과 낭낭함을
맘껏 누릴수 있습니다.
이번에 사용된 흡음제는 압축 카시미론입니다.
2.위상맞춤
828통을 쓰다가 이통으로 바꾸면 유닛 위치변화에 따른 위상변화가 발생합니다.
즉 828통은 우퍼와 드라이버의 자석이 일치하는 형상이 되고 606통은 음구가 일치하는 형상으로 바뀌게 됩니다.
드라이버의 접속을 바꿔줘야 위상이 맞습니다.
그냥 사용하면 중역에 빈소리가 납니다.
어떻게 들으면 고역이 더 맑게 들릴수 있지만 그건 중역이 빠져서 그렇습니다.
그간 주장했던 이론과 실제가 정확히 일치합니다.
3.네트워크
828통에 맞춰 제작된 네트웍이나 오리지날을 그대로 적용하면 재미를 못볼수 있습니다.
실제로 첨에 시정수 조정없이 그대로 붙여보니 중고역 소리가 영 부담스러웠습니다.
이번일로 스피커는 위상싸움이란 말이 어렴풋 보이며 스피커란 참으로 어려운 부분이란것을 다시한번 실감했습니다.
이래서 전 스피커 시스템, 특히 인크로져와 네트워크쪽엔 감히 손을 대려하지 않고 고수가 시킨대로 쓰고있습니다.
스피커를 맘대로 주무르는 사람을 보면 존경이란 말 외에는 떠오르지 않습니다.
보강목은 꼭 필요합니다.
가급적 도면에 나온 2인치로 맞춰주는게 좋습니다.
배플판의 나사못 고정은 도면에 그렇게 되 있습니다.
알텍 통들이 간간이 이렇게 되 있습니다.(612등)
아마 그릴교체시 풀기위함인것도 같고 뭐 다른 이유가 또 있는지 모르겠지만
암튼 시킨대로 만들었을 뿐입니다.^^
우리 생각을 함부로 대입해서는 안되는게 스피커 통이 아닌가 합니다.
배플판은 예전의 방식이지요.
예전에는 유닛을 안에서 고정시키게 된것들이지요.
요즘들어서 전면에서 유닛을 붙이는 방식일 경우에는 배플판을 빼는 일이 다반사이지만.....
유닛을 안에서 붙이는 방식이면??? 배플판을 뗄일이 없어던 게지요.
안에서 붙이는 방식인 경우에는...뒤판의 고정에 문제가 있어서 요즘은
전면에서 고정하는 것을 선호하는 것으로 압니다
알텍 스피커라는게 완성품이라기 보다는 유닛을 공급하고 나머지는 유저가 알아서 하는 면이 많습니다.
특시 A5의경우 알텍사에서 전체를 만들어 세트로 내 놓는경우는 거의 없습니다.
그래서 오리지날 통이라는것 자체가 있는가 의문이 가는면이구요.
다시 정리하면 알텍은 유닛의 완성도는 하늘을 찌르는데 명기로 분류되는 알텍사 엠프와 혼, 네트웍, 통등은 업무용인 경우가 태반입니다.
이놈들을 좁은 가정에 들여놓다보니 고행이 시작되는것이고, 이러한 불완전한 요소때문에 알텍이 어려운것이라고 생각해버려 오르다가 포기해버리는 경우가 많이 발생하는것 같습니다.
즉 제가 주장하는것은 되지도 않을 알텍 오리지날리티만을 고집하지 말자는 것입니다
스피커 한대로 실연에 가까운, 능가하는 음을 재생하는데는 알텍말고는 없다고 봅니다
스피커라는게 매칭엠프에따라서 소리가 천차만별이므로 섣불리 판단해 버려서는 안된다고 봅니다.
예로 탄노이에 알텍엠프는 잼뱅이기고 알텍스피커에는 탄노이에 좋다는 멕킨파워는 실패할 확율이 아주 높듯이요.
같은 엠프일지라도 튜닝기술에 따라 또 천차만별, 잘만하면 기가막힌 음을 만들어 낼수 있습니다.
튜닝은 꼼수가 아니며 정확한 데이터와 이론을 기본으로한 '기술'이라 말하고 싶습니다
알텍 604A를 사용하고 있습니다.들여 놓고 흔히들 말씀하시는 여러가지 문제점(?)들을 해결하고자 노력한 끝에
현재는 프리 마란츠7C,파워는 알텍 127A를 연결해서 나름대로 만족하고 있습니다.
스피커 인클로져는 606타입으로 시스템은 거의 정점에 다다른것 같습니다.
유닛은 두말할것도 없고 프리나 파워, 통까지 개선의 여지가 없어보입니다.
606통의 마무리
1.515C로의 교체
우선 알텍이든 JBL이든 만고의 진리중 하나가 혼타입에는 픽스트 엣지를, 베이스리플렉스 타입엔
주름엣지를 쓰는게 정설인것 같습니다.
반대로 셋팅한다고 해서 큰 해가 되지는 않지만 참고할만한 내용이 아닐까 생각됩니다.
알텍 A5용 주름엣지로는 515B와 C를 꼽을수 있습니다.
515B와 C의 진동계수가 약간 틀리다 하고 C야말로 저역특성이 대폭 개선된 <베이스리플렉스 전용>이라고 하는데
일단 외모적으로 봐선 515B가 더 빈티지적인고로 우선 그놈을 구해보기로 했었습니다.
2. 515A vs 515C (in 606A)
역시 예상대로 515C가 A에 비해 저역에서 동글동글한 표현이 일품입니다.
아주 맑고 풍성하면서 통통거리는 저음을 재생해 줍니다.
그런데 중음대에선 뭔가 좀 서운한 느낌을 받게 되는데 515A의 중음에 익숙해져서 그런지
여러 환경이 달라져서 그런지는 잘 모르겠습니다.
확실한것은 팝이나 가요에서는 C쪽이 저역표현력에선 월등해서 입이 쩍 벌어질 정도입니다.
그렇다고 클래식에 잼뱅이란말은 아닙니다.
클래식에선 상대적으로 A와의 차이가 많지 않다는 의미입니다.
어차피 606통에서는 '그릉그릉'한 저역을 듣고 싶어 주름엣지를 쓸 요량이었으므로 515A를 재 설치하여
다시 비교해 보지는 않았지만 606통에서는 A도 충분한 저역의 맛을 느낄수 있을것 같다는 생각이 듭니다.
다만 원칙에 충실하기 위해 C를 선택하였고 벌려놓은게 많아 그놈의 돈때문에 손실을 감수하고 A를 내쳐버렸지만
언젠가 C가 물리면 다시한번 매달아보고 싶은 생각입니다.
515C로 변경시 저역보정필터가 있는 한상현님 네트워크의 경우 약간의 수정이 필요합니다.
필터의 탈부착에 따른 음의 변화가 상당하니 꼭 시행해야 합니다.
다시 말씀드리지만 828통에서 606통으로 변경시 네트워크의 시정수를 변경해서 위상맞춤도 필수입니다.
이부분도 하늘과 땅처럼 극명한 차이를 드러냅니다.
이러한 사실을 견주어 볼때 오리지날 네트웍을 그대로 적용하면 606통에서도 실패할 확율이 높지 않을까 우려됩니다.
왜냐면 606이 828보다 더 민감함을 느꼈기 때문입니다.
3. 흡음제
오리지날이라고 하는 606통을 살펴보면 뒤판 두쪽에 흡음제가 없습니다.
도면도 잘 살펴보면 아래와 좁은 측면말고는 뒷판에 붙이란 지적도 없구요.
다만 끝까지 해보지 않고는 견딜수 없은 호기심때문에 전부 붙여서 들여놨고 요 며칠간 뜯어내 가며
실험을 해 봤습니다.
전에 828도 이런 지독한 수고를 했는데 이번에도 흡음제 뜯어내느랴 고생을 좀 했더니 참으로 징합니다!!!
뒷판 두곳 흡음제를 뜯기전엔 대각선으로 걸쳐지는 삼각형 흡음제가 나쁜작용을 하는것 같더니
흡음제를 뜯어내고 삼각형흡음제를 넣으니 소리가 단정해 짐을 느낄수 있습니다.
삼각형 흡음제를 빼놓고 쓸려하니 원도면에 위배되는것 같아 웬지 꺼림찍하더니 결과적으로 뒷쪽 흡음제는
제거해 주는게 원칙인것 같습니다.
흡음제 제거가 번거로우면 삼각형 흡음판을 빼버려도 좋습니다.
우퍼를 바꾸고 흡음제 튜닝을 다시하니 저역은 한단계 더 내려감을 느낍니다.
스펀지 엣지들처럼 걸쭉하게 끈적끈적한 저역은 아니지만 돌덩이처럼 탱글거리는데다
으릉거리며 짖어대는 저역은 좀 부담스러울정도입니다.
전체적인 바런스는 828에 비해 훌륭하지만 우퍼가 현대(79년산)에 제작된것이라 그런지 515A에 비해
해상도가 증가한것 같고 덩달아 중고역의 윤곽도 더 선명해짐을 느낄수 있습니다.
이제 문제는 대음량에서 중역대의 강렬함을 좀 줄이고(절대 쏘지는 않습니다.)홀톤과 임장감을 만들어 내는것입니다.
예전에 <클래식을 위한 알텍2>에서 언급했듯 알텍스피커로 현장음을 넘을수 없는 부분이 있다면
그건 넓은 무대감이 아닌가 합니다.
좁은공간에서 흔히들 쓰는 알텍 통으로는 저역쪽 홀톤이 살아나지 않는게 유일한 흠이라고 생각합니다.
이를 살리는 길은 하츠필드,바이타복스,오토그라프처럼 인크로져에서 승부를 내봐야 하지만
그런 인크로져 짠다는게 거의 불가능에 가깝고 또 그렇게 하더라도 알텍만의 장점인 중역대의 강렬함을
잃어버릴 우려가 있습니다.
또 이런 미로형 인크로져는 특정 쟝르에서는 <불구?>가 되버리는 치명적인 단점을 갖게될 가능성이 있구요.
하츠,바이타,오토에서 가요나 팝 재즈는 감상자체가 불능상태에 있는놈을 몇 봤기때문입니다.
그러면 어떻게 할것인가?
그것은 알텍 인크로져를 그냥 사용하되 넓은 공간을 확보하든지 엠프에서 해결해야할 숙제입니다.
넓은 공간을 확보한다는게 거의 불가능에 가까운 방법이므로 어느정도 한계는 있겠지만 엠프에서
소리를 좀 뭉게주는 쪽으로 시도해 보는수 밖에 없어 보입니다.
소리가 너무 맑고 탄탄해서 좀 뭉게버린다?
바보를 천재로 만들수 없지만 천재를 바보로 만들수 있듯 명료한 소리를 좀 밟아버릴수는 있을거란
생각에서 이런 표현을 해 봤습니다..
세상에...너무 투명해서 흐트려버리고 싶다는 엄살은 알텍유저 말고는 할수 없을것입니다.
고역부터 초저역까지 악기 하나하나가 지나칠만큼 정확하게 표현되는게 흠아닌 흠이 되어버렸지만
안락의자에 기대 뒤로 약간 누우면 무대가 우퍼 아래까지 쫙 깔리는게 신기할 정도입니다.
아마 위상이 맞아떨어져서 이러한 기현상?이 나타다는것 같으며 이젠 805혼의 단점(고역건조,산만,메가폰 효과)이
더욱 부각되서 우드혼에 대한 마음이 급해지지만 606통으로의 교체... 대만족입니다.
3-1 혼
이 부분도 멀티셀 혼을 버려야 질좋은 클래식을 들을수 있습니다.
이놈으론 아무리 노력을 해도 상큼하고 낭창낭창한 고역을 들을수 없습니다.
멀티셀은 혼의 구조상 고역을 잡아먹어 쉬 건조하고 산만해지기 때문입니다.
물론 2WAY에서의 경우이고 트위터를 첨가한다면 고역깍임을 어느정도 개선할수는 있을겁니다.
또 정교한 클래식 감상에서 정위감은 무엇보다도 중요한데 멀티셀은 이 부분이 쥐약입니다.
구멍이 많아질수록 고역특성과 정위감이 비례해서 나빠지고 밀도감마저 사라져 강렬한 혼 맛도 잃게 됩니다.
멀티셀 혼은 극장이나 공연장 같은데서 여기 저기 흩어져 앉아있는 많은 사람에게 정확한
정보를 전달코자 만든것이지 고품위 음악을 재생하기 위해 만든것이 아니란 사실을 간과해선 안될겁니다.
A7혼으로는 511타입의 지수혼이 가장 좋지만 혼 울림이 심해 데드닝은 필수있고
A5혼으로는 511 펑튀기 311-90정도가 대안이기는 하지만 이도 단점 투성이어서 차선책 이상은
되지 않을것 같습니다.
4.네트웍
저 개인생각으로 알텍 네트웍은 유닛의 완성도에 비해 너무나 허접하다는 생각을 떨칠수 없습니다.
도데체 왜 이렇게 만들었을까 도저히 이해하기도 어려울 만큼 알텍 스피커의 실패작이라고
단언하고 싶습니다.
오리지날 네트웍을 고집해 가지고는 질좋은 클래식을 듣기에 요원하다는 생각뿐입니다.
다만 팝이나 가요에서는 까실한 소리가 색다른 맛을 내기도 했습니다.
5.엠프류.
프리엠프로는 트랜스 방식이 알텍에 상성이 좋다고 알려져 있지만 여타 CR결합방식도
훌륭하게 재생해 줍니다.
파워엠프도 6L6계열이 좋다고는 하지만 5극관PP는 어느것도 무난하다는 것을 느꼈습니다.
즉 사용 관보다는 설계방식이 중요하다는 생각이 듭니다.
당연히 알텍엠프 방식이 잘 어울리는것 같으므로 다른 방식은 연구대상에서 제외시켰습니다.
알텍스피커용 엠프는 가급적 심플하면서도 완성도 있는 엠프가 우선인것 같습니다.
극관 PP도 음악성은 뛰어나지만 가늘어진 음색이 알텍에는 어울리지 않는것 같아 망서려 집니다
606통과 우드혼에서 나오는 말러 3번의 유려함에서 <종소리>가 또렷히 들려왔습니다.
알텍은 있는 그대로 가정용 이면가정용 업무용 이면 업무용 으로
들어야 할것임니다 어느한부분 이맘에들지 않는 다고개조하는것은
그순간은 만족할지 모르나 결국은 개조한것이 오리지날 만 못하다는
것을 시간이 많이지난후에 깨닫게되지요 알택스피커도 여러종류가
있으니 자기취향에 맞는것을 잘선택해서 듣는것이 좋을듯싶음니다
오리지날을 사용할수 있으면 얼마나 좋겠습니까만 알텍에서 가정용은 꿈에 용보기이고 들을만한 기기라고 생각한놈들은 모두 업무용이라서 저도 괴롭습니다.
제가 아는 가정용이라고 생각되는 스피커에는 820A,라구나,마그니피슨트,발렌시아,플라맹고등이 있지만 앞 두명은 성능에 비해 너무 고가이고 뒤에놈들은 성에 차질 않습니다.
내가 좋아하는 A5쪽으로는 가정용이 없는걸로 알고 있는데 두툼한 스케일감이 A7하고는 비할바 없어 목숨걸고 사모하는 A5를 버려야 하는지요.ㅠㅠ
프리엠프로는 가정용으로 욕심난놈을 찾은적도 본적도 없으며 업무용으로 쓸만한게 한두조 있지만 그냥 듣기엔 성에 차지가 않습니다.
파워엠프도 가정용이랄만한 놈들은 극히 한정되어 있고(333A정도?) 대부분 명기라할만한 것들은 모니터나 극장에서 업무용으로 사용되었습니다.
그리고 저는 거실에서나 자동차에서나 다른일을 한다든가 하면서 음악을 흘려듣는 일은 절대 없으며 전용감상실에서 음악당에서 듣는것처럼 옷깃을 여미고 눈을 감고 최대한 집중해서 듣습니다.
그렇다 보니 오디오기기의 조그만 단점도 용서할수가 없어 아직도 극단을 향해 고행을 서슴치 않고 있습니다.
그래서인지 내 나이보다 오래된 기기들에서 맑고 투명한 음감을 살려낼 방법이 없는지라 오리지날 조합은 단 한가지도 욕심나지 않습니다.
그냥 유닛과 트랜스류 외에는 소유하고 싶은게 하나도 없기에 고가의 기기일지라도 분해해서 다시 제작해 쓰기도 합니다.
여기서 또 취향이란 말이 나와버릴것 같지만 아무쪼록 평생 후회하지 않을 오리지날 조합,특히 본문 취지에 맞게 클래식을 잘 울려주는 조합에 대해서 자세한 설명과 함께 추천해 주시면 방황하는 클래식 알텍맨들에게 큰 도움이 될것 같습니다.
또 오리지날 기기로 정말 감칠만한 소리를 내는 분들이 어딘가엔 계실테인데 아직 발견하지 못했으니 소개해 주셔 일청할 기회를 주신다면 큰 은혜일것 같습니다.(특히 A5쪽)
저도 오리지날 기기로 빈티지 콜렉션의 즐거움과 함께 질감있는 음악을 듣는 두마리의 토끼를 잡고 싶어서 입니다.
먼저 이 글을 쓰기 전 이 모든 내용은 제 개인적인 취향과 경험에 의한 것이며 대다수 알텍 애호가가
만족스럽게 사용할것 같은 알텍오리지날 기기에 대해 폄하한 부분이 있더라도 너그럽게 이해해 주시길 부탁드립니다.
혹시 다른 의견이 있으시면 가급적 경험과 이론을 곁들여 피력해 주신다면 저 뿐만 아니라
알텍동호회 발전에 한몫을 할 것이라 믿고 싶습니다.
한 5년간 처자식을 뒤로하고 앞만보고 뛰다보니 이제 이 정도면 A5의 종점까지 왔다고 자평하며
조만간 A4로의 도약을 준비중에 있습니다.
유닛은 물론이고 우드혼,네트웍,프리엠프,파워엠프,포노이큐까지 제 눈에는 더 이상 보이는 것이
없기에 이제 종착역, 마무리라고 자신있게 얘기하는 면도 있을겁니다.(내 자신도 안믿지만...)
거기다 최근 완성한 파워엠프를 튜닝하면서 '일신 우일신' 한없이 좋아지는 소리에 지독한 폭염마저
깡그리 잊어버리고 있습니다.
아무리 자기도취에 빠져있다고는 하지만 요즘 추세라면 어떠한 쟝르도 가리지 않고 기가막히게
재생해 내는 클래식 소리에 돌아버리겠습니다.^^
<클래식을 위한 알텍>이란 제목으로 두번에 걸쳐 피력을 하였고 첫번째 글과 중복되는 면이 많이 있지만
어쨌든 이제야 명실공히 클래식을 위한 알텍이 되지 않았나 생각됩니다.
왜냐면 515A로 회귀하면서 픽스트 엣지가 역시 클래식쪽에서는 우수하다는 것을 재삼 확인하였고
팝이나 가요등 다른 장르의 음악은 잼뱅이가 되 버린것 같아 아예 듣고있지 않은것으로 봐서
비로소 클래식 전용 스피커가 되 버렸다는 반증을 얻었기 때문입니다.
얼마까지만 해도 알텍만큼 모든 장르의 음악을 잘 소화하는 스피커가 또 있겠느냐 자신감을 보였었는데
픽스트와 주름엣지 우퍼를 면밀히 비교해 보고 알텍도 결코 만능은 아니란것을 깨닫게 된것입니다.
또한 모든 오디오가 그렇지만 특히 종류가 다양한 알텍은 좋든 싫든 자신이 끝까지 해보지 않고는
그들의 장점을 추려낼수 없다는것 또한 눈치채게 되었으니 또 하나의 소중한 경험을 하게된것 같습니다.
그간 저의 A5 분투기를 보고 어떤 분이 ‘모디파이’라고 칭해서 알텍 정통을 벗어나는 것 같아
내심 불편했지만 이제보니 꼭 나쁘게만 생각할 일만은 아닌 것 같습니다.
왜냐하면 알텍 A5 이상 기종은 PA용임이 분명하며 가정에서 PA할 일은 없기 때문에 모디파이하지 않고는
질좋은 ‘음악’을 듣기가 어려워 보여서 입니다.
독특하고도 완성도 높은 알텍유닛에 비해 일부 시스템은 음악성에는 거리를 둔 것도 볼수 있어 아쉽기도 합니다.
혼형 인크로저, 멀티셀 혼등은 어디까지나 넓고 큰 장소에서 음성정보등을 많은 사람에게
정확히 전달하기 위한 고육책일 뿐 좁은 가정에 들여놓고 음악들으라 설계해 논 컨셉이 아니라는 것입니다.
다만 중요한 것은 오리지날이라고 일?는 기기들을 써보지 않고는 다른 기기의 장단점을 헤아릴수 없기에
꼭 한번은 거쳐야해야 할 숙명이라고 생각될 뿐 오리지날 구성이 진정한 알텍이요, 진정한 소리(음악)라고
생각하지 말아야 하지 않을까 하는게 제 작은 의견입니다.
[사진]
알텍 A5로의 클래식 재생에 종지부를 찍게 해 준 우드혼,288A와 515A유닛
[클래식엔 몹쓸 알텍?]
예전에 <클래식을 위한 알텍3>글을 올렸을때 어느 동호인이 전화로 다짜고짜 하시는 말씀이
"도데체 알텍으로 어떻게 클래식을 듣는다 그러시요?"
"클래식을 울려줄 스피커가 알텍밖에 없다는 말로 보이는데....어처구니가 없구료"
어처구니 없는것은 바로 나란 생각에 기가 찼지만 그렇다고 쌈질 할수가 없어 이를 악물고......
"아~ 그말이 아니고 알텍으로 클래식을 잘 울릴수 있는 방안을 나름대로 언급한 것 뿐입니다"
곰곰히 생각해 보니 그분은 제작년 겨울 606통에 805타르를 쓸때 한번 방문했던분 같은데
독일계와 풀렌지를 좋아하는 분으로 제게 무척이나 풀렌지를 강권했던 기억이 스쳐갑니다.
그런데 제가 동호인을 만나기 전 누누히 강조한 얘기가 바로 알텍당과의 만남이었습니다.
성향이 크게 다른 부분의 애호가가 알텍을 듣고 그리 좋아할리 만무하기 때문입니다.
또한 '나도 알텍을 해 봤는데 아닌것 같아 결국 이리로(다른 계열로) 왔다'는 말씀들도 함부러 하시면
안된다고 생각합니다.
이렇게 어려운 알텍을 얼마나 많은 정열을 가지고 얼마만큼 해 봤는지 객관적으로 검증할수가 없으니까요.
그리고 되는 소리든 안되는 소리든 여기 게시판이 알텍 게시판이라는 것을 잊으시면 안될겁니다.
어쨌든 돈과 시간이 없어 많은 스피커를 접해보진 못했지만 알텍만큼 클래식 현장음에 근접하는 스피커는
없다고 자신하고 있습니다.
물론 세부적인 음색이야 사용기기들과 튜닝 기술에 따라 투박할수도 산만할수도 있겠지만 어느 정도만 다듬어 놔도
알텍에서 나오는 나팔소리는 말할것 없고 북소리,현소리,저역표현,목소리...
어느 하나 할것 없이 완벽할 만큼 현장음에 유사한 소리를 내주고 있습니다.
이러함에 혼신을 다하여 소리를 다듬으려 이토록 고행을 하고 있고 머지 않아 분명히 더블우퍼 채용 A5로
대편성 클래식 재생에 괄목할만한 결과를 만들어 낼수 있으리라 확신합니다.
[자뻑당]
제가 현장음 현장음 외치지만 오디오란게 현장음 보다 더 사실적이고 과장되야만 우리를 현혹시킬수
있다고 생각합니다.
그렇다고 바이얼린 소리가 첼로소리로 첼로소리는 콘트라 베이스소리로 둔갑된 짝퉁이 소리를
중후하고 도톰해서 좋다 해서는 안되겠지요.
가수 입은 얼굴보다 크게 쩍쩍 벌리고 있는데 깊고 그윽한 목소리가 죽인다고 좋아해서는 안되겠지요.
나만 좋으면 되지 무슨 말이냐 반박해도 할말은 해야겠습니다.
아래 게시판에서 <자뻑당>이란 재밌는 말을 발견하고 저도 그 당에 속한것 같아 못내 부끄럽지만
자뻑당이 있기에 수많은 오디오 브랜스가 존재하기는 할겁니다.
스스로 뻑~간다는 자뻑당....
그러나 우린 그 함정에서 빠져나와야 하며 거기서 만족해서는 안된다고 봅니다.
왜냐면 알텍의 가능성은 우리들의 능력에 비해 거의 무한하다고 생각되는데 자뻑에 빠지면
스스로를 우물속에 가두어 놓는 결과를 낳을 공산이 큰데다 그 가능성을 몹쓸놈으로 둔갑시켜버릴
우를 범할수 있기 때문입니다.
또 절대원음이란것은 엄연히 존재하기 때문이기도 하구요.
자뻑당 중에서 어떤이는 살랑거리는 고음만 있으면 해피하고 어떤이는 도톰한 중역만 좋으면 뻑?가고,
또 어떤이는 저역만 때려대면 자지러 집니다.
물론 어떠한 스피커도 위 세가지를 동시에 만족스럽게 내 주는시스템이 없다는게 중론이고
이게 안타까운 현실이라고 생각은 합니다.
그러나 한번 생각해 봅시다.
과연 그러한 치우침과 독특함이 얼마나 갈련지.
그리고 우리가 추구하는 음악의 세계가 궁극적으로 어디인지?
[절대원음을 찾아서]
A5로 클래식을 주로 듣고 계신분에게 자주 음악당에 가보시라 권하고 싶습니다.
오디오에 빠진분들, 특히 자뻑당들은 공교롭게도 음악당에 가는 것에 무척 인색합니다.
내 음악이 최고라고 생각하니 뭐하러 그 번거로운 음악당을 찾아 나설까요?
그러나 관현악이 됐든 실내악이 됐든 성악이 됐든 예술의 전당 1층 중앙 대여섯번째 자리에 라도 한번 앉아 보십시요.
비교적 앞자리이지만 관현악은 전대역에 걸쳐서 얼마나 플랫한가...가수의 목소리는 얼마나 낭낭하고 가냘픈가.....
세종문화회관,국립극장은 예술의 전당에 있는 저역 부스트마저 없습니다.
전에 윤영진님이 극장용 스피커의 개념을 말씀한 적이 있습니다.
스크린에 나오는 얼굴이 엄청 크기때문에 목소리등도 과장되게(빅마우스) 할수 밖에 없다고...
콜롬버스 달걀처럼 생각치 못한 발상이어서 기억에 담고 있습니다.
그런데 이런 스피커를 방안에 들여놓고 과장된 음을 죽인다 죽인다 하는것은 아무리 자뻑당이라
이쁘게 봐주더라도 아니라고 봅니다.
우리는 음악이란 것을 듣기위해 알텍에 목을 메고 있으니까요.
그러면 상큼하고 프랫한 음악특성을 뽑아내기 위해선 어찌해야 할까요?
극장에서 과장된 소리를 만들어내기 위해 사용했던 기기들을 다 버려야 합니다.
중역을 부풀리게 만들어놓은 혼형 인크로져, 빅마우스의 원흉 대형 중고역혼, 투자를 게을리 해 놓은 네트워크등을.....
유닛 하나만 가지고도 알텍 소리가 원없이 나니까 다른 오리지날들을 버린다고 무서워할 필요가 없습니다.
그런다음 수단과 방법을 가리지 않고서라도 플랫한 소리가 나도록 죽어라 튜닝에 들어가야 합니다.
좋다는 기기들을 턱 들여놓은다고 바로 좋은소리가 날리 만무하지만 알텍 유닛특성을 최대한 고려해서
'음악소리'가 나도록 설계해놓은 더블우퍼 막통, 우드혼, 공심코일 네트웍.....
클래식 외 다른 음악엔 단 1%도 눈길을 주고 싶지 않을 만큼 들을수록 매력적인 놈을 보고
알텍엔 클래식에 몹쓸 물건이라고 하시는 분들은 안목을 의심해 봐야할것 같습니다.
갈수록 깊어가는 중증장애인 자뻑당...
오랫만에 떠들고 매맞기 전에 토낍니다...=3=3=3=3
알텍 A5(A7)에서 2way인가 3way 인가?
적지 않은 분들이 A5를 쓰고 있다고 하면 여지없이 트위터를 붙여보라고 권합니다.
스스로를 하수로 치든 고수라 자부하든 예외가 없이 거듭니다.
어떤분들은 16K까지 꽤 높은 스펙을 가지고 있는 288계열 알미늄 다이어프램의 고역을 버려버리고
3way로 설계해 듣고 계십니다.
심한 분들은 '어마어마한' 22k스펙을 가지고 있는 802계열에다 트위터를 붙여 쓰는 기가막힌 일들을
벌이고 있기도 합니다.
전 차라리 3Way로 가고 싶으면 290베이크라이트를 권하고 싶습니다.
290자체가 중역용이고 유명한 rp302나 T350의 진동판 재질과도 일치하니 이또한 이질감이 생기지 않을테니까요.
그러나 알텍에서 290 3way도 적극 권할 방법이 못된다고 생각합니다.
우퍼의 태생한계 때문입니다.
알텍 우퍼(515,803,416등)는 기본이 2way용으로 설계되 있다고 생각합니다.
무슨 우퍼가 2way전용이 있을까 반문하시겠지만 우퍼의 특성을 보면 어렵지 않게 눈치챌수 있습니다.
알텍우퍼 콘지가 대음량에서도 미동도 않는다고 애원하시는 분들이 계시는데 고무엣지처럼
벌렁벌렁 움직여 버리는 우퍼에서 중역표현을 잘 할수 있을지 의문이 갑니다.
즉 알텍우퍼는 2way에 염두를 둔....중역 특성까지 커버해야 하는 무거운 짐을 지고 태어난 놈이기 때문에
그 아까운 중역을 죽여버리고 3way로 가는 것은 넌센스가 아닐수 없습니다.
그런데 문제는 2way의 음 잡기가 너무 어렵다는 것입니다.
저역특성이 좋은(콘지가 무겁고 고무엣지?)우퍼로 250헬즈이하만 담당케 하고
질좋은 중역스쿼코로 1킬로헬즈 전후를 담당케하고
부드럽고 상큼한 트위터로 5키로 이상의 고역을 담당케 한다면 얼마나 음잡기가 행복할까요?
그런데 이놈의 2way는 저역을 살리면 고역이 죽어버리고 중역은 배고프고....
중역을 배부르게 만들면 풀렌지 소리가 되 버리고 고역과 저역을 확 벌려서 나름대로
소리를 냈다고 생각하면 중역이 몹쓰게 되 버리고....
진퇴양란...이 타협점은 처절하리만큼 아슬아슬 합니다.
이래서 알텍이 어렵다고 고개를 설레설레 흔드는게 아닐까요?
그리고 288계열에다 트위터를 권하신분들은 대부분 288고역을 제대로 들어보지 못해서일겁니다.
제가 이 게시판에서 '고역이 툭 터졌네 어쨌네' 까불고 있을때 제가 인정하는 알텍고수는 제집에 올때마다
"288고역이 이러지 않는데 왜 이리 안터지지? 참으로 이상하다"고개를 갸웃 거렸습니다.
난 "아니 이만하면 충분하지 얼마나 더 나오냐 "속으로 대들었었는데 요즘 와서는 한없이 올라가는 고역에
고개가 절로 끄떡여 집니다.
트위터를 붙이는게 꼭 고역만을 신장시키기 위함이 아니라는것을 모르는것은 아니지만
288계열의 뭉게구름처럼 퍼저나가는 유려하고 선열한 가닥추림은 지구상 어느 훌륭한 트위터에서도
찾을수 없을것입니다.
또 2way를 벗어나는 것은 2way를 염두에 두고 만든 알텍유닛에 대한 예의가 아니라고 생각합니다.
거기다 이러한 무한한 가능성이 있는 288드라이버가 쏜다 시끄럽다하여 네트웍과 혼에서
소리를 죽여버리는 일이 적지 않은것 같습니다.
네트웍 드라이버쪽에 큰 감쇄기를 붙여 음압을 확 내려버리는 일은 고역쪽에서 너무 큰 손해를 보기때문에
절대 해서는 안될일이라 생각합니다.
또 얼마전 게시판에 288드라이버와 혼사이에 파이프를 구부려 설치하여 고역이 부드러워 지고
중역이 매끄러워져 부담이 덜하다는 독특한 발상을 본적이 있습니다.
혼 쓰롯이 길어지면 짧은 주파수가 서로 부딪혀 상쇄되 고역이 줄어드는것은 주지의 사실입니다.
고역이 상쇄되니 트롬본처럼 당연 중역이 매끄러워 지겠지요.
288계열 고역을 제대로 들어보신 분들은 그 기가막힌 고역을 인위적으로 줄일 용기를 내지 못할것입니다.
모름지기 오디오란게 주관성이 강하다는것은 모르는이 없을것입니다.
자신만의 독특한 소리를 탐구하고 만들어 가는 오디오맨의 세계는 산보다 높고 바다보다 깊으며
심지어 저의 경우엔 신앙보다 더합니다.
그런데 자신의 오디오에 대한 사랑의 강도와 오디오 음을 만들어내는 기준과 수준은 별 관련이 없다는게
안타까운 일입니다.
그렇다고 다 버리고 풀렌지로 안착하는 분들에게 모든 것을 이루고 '은퇴'한양 추켜 세우기도 하지만
전 결코 은퇴라 보지 않습니다.
어찌하여 중역위주로 나오는 소형 풀렌지가 대형 멀티웨이보다 좋다고 주장할수 있을까요?
풀렌지로의 정착은 은퇴가 아니라 포기라고 봐야 맞을겁니다.
내 오디오관과 맞는 진정한 고수를 만난다는 것은 하늘에 별따기만큼이나 어렵다고 생각됩니다.
그러다 보니 자신만의 세계에 빠져 자뻑당으로 만족하다가 미궁에 빠져버리는 일도 허다한것 같습니다.
이러함에 자신이 가꿔놓은 오디오를 가지고 다른 환경에 길들여져 있는 다른 애호가를 만족시킨다는 것은
발상부터가 무리라고 생각됩니다.
그래서 요즘은 동호인을 함부러 초대하지 않고 있습니다.
절대원음에 가까운 소리에 누구든 고개를 끄떡일때까지 음을 가꿔 낸다는 것은 참으로 멀고먼
작업이라는 것을 하루가 다르게 인식하고 있기 때문입니다.
이 어려운 것을 눈치챘다면 이제야 왕하수에서 빠져나왔다고 봐도 될것 같습니다.^^
항간에 회자되었던 스피커 세팅이나 룸 튜닝에는 자신이 없고 그래도 좀 배워먹었다는 엠프에 승부를 걸고 있는 요즘..
파워엠프 하나만 주물러도 금맥이 줄줄 딸려 나오듯 무한한 가능성을 내 보이는데.....
내가 아직 알지 못하는 다른 곳에 또 얼마나 무서운 소리가 들어있을까 생각하면 몸서리가 쳐집니다.
천하에 몹쓸 A5 ?
처자식도 친구 동창 다른 취미...동호회까지 멀리하게 만든 아주 몹쓸 A5...
작년 이맘때 더블우퍼 A5를 들여놓고 폐인이 다 되가는 느낌이어서 오랫만에 인두를 놓고 몇자 적어봅니다.
근 일년 넘게 잠수했더니 일부 동호인께서 해외로 이민갔나, 회사에서 짤렸나? 궁금해들 하십니다.
신상에 큰 변화는 없고 아직도 대부분 여가를 브레이크 파열된 기차처럼 알텍스피커 탐구에 쏟아 넣고 있습니다.
솔직히 알텍스피커가 뭐 대단한 놈이라고 그놈하고 노는 시간 말고는 모든 시간을 아까워 하다보니
최소한의 대인관계마저 파괴되고 할짓도 아닌것 같습니다.
어떻게 망가졌는지 지나가는 예쁜 여인을 봐도 소 닭처다보듯 합니다.
이짓 말고도 보람된 일이 많을 텐데 자괴하면서도 여기까지 온 이상 오기로 한판 붙고 있는 양상입니다.
노력한 결과 이젠 CD소스로는 말러,푸치니 정도의 대편성은 전대역에 걸쳐 거의 거슬림없이 긁어대고 있는데
포노이큐는 아직 열나게 튜닝중입니다.
아뭏튼 알텍스피커는 지독한 명기이거나 아주 몹쓸 물건같은데 기필코 그 진실을 밝혀 내고야 말겠습니다.^^
솔직히 알텍이란 물건들이 엠프를 보든 스피커를 보든 자세히 살펴보면 업무용은 업무용입니다.
288 드라이버가 어디 야들야들이라도 합니까 515우퍼가 저음을 쫙 깔아줍니까?
A5의 유일한 장점이라야 그 망?할놈의 중역때문인데....
엠프는 어떻습니까?
빈티지 엠프가 대부분 그렇듯 알텍엠프들도 초단관은 임피던스와 증폭율이 살인적인 5극관을 많이들 채용했고
초단 1단증폭으로 드라이브 하다보니 소리는 뭉게지고 박진감이 없는 실정입니다.
이러한 업무용의 한계를 극복하기위해 제 스스로 스피커에서는 오리지날 혼,네트웍,인크로져는 이미 버리고
뭔가 있어보이는 유닛만 취한지 오래 되었습니다.
엠프 또한 알텍 오리지날 엠프에서는 도저히 가능성을 찾을수 없어 그 핵심이랄수 있는
피어리스 트랜스만 적출해서 재제작해 쓰고 있는 형편입니다.
오리지날 오리지날 하시는 분들께는 무슨 씰데없는 얘기냐 하겠지만 스피커에서 나오는 부드럽고
풍성한 저역, 실타래처럼 풀리는 중고역을 들으면 어떤 오리지날에서 이리 나올까 의심되며.
엠프쪽도 솔직히 그나마 젤 쓸만하다는 1520도 같은 피어리스 트랜스와 동일회로로 제작한
KT88PP에 께임자체가 안됩니다.(관값이 대여섯배 차이 나지만ㅎㅎ)
흔히들 자작엠프로 좋은 소리를 내는 경우가 드물다고들 합니다.
자작이라하면 조직이 없이 홀로하는 소규모 제작업체까지 포함시켜야 할것 같은데
당연히 개인이 풍부한 자본과 인력을 보유하고 있는 대형업체를 당할 재간은 없겠지요.
그런데 업무용이 대부분인 빈티지 엠프만 본다면 사정이 달라집니다.
알텍 뿐만아니라 웨스턴 웨스턴 하는 명기들도 트랜스와 진공관의 품질을 빼고 음악성으로 본다면
회로설계에 헛점이 적지 않습니다.
당시 업무용의 한계를 넘을수 없었는지 그 우수한 인력들이 왜 이리 엉성하게 설계를 했는지 잘 모르겠습니다만...
아마 그들은 이 기계들을 가정에 들여놓고 우리같은 환자들이 심취하리라곤 상상을 못했겠죠.
그러니 당시 화두였던 이득쪽에 관심만 가졌지 우리들 감상 환경을 생각이나 했겠습니까?
그래서 우리는 그들이 아주 잘 만들어 놓은 유닛과 부품들을 분리수거?해서 버릴것은 버리고
우리 입맛에 맞게 제구성해야 된다고 봅니다.
어쨌든 안타깝게도 많은 애호가들이 자작 근처에 쉬 갈수 없는 입장이어서 대안이 없기에
손실을 줄이기 위해 기성품을 쓰는수 밖에 없는게 사실입니다.
또 인두는 잡더라도 따라하기가 대부분일수 밖에 없는 아쉬움에 자작의 한계느끼다 보니
자작으론 안되겠다는 결론을 내리겠지요.
암튼 회로를 해석해 설계할수 있고 부품수급능력이 따른다면 자작이먀말로 <천상의 소리>에 이르는
유일한 왕도임을 의심하지 않습니다.
주지하다시피 알텍스피커가 어려운것은 2WAY이기 때문입니다.
저역을 살리려 노력하면 고역이 뻣셔지고 고역을 감칠맛나게 하면 저역이 물러지고
대역을 벌리면 중역이 죽어버리고.....
양날의 칼을 잡는것 같고 백척간두 외줄타기입니다.
중역을 상하가 도와서 만들어야 하고 어찌보면 홀로 넓은 많은 대역을 커버하려 애쓰다 보니
때론 인정받지 못하는 515와 288이 가엾기도 합니다.
대신 3WAY는 세 부분에서 역할이 명확하기때문에 훨씬 가능성이 높고 수월합니다.
그렇다고 알텍에서 3Way는 반댑니다.
515의 탱탱하고 촉촉한 중저역을 포기할수 없고 288고역을 능가하는 트위터는
제 범주에 있지않기 때문입니다.
다음으론 크로스오버 주파수입니다.
물론 이부분도 2WAY에서 파생된 문제인데 A7,A5의 기본 주파수는 아시다시피 500HZ입니다.
500근처야 말로 진정한 알텍소리 같다는 겁니다.
A7의 경우 800스펙도 있지만 중역이 부드럽고 저역이 풍성한 반면 마약성분이 많이 떨어집니다.
A5이상은 이 짓(800)도 못해봅니다.
그래서 알텍입문자에겐 A5를 말립니다.
자신이 직접 엠프등을 튜닝할 기술이 없으면 접근도 하지 말라고 제지합니다.
물론 제가 말하는 알텍 애용은 거실 같은데서 <흘려듣는>것이 아니고
전용공간에서 <작정을하고 듣는>경우를 말하는 것입니다.
거기다 일반 가정집의 낮고 좁은 공간에서는 큰 공간에 비해 몇배의 인내심을 요구합니다.
배경음악정도로 듣는다면 A5든 A7이든 무슨 상관이 있겠습니까만...
엠프를 만들고 튜닝하다보면 어찌 한번 해보겠다는 알텍환자 입장에서 자신의 스피커 시스템과
리스닝 환경을 무시하고 평균적으로 제작된 엠프로 완성한다게 얼마나 무모한 일인가를 깨닫습니다.
즉 엠프자체튜닝은 저비용으로 여러방법으로 음을 잡아갈수 있는데 완성품으로 그 미세한 작업에
도전해야 한다고 생각하면 그 수많은 가능성이 배제됨으로 생각만 해도 정말 아찔합니다.
여하튼 알텍을 무너뜨리기 위해서는 3가지가 필요하다고 봅니다.
풍부한 음악적 경험, 전기지식, 소리판독 기술.....
이 세가지를 동시에 충족하는 분들을 아직 본적이 없습니다.
음악에 박식하면 오디오쪽이 잼뱅이이고 오디오께나 제작하시는 분들은 음악쪽에 너무 빈약하고...
제가 말하는 음악은 악기 편성이 큰 클래식을 말하는 것입니다.
가요나 째즈도 제대로 재생하려면 클래식에 못지 않다 생각하지만 아무래도
악기수가 많은 음악의 재생이 어렵지 않을까.......
저로서는 이것 저것 대충 갖추고 있다 생각하지만 재주많은 사람이 쓸모없듯이
소리 판독과 전기지식 접목에 항상 몇 프로 부족함을 느낍니다.
제 더블우퍼 A5의 궁극적 슬로건은 <강하면서 부드럽게>입니다.
창과방패의 모순이 아닐수 없습니다.
흔히들 알텍은 쏜맛이 있어야 한다고들 하십니다.
맞는 말씀이지만 쏜다는것은 뭉친다는 것을 의미하는것 같아 강렬한 맛이라는 표현이 더 정확하지 않을까 하고....
알텍이 부드럽기만 하면 이건 음악을 듣는게 아닌것 같습니다.
그런데 무작정 쏘대기만 하면 그 또한 아니 듣는것 보다 못합니다.
그리하여 전체적으로 강열하면서도 필요에 따라? 유들한 음이야 말로 제가 도달하고 싶은
<천상의 소리>입니다.
골프에서도 어깨에 힘을 빼야 삑사라도 안나오고 거리도 많이 나오지만 잘 배운 여인들일지라도
멋진폼에 한없이 부드럽더라도 힘이 딸리니 거리가 형편없고 하수?들처럼 어깨에 힘만 가득해도
거리와 방향이 엉망입니다.
고수의 스윙은 부드럽고 아름다우면서 임팩트 순간에 강열한 힘이 실립니다.
고수 알텍 소리도 나긋하다가도 필요순간에 푸른하늘에 쭉 뻗어나가는 공처럼 개운한 소리가 나야 하겠지요....
암튼 이러한 모순을 넘고야 말겠다는 의지는 가상하지만 실현가능성은 보일락 말락 합니다.
그놈을 위해 오늘도 내일도 쓰러질때까지 뛰어볼려 합니다.
그러다 안되면 <알텍은 진짜로 몹쓸 스피커>라 규정하고 어디 능글능글 만만한 3Way 스피커나 찾아 볼렵니다.
우퍼에서 나오는 저역은 안개처럼 깔리고...중역은 강열하면서 유들하고....고역은 상큼 발랄하고.....
2Way 알텍에서 이를 해 낸다면 그는 곧 알텍 신일껍니다.^^
[사진설명]
지난 여름 일찌감찌 정착한 더블우퍼 A5시스템.
(처음 보시는 분을 위해 현 구성을 소개하면 288A+515A더블+한모고수작 네트웍,혼,인크로져)
마지막으로 안개처럼 쫙 깔리는 저역을 위해서 네트웍 설계자와 협상?을 벌이고 있습니다.
지금도 솔티의 말러2번 1악장(LP) 초입부 저역현악기의 뒤틀림은 먼지가 펄펄나고
내장이 끊어질것 같아 놀래 자빠질만 하지만 앙세르메 생상교향곡(LP)의 오르간파이프에서
운무가 펄펄 나오며 구들장을 뱀처럼 뚫고 지나갈 날을 기다리며-김귀환

바로 아래는 서예가 김정식님의
글입니다.
튜닝의 묘미를 알게 해 준 알텍과 클랑필름(서예가 김정식 님의 빈티지 오디오에 대한 글)
메인 시스템으로 재생 음악의 장르에 구애받지 않고 쓸만한 빈티지 스피커를 선택하기 위해서는 많은 고민이 따른다. 웨스턴 일렉트릭의 웬만한 스피커나 클랑필름은 크기도 크기려니와 고가이기 때문에 경제적인 부담이 따르고, 기왕에 탄노이를 쓸라치면 블랙이라야 하는데 이것도 가격이 만만치 않고, 파트리샨을 쓰자니 혼이 많아 밀도감 있는 소리를 내기 어렵고….
이래저래 궁리하다 보면 나중에 남는 것은 알텍이다. A5라면 소리도 괜찮고 가격도 그리 비싸지 않다. 빈티지 스피커의 특성상 가공할 만한 저역은 기대할 수 없지만, 튜닝만 제대로 해준다면 각 장르의 음악을 무난히 소화한다. 바이올린도 좋고, 피아노도 좋고, 재즈 보컬도 좋고…. 주인장의 내공을 그대로 나타내 주는 거울 같은 스피커 시스템이라는 점도 또한 알텍의 묘미다.
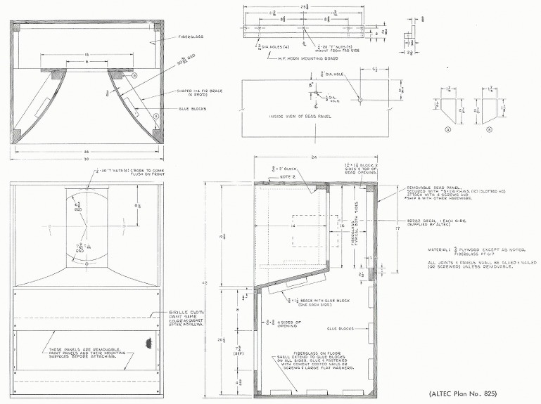
오디오 매니아들이라면 알텍 스피커 A5를 제대로 울리기 위해 많은 시간과 노력을 허비한 경험이 있을 것이다. 필자도 현재 A5를 메인 스피커로 사용하고 있으며 10여 년간 수많은 실험과 청취를 반복, 튜닝 결과, 현재 매니아들이 듣고 매우 흡족해하는 수준이다. 정보를 공유하는 차원에서 유닛의 구성과 튜닝 등의 방법을 요약 정리하였으니 참고가 되시길 바라는 마음이다.


조합 방법에 따라 소리도 천차만별
알텍 A5의 구성은 조합 방법이 여러 가지다. 우선 드라이브 유닛은 크게 288 시리즈와 288-16 시리즈로 나누어지고 혼은 1개, 3개, 5개, 8개, 10개, 15개의 개구부가 있는 것으로 분류되어지는데, 대체적으로 개구부의 개수가 적을수록 컷오프 주파수 대역에 더욱 낮은 쪽(중역)으로 대응할 수 있다고 본다. 또한 우퍼는 15인치 싱글 또는 더블 우퍼를 사용하게 되는데, 싱글 우퍼인 경우에는 N500C를 더블 우퍼인 경우에는 N500F에 매칭 트랜스를 스피커마다 각 한 개씩 두 개를 추가하여 사용하게 된다(N500F를 매칭 트랜스 없이 싱글 우퍼에 사용하기도 하는데 고역이 강해짐).
N500 시리즈의 네트워크의 특징은 독일의 자이스 이콘 스피커에서와 마찬가지로 컷오프 주파수가 500Hz다. 물론 고역을 조절할 수 있는 저항이 부착된 점도 유사하다. 흔히 A5를 두고 '야생마 같다', '쏜다', '초고역이 둔하다' 등 참으로 여러 말들이 있는 것을 보면 다루기가 만만치 않은 기기라고 생각된다. 이 네트워크는 콘덴서와 코일 그리고 저항 등으로 구성되었는데, 콘덴서(8마이크로패럿)의 값이 살아 있으면 별 문제가 없다.
우퍼의 선정에 있어서는 515나 515B를 주로 사용하는데, 이 두 우퍼의 특징은 515인 경우, 콘지와 프레임 사이를 지지하는 댐퍼가 베이클라이트로 되어 있어 전후 운동이 타이트한 반면, 515B는 댐퍼가 주름진 헝겊을 특수 처리하여 전자(前者)의 515보다 전후 운동이 훨씬 부드럽다. 따라서 515B의 선택시는 댐퍼가 타이트하게 살아 있는 것이 좋은 저역을 내어 주게 되므로 주의를 요할 점이다.
흔히 인클로저의 오리지널리티를 중요하게 생각하는데, 통의 재료와 마감이 여러 종류다. 특히 김박중 씨가 제작한 것이라도 2∼3년 지나 잘 말라 있으면 좋은 소리를 내 준다. 인클로저 내부는 흡음제로 다 붙이지 말고 통의 좌측, 하부 그리고 뒷판에만 붙여 주면 훨씬 투명한 저역을 들을 수 있다. 특히, 내부에 네트워크를 장착할 때는 실리콘 또는 고무 부싱 등을 이용하여 통이 울릴 때 잡소리가 들리지 않도록 잘 부착해야 한다.
내부 배선재는 우퍼측과 네트워크 입력단에는 주석 또는 구리선이 좋으며 드라이버측은 반드시 주석선을 사용하는 것이 좋을 것이다.
뒷판은 통울림시 단단히 부착되어 있지 않으면 드르럭 소리가 들리게 되므로 양면 접착 테이프 등으로 둘레를 마감하고 반드시 나사못으로 부착시키되 처음부터 긴 나사못으로 조이지 말고 나사못보다 굵기가 작은 드릴로 구멍을 낸 다음 나사를 박도록 하면 정교하게 작업이 마무리되며 단단하게 조일 수 있다.
A5는 혼 드라이버의 음압이 110dB 정도인데, 288의 경우보다 288-16등이 훨씬 음압이 높다. 각 유닛은 8옴, 16옴 등이 있으며 레이블에 표시가 있지만 좌우의 옴을 잘 맞추어 사용하는 것이 중요하며 옴값이 높을수록 소리는 더 커지는데 대체적으로 16옴이 적당하다. 또한, 가정에서 사용한다면 288 드라이버를 추천하고 싶다. 혼은 A타입과 B타입이 있는데, A타입은 각 셀과 셀의 사이에 진동 방지를 위한 처리가 되어 있고, B타입은 각각의 셀이 분할 접속되어 있다. 대부분 화사하고 차분한 음색 때문에 A타입을 선호하는데, B타입도 보컬에서는 특색 있는 소리를 내어 준다. 좁은 공간에서는 1505나 1005보다 셀의 개수가 적은 805나 311-90쪽이 지향성과 음향각도가 적당하여 혼란스럽지 않고 음상이 잘 맺혀 유리하다.
네트워크는 고역을 미세하게 조절할 수 있도록 단자가 마련되었지만, 청음상 소리에 큰 차이를 느끼기 어렵다. 네트워크는 콘덴서 용량이 정상이면 오리지널을 그대로 사용하는 것이 바람직하다. 지금까지 감쇠기도 달아보고 네트워크도 만들어 보았지만 모두 부질없는 짓임을 깨닫기까지는 오랜 세월이 걸렸다. 가장 중요한 것은 스피커의 오리지널리티를 변형시키지 말고 앰프와 선재 등으로 튜닝해야 된다는 것 즉, A5의 문제점은 A5에 있지 않고 그것을 가동시키는 기기와 선재의 최적화에 있다는 점이다.
앰프와의 튜닝은 3극관에서 좋은 특성을 보이는데, 특히 45, PX25, RE604, AD1, EC, 845, 211 등의 출력관에서 좋은 소리를 들을 수 있다.
앰프는 제작품이든 기성 제품이든 모두 저역, 중역, 고역의 평탄한 주파수 특성을 갖도록 반드시 스코프로 확인하고 조정하며, 기본 특성을 만족시킨 후 귀로 들어 각종 소스에 대응하는 테스트를 거쳐야 한다.
5와트 이하의 싱글 또는 푸쉬풀의 경우 댐핑이 부족하여 단단한 저역이 나오지 않을 경우엔 15인치 액티브형 서브우퍼를 추가하는 것도 좋은 방법이다. 일반적으로 가정에서 AV 시스템 저역 재생은 프론트 스피커에 통합하거나 8인치 또는 10인치 우퍼를 주로 사용하는데 A5에서의 추가 사용은 반드시 15인치 이상을 권한다. 만일 이보다 작은 서브우퍼를 사용하면 저음이 매우 부자연스러워 오히려 사용하지 않는 편이 나을 수 있다.
대개 오디오파일들은 A5에 있어서 유닛의 구성이 매우 중요하다는 점은 알고 있지만, 막상 이들을 구입할 때 비싼 것이 좋을 것이라는 막연한 생각에 리스닝룸의 상태를 고려하지 않는 선택을 하게 됨으로써 실패를 자초하게 된다. 이는 아무리 잘 만들어진 앰프와 소오스를 물려도 직접음의 원천인 유니트를 포함한 스피커의 구성이 리스닝룸과 맞지않아 음상이 잘 맺히지 않거나 빅마우스 현상이 된다는 점을 간과했기 때문일 것이다. 따라서 시스템에 대한 평가는 직접, 간접음을 최종적으로 전달받는 리스닝룸과 스피커를 하나의 단위 시스템으로 간주하고 음원이 전달 되어지는 반대 방향으로 하나씩 튜닝을 해나가야 정확한 판단이 내려질 것으로 사료된다.
예를 들어 잘 세팅된 시스템과 리스닝룸을 동시에 구입할 수 없는 실정이면 우선 리스닝룸과 스피커 부터 앰프와 소스를 물려 튜닝해야 하는데, 정말로 앰프가 잘 만들어졌는지 스피커가 문제인지 쉽게 판단하기가 어렵기 때문에, 표준적 스피커 시스템을 제시하고 그 표준 시스템으로부터 각자의 환경을 고려하여 가감하는 방법을 찾고자 한다.
<Klangfilm 32650 Ad1 Sigle Main Amp>
클랑필름 싱글 메인 앰프 중 고급 기종이다. 초단은 5극관 RENS1294/70701을 사용하며 플레이트 전압은 초크와 병렬저항 200K에 의해 공급된다. 드라이브관은 방열 3극관 REN904/70504이다.
싱글 출력 방식으로 출력관은 모두 두 개(AD1 & RE304) 사용되나, 한 개(RE304)는 영사실 모니터용이다. 이 출력관의 입력 신호는 출력관의 플레이트에서 2M옴 저항과 1000pF의 직렬로 공급된다. 또한 플레이트는 외부 스피커의 출력 트랜스에 연결할 수 있도록 되어 있으며 트랜스에 연결하면 비로소 B+ 전압이 공급된다. 모든 진공관은 고정바이어스 방식으로 동작된다.
소리의 경향은 중고역 위주이다. 이것은 당초 토키용으로 초단이 설계되어 있기 때문인데, 가정에서 사용하기 위해서는 초단부를 다이내믹 레인지로 증폭하는 약간의 설계 변경이 불가피하다. 초단과 전원부를 개조하여 잘 튜닝한 본기는 고능률의 스피커와 매칭시 환상적인 사운드를 재생한다.
출력 임피던스는 15옴과 200옴이며 필드형 스피커 전원 공급 단자가 마련되어 있다.
|
| KLANG FILM 32650 MAIN AMPLIFIER |
| 클랑필름 싱글 메인앰프중 고급기종이다. 초단은 5극관 RENS1294/70701을 사용하며 플레이트 전압은 쵸우크와 병렬저항 200K에 의해 공급된다. 드라이브관은 방열 3극관 REN904/70504이다. 싱글출력 방식으로 출력관은 모두 두개(AD1 & RE304) 사용되나 한개(RE304)는 영사실 모니터용이다. 이 출력관의 입력신호는 출력관의 플레이트에서 2M저항과 1000pF의 직렬로 공급 된다. 일반적으로 TYPE No.32650의 '2'라는 숫자는 출력관의 갯수인데, 이 앰프에서 기존의 출력관은 고정바이어스를 사용하고 영사실 모니터용 출력관은 셀프바이어스를 사용한다. 따라서, 셀프바이어스로 동작하는 출력관의 회로를 일부 변경하여 파라싱글로 개조가 가능하다. 또한 플레이트는 외부스피커의 출력트랜스에 연결할 수 있도록 되어 있으며 트랜스에 연결하면 비로소 B+ 전압이 공급된다. 모든 진공관은 고정바이어스 방식으로 동작된다. 소리의 경향은 고역 위주이다. 이것은 당초 토오키용으로 초단이 설계 되어있기 때문인데 가정에서 사용하기 위해서는 약간의 설계 변경이 불가피하다. 초단과 전원부를 개조하여 잘 튜닝한 본기는 고능률의 스피커와 매칭시 환상적인 사운드를 재생한다. 출력임피던스는 15오옴과 200오옴이며 필드형 스피커전원 공급 단자가 마련되어 있다. |


<Klangfilm 32606/8 Pri RE604 Para Single Main Amp>
클랑필름 RE604 파라싱글 앰프다. 케이스는 합판에 가죽을 씌워서 안쪽을 동판으로 실드하였다. 전면에 초기 클랑필름 명판이 부착되어 있다.
클랑필름의 제품들은 주로 극장에서 사용되었는데, 대규모의 극장은 출력 트랜스에서 스피커까지 연결선이 길어지는 관계로 전력 손실을 최소화하기 위해 대체로 200옴의 출력 임피던스로 설계되어 있다. 이러한 고임피던스를 매칭시키기 위해 스피커측에는 200옴 : 15옴의 매칭 트랜스가 부착된다. 물론 이 제품의 출력 임피던스도 200옴이다.
사용하고 있는 출력관은 현존하는 출력 진공관 중 가장 아름다운 소리를 내어 주는 RE604 가지관인데 외부 충격에는 약하지만 최고의 음악성 때문에 지금도 빈티지 매니아들의 많은 사랑을 받고 있다. 드라이브단(전압 증폭)과 출력단(전력 증폭)의 사이에는 초크 타입의 인터스테이지를 사용하고 있는데, 셀프바이어스 타입의 파라싱글 출력단을 구동한다.
영사실 모니터용으로는 71401(RE134)를 사용하는데 구동 입력 신호는 병렬 연결된 출력관의 그리드에서 1마이크로패럿 커플링 콘덴서를 통해 받고, 플레이트 B+ 전원은 모니터 스피커에 부착된 출력 트랜스의 1차측에 연결된다. 초단, 드라이브단은 70504(REN904)이고 출력관은 71403(RE604)이다.
댐핑 능력이 뛰어나며 음질은 매우 다이내믹하고 아름답다.
<Klangfilm 32622/23 Pri RE604 PP Main Am
|
| KLANGFILM 파워앰프 32622/23 |
| Klangfilm POWER AMPLIFIER St 32622/23 prI 이다. P.P.출력방식이며 극장에서 사용했다. 클랑필름 제품은 1920년대 부터 대부분 극장에서 사용했었는데 가정에서 듣기 위해서는 초단 증폭부에 회로 보완을 필요로 한다. 이 독일제 클랑필름 파워앰프는 현존하는 파워앰프 중 가장 아름다운 소리를 내어준다. 초단은 당초 5극관 70701(RENS 1294), 드라이브관은 직열 3극관 70504(REN904)이며 출력관은 직열3극관 71403(RE604)인데 수리시 마니아의 요청에 초단을 3극관 (REN904)으로 개조 하였다. (우측 내부 그림은 수리 완료한 상태에서 촬영한 것임) |

Klangfilm RE604 푸쉬풀 앰프이다. 인터스테이지를 사용한 P.P.출력 방식이며 극장에서 사용했다.
이 독일제 클랑필름 파워앰프는 파워앰프 중 가장 아름다운 소리를 내어준다.
대부분의 클랑필름 제품이 그러하듯 필드형 스피커를 위한 전원공급 단자가 마련되어 있다.
출력관의 바이어스 전압은 고정바이어스 방식으로 마이너스 전압을 600오옴과 50오옴의 직렬 저항으로 드롭하여 공급한다.
이 방식은 B+전압의 높낮이에 따라 바이어스 전압도 따라서 변하게 되므로 매우 효과적이다. 드라이브단의 플레이트와 인터스테이지 1차측 연결은 커플링콘덴서 1마이크로 패럿으로 연결하여 트랜스에 직류를 흐르지 않게 하였다. 특히, 이 드라이브관의 플레이트 전압을 공급하는 쵸우크는 실드되어 있지 않아 교류 험이 유입되므로 차폐 조치를 요한다.
초단은 당초 5극관 70701(RENS 1294), 드라이브관은 직열 3극관 70504(REN904)이며 출력관은 직열3극관 71403(RE604)인데 수리시 마니아의 요청으로 초단을 3극관 (REN904)으로 개조하였다.
(우측 내부 그림은 수리 완료한 상태에서 촬영한 것임)
<표준적 알텍 A5 스피커 시스템의 제시> 아파트 33∼38평 거실의 경우

1. 리스닝룸
출입구측 벽면 중앙에 의자를 배치하고 맞은편 도어콤쪽 벽면의 창가로 스피커 하나와 1.8m 이상 떨어진 지점에 나머지 스피커 하나를 배치하고, 스피커 뒷측 벽면에 다이켄 중고역 음조 흡음판을 한 개씩, 두 개를 부착(천장으로부터 30센티, 혼의 뒤쪽에서 벽면 중심측으로 20센티 가로로 부착)한다.
2. 오디오 랙 위치
정면 또는 베란다측(스피커선 각 6미터 소요).
3. 스피커의 구성
우퍼 : 515B 1개
혼 : 805(A/B중 택일)
드라이버 : 288(A/B/C중 택일) 16옴
네트워크 : N500C
인클로저 : 김박중 씨 제작 3년 이상 건조
외부 및 내부 우퍼 배선 : Belden-M 8477
네트워크와 드라이버간 : 일반 주석선
알텍 A5(515A 우퍼+288-16G 드라이버+1505 혼)
4. 좌측 인클로저 흡음
전면에서 볼 때 좌측, 상단, 뒷판(스피커가 부착된 곳과 우측과 하단부는 흡음 안함).
5. 우측 인클로저 흡음
전면에서 볼 때 우측, 상단, 뒷판(스피커가 부착된 곳과 좌측과 하단부는 흡음 안함).
6. 네트워크의 부착
실리콘 또는 고무 부싱 처리 후 인클로저 내부 하단부에 단단히 고정.
7. 혼의 상하 각도 조정
혼의 전면 불룩한 중앙부가 인클로저보다 5센티 앞으로 돌출되도록 부착하고 혼의 각도는 청음시 정삼각 지점 의자에 앉아서 바라볼 때 혼의 개구부 중앙 라인의 상단과 하단이 같은 넓이로 보이도록 드라이버 유닛의 지지대를 상하조정.
8. 음상을 맺기 위한 토인
혼의 상하 각도가 청취자의 위치에서 볼때 정확히 맞춰졌다면 직접음이 청취자의 코 앞에서 교차되도록 좌우 혼을 안쪽으로 약간 틀어 놓는다. (스피커 전체를 들어서 움직이는 수고를 덜기 위해 혼을 고정하는 상판을 따로 만들어 사용하면 수시 조정이 편리하다. 저음은 지향성이 낮기 때문에 인클루저는 그대로 두고 혼만을 움직여도 무방함.)
정확한 토인을 위해 먼저 모노 음반을 재생하여 음상이 정확히 중심부에 있도록 볼륨과 밸런스로 좌우 음량을 조절 후 스테레오 음반을 재생한다. 바이올린 독주일때는 좌.우측에 마치 바이올린이 두 개가 있는 것처럼 들지지 않도록 하고, 피아노 독주일 경우 음이 전체적으로 중심부에서 좌우로 퍼져 나가는 듯이 조정하며, 현악 사중주의 경우 제1바이올린. 제2바이올린이 좌측, 비올라. 첼로가 우측에서 각자의 위치가 뚜렷하여 연주의 흐름이 자연스러우면서도 긴장감있게, 타원형으로 무대감이 형성되도록 정확히 조정해야 한다.
토인을 줄때 혼을 너무 안쪽으로 틀면 음상이 작아지고 현장감이 떨어지며 너무 바깥으로 틀면 음상이 귀 바깥으로 흩어져서 혼란스럽다. 스피커의 좌우 이격거리와 청취자와의 거리에 따라 음상이 맺히는 좌우 폭도 달라지게 되는데 스피커와 청취자와의 거리가 짧으면 그만큼 폭이 좁아지게 된다. 따라서, 이러한 토인의 방법은 정확한 음상이 보이는 장점도 있지만 감상자의 위치가 지극히 한정적이라는 단점도 있다.
9.흡음판의 설치는 음원이 발생되는 전면 상단 즉, 혼의 뒤쪽 상부 벽면에서 약간 중심측으로 이동한 위치에 중고역 음조 흡음재를 붙이며 저역의 부밍 방지를 위해 모서리엔 원통형의 흡음재나 구조물을 설치하게 되는데, 오디오 시스템과 리스닝룸에 따라 그 크기와 위치를 달리한다. 집안 내부의 바닥재나 벽지 또는 주변 설치물에도 민감하므로 오디오 시스템을 다 갖추어 놓고 재생음을 들어가면서 설치하는 것이 좋다. 대체로 위 제시한 환경에서라면 저역의 부밍도 별무, 다이켄사의 중고역 음조 흡음판 두 장 정도면 적당할 것이다.
<앰프의 튜닝>
1. 앰프와 스피커의 결선시에도 음원을 전가하는 쪽에 기준을 삼아 선재를 결정하되 진공관 앰프라면 주석이나 동선을, 트랜지스터의 경우에는 무산소동이나 은선재의 매칭을 추천한다.
2. 인티 앰프의 경우에는 직접 CDP를 걸어 재생음을 확인하면 되겠지만 프리와 메인 앰프를 사용한다면 우선 메인 앰프의 특성을 먼저 확인해야 한다. 메인 앰프에 볼륨이 달려 있다면 CDP를 직결해서 재생음을 확인하고, 만일 그렇지 않다면 볼륨 박스 또는 어테뉴에이터를 연결, CDP를 접속하고 각종 테스트용 음반을 걸어 주파수 대역과 다이내믹 특성을 확인해야 할 것이다.
예를 들어, 바이올린 독주의 경우 상음과 하음의 차이가 두드러지게 나면서 활이 보잉하는 맛을 느낄 수 있고, 보컬의 경우 기타와 보컬이 동시에 연주될시 찌그러짐이 없으며, 피아노의 연주시는 강력한 타건에도 고역부의 찌그러짐이 없고 저역의 댐핑이 좋아야 한다.
여기서, 파워앰프의 결점을 발견하면 반드시 이를 먼저 해결하고 프리를 연결해야 프리의 특성이 확인된다. 이것은 스피커의 특성이 나쁘면 파워 앰프의 특성을 확인할 수 없고, 파워 앰프의 특성이 나쁘면 프리앰프의 특성을 알 수 없기 때문이다.
그간 경험에 비춰 볼 때 대다수의 빈티지급 파워 앰프들이나 많은 자작 앰프에서 제대로 된 특성이 나오지 않았다. 때문에 회로의 변경, 보완, 내부 배선재와 결선 방법 개선, 전원부의 보강 등으로 문제점을 해결하였다.
3. 파워 앰프의 검증을 완료한 후, 프리앰프를 연결하는데 프리앰프의 종류에 따라 변수가 있다. 프리앰프가 출력 트랜스를 사용하지 않는 방식이라면 파워 앰프의 볼륨 사용은 큰 문제가 되지 않지만 트랜스 출력 방식일 경우엔 볼륨을 최대한 올려서 사용하거나 볼륨이 부착되지 않는 파워 앰프를 연결해야 제 성능을 발휘하게 된다. 이는 트랜스 방식의 낮은 임피던스와 메인 앰프의 높은 임피던스간 볼륨의 저항치로 인하여 주파수 특성에 영향을 주고 음압 손실이 발생하기 때문에 재생음에 박력이 없고 배음이 부족하여 귀에 거슬리는 고음으로 들릴 것이다. 또한, 성능이 우수한 대출력의 파워 앰프라도 그에 부합하는 음압 레벨과 구동력을 갖춘 프리앰프를 매칭시키지 못한다면 제출력을 낼 수가 없다. 따라서, 우수한 성능의 파워 앰프는 그와 동등한 레벨 또는 더 우수한 프리앰프의 매칭이 필요하다.
4. 파워 앰프가 전 주파수 대역에서 평탄한 특성을 보이고 저역이 탄탄하며, 소름끼치게 높은 고음의 재생시에도 시끄럽게 들리거나 끝이 갈라지지 않았다면 정상적으로 볼 수 있다.
최근 하이엔드의 시스템들은 한결같이 광대역과 높은 해상력을 추구하기 때문에 가청주파수대에 머물러 있는 빈티지 시스템과의 차이는 점점 벌어지고 있는데, 그 근원도 따지고 보면 스피커 시스템의 차이가 아닌가 싶다. 그랜드 슬램에서 와트 퍼피에 이르기까지 하이엔드의 정점에 있는 스피커들은 그 규모와 가격이 높을수록 광대역의 프리, 파워 앰프와 소스만을 허락한다.
튜닝의 묘미를 알게 해 준 알텍과 클랑필름(서예가 김정식 님의 빈티지 오디오에 대한 글)
알텍 드라이버에서 사용하는 다이아프램(진동판) 종류는 3가지인데
1. 심비오틱(Symbiotik) : 가운데 부분은 알루미늄, 테두리는 플라스틱 진동판
2. 알루미늄 : 가운데 및 테두리 모두 순수 알루미늄 진동판
단점은 알루미늄은 충격에 의해 쉽게 다이아프램이 손상된다는 것입니다.
한번 변형이 되면 알루미늄의 특성상 티타늄처럼 복원이 안된다는 것입니다.
3. 파스칼라이트(Pascalite) : 알루미늄 합금 진동판으로 생긴 모양은 알루미늄과 동일함
(알루미늄의 소리 퀄리티를 가지고 있으면서 알루미늄보다 2.5배의 허용입력(50W) 가능함)
파스칼라이트 알루미늄 합금과 알루미늄 다이아프램의
차이는 거의 없다라고 말하는 사람들이 많다.
4. 기타 호환용으로 개발된 저가의 알루미늄 다이아프램들과 티타늄 다이아프램이 있습니다.
티타늄 다이아프램은 드라이버로 눌러도 아주 작은 흠만 생기고 알루미늄처럼 표시가
크게 나지 않더군요. 티타늄 특유의 복원성이 뛰어나서 살짝 눌러도 바로 복원됩니다.
여유가 된다면 알루미늄 다이아프램 중에서 알루미늄 각코일을 사용한 애프터마켓용
제품이 있는데, 오리지널에 못지않게 출력이 비교적 괜찮은 편입니다.
소리도 좋은 편이니 한번 써볼만 할 것 같습니다.
가격도 알텍 다이아프램의 절반가 이하입니다.
드라이버 발매시 같이 나온 진동판이 잘 살아있으면 좋겠지만, 진동판도 소모품이고
매우 얇은 알루미늄이 정상적인 진동 부하를 받으면서 50~60년 가까이 변성없이 보존된다는
것은 거의 불가능할 것 같습니다. 어떤 자료에 보면 알루미늄 자체는 산화가 빨리되는
(겉보기는 별로 변함이 없지만) 금속 중의 하나라고 하더군요.
어쨋든 진동판은 우퍼의 에지와 동일하게 보면 될 것 같습니다.
오래 써서 우퍼 에지가 갈라지면 새걸로 교체하듯이 말이죠.
오래 진동판을 쓰면 진동판 자체가 갈라지거나 깨져 조각납니다.
알텍에서 추천하는 호환 품목을 쓰면 크게 음질의 변화 없이 사용할 수 있을겁니다.
오래된 드라이버의 경우 진동판은 파스칼라이트 20221(24옴), 25885(16옴) 또는 25884(8옴)가 기존 알루미늄
진동판(20Watt)의 소리 퀄리티를 가지고 있으면서 성능면에서 2.5배(50Watt)의 허용입력이 가능하고
288, 291, 299 드라이버에 호환되고 추천한다고 기술되어 있습니다.
정격입력(RMS):스피커의 트위터(위치는 위쪽에 있고 고음을 담당하는 스피커)가 파손 되거나
음이 전혀 나오지 않거나 일그러져버리는 원인으로써 보이스코일의 온도 상승에
의 한 코일의 단선,접착제 등이 떨어지는 것에 의한 변형 등이 생각될 수 있는
한도을 나타내는 것인데요,, 즉 파위처리 능력을 나타내는 것입니다..
이것은 평균화된 전력치로 사인파(정현파)때에 최대치(파형이 높은 부분)
치입니다.. 스피커를 파손되지 않는 평균적인 파워(출력)을 처리 한다는 것을 보증하는 수치입니다..
주파수 대역 :스피커 메이커의 대부분은 한눈으로 확인 가능한 20-20khz의 주파수 특성을
표시하고 있는데요, 이 주파수 특성 그래프상의 대역내에는 산과골(올라가고
내려오는)있는데 음색을 확인할 수있는 하나의 기준이 됩니다..
그래프 상에서 선이 직선으로 된 평탄한 특성이 좋긴 하지만 이 측정은
어디까지는 무향실에서의 결과로 동떨어진 음장에서, 거기다 스피커의 전방 1m 라는 가까운 지점에서의 결과입니다
임피던스(ohm):교류에 대한 저항치를 말하며, 저항과 같은 옴(Ω)으로 표시합니다.
직류에 대한 저항치는 언제나 일정하지만 임피던스는 주파수에 따라
변화하며 가령,스피커의 임피던스는 최저치로 표시되고 있다.
-- 중요 사항입니다 --
.. 공칭 임피던스:스피커의 입력 단자에서 본 임피던스의 수치는 주파수에 따라 다릅니다.
국제적으로는 8Ω을 표준 공칭 임피던스로 삼고 있다.
임피던스는 뜻이 중요하게 아니라 앰프와의 연결에 굉장히 중요합니다..
예을 들어 앰프의 임피던스보다 스피커의 임피던스가 커야 합니다..
스피커의 임피던스가 앰프의 임피던스보다 작으면 앰프에 무리가 됩니다..
그러니 이것을 주의 해야 오래 사용할수 있습니다..
.. SPL( Sound Pressure Level):출력 음압 레벨(Sensitivity)지정된 대역내에서 IW(와트)의
입력을 스피커에 가했을 때에 1m(미터) 지점에서의 음압 레벨의 평균치를 말하는 것인데, dB (데시벨)로 나타냅니다.
일반적인 스피커는 90dB전후의 출력 음압 레벨이데요.
예를 들면 93dB의 출력 음압레벨을 가지는 스피커는 90dB의 것과 비교하여 같은
레벨을 내는데 1/2의 전력으로도 됩니다. 출력 음압 레벨은 능률 또는 감도라고도
하며 음압 레벨이 크면 클수록 같은 크기의 음을 내는데 적은 전력으로도 됩니다.
소비전력이 많다고 큰소리을 내는 건 아닙니다
..
Damping- Facter
파워앰프가 스피커의 동작을 제동할 수 있는 능력을 가리킵니다. 앰프의 출력저항이 낮아질수록 댐핑 팩터라는 수치는 높아집니다. 스피커는 음이 콘이 앞뒤로 움직이면서 나는데, 댐핑 팩터가 클수록 콘의 전후 움직임을 빨리, 정확하게 제어하여서 음이 정확해지고 명료해지고 선명해집니다. 앰프에서 주로 표시하는 수치입니다. 고급 TR앰프일수록 이 수치는 올라가는 성향이 있습니다.
임피던스 ( Ω )
교류저항으로 앰프에서는 입력저항과 출력저항으로 두 가지로 구분하게 되는데, 입력 임피던스는 입력단의 저항수치이고, 출력저항은 앰프 출력단자 부분의 저항을 체크합니다. 예를 들어 앰프에서는 입력저항 수치가 높고, 출력저항은 수치가 낮습니다. 그리고 스피커에서는 보통 4Ω~16Ω의 임피던스 수치를 가지고 있습니다. 스피커에서 임피던스가 낮을수록 앰프에서 소모하는 전기량이 많아지며, 스피커의 임피던스 수치가 높아질수록 앰프의 전기 소모는 작아지기 때문에 전기요금을 절약하는 측면이 있습니다. 보통 스피커는 8옴스피커가 일반적인 임피던스 수치입니다. 기호는 Ω (옴)으로 사용합니다.
주파수 특성
실효출력에서 재생할 수 있는 주파수 대역의 범위를 나타내는 말로 보통 스피커의 주파수 대역은 20hz~20,000hz인데 비해 앰프의 주파수 특성은 보통 1hz~100,000hz의 주파수 대역을 재생합니다.
잔향
대중 목욕탕에 가보면 가장 흔하게 느낄 수 있는 용어입니다.일반적으로 잔향의 가장 커다란 장점은 바로 라이브 감을 느끼게 해준다는 것입니다.하지만 너무 잔향이 길어질 경우 음상이 불명료 해집니다.반대로 너무 짧으면 음악을 즐기는 맛이 떨어지게 됩니다.어느 정도의 잔향이 적당한지는 논란의 소지가 많지만 일반적으로 3~4평 정도의 방에서는 0.4~0.5초가 적당하다고 합니다.잔향 시간의 조절은 두꺼운 융단이나 천이 두꺼운 커튼 혹은 주변의 가구들을 사용하면 됩니다.융단과 커텐은 중음에서 고음에 걸친 소리를 흡음하지만 저음에는 효과가 미비하기 때문에 너무 많은 융단과 커텐은 잔향의 불규형의 원인이 되므로 주의해야 합니다.
정위
정위란 스테레오 연주에서 어떤 일정한 위치에서 목소리가 나오거나 오케스트라의 악기 위치를 파악할 수 있게끔 착각하는 듯한 느낌을 주는데 이런 위치를 바로 정위라고 합니다.정위는 리스링 룸이나 스피커의 위치등의 영향을 많이 받습니다.
지향특성
스피커와 마이크 혹은 안테나 등 소리나 전파를 방사하거나 모으는 기기에는 그 능력에 방향성이 있는데 이것을 지향성이라고 합니다.스피커의 경우 주파수가 높아짐에 따라 소리는 옆으로 잘 확산되지 않는데 지향 특성이 좋은 스피커의 경우 스피커 정면의 소리 크기가 옆으로 비껴난 위치에서의 소리 차이가 적은 것을 의미합니다.마이크로 폰이나 안테나의 경우 여러 방향에서 오는 소리나 전파를 수취하는 방향성이 지향 특성인데 정면의 소리만을 잡고,옆으로부퍼 소리를 거의 잡지 못하는 것을 단일 지향성이라고 하는데 역으로 모든 방향으로부터 날아든 소리를 모두 잡아 버리는 것을 무 지향성이라고 합니다.
스피커에서의 에이징의 내용을 살펴 보면 에이징은 스피커가 본래 가지고 있는 소리를 완벽하게 내주는 데 필요한 관리를 말합니다. 그 선행조건이 정리해 보자면
1. 엔클로우저가 좋은 재질의 원목으로 되어 있을 것.
2. 백노드의 설계및 내부 네트워크와 마감재가 좋을 것.
3. 유닛의 콘지의 재질이 좋고 크기가 일정이상(10인치)이 될 것.
이정도가 거의 필수조건이라고 보시면 되겠습니다.
스피커의 에이징은 밑에서도 말씀드렸다시피 스피커가 얼마나 제대로 공명을 해서 유닛의 본래의 재생력을 발휘하게 하느냐는 것입니다. 당연히 제가 위에 언급한 기본적인 부분의 조건들을 만족할 정도의 스피커들이 되어야 에이징의 효과가 난다.
그러나 스피커를 TV에 비유해서는 곤란합니다. 소리는 영상과 달라서 최초에 어떻게 스피커를 관리해 주느냐에 따라 스피커의 수명과 음질에 상당한 영향을 끼칠 수 있습니다. 중고 자동차를 고르다 보면 주행거리는 얼마 안되는 새차가 훨씬 그보다 오래된 차보다 오히려 연비나 엔진상태가 안좋은 경우는 얼마든지 있습니다. 그것은 자동차를 잘못 관리했기 때문입니다. 즉, 좋은 자동차라도 주인을 잘못 만나면 제 성능을 발휘해 보지도 못하고 그대로 고물이 되어 버리는 것과 스피커의 에이징은 상당히 비슷한 부분이 있습니다.
스피커는 원래 있지도 않은 좋은 소리를 낼 수는 없습니다만 완전히 제 소리가 날때까지 제대로 관리해 주지 않으면 원래 낼 수 있는
제 소리를 끝끝내 못들을 수는 있습니다. 이것이 에이징이 필요한 이유입니다.
그중에는 EAW나 BAGEND같은 좋은 브랜드의 스피커들을 시공해 놨는데 실제 가서 들어보면 스피커가 만신창이가 되어서 하이는 맛이 가고 우퍼는 바람빠지는 소리를 내는 경우를 많이 볼수있습니다. 에이징(관리)을 잘못했기 때문입니다. 심지어는 세계 탑클래스의 스피커인 메이어의 시리즈를 달아 놓고도 싸구려 소리를 내고 있는 곳도 봤습니다. 그만큼 에이징은 중요하다는 것입니다.
그런데 중요한 것이 있습니다. 그것은 에이징은 없는 소리를 만들어 주는 것이 아니란 것입니다. 이것이 오늘날 너무나 많은 유저들이 장사꾼들의 상술에 속고 있는 내용이기도 합니다. 에이징은 그 스피커가 가지고 있는 본래의 수준이상은 내 줄수 없습니다. 따라서 에이징이라는 것은 스피커가 아직 몸이 덜풀린 새것(공장 출시직후) 상태일때 원래 설계자가 의도했던 수준에 올라가지까지 스피커를 잘 관리해주는 것을 말합니다. 그리고 모든 스피커가 다 에이징이 필요한 것이 아니라 어느 수준 이상의 제품들에서부터야 비로소 효과가 있다는 것도 강조해 드립니다. (그 수준은 위에 언급한 내용들이 하나의 기준이 될 수 있을 겁니다)
이러한 시점에서 살펴보면 소형 북셀프 스피커들과 세틀라이트 스피커등은 에이징의 효과가 거의 없다고 보시면 됩니다. 그리고 재질이 열악한 저가형 일부 톨보이 스피커들도 그리 에이징의 효과가 없다고 보시면 틀림이 없겠구요. 제가 왜 위에 언급한 기준을 말씀드리는가 하면 적어도 저 세가지의 수준은 만족해야 출시된 상태보다 어느정도 길이 들여지고 관리가 잘된 스피커가 더 좋은 소리(사실은 원래의 소리)를 낼 수 있기 때문입니다.
우선 엔클로우저(소리통)의 재질은 그야말로 필수입니다. 원목의 재질중에서 MDF계열들의 스피커들은 에이징의 효과는 없다고 보셔서 무방합니다. 다만 처음 출시된 상태보다 엔클로우저에 칠해 놓은 응고제가 단단하게 접착되어 가는 과정에서 소음이 조금 줄어들고 음이 붕붕거리는 느낌이 조금 줄어드는 현상은 있습니다. 그러나 이것을 에이징이라고 하면 안됩니다. 엔클로우저의 에이징은 나무의 수축과 팽창이 심해지지 않도록 습기와 열기로부터 스피커를 보호하는데 그 핵심이 있습니다. 그래서 스피커를 일교차가 심한 곳에 보관하지 않거나 또는 직사광선등으로부터 피해서 설치하는 까닭이 그런 이유입니다. 일관된 온도를 유지해 주면서 지속적으로 스피커를 재생해주면 엔클로우저의 원목은 점점더 단단하면서도 질긴 재질로 변해갑니다. 그리고 그러면서 유닛의 진동을 효과적으로 외부로 전달해주는 통로의 역활을 해 주게 됩니다.
바이올린이나 기타의 울림통에 약간의 금이라고 가게 되면 절대 좋은 소리가 날 수 없듯, 좋은 스피커들의 겉재질은 유닛과 백노드의
최대 출력을 지지해 줄 수 있는 검사와 테스트를 거친 제품입니다. 이것을 설계자의 의도대로 내 줄 수 있는 관리가 필요한데 이것이
엔클로우저의 에이징이 되겠습니다.
그리고 백노드는 소리의 흐름을 주도하는 내부적 설계가 되겠습니다. 이것을 통하여 풀레인지 스피커들의 각각의 유닛은 서로 상호 보완하며 소리의 주파수 영역대를 생성하게 됩니다. 실제로 비싼 스피커들을 뜯어 보면(예를 들어 클레이 브라더스나 맥컬리등의 스피커들은 안의 내부가 장난아니게 복잡하면서도 미묘합니다.
싸구려 PC스피커들은 그냥 안에 아무것도 없죠? 이런 것들은 100년을 에이징해도 좋은 소리는 안납니다 에이징을 할 게 있어야죠...-_-;;)
내부의 공기의 흐름을 유도하는 내부 구조물들이 있는데 이것들도 시간이 지나야 제대로 성능을 발휘하게 됩니다. 매니아님들이 에이징용 CD를 추천하시는 것이 이거 때문인데 왜냐하면 이 부분들은 보통 낮은 저역대부터 시작해서(우퍼의 영역)-주파수의 진동폭이 낮고 부드럽기 때문입니다- 중음대를 거쳐(미드레인지의 영역) 고역대
(트위터 및 슈퍼 트위터)의 높은 진동을 견디어낼 때까지 반복적으로 소리를 내주는 것이 중요합니다. 처음부터 찢어지는 고음을 내면
이부분이 길이 제대로 안듭니다. 그리고 게인(볼륨)을 처음부터 맥시멈까지 내면, 그리고 거기에 길들여 지면 나중에는 낮은 주파수의
음역에는 그다지 반응을 하지 않게 됩니다. 그래서 음의 에이징이 필요하게 되는 것입니다.
다음으로 유닛의 영역이 있는데 유닛의 에이징이 필요하게 되는 것은 콘지의 재질 때문입니다. 이부분을 종이로 하느냐 폴리프로필렌으로 하느냐 PVR로 하느냐에 따라 스피커의 성격이 바뀝니다. 따라서 유닛의 콘지의 재질에 따라 거기에 맞는 구동이 조금씩 틀려집니다. 그리고 유닛의 우퍼의 크기가 10인치 이상은 되어야 하는것이 그래야 백노드의 설계가 제대로 들어가게 됩니다. 그리고 엔클로우저의 크기도 어느 이상은 되어져서 비로소 충분한 음을 뿜어낼 수 있는 지지대가 됩니다. 그래서 제가 유닛의 크기와 재질이 중요하다고 말씀드린 겁니다.
에이징에 대해서 너무 지나친 환상은 금물입니다. 이것은 PA이든 Hi-Fi든 마찬가지입니다. 그러나 훌륭한 스피커들을 가지고 계신 분들은 관리(에이징)를 어떻게 하느냐에 따라 똑같은 스피커라도 전혀 다른 소리를 낼 수도 있다는 것도 분명한 사실입니다
| |||||
- IPC AM-1027(Western Electric's Subsidiary Int'l Projector Corporation)
오디오 리뷰 용어들의 의미
-----------------------------------------------------------------------------
주파수 대역
20 ~ 40Hz 깊은 저역 (Deep Bass)
40 ~ 80Hz 중간 저역 (Midbass)
80 ~ 160Hz 높은 저역 (Upper Bass)
160 ~ 320Hz 낮은 중역 (Lower Midrange)
320 ~ 640Hz 중간 중역 (Middle Midrange)
6.4 ~ 1.28Khz 높은 중역 (Upper Midrange)
1.28 ~ 2.56Khz 낮은 고역 (Lower Treble)
2.56 ~ 5.12Khz 중간 고역 (Middle Treble)
5.12 ~ 10.24Khz 높은 고역 (Upper Treble)
10.24 ~ 20.48Khz 초 고역 (Top Octave)
------------------------------------------------------------------------------
* 가벼운 : 재생대역은 좁은 반면 고역이 좀 강조되어 음이 지나치게 깨끗하고 메마른 소리
(컴퓨터용 스피커들의 경우가 이에 해당되겠습니다. 굉장히 깨끗하지만 허전하죠^^)
* 개방적인 : 음장감이나 음의 반향이 유쾌하게 느껴지는 소리. 고역특성이 평탄하며 우수파 고조파가 약간 포함된 소리(일반적으로 고역의 롤오프가 늦게 나타나거나 거의 없는 경우에 소리가 개방적이라고 표현하는데 하이엔드 사운드의 큰 특징중 하나라 하겠습니다. 셀리우스의 경우는 개방적이라고 할 수있습니다. 그치만 롤오프가 일어나는 시기에 대해서 일반 사용자들이 함부로 평가하기는 좀 위험하죠^^)
* 거친 : 고역쪽 주파수특성에서 산이나 골이 너무 심하게 나타나 거칠게 느껴지는 소리
(바이얼린이나 심벌즈, 색소폰 등의 소리로 판단할 수 있을 것 같습니다)
* 건조한 : 음장감이나 소리의 울림이 충분치 못한 소리
(보통 원어 그대로 드라이하다고도 표현하는데, 반대의 의미로 '촉촉한'이란 표현을 쓰기도 합니다)
* 경쾌한 : 5 - 7KHz의 고역이 다소 강조되어 맑고 밝게 느껴지는 소리
* 공간특성이 좋은 : 음의 반향이 적당하고 고역의 뻗침이 좋을뿐 아니라 시스템주위의 공간을 소리가 꽉 채워서 확실한 공간감을 느낄 수 있는 소리
* 귀에 거슬리는 : 3 - 5KHz의 주파수대역이 강조되어 지나치게 딱딱하고 거친 소리
* 금속성의 : 3KHz전후의 주파수대역이 강조되어 챙챙거리는 소리
(민성 5호 스피커가 그 좋은 예가 되겠네요...오래 듣다보면 피곤한 소리)
* 금속성의 광채가 있는 : 고역이 강조되거나 녹음시 마이크를 너무 근접시켜 녹음한 것이 원인이 되어 귀에 거슬리는 소리. 특히 기타 등의 재생시 잘 나타남
* 힘찬 : 100Hz이하의 저역이 좀 강조된 소리
* 긴박감이 있는 : 중저음이 밝게 느껴지고 전체적으로 박력이 있으며 반응이 빠른 소리
* 깊은 : 각각의 악기의 전, 후 거리감이 확실히 느껴지며 직접음과 간접음의 울림비가 적당하여 악기 내부의 깊이감을 확실히 느낄 수 있는 소리
* 꽉찬 : 저역재생이 잘 되어 풍만감 있는 소리
(달리의 에비던스 시리즈를 들어보면 풍만하다는 것이 어떤 의미인지 이해하실 수 있으실 듯)
* 답답한 : 재생대역이 좁아 답답하게 느껴지는 소리
(이런 의미 말고 장막을 드리운 듯하다라는 의미로도 사용됩니다. 스피커들으실 때 앞에 커튼 같은 것으로 막고 들어보심 되겠네요...저는 미션스피커에서 그런 느낌을 받았는데 매칭과 공간상의 문제도 있고 하니 단정할 순 없겠죠?)
* 댐핑이 부족한 : 스피커에 가해지는 신호가 없어졌는데도 스피커에 불필요한 진동이 계속되는 듯하게 들리는 소리
* 덮어씌운 듯한 : 고역재생이 부족하고 기수차 고조파가 포함되어있어 둔탁하게 들리는 소리
* 두터운 : 100 - 200Hz근처가 강조되어 베이스가 풍만한 소리, 이 경우 악기 하나 하나의 해상력이 약간 부족하게 느껴짐
* 딱딱한 : 2 - 5KHz부근의 대역이 강조되어 딱딱하게 느껴지는 소리
* 마찰음이 들리는 듯한 : 5 - 10KHz주위가 강조되어 재생음에 "시"나 "쉬"등의 소리가 들림. 바이올린의 배음성분이 많이 있는 음악을 들을 때 잘 느껴짐
(이것두 민성스피커...사용자분들껜 죄송합니다...ㅠ.ㅠ)
* 명료한 : 각 악기가 내는 음의 구분이 분명하게 느껴지는 소리
(보통 음이 뭉쳐 들린다라는 표현과 반대되는 개념으로 음의 구분이 확실하면 물론 좋긴 하지만 그보단 전체적의 음의 조화가 보다 라이브한 느낌을 전해주는데 큰 역할을 한답니다. 가령 로이드신트라의 경우 명료하다고 할 수는 없으나 티투스보단 라이브한 소리전달능력에선 앞선다고 생각됩니다. 아님 하는 수 없지만...ㅜ.ㅜ)
* 맹맹한 : 300 - 500Hz사이의 대역이 너무 강조되어 맹맹하게 들리는 소리. 주로 혼형 스피커에서, 소리의 확산이 불충분하고 혼의 공진이 심할 때 이런 소리가 들림
(칼라스의 백로드혼의 경우도 혼의 공진으로 인한 저역잡기에 한동안 애를 먹었다고 하더군요^^)
* 매끄러운 : 고역이 너무 높지 않게 적당히 뻗어 있으며 전대역에 걸쳐 평탄한 재생을 하고 있는 상태로서 특히 중고음이 듣기에 좋은 경우에 사용됨
* 무거운 : 200Hz이하의 저역이 강조되어 전반적으로 음의 중심이 내려앉은 소리
('가벼운'의 반대)
* 박력이 넘치는 : 100 - 300Hz주위의 저역이 강조된 소리
(보스톤이나 보스와 같은 미국계열의 스피커들을 표현할 때 많이 사용되죠. AV용으로는 최고!!!)
* 밝은 : 심벌즈, 트라이앵글과 같은 타악기의 내는 소리처럼 고음쪽이 맑게 들리는 소리. 대개 5kHz주위의 주파수가 적당히 강조되어 있을 때 느낄 수 있음
* 부드러운 : 저역은 약간 강조되고 고역을 약간 약화시켜 박력이나 거친 감이 다소 부족하게 느껴지는 소리
(미션류의 스피커에 대한 평가를 보면 '부드럽다'라는 표현들이 많이 사용되구요...그밖에 영국계 계열의 스피커들이 이런 특성을 갖고 있다고 하네요...난 부드러운 남자예여..ㅠ.ㅠ)
* 부밍끼가 있는 : 100 - 300Hz사이의 저역이 심하게 강조된 소리
* 뿜어내는듯한 : 2 - 3kHz부근의 중역이 강조된 소리
* 소리가 앞으로 튀어나온 듯한: 마이크를 음원에 너무 가까이 대고 녹음하였거나, 2 - 3KHz주위의 주파수가 강조된 소리
(서로 장단점은 있겠으나 보통은 스피커 뒤에서 깊고 넓게 형성되는 소리를 많이들 선호하십니다)
* 순발력 있는 : 평탄한 주파수 응답 및 위상특성을 가져 급격한 입력의 변화에도 즉시 반응하는 소리
(보통 '다이나믹'이라고도 표현하는데...요즘 스피커들은 대부분 순발력에 대한 걱정은 크게 하실 필요가 없으실 것 같네요. AV겸용이 많기 때문에. 이전 빈티지 일부 스피커나 미니 콤포용 스피커들을 들어보시면 조금은 차이를 느끼실 수 있으실 겁니다)
* 시끄러운 : 깡통을 두드리는 것같이 듣기 거북한 소리로서 저음이 약하고 1KHz부근이 과도하게 강조된 소리
* 얇은 : 베이스성분이 부족한 소리
* 어두운 : 재생주파수 대역이 충분히 고역까지 뻗어 있지 않고 좀 둔탁한 소리
(롤오프가 조금 일찍 일어나는 경우 여성보컬이나 색소폰, 바이얼린 소리가 최고조에 달할때 시원스럽기 보다는 적당하게 마무리 한 듯한 느낌을 받게 됩니다. 고역이 어둡다고 표현되는 대표적인 스피커로는 에포스 스피커들이 있네요. 적당하게 처리했다고는 해도 소리가 오히려 귀에 듣기에는 예쁘게 표현되기도 한답니다. 그래서 듣는 사람의 취향에 따라 어두운 것을 좋아하기도 하죠^^)
* 약동감이 넘치는 : 순발력이 좋아 입력에 대한 반응이 빠르고 5KHz부근의 주파수가 강조 되었을 때 느낄 수 있는 밝은 색조의 소리
* 예리한 : 5KHz이상의 고역이 약간 강조되어 정위감이 우수하고 촛점이 뚜렷한 소리
* 웅대한 : 입체감과 적당한 임장감이 느껴지는 소리
* 원근감이 뚜렷한 : 음의 반향이 좋고 정위감도 뚜렷할 뿐만 아니라 좌우의 스테레오감은 물론이고 전후의 스테레오감이 확실한 소리
(셀리우스...KEF의 스피커도 한명성하는데...코다나 Q시리즈의 경우 좌우의 폭은 ?은 반면 전후 폭이 좁은 듯한 느낌을 갖기 땜에 평면적이다라고 표현하는 review를 본적이 있슴돠)
* 윤곽이 뚜렷한 : 고역의 재생이 평탄하며 뻗침이 좋고 반응이 빠른 소리
* 자연스러운 : 특별히 모가 나는 영역이 없이 전대역에 걸쳐 충실도가 높은 소리
* 저질의 : 과도하게 왜곡된 소리. 일렉트릭기타 연주시, 일부러 음이 찌그러지도록 연주하는 경우도 있음
(보통 색을 밝히는 사람보구...저질이라구 하죠^^*)
* 정신나간 : 250 - 1KHz사이의 재생이 불완전하여 힘없고 멍하게 느껴지는 소리
(가끔 길거리에서 머리에 꽃꽂고 다니는 사람들을 볼 때나...국회로 출근하는 일부 사람들을 표현할 때 쓰기도 합니다^^)
* 정위감이 좋은, 선명한 : 스테레오 재생시 연주되고 있는 악기 각각의 위치가 확실히 느껴지는 소리
(하이엔드 오디오의 필수 조건이죠...이건 당근 좋아야 합니다. 명료함이 '바이얼린'소리를 들었을 때 '바이얼린'으로 알아 챌 수 있게끔 하는 속성이라면 바이얼린이 무대 앞 한가운데서 연주될 때 뒤에서 연주하는 것 처럼 들려선 안되야 되는 속성을 정위감으로 이해하심...휴, 힘들다. 때문에 자신이 스피커 한가운데서 듣던 좌측이나 우측에서 듣던 악기의 위치를 구분해 낼 수 있어야 합니다. 이런 경우 정위감이 좋은 스피커다라고 말할 수 있습니다. )
* 조준이 정확한 : 촛점이 잘 맞고 정위감이 뛰어난 소리
('포커싱'이라고도 표현되는데 정위감과 같은 의미로 이해하심 되겠네요. 굳이 구분하자면 정위감이 자신의 청취 위치에 따른 악기의 위치변화라고 한다면 포커싱은 일반적인 청취위치에서 음악을 들을 경우 각 악기의 위치파악이라고 보심...글치만 결구 다 비슷한 말이죠?^^)
* 중간이 빈듯한 : 스테레오 녹음시, 두 개의 녹음마이크간의 거리를 너무 벌려 놓았거나, 스피커의 간격이 너무 떨어져 있어 소리가 좌우로 몰려 중간이 빈듯한 소리
(이말 보다는 '빈소리'가 난다라는 표현이 많이 쓰입니다. 대개 저가형 AV전용 스피커들의 경우 이런 느낌을 많이 갖게 됩니다. 셀리우스는 중역의 밀도감이 뛰어나기 때문에 저음과 고음부분이 강조되는 여타 AV용 프런트스피커와는 달리 음악감상에도 최적의 스피커가 될 수 있는 부분이기도 합니다. 아주 간단하게는 워크맨에 딸려나오는 저가형 이어폰으로 한번 들어보시고, 젠하이저나 소니의 중가형 이어폰으로 번갈아 들어보심 이해하실 수 있겠네요. 번들용이 깨끗하게 들리는 듯 하지만 반복적으로 들으시다 보면...)
* 차가운 : 고역이 저역에 비하여 상대적으로 너무 강조되어 들리는 소리
(셀리우스 역시 차갑다라는 소릴 많이 듣는 편인데, 앞서 언급한 '밝은 성향'과 연관지어 생각하시면 되겠습니다. 즉, 셀리우스는 저역의 양감이 타 스피커처럼 풍부하지 않은 대신 개방적인 고역과 두터운 중역대로 인해 상대적으로 차가운 듯한 느낌을 가질 수 있다라는 것이죠)
* 촛점이 뚜렷한 : 스테레오 이미지가 확실해서 정위감이 뚜렷한 소리
(또 나왔네...이룬...'조준이 정확한'을 참조하세여.)
* 탱탱한: 7KHz이상의 고역이 너무 강조된 소리
(보통 여성의 신체일부를 표현할 때 사용되기도 합니다)
* 통통거리는 : 200-300Hz사이가 너무 강조되거나 공진으로 인하여 통에서 울리는 듯한 소리
(일명 '통울림', 모 적당한 통울림을 즐기시는 분들도 계시지만 전 싫네요.)
* 펑퍼짐한 : 200Hz이하의 저역이 좀 과장되어 음의 중심이 밑으로 너무 퍼진 소리
(결혼하면 신부님들이 보통 이렇게 되시죠)
* 풍부하고 감칠맛 있는 : 전대역의 재생이 평탄하고 깊은 저역까지 재생이 충실하며, 소리 하나 하나가 확실히 구분됨과 동시에 화음이나 배음성분이 적당하게 재생되어 울림특성이 좋은 소리
(소위 말하는 스테레오파일 A등급에 오르려면 이정도는 되야...)
* 현실감있는 : 소리 자체의 명료도가 뚜렷한 소리. 대부분 악기의 경우 5KHz전후가 적당히 강조되면 현실감있게 들리며 악기에 따라서 1 - 2KHz 사이가 강조될 경우 현실감있게 들림
(아마도 '리얼한'을 이렇게 표현한게 아닐런지...저도 잘 모르겠네요. 현실감 있다는게...도와주세요!!!)
* 화려한 :중고역의 재생이 뛰어나고 전재생대역을 평탄하게 재생하며, 해상력이 뛰어난 소리
* 활기찬 : 중음역의 반향과 순발력이 뛰어나고 전 재생대역을 평탄하게 재생하며, 맑고 현실감있는 소리
* 힘이 넘치는 : 전재생대역을 평탄하게 재생하며, 100Hz이하의 저역이 약간 강조된 소리('변강쇠')
515B


288C




