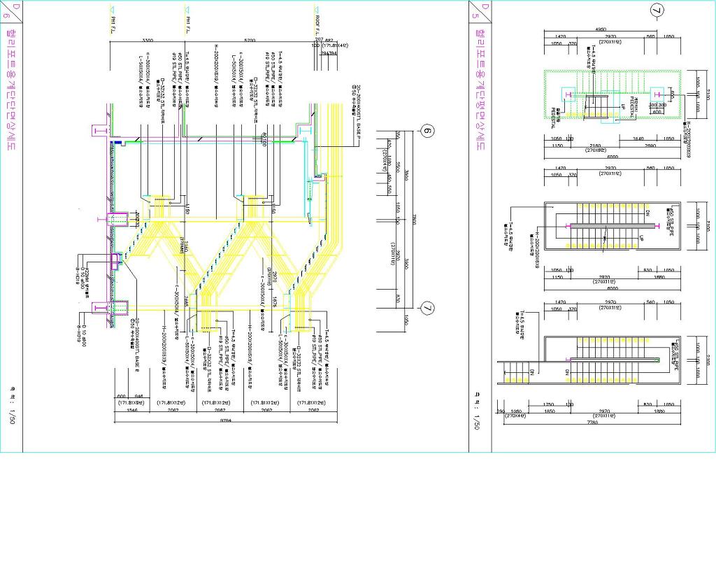
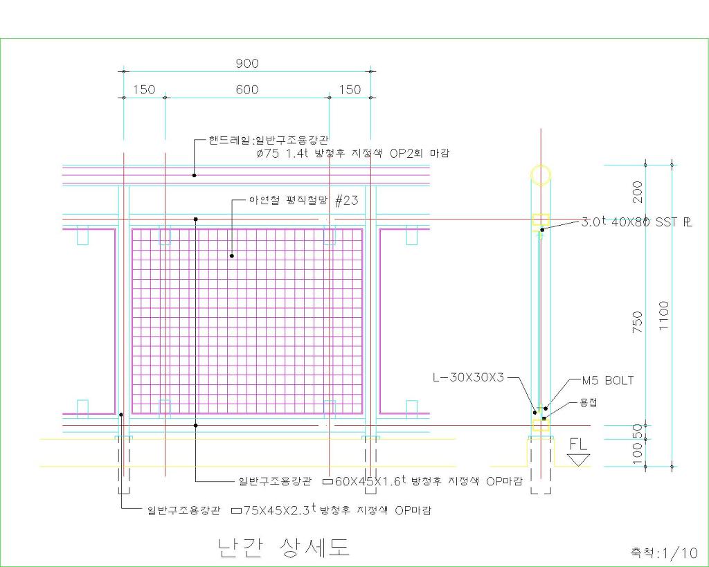
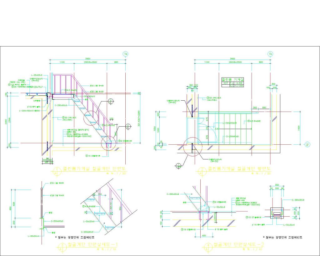
철재계단상세도 및 계단난간상세도 작성자안산진로|작성시간11.05.18|조회수37,601 목록 댓글 36 글자크기 작게가 글자크기 크게가 계단난간상세-철재핸드레일-001.dwg 계단난간상세-철재핸드레일-002.dwg 계단난간상세-철재핸드레일-003.dwg 철재계단_아연도금철재계단-001.dwg 철재계단_아연도금철재계단-002.dwg 철재계단_아연도금철재계단-003.dwg 철재계단_아연도금철재계단-004.dwg 철재계단_아연도금철재계단-005.dwg 철재계단_아연도금철재계단-006.dwg 첨부파일첨부된 파일이 18개 있습니다. jpg 파일 계단난간상세-철재핸드레일-001-Model.jpg jpg 파일 계단난간상세-철재핸드레일-002-Model.jpg png 파일 계단난간상세-철재핸드레일-003-Model.png jpg 파일 철재계단_아연도금철재계단-001-Model.jpg jpg 파일 철재계단_아연도금철재계단-002-Model.jpg jpg 파일 철재계단_아연도금철재계단-003-Model.jpg jpg 파일 철재계단_아연도금철재계단-004-Model.jpg jpg 파일 철재계단_아연도금철재계단-005-Model.jpg jpg 파일 철재계단_아연도금철재계단-006-Model.jpg etc 파일 계단난간상세-철재핸드레일-001.dwg etc 파일 계단난간상세-철재핸드레일-002.dwg etc 파일 계단난간상세-철재핸드레일-003.dwg etc 파일 철재계단_아연도금철재계단-001.dwg etc 파일 철재계단_아연도금철재계단-002.dwg etc 파일 철재계단_아연도금철재계단-003.dwg etc 파일 철재계단_아연도금철재계단-004.dwg etc 파일 철재계단_아연도금철재계단-005.dwg etc 파일 철재계단_아연도금철재계단-006.dwg 다음검색 현재 게시글 추가 기능 열기 북마크 공유하기 신고 센터로 신고 댓글 댓글 36 댓글쓰기 답글쓰기 댓글 리스트 작성자호에엥 | 작성시간 23.10.16 좋은자료 감사합니다! 작성자무광 | 작성시간 24.02.21 좋은 정보 감사합니다. 많은 도움이 되네요 작성자어흥이가면 | 작성시간 25.03.05 감사합니다 필요한자료였는데 잘 쓰겠습니다 작성자entases | 작성시간 25.03.21 감사합니다!!! 작성자한철 | 작성시간 25.10.29 좋은 자료 감사합니다. 댓글 전체보기