서산 한성 필하우스 카페에서 공개한 게시글 입니다
자료] 주, 부출입구 필로티 도면
글쓴이 : 노태식(105-603) 번호 : 57
조회수 : 343
2007.05.09 21:17
|
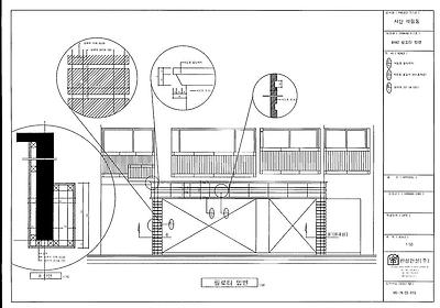
주출입구, 부출입구, 29평 필로티, 35평 필로티 도면입니다.
--> 크게 보실려면 각 두번째 그림을 클릭하세요
1. 주, 부 출입구 도면
2. 29평형 필로티 도면
3. 35평형 필로티 도면
|
오늘 받은 파일입니다. 재촉하여.. 그런데 세가지만 달랑 보내주네요.. 허허.. 내일 또 전화해야 겠습니다. 다 받을 때까지 쭈~욱~~~ 07.05.09 21:34
감사합니다. 이제 시간이 얼마남지 않은걸 한성에서도 알고 있는것이겠죠. 입주예정자 협의회의 한계인거 같습니다. 정식 입주협의회에서 처리할 일들이 많을거 같네요. 입주후 몇년은 시끌한게 당연할거 같습니다. 07.05.10 09:04
샤시설명회가 끝난 후 다시 운영진 모임을 통해 해오던 일을 좀더 조여야 하겠다는 생각이 듭니다. 이제 운영진 모두가 마지막 힘을 모아 사전점검 전까지 어느정도는 얻어야 되지 않을까요. 07.05.10 12:15
다음검색


