CAFE

♣건축관련정보

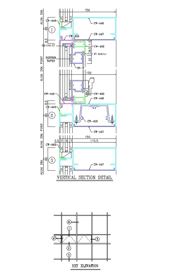
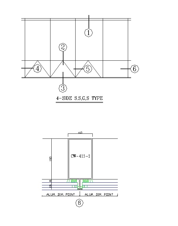
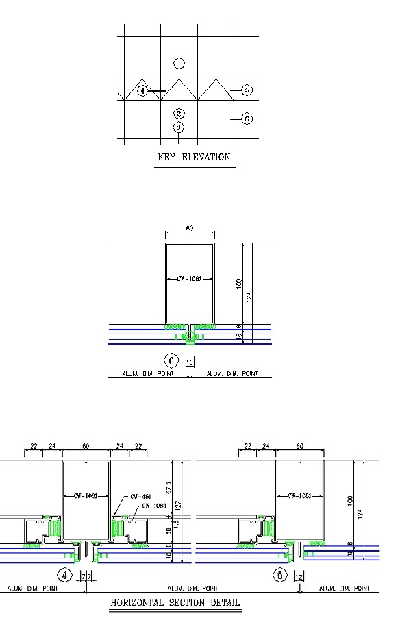
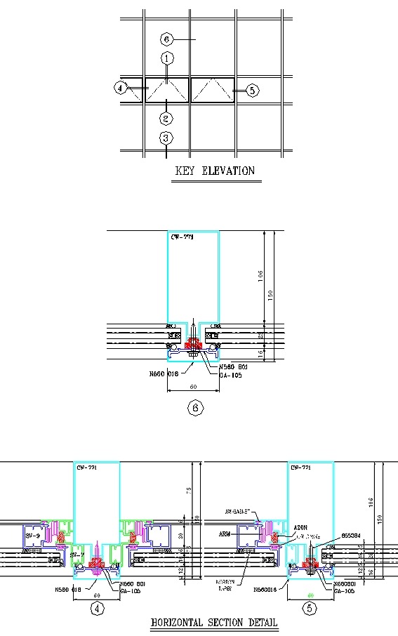
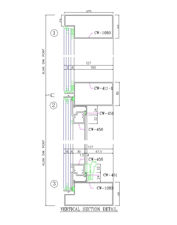
알미늄 단열바(커튼월) 제작과정 및 단면도와 싸이즈, 비단열바 단면도

작성자박동철|작성시간12.11.18|조회수8,556 목록 댓글 0

 

 

 

 

 

 

 

단열바 120mm

 

 

단열바 150mm

 

 

단열바 180mm

 

 

 

 

단열바가 아닌 일반 알미늄바

 

비단열바 120mm

 

 

 

비단열바 130mm

 

 

 

 

비단열바 150mm

 

 

다음검색
현재 게시글 추가 기능 열기
  • 북마크
  • 신고 센터로 신고

댓글

댓글 리스트
맨위로

카페 검색

카페 검색어 입력폼