CAFE

아이스크림 제조공정 & 설비

작성자관리자|작성시간11.09.06|조회수2,834 목록 댓글 0

 

 

    < 아이스크림 제조라인>

  

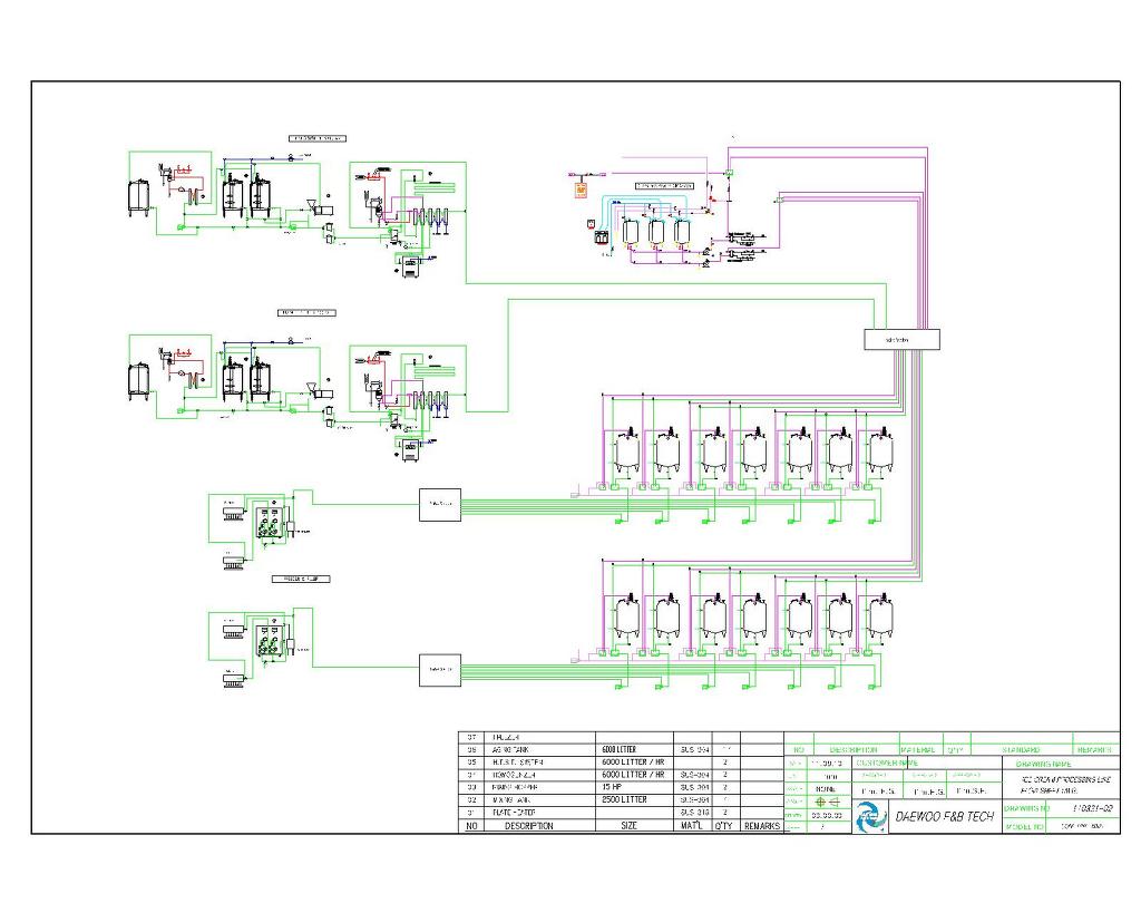
      믹스제조설비 :  믹싱탱크   6Ton x 4대

                            믹싱호퍼  20HP x 2 set

                            온수가열용 열교환기 x 2set

                            Control Panel & 제어 system

 

      살균설비      :  HTST  6,000LITER/HR x 2set

      균질설비      :  HOMOGENIZER    6,000LITER/HR

 

       숙성설비     :   Aging Tank  6,000Liter x 14set

       FREEZER   :   300~1,000LITER/HR x 6set                

       FILLER       :   VITA 14열 x 3 SET

      CIP system   : 3 Tank Reusing system  x 2 Line

 

 

 

 

     < 제조 공정도>

 

 

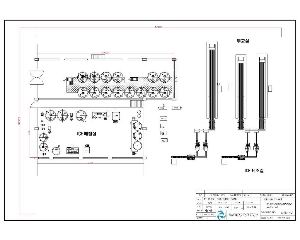
  < 설비 배치도> 

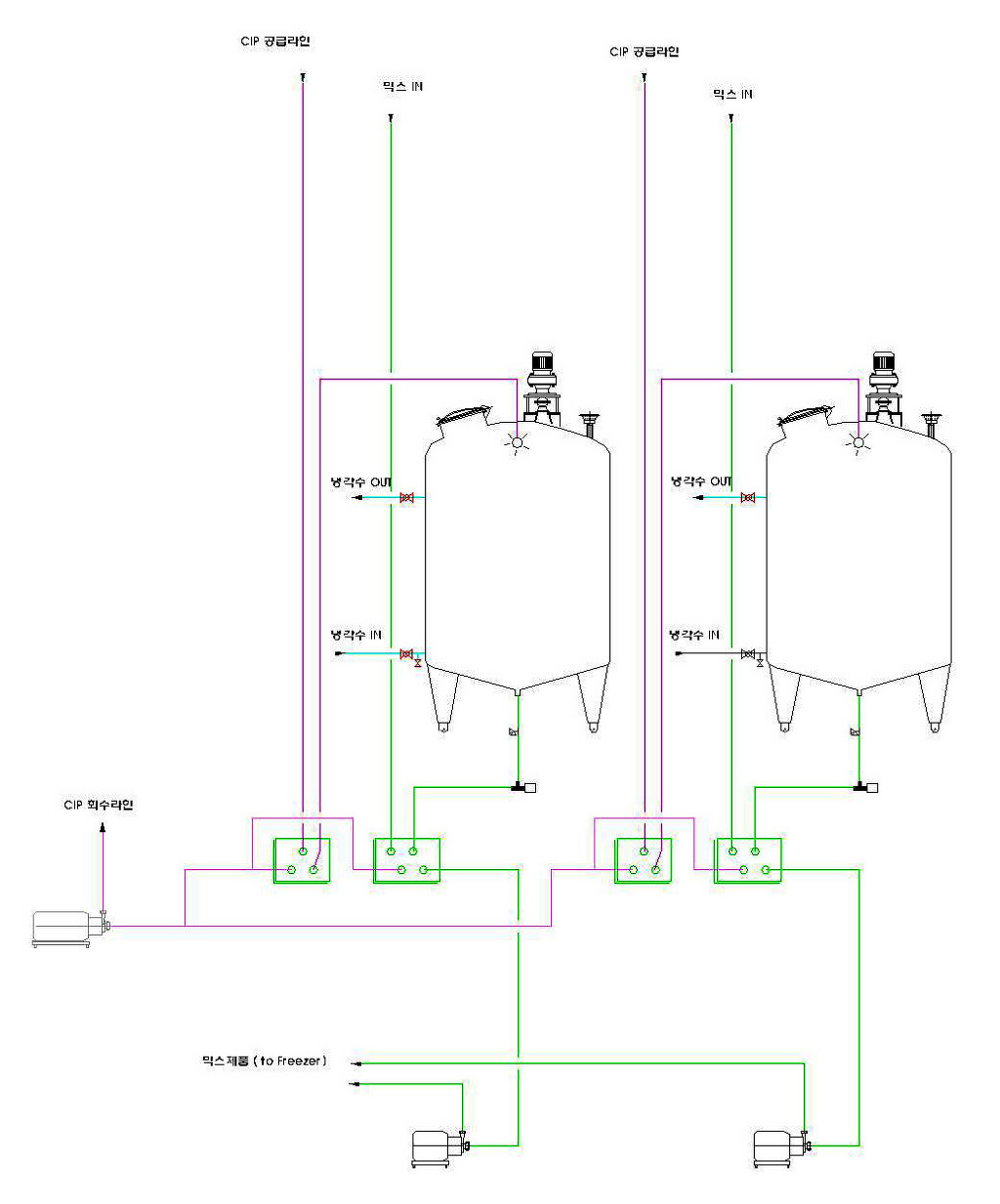
  아이스크림은 유제품의 특성상 설비 사용후 내면 세정작업이 무엇보다도 중요합니다.

 가열하여 혼합하고 살균하는 공정은 계속 살균이 이루어지므로 일반 세척 정도로 가능하지만

 숙성설비와 배관 등은 저온 혹은 상온에서 사용되므로 1회 사용후 반드시 약품 세정과 린스작업을 해야합니다.

 하지만 많은 설비를 가동하고 24시간 움직이다보면 부분적으로 작업이 끝난 설비의 별도 세정이 가능해야 하는데

 동일 시간대에 사용중인 설비와 세정해야 하는 설비가 뒤섞여 있게 되므로 혼용으로 사용되는 설비의

 세정작업은 어려움이 많습니다.

 

 아래 그림은 숙성설비의 세정작업의 일례입니다.

  

     위 그림에서 보듯 바로 옆 탱크 믹스의 숙성과정과는 관계없이 혼자 세정작업이 가능한 구조입니다.

     각 설비마다 CIP 공급라인과 회수라인이 독립적으로 별도로 구성되어 있습니다. 

     바로 옆 설비가 생산작업 중이라 하더라도 별도의 세정작업이 가능합니다.

 

 

 

 

 

< 제조설비 사진>

 

 

 

 

< 믹스 제조설비 ->

    - 살균기와 균질기 그리고 믹싱호퍼 & 혼합탱크 등 믹스제조에 적합한 설비

  

 

 

 

  < 파우더+액상 혼합기 >

  

 

 

 

  < 믹싱탱크 >

  

 

 

 

 

  <숙성 설비>

      -Aging Tank 6,000Liter x 14기

 

 

 

 

   < 균질기 >

     - HOMOGENIZER   12,000Liter / HR

 

 

 

 

 -  Mixing 설비 & CIP 설비 설치중

 

 

 

 

 < Freezer   300kg/HR >

 

 

 

 

 

  Ingredient Feeder  < 혼합기 - 견과류 쿠키조각 등을 아이스크림에 혼합>

 

 

  < VITA LINE  - 스틱바 성형기 설치 중.>

 

 

 

 

 

 

  스틱바 아이스크림 성형기.

 

 

다음검색
현재 게시글 추가 기능 열기

댓글

댓글 리스트
맨위로

카페 검색

카페 검색어 입력폼