CAFE

타이거우드 자재

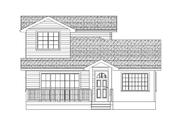
30평대 전원주택/전원주택 평면도/전원주택 설계도/전원주택설계도면/농가주택설계도면/목조주택설계/소형전원주택

작성자바람의신|작성시간13.01.10|조회수456 목록 댓글 0

30평대 전원주택/전원주택 평면도/전원주택 설계도/전원주택설계도면/농가주택설계도면/목조주택설계/소형전원주택 

 

예쁜 30평 복층 전원주택 설계도입니다.

너무 아담하게 잘 나왔습니다.

 

(주)타이거우드에서는 평면도(스케치한것도 좋아요)를 가지고 오시면 3D설계를 무료로 지원해드립니다.

마음속에서 그려둔 멋진 전원주택을 형성화 해보세요

 

 

 

 

 

 

 

 

 

 

 

 

 

 

 

 

목조주택 자재전문

목조주택 3D 설계 무료지원

 

 

 

 

(주)타이거우드

031-763-8781

 

www.tigerwood.co.kr

 

 

 

다음검색
현재 게시글 추가 기능 열기

댓글

댓글 리스트
맨위로

카페 검색

카페 검색어 입력폼