CAFE

‥‥˚* 집 꾸 미 기

마루 위 독립욕조로 우아미 넘치는 타운하우스

작성자돌쇠|작성시간22.09.20|조회수182 목록 댓글 0

 

 

욕실바닥을 하이브리드 마루로 시공해 친환경 건식욕실 완성한 3층 타운하우스 인테리어 엿보기

 

기존 단독주택 인테리어 같지 않은 모던하고 세련된 스타일로 완성한 이 집은 심플한 모노톤 공간에 따뜻함을 더한 마루 시공으로 대형평수지만 아늑한 공간을 연출했습니다. 총 3층 규모로 특히 욕실바닥을 퀵스텝 하이브리드 마루를 깔아 호텔에서 볼법한 건식욕실 스타일로 완성했는데요. 건식욕실은 바닥의 물기 때문에 타일로 마감하는게 일반적이지만 이 집에 시공한 퀵스텝 하이브리드 마루의 경우 습기와 변형에 강하고 세계 최초로 EU에코레벨(Ecolabel)과 플로어스코어(FloorScore) 등 친환경 인증을 받은 제품으로 마루폭 240mm에 길이 2050m로 사용감이 원목마루와 큰 차이가 없고 디자인은 물론 유지관리까지 편하다는 장점이 있습니다.

 

은은한 조명과 친환경 마루 마감이 멋스러운 럭셔리 타운하우스를 소개합니다.

 

 

 

HOUSE INFO

 

위치 남양주시 다산동

규모 지하 1층, 지상 2층

대지면적 392.80㎡(118.82PY)

건축면적 196.16㎡(59.34PT)

연면적 347.89㎡(190.79PY)

구조 철근콘크리트조

주요마감재 외장재-라임스톤, 마천석, 논슬립타일(현관, 화장실), 석재(계단), 포세린타일(거실, 주방, 식당), 친환경 퀵스텝 하이브리드 마루(MJ3551), 1~2층 건식 욕실 바닥 시공

 

 

 

※ 하이브리드마루란? : 열과 수분에 의한 변형을 최소화하는 클릭시스템과 표면강도를 10배 이상 강화시킨 첨단오버레이 기술을 적용하고 특수 프레스공법으로 100% 방수 기능을 구현한 친환경 마루

 

 

 

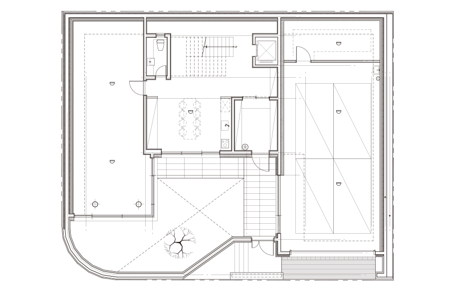
▲지하층 평면도

 

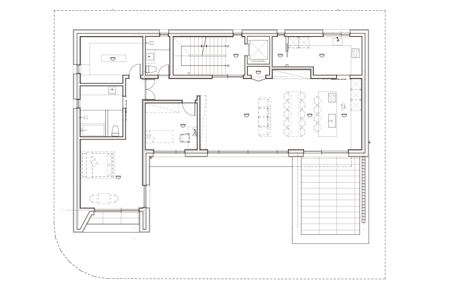
▲1층 평면도

 

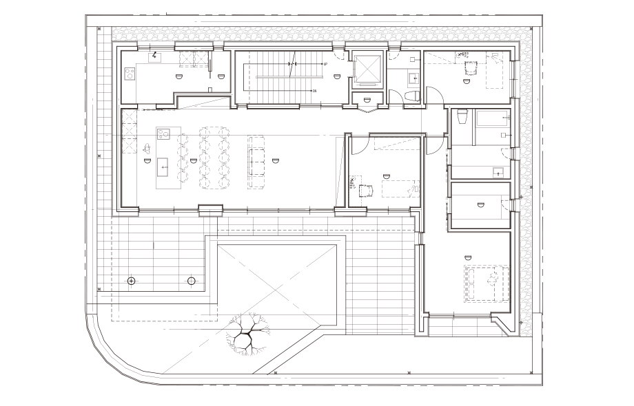
▲2층 평면도

 

▲다락 평면도

 

 

▲3D 이미지

 

 

 

개방감이 돋보이는 심플한 스타일의 거실

 

 

큰 기둥이 자리잡고 있지만 심플한 톤과 마감으로 거슬리지 않고 매립조명으로 깔끔한 천장을 연출한 거실입니다. 적당하게 빛을 차단할 수 있는 커튼과 폭이 큰 마루로 마감해 공간의 개방감을 살렸습니다.

 

 

 

은은한 조명이 감도는 거실과 주방

 

 

주방과 거실이 함께 있는 구조인 공간으로 자연스럽게 공간 구분을 하였습니다.

 

 

매립조명과 간접조명으로 은은하게 공간을 밝혀주고 주방가구는 모노톤의 심플한 스타일로 마감하였습니다.

 

 

다이닝공간은 스폿조명으로 강조하였고 벽면에는 벽부등을 설치하여 고급스러운 느낌을 더했습니다

호텔 부럽지 않은 아늑한 침실

 

 

역시 심플한 톤과 마감으로 연출한 침실은 짙은 컬러의 침대프레임과 협탁을 두어 무게감을 주었습니다.

 

 

 

환경을 생각한 퀵스텝 하이브리드 마루로 연출한 건식욕실

 

 

고급스러운 대리석 마감에 바닥은 마루로 마감하였고 그 위에 독립욕조를 두어 외국 잡지에서 볼 법한 럭셔리한 욕실을 연출했습니다. 사용한 마루는 하이브리드 방수마루이기 때문에 욕실에도 사용할 수 있습니다. 브론즈 수전과 하얀 욕조 옆은 간접조명으로 멋스러운 선반을 제작하여 공간의 퀄리티를 높였습니다.

 

 

안쪽에는 샤워부스를 따로 제작하였고 매립형 브론즈 수전을 설치하였습니다.

 

 

 

LDK구조로 효율성을 높인 공간

 

 

2층 역시 1층과 비슷한 LDK구조입니다. 주방은 아일랜드 키친구조로 되어있고 벽면에도 수납장을 제작해 여유있는 공간을 완성했습니다.

 

 

 

소파와 TV가 있는 공간은 바닥에 카펫을 깔아 아늑함을 더했습니다.

 

 

 

사선 천장이 매력적인 다락방

 

 

 

천장이 사선으로 되어있어 매력적인 3층은 최대한 심플하게 연출하여 다양한 용도로 사용할 수 있도록 했습니다.

 

 

야외 테라스로 나가는 창 역시 천장의 형태를 따라 멋스럽습니다.

 

 

 

대리석 패턴이 멋스러운 건식욕실

 

 

마루 위에 독립욕조를 두어 독특하고 개성있는 욕실을 완성했습니다.

 

 

넓은 욕실 공간에 센스있는 배치가 돋보이는 공간으로 욕조와 샤워부스를 함께 두어 건식과 습식 공간의 거리를 최대한 줄였습니다.

 

 

반대편에는 세면대 겸 화장대를 넓게 배치하였습니다. 욕실 자체가 건식으로 구성되어있기 때문에 바닥은 1층과 마찬가지로 마루로 마감하였습니다.

 

 

 

퀵스텝 하이브리드 마루는 습기에 의한 뒤틀림을 최소화하고 생활방수가 되기 때문에 욕실 리모델링 시 참고해도 좋겠죠?

 

 

다음검색
현재 게시글 추가 기능 열기

댓글

댓글 리스트
맨위로

카페 검색

카페 검색어 입력폼