CAFE

전원주택 이야기

산청 C주택

작성자문인방|작성시간22.09.15|조회수233 목록 댓글 0

‘산청 C주택’은 건축주 부부가 서울에서 산속으로 귀촌을 결심하며 계획한 집이다. 산지 특성을 고려하여 도시의 주택과는 다르게 건물을 설계했다. 건축주의 요구는 1층 건물로서 유지보수가 간편하며 비를 맞지 않는 실내주차장 그리고 여러 위험으로부터 안전한 집을 만드는 것이었다. 

ⓒYoungchae Park

ⓒYoungchae Park

 

도로에서 집을 바라볼 때 생길 수 있는 사생활 노출을 방지하기 위해 도로 방향에는 창문을 두지 않고 출입문 앞에 가벽을 만들었다. 가벽은 외부 시선을 차단할 뿐만 아니라 조명을 설치해 집의 표정을 더하고 캐노피 유리의 지지대와 작은 벤치 등 여러 방식으로 활용된다. 

전면 도로에서 집을 바라본 모습 ⓒYoungchae Park

입면도ⓒHwang June Architect & Associates

 

주차장은 안에 숨기지 않고 집의 외관과 연결하여 디자인 요소로 보이도록 했다. 주차장 상부에는 천창을 만들어 차와 지면이 비를 맞지 않고 빛이 주차장 안까지 들어오도록 했다.

주차장 ⓒYoungchae Park

주차장 측면에는 5m의 창이 있다. ⓒYoungchae Park

 

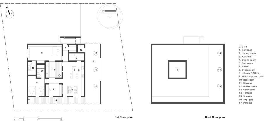
산속의 집은 범죄 및 산짐승 등의 침입을 우려하여 문과 창문을 열고 지내기 어렵다. 이 문제를 해결하기 위해 집 중심에 중정을 만들어 언제나 안전하게 문을 열어 놓을 수 있도록 했다. 또한 모든 공간은 중정을 통해 환기와 채광이 가능하다. 그러나 창문을 비롯한 모든 문이 중정을 통해서만 열린다면 안전성은 확보될지 몰라도 시야가 답답할 수 있다. 이 같은 이유로 집 남측에 문이 아닌 큰 창문을 배치했고 내부에서는 중정을 통해 건너편의 공간과 동시에 창밖의 풍경도 함께 볼 수 있다.

집 중심에 있는 중정 ⓒYoungchae Park

중정의 빛이 들어오는 복도 ⓒYoungchae Park

남측 입면 ⓒYoungchae Park

 

거실과 주방은 큰 공간 안에 하나로 구성해 다목적으로 사용이 가능하도록 만들었다. 실내 마감재는 자작나무 합판과 아이보리색의 친환경 도장, 철판을 사용했으며 가구도 마감재를 그대로 사용하여 디자인에 통일감을 더했다. 산지와 같이 도심과 떨어진 집의 가장 큰 문제는 유지관리다. 도시가스가 없는 지역이므로 기름 또는 가스보일러를 사용해야 하지만, 위험할 수 있어 새로운 방식의 냉난방(중앙집중식 공기정화장치 및 열교환시스템)을 설치하여 관리 비용을 줄이고자 했다. 

평면도ⓒHwang June Architect & Associates

ⓒYoungchae Park

서재 ⓒYoungchae Park

 

디자인 Design  황준도시건축사사무소 hwang june architect & associates

책임 건축가 Architect in Charge황준 June Hwang

건물 위치 Location  경상남도 산청군 단성면 방목리 Bangmok-ri, Danseong-myeon, Sancheong-gun, Gyeongsangnam-do, Korea

건축 형태 Type 신축 New-built

건축 용도 Programme 단독주택 Single Family House

대지 면적 Site area  560.00㎡

건축 면적 Building area  186.00㎡

연면적 Total floor area  186.00㎡

규모 Building scope  1F

건폐율 Building to land ratio  33%

용적률 Floor area ratio  33%

주요 구조 Main Structure 철근콘크리트 RC

외장 마감재 Exterior finish인조 목재 Timber SKK, 세라타이트 코팅 Ceratite coating

내부 마감재 Interior finish자작나무합판 Birch plywood, 목재바닥판 Wood floor, 친환경 페인트 Eco paint

구조 Structural engineer  티섹구조 TSEC GROUP

기계 Mechanical engineer  (주)천일이앤씨 Cheonil E&C

전기/통신 Telecommunication equipment  (주)천일이앤씨 Cheonil E&C

완공 연도 Year completed  2018

사진가 Photographer  박영채 Youngchae Park

 

에디터. 윤현기  글 & 자료. 황준도시건축사사무소 Hwang June Architect & Associates

출처 브리크매거진 magazine.brique.co

다음검색
현재 게시글 추가 기능 열기

댓글

댓글 리스트
맨위로

카페 검색

카페 검색어 입력폼