EDGE HOUSE

HOUSE PLAN
대지위치 : 일본 효고현 니시노미야시(兵庫 西宮市) / 대지면적 : 637.26㎡
건축면적 : 94.39㎡ / 연면적 : 149.52㎡ / 조경면적 : 487.74㎡
건폐율 : 14.81% / 용적률 : 23.46% / 규모 : 지상 2층
구조 : 철근콘크리트조 / 지붕재 : 파라텍스 C-3공법, 노출콘크리트
외부마감 : 노출콘크리트, faith guard out 수성페인트 / 내부마감 : 벽 - 노출콘크리트, 마루 - 타일&마루온열
디자인팀 : 모리무라노리요시 건축설계사무소 www.morimura.org
설계 : 모리무라노리요시 office@morimura.org / 구조계산 : 키요사다건축구조사무소


시라카바 고원의 메가미산은 형세가 완만해 편안한 느낌을 주는 명산이다. 산정에 위치한 부지는 정류소에서도 한참을 올라가야 하지만, 그런 만큼 멋진 풍광을 선사한다. 울창한 나무들로 둘러싸인 대지에 서면 대자연을 느낄 수 있고, 오사카만에서 코베항까지 한 눈에 들어오는 전경을 즐길 수 있다. IT업에 종사하는 건축주는 평소 과다한 업무 탓에 여유로운 시간을 가질 수 있는 주거공간을 소망해 왔고, 때문에 메가미산 둔덕에 부지를 마련했다. 건축주의 마음에 십분 공감하며, 이제까지의 주택에 대한 고정관념을 과감히 탈피한 색다른 주거공간을 구상하게 되었다.

SITE PLAN



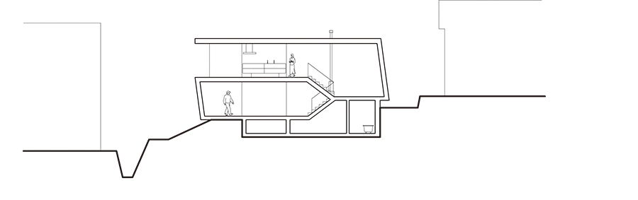
EAST SECTION 
NORTH ELEVATION

‘보다 자연스러운 기능적 레이아웃과 주거시스템을 조합해 기존의 관념을 넘어선 다른 차원의 라이프스타일을 얻을 수 없을까? ’디자인 초안은 이러한 질문을 토대로 출발했다. 먼저 산의 경사를 따라 건물 슬래브를 ‘ S ’자 형태로 접었다. 집의 가운데는 위아래로 개구부를 뚫어, 전체적으로 하나의 일정하고 단순한 흐름을 따르는 ONE-BOX의 집을 만들었다. 주변 환경, 가족관계, 이웃과의 커뮤니케이션을 어떻게 형태와 매치시킬 것인가가 ‘ S ’자로 접힌 외관의 중요한 열쇠가 되었다. 명칭에 따라 용도를 구분 짓지 않고 애써 벽으로 구획을 만들지도 않았다. 그저 ‘먹고·쉬고·자는’ 특정행위가 자연스럽게 공간적인 레이아웃을 형성하도록 그렇게 두었다. 결과적으로는 곳곳이 쓰임새에 따라 고유의 기능을 가지게 되고, 그것이 전체 구조를 이루는 이색적인 집이 만들어졌다. ‘EDGE HOUSE에는 방이라는 개념이 없다’이것이 부족하나마 해답이 되지는 않았을까.


2F PLAN 
1F PLAN

공사 내내 특이한 외관으로 주목을 받았지만 실제로 우리가 관심을 가져야 할 것은 그렇게 된 이유와 과정이고, 그보다 앞서서는 주거공간이다. 겉으로 드러난 것은 공간 조성을 풀어나간 결과일 뿐이다. 건축주가 원하는 앞으로의 삶. 그것이 잘 투영되어 구체적인 형태로 드러날수록 주택의 완성도가 높아진다는 것을 잊지 말아야겠다. 그런 의미에서 EDGE HOUSE는 건축주의 꿈과 바람이 아름다운 형태로 표출된 좋은 예로 남지 않을까.
에디터_김연정 | 사진_모리무라노리요시건축설계사무소 제공
농가주택 .시골집 수리하기.전원주택,통나무 주택,목조주택,주말주택,컨테이너 하우스, 아동식주택.세컨드 하우스.황토주택,
귀농,귀촌, 강원도 부동산, 횡성 부동산의 모든것이 산골 전원주택 이야기에 다 있습니다
한번의 추천은 우리의 마음을 풍요롭게 한답니다
산골 생활의 20년 노하우가 아래에 다 있습니다.

//<![CDATA[
redefineLink();
//]]>