CAFE

전원주택 이야기

내진·결로·단열에 대응한 ALC 주택

작성자판대공|작성시간22.02.18|조회수138 목록 댓글 0

내진·결로·단열에 대응한 ALC 주택

영덕 Y-Project House

 

‘지진에 약하다’, ‘결로가 많다’ 등 잘못된 시공으로 많은 오해가 따라붙고 있는 ALC. 이런 오해를 불식시키는 정석 그대로의 ALC 시공을 영덕에 지어진 시범주택으로 만났다.

“많은 사람이 ALC를 생소하고 특이한 자재로 생각하지만, 유럽에서만 연간 4천만㎥, 일본에서 160만㎥(패널 한정), 국내에서도 45만㎥가 생산, 사용되고 있는 신뢰성 있고 대중적인 자재입니다.”

우리나라에서 전문적으로 ALC(경량기포콘크리트)를 생산하는 쌍용ALC의 이현수 대표. 그는 세계적으로 구조와 단열에서 우수한 건축자재로 손꼽히고 있는 ALC가 국내에서는 불완전한 시공 때문에 ‘결로가 많고 습기에 약하다’는 등 하자 많은 자재로 번번이 오해받는 것이 안타까웠다. 그래서 쌍용ALC는 2016년 경북 예천의 ‘P-Project(본지 2016년 9월호 게재)’를 시작으로 ‘하자 없는 ALC 시공의 정석’을 직접 제시하고 있다.

▶ ALC란? ALC는 ‘Autoclaved Lightweight Concrete’의 약자로, 천연소재인 규석을 주원료로 생석회, 석고, 시멘트, 물 등을 혼합·발포시켜 고온·고압 상태에서 양생한 자재를 말한다. 경량기포콘크리트라고도 부르며 1923년 개발돼 지금까지 수많은 건축물에 쓰여왔다.

HOUSE PLAN

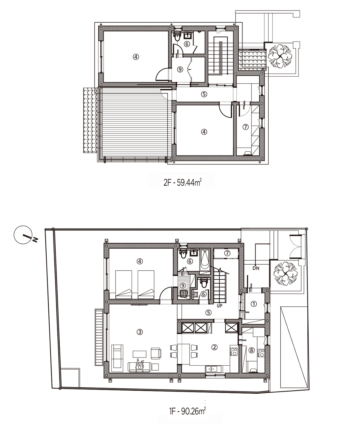
대지위치 ▶ 경상북도 영덕군 | 대지면적 ▶ 222㎡(67.27평) | 건물규모 ▶ 지상 2층
건축면적 ▶ 111.71㎡(33.85평) | 연면적 ▶ 149.70㎡(45.36평)
건폐율 ▶ 50.32% | 용적률 ▶ 67.43%
주차대수 ▶ 1대 | 최고높이 ▶ 9.20m
구조 ▶ 기초 – 철근콘크리트 매트기초 / 내벽 : ALC 고강도블록 200T, ALC 발수블록 200T / 외벽 : 저비중·고단열 ALC-i 300T, 350T, 바닥 : ALC 고강도 바닥 슬래브 패널 250T / 지붕 : ALC 고강도 지붕층 슬래브 패널 200T
단열재 ▶ 바닥 - 압출법보온판 특호 50mm, 100mm, 150mm, 200mm / 외벽 - 무기질불연내화단열재 에어셀(Aircell) 50T Roof Garden 일부적용 / 지붕 - 에너지세이버 25K(가등급단열재 R40-23)
외부마감재 ▶ 외벽 – ALC 전용마감재 알시톱 / 지붕 – 점토오지기와
담장재 ▶ 적벽돌, 시멘트블록, 큐블록(Q3) | 창호재 ▶ 가울호퍼(Gaulhofer) 48mm AL 삼중유리(0.75W/m2K), 44mm AL 삼중유리(0.82W/m2K) | 에너지원 ▶ 가스보일러(LPG)
구조설계(내진) ▶ 조우엔지니어링 신도승 구조기술사 02-453-0611
설계 ▶ 현 건축사사무소 박홍배 건축사 02-581-3756
시공 ▶ ㈜에스와이씨(본사 직영 시공) 1899-1728, blog.naver.com/sesimjun

 

2017년 12월부터는 모든 주택에서 내진 설계가 의무화가 되면서 ALC 조적 주택에 대한 의문을 갖는 사람이 많았다. 이 대표는 이번에도 직접 ALC 내진 설계의 선진국인 이탈리아, 프랑스 등의 내진 설계 공법을 기반으로 구조기술사와 함께 설계 매뉴얼인 ‘ALL 쌍용ALC 내진 설계 일반사항’을 마련했고, 앞선 지진 발생지역과 가까워 내진 성능을 검증하기에 적합한 영덕에 첫 시범주택 Y-Project를 출범시켰다. 그럼, 어떤 요소가 ALC 내진 주택을 만들고 Y-Project에는 어떻게 적용되었는지, 강화가 예고되어 있는 단열에 있어서는 어떤 디테일을 가지는지 알아보자.

SECTION ① 현관 ②주방/식당 ③거실 ④침실 ⑤복도 ⑥욕실 ⑦창고 ⑧다용도실 ⑨드레스룸

 

① 2층 ALC 주택의 내진 설계, 어떻게 이뤄지나

모든 단독주택 및 공동주택은 필수적으로 내진 설계를 적용해야 한다. 그래서 착공 신고 시 ‘구조안전확인서’를 제출해야 한다. 다만, 주택과 같은 소규모 건축물의 경우 ‘소규모건축물구조’라는 보다 간략화된 서식으로 대체할 수 있는데, 아직 ‘층고 4m, 2층 이상의 ALC 조적 구조’는 포함되지 않아 따로 구조계산서를 작성해야 한다. 이때 ‘ALL 쌍용ALC 내진 설계 일반사항(이하 내진 설계)’을 건축 설계에 반영한 뒤 구조 검토를 진행하면 구조안전 및 내진설계확인서를 무리 없이 검증 및 발급받을 수 있다.

지붕 슬래브 패널까지 안착된 시범주택의 모습

내진 설계 적용 범위는 벽, 바닥, 지붕 모두 쌍용ALC를 사용하는 2층 이하 주택으로, 벽체는 홑겹 기준, 설계 기본 풍속이 45m/sec 이하인 지역에 위치한 건축에 한한다. 내력벽은 최소 200mm 이상이어야 하며 모든 내력벽체는 막힌 줄눈쌓기로, 서로 수직으로 만나는 벽체끼리는 물려쌓기 한다. 내력벽도 X-Y축 양방향으로 고루 분포해야 하고, 1층과 2층 내력벽의 위치는 지붕까지 단절 없이 연속 및 일치해야 한다. 벽체가 차지하는 면적을 가리키는 벽량은 클수록 내진 성능에 유리하고, 이런 평면 면적에서 벽량이 차지하는 비중인 벽률은 최소값 이상을 만족해야 한다. 이때 두께 200mm 이하의 비내력벽은 계산에 포함하지 않는다.

 

② 기초부터 시작하는 ALC 보강 기둥

지진으로 인한 횡력(수평력)에 대응하기 위해 철근을 삽입하고 모르타르를 충진하는 보강 기둥을 설치한다. 보강 기둥은 구조의 모든 모서리에 들어가야 하며, 그 간격이 최대 7m를 넘지 않도록 해야 한다. 보강 기둥이 부족하다면 현장 상황에 맞춰 추가 설치하도록 한다. 보강기둥은 기초부터 지붕 테두리보까지 끊김 없이 곧바로 이어져야 하며 보강 기둥의 철근은 기초까지 닿아 서로 이어져야 한다.

1 - 보강 기둥이 들어갈 자리에 마련된 기초 보강 부위인 다웰바 / 2 - 기둥이 들어갈 자리에 포함된 블록은 미리 타공하고 조적한다. / 3 - 모르타르 충진 전의 보강 기둥. 테두리보가 마저 배치되고 충진이 이뤄진다.

보강 기둥 설치 예정 자리에는 기초를 타설할 때부터 HD13(직경 13mm) 철근 4개를 기초 위로 500mm까지 뽑아놓아 다웰바(Dowel Bar)를 마련한다. 이 다웰바는 기초와 보강 기둥을 결합하는 역할을 하게 된다. 다웰바 자리를 중심으로 직경 150mm짜리 천공을 타공한 ALC 블록을 물려쌓아(막힌 줄눈) 테두리보 높이까지 조적하고 나면, 미리 제작한 보강 철근을 천공 자리에 삽입, 보강 철근이 다웰바에 닿도록 한 다음 모르타르를 충진하고 마무리한다.

 

③ 정확한 걸침 길이와 보강근으로 강화된 슬래브 패널

ALC 슬래브 패널은 블록 제품과 달리 인장력에 견딜 수 있도록 바닥용은 주근 Ø9-10mm에 스트럽(Stirrup, 주근을 감싸는 띠철근) Ø7mm가, 지붕용은 주근 Ø8mm에 스터럽 Ø6mm가 제품 생산 시 삽입되어 있다(설계 하중에 따라 달라질 수 있음).

1 - 지붕과 바닥 패널은 무게가 만만치 않아 크레인과 ALC 패널 전용 그립을 사용해 옮기고 자리에 안착시킨다. / 2 - 바닥 슬래브 패널이 모두 자리를 잡은 모습. 가는 홈은 장변 접합부 보강근이 들어가는 자리다. 굵은 홈에는 내벽 테두리보가 들어가게 된다. / 3 - 장변 접합부에는 보강근과 모르타르가 충진될 수 있도록 패널을 제조할 때부터 홈이 파여있다.

최대 길이 6m, 폭 300~600mm, 두께 200, 225, 250T까지 생산되는 바닥 슬래브 패널을 기준으로, 내력벽체 블록과의 걸침 길이는 장변(길게 걸치는 쪽)으로 20mm, 단변(짧게 걸치는 쪽)으로 70mm 이상 줘야 한다. 단열 성능이 강화된 ALC-i 블록으로 된 벽체라면 패널 길이 4.5m 이상일 때 단변으로 100mm 이상 걸치도록 한다.

지붕·바닥 슬래브 패널이 자리에 안착하고 나면 패널 장변 접합부에는 패널에 미리 파여있는 홈에 맞춰 보강근을 배근한다. 바닥 슬래브 패널의 경우 장변 접합부에 HD10 철근이 한 개 삽입하고 전용 모르타르를 충진한다. 한편, 지붕 슬래브 패널의 지붕 경사각은 최대 27°을 넘지 않게 주의해야 한다.

 

④ 수평력에 저항하는 테두리보

내력벽체 위 2층 바닥 및 지붕 슬래브 패널이 수평 방향으로 흔들리는 힘에 저항할 수 있도록 모든 내력 벽체 상부에 테두리보를 설치해야 한다.

1 - 테두리보는 ALC 경계블록(50T), 단열재(압출법보온판 50T), 테두리보, ALC 슬래브 패널(걸침 길이 부분, 장변 20mm, 단변 70/100mm)로 구성되어 있다. / 2 - 내벽 걸침 부위 위로 테두리보가 배치되어 있다. / 3 - 보강 기둥과 외벽, 내벽 테두리보가 한데 모여 결합된 모습

테두리보는 슬래브 패널 두께 이상으로 설정해 보강철근을 만들게 되는데, 외벽의 경우 폭 150mm 이상, 상부와 하부에 HD13 철근을 각각 두 개씩 네 개, Ø6 스트럽을 250mm 간격으로, 내벽은 주근 HD13 두 개와 Ø6 스터럽을 1,200mm 간격으로 적용한다.

보강철근이 해당 위치에 놓이고 나면 테두리보와 보강 기둥, 슬래브 패널 장변 접합부의 보강철근을 서로 묶고 모르타르를 충진해 마무리한다. 테두리보의 외벽 경계에 압출법보온판을 쓰는 것은 1차적으로 ALC보다 열관류율이 높은 테두리보로 인해 발생할 수 있는 열교를 효과적으로 차단하기 위함이고, 2차적으로는 모르타르에 포함된 수분의 영향을 최소화하기 위함이다.

 

⑤ 개구부를 지탱하는 고강도 인방보와 하부 보강

개구부의 상단을 떠받치는 인방보에는 반드시 일반 블록이 아닌 ‘ALC 고강도 내력 인방보’가 적용되어야 한다. 고강도 인방보를 적용하더라도 외벽 모서리에서 수평 거리 1.2m 안에는 개구부 설치를 피해야 하며, 같은 층에 개구부를 여러 개 설치하는 경우에도 개구부 간 수평 거리가 1m 이상이어야 한다.

1 - 크레인을 사용해 고강도 내력 인방보를 설치 위치로 옮기고 있다. / 2 - 인방보나 블록은 고무 망치를 사용해 정밀하게 자리를 맞춘다. 이때 금속 망치를 사용하면 블록이 깨질 수 있어 주의해야 한다. / 3 - 개구부 하단에도 한 켜 아래에 철근을 삽입해 수평 줄눈을 보강한다.

인방보는 설계 하중(kg/m2)에 따라 제품 규격이 결정되며, 개구부 폭에 맞춰 최소 걸침길이 이상을 걸쳐야 한다. 개구부 하부에도 수평줄눈 보강을 위해 홈파기를 하고 보강근 배근 후 모르타르를 충진한다. 보강근의 경우 주근이 HD10짜리 철근이라면 2개를, HD16짜리라면 1개를 배근한다.

 

⑥ 무기질불연단열재와 그라스울로 보강한 단열

ALC는 그 자체로 단열 성능이 우수해 두께가 충분한 외벽의 경우 별도의 단열재가 필요하지 않다(2018년 7월 기준). 이번 시범주택에는 내벽에 일반품(비중 0.5, 0.6)을, 외벽에 일반품 대비 약 13%의 단열 성능이 향상된 ALC-i 300T, 350T을 적용했다. 다만, 지붕 슬래브 패널의 경우 추가 단열재를 적용해야 단열 기준을 맞출 수 있다. 이때 시공되는 단열재는 반드시 무기질 계열의 단열재(그라스울, 미네랄울 등)를 사용해야 한다. 테라스 바닥 슬래브 아래와 2층 손님방 테라스 방향 벽체에는 ALC와 비슷한 제조과정을 거쳐 물성이 잘 맞게 개발된 무기질불연단열재 ‘에어셀(Aircell)’ 50T가 적용되었다.

1 - 외벽에는 일반블록과 비교해 단열 성능이 향상된 ALC-i 블록을 사용했다. / 2 - 일부 벽체에는 무기질불연단열재 에어셀로 단열을 보강했다. / 3 - 지붕 슬래브 패널 단일 제품으로는 단열 기준을 충족하기 어려워 그라스울을 추가 적용했다.

한편, 오는 9월부터 중부지역이 중부 1과 2로 분리되고 열관류율 기준이 높아지는 등 지역 단열 기준이 강화된다. 남부지역과 제주도는 큰 변화가 없어 현 상황으로도 대응할 수 있지만, 중부 1지역은 일반품 ALC를 적용해 높아진 단열 기준을 맞추려면 두께가 575mm, ALC-i도 500mm에 달하게 된다. 이에 따라 기존 블록에 에어셀로 단열을 보강해 대응하고 있다.

 

⑦ ALC에 최적화된 인테리어와 마감

ALC의 가능성을 보여주기 위한 집인 만큼 마감에 있어서도 ALC의 성능은 최대한 끌어내고 하자는 최소한으로 만드는 자재를 선택해 적용했다. 흔히 ALC의 단점이라고 여기는 결로나 습기 문제는 제조과정에서 높아지는 함수율을 시공 후 자연 건조를 통해 배출해야 하는, ALC의 특성을 감안하지 않은 탓이 크다. 특히 ALC를 시공하고나서 실크(비닐)벽지 등 통기성 없는 마감재를 사용하는데서 문제가 발생하는 만큼 Y-Project에는 실내에 통기성 있는 섬유벽지와 일본에서 직접 수입한 조습 기능이 있는 천연규산칼슘계 타일을 적용했다.

고강도 슬래브 패널과 보강근 덕분에 거실 면적도 넓게 잡을 수 있었다.

2 - ALC 전용 마감재가 사용된 외벽. 마당 쪽 처마는 별도의 목공사를 통해 만들어졌으며, 벽체와의 결합은 ALC 전용 앵커와 철물을 통해 이뤄졌다. / 3 - 2층 옥상 테라스는 부족한 마당 면적을 보충해 야외활동이 이뤄지는 곳으로 쓰인다.

INTERIOR SOURCE

내부마감재 ▶ 벽 – 유리섬유보강벽지(Intect-S) 위 수성 친환경페인트 / 바닥 – 원목마루, 맥반석
욕실 및 주방 타일 ▶ 대림바스, 한샘 | 수전 등 욕실기기 ▶ 그로헤, 대림바스, COOCERA
주방 가구 ▶ 한샘 | 조명 ▶ 필립스 LED조명, 삼성 LED조명 등
계단재·난간 ▶ 오크집성목 + 철재난간, 평철난간(Roof Garden) | 현관문 ▶ 가울호퍼(Gaulhofer)
중문·방문 ▶ 예림 3연동 도어
방문 ▶ 예림도어 | 데크재 ▶ 이페원목 60mm

인테리어 공사에 있어서도 이런 점이 고려되었다. 거실의 우물천장은 단순히 간접조명을 배치하기 위한 목공사 성격에 그치는 것이 아니라, ALC의 통기성을 확보하는 역할을 겸하도록 의도했다. 주택의 외부에는 낮은 투수성과 내부에서 발생하는 수증기를 배출하는 통기성을 가진 독일산 ALC 전용 플라스터 마감재를 사용했다. 덕분에 기초부터 골조, 마감까지 ALC 주택의 정석을 총집합한 시범주택 Y-Project가 탄생할 수 있었다.

PLAN ① 현관 ②주방/식당 ③거실 ④침실 ⑤복도 ⑥욕실 ⑦창고 ⑧다용도실 ⑨드레스룸

 

건축주 SAY / 유재관, 김위순 씨 부부

새집증후군이 걱정된다면 ALC를 기억하세요.
ALC가 따뜻하고 구조도 믿음직스럽다는 것은 이미 알려져 있지만, 지어지는 과정을 보며 더욱 신뢰가 생겼습니다. 저희가 꼽고 싶은 인상적이었던 부분은 이전 집이나 잠시 머물렀던 다른 공간과 비교해 아침을 맞는 상쾌함이 다르다는 것이었습니다. 새집 냄새도 전혀 없었고요. ‘ALC는 숨을 쉬는 자재’라는 이야기를 몸이 느끼는 개운함으로 알았습니다. 새집증후군에 민감한 예비 건축주 분이라면 ALC의 이런 장점도 염두에 두시면 좋겠습니다.

취재_ 신기영 | 사진_ 최지현

출처 월간 전원속의 내집

다음검색
현재 게시글 추가 기능 열기

댓글

댓글 리스트
맨위로

카페 검색

카페 검색어 입력폼