CAFE

전원주택 이야기

자연과 마주할 때 가장 빛나는 집 칠레 Hatch House

작성자상방|작성시간22.03.08|조회수135 목록 댓글 0

자연과 마주할 때 가장 빛나는 집 칠레 Hatch House

칠레 목조주택

생태보호구역에 위치한 이 주택은 테라스와 후정을 자연과 마주하도록 배치해 존재감을 높였다. 내부는 목재 마감으로 따뜻한 분위기를 연출하고, 컬러 가구로 공간에 생동감을 부여했다. 지붕에 솟은 ‘해치’는 주택의 포인트이자 다양한 빛을 담아내며 동시에 쾌적한 실내를 유지하게 한다.

글 크리스티앙 보자 윌슨(Cristián Boza Wilson) | 진행 남두진 기자 | 사진 크리스티앙 보자 윌슨(Cristián Boza Wilson) | 자료제공 하우저(건축&인테리어 매칭 플랫폼), 보자 윌슨 아키텍토(Boza Wilson Arquitectos)

SPACE INFO
위치 칠레 발파라이소 주 키요타 현 이후엘라스
대지면적 162.00㎡(49.00평)
준공년도 2020년
설계 크리스티앙 보자 윌슨(Cristian Boza Wilson),실비아 자마니(Silvia Zamagni),
       호세 비스카라(José Vizcarra)www.bozawilson.com

입면도

주택은 다양한 식물들이 어우러진 생태보호구역에 위치한다.

건축은 ‘구조, 기능, 미’ 세 가지 요소를 반영한 결과물이다. 설계는 간결한 실 계획부터 단순하지만 보편적이지 않은 형태, 자연을 가까이 하기 위한 구조계획까지 균형을 이뤄 진행했다.

주택은 다양한 식물들이 어우러진 생태보호구역에 위치한다.조망점 갖춘 생태보호구역

칠레는 위도에 따라 다양한 기후를 가지고 있다. 부지는 중부지역 중에서도 북부 사막 지역과 인접해 매우 건조한 이후엘라스에 위치하는데, 우뚝 솟은 야자수와 다양한 꽃들이 어우러진 생태보호구역이다. 이러한 환경 조건에서 해안 산맥과 계곡 사이에 묵직한 형태로 매스를 앉혔다.

목재로 마감한 내부에서 가구 색조는 생동감을 더한다.

목재로 마감한 내부에서 가구 색조는 생동감을 더한다.

그리고 동쪽과 서쪽에 각각 형성된 산맥과 계곡을 조망할 수 있도록 한 구조를 설계에 중요한 요소로 반영했다. 주택은 펼쳐진 자연에 대한 조망과 바위 봉우리에 색을 물들이는 일몰로 한층 존재감이 두드러진다.

침실. 구조 합판 가구는 칸막이벽 역할을 한다.자연을 연장한 간결한 계획

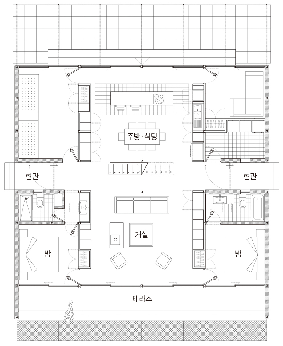
주택은 메인 공간(주방, 식당, 거실)을 동서 방향으로 나열한 후, 그 중심으로 서브 공간(욕실, 침실, 다용도실)을 배치했다. 현장에서 제작한 구조 합판 가구는 메인 공간과 서브 공간을 분리하는 칸막이벽이면서 동시에 선반이나 책꽂이, 옷장 역할도 한다. 인테리어는 테라스를 통해 자연을 연장한 듯한 느낌을 연출하고자 목재로 마감했다. 전체적으로 따뜻한 느낌을 주는 공간에서 가구 색조는 그 공간에 생동감을 더한다.

평면도

전체를 거친 목재로 마감한 외관은 모든 방향에서 조망이 가능한 묵직한 박스처럼 보인다. 동쪽과 서쪽 끝에는 각각 후정과 테라스를 계획했다. 특히, 서쪽은 거실과 양쪽 침실을 아우르는 테라스 통창을 설치해 사시사철 변하는 경치를 감상할 수 있는 곳이다.

해치를 통해 들어오는 외부 햇빛기능과 미 담은 ‘해치’

지붕 테라스로 이어지는 ‘해치’는 건물 중심에 설계해 조망이 산과 계곡을 향한다. 동선은 실내 공간과 자유롭게 연결되며, 해치를 중심으로 평면은 대칭을 이룬다. 또한 비스듬한 수직 형태로 지붕에 솟아 있는 모습이 자칫 단순하게 보일 디자인에 작은 재미를 더해준다.

'해치’를 포함한 출입문과 테라스는 자연 환기구 역할을 한다.

침실과 거실을 아우르는 통창이 설치된 테라스

검은색 상자처럼 보이는 외관은 한 면에 유리창호를 설치해 계절에 따라 각기 다른 빛을 반영하게 한다. 해치는 ‘자연 환기구(natural chimney)’ 역할을 하며, 출입문과 테라스 또한 같은 기능을 한다. 이러한 기능은 지역의 건조한 열기를 발산시켜 쾌적한 생활환경을 유지하도록 한다.

출처 : 전원주택라이프

다음검색
현재 게시글 추가 기능 열기

댓글

댓글 리스트
맨위로

카페 검색

카페 검색어 입력폼