CAFE

시골 부모님을 위한 25평 주택 설계

작성자문인방|작성시간22.09.07|조회수151 목록 댓글 0

시골 부모님을 위한
83.4㎡(25.3평) 단층 소형 주택

건축 개요

연면적 83.4㎡(25.3평)

건축구조 단층 경량 목구조

지붕재 이중 그림자 슁글

외장재 스타코, 파벽돌(외단열 시스템 적용)

실 구성 현관, 방 2개, 화장실 1개, 거실, 주방, 다용도실, 보일러실

자료 협조 CM건축

입면계획

목조주택에 흔히 사용하는 아스팔트 슁글과 시멘트 사이딩에 식상해하는 건축주들이 많아졌다. 전원주택 시장에 젊은 층 유입이 늘면서 세련되고 차별화된 디자인이 각광받는 추세다. 또한, 패시브하우스에 대한 관심 증대로 외단열 시스템에 관심을 보이는 이들이 많아 스타코 플렉스와 파벽돌을 혼용한 디자인을 적용했다

평면계획

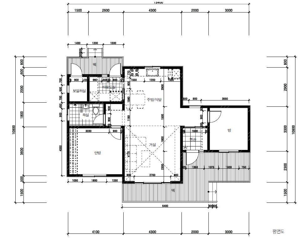
평소에는 노모 혼자 생활하기에 최대한 짧은 동선을 계획했다. 거실, 안방, 주방, 욕실을 집중 배치해 관리가 편하도록 했고, 거실과 주방을 넓게 구성함으로써 작은 평수에 비해 커 보이도록 했다. 동선 계획은 거주인이 움직이는 궤적, 양, 방향, 변화 등을 분석해 잡아야 한다. 자주 이용하는 공간은 어디인지, 어느 방향으로 움직여야 편안함을 느끼는지 등을 면밀히 따져 평면 계획에 고려해야 하는 것이다.

평면도

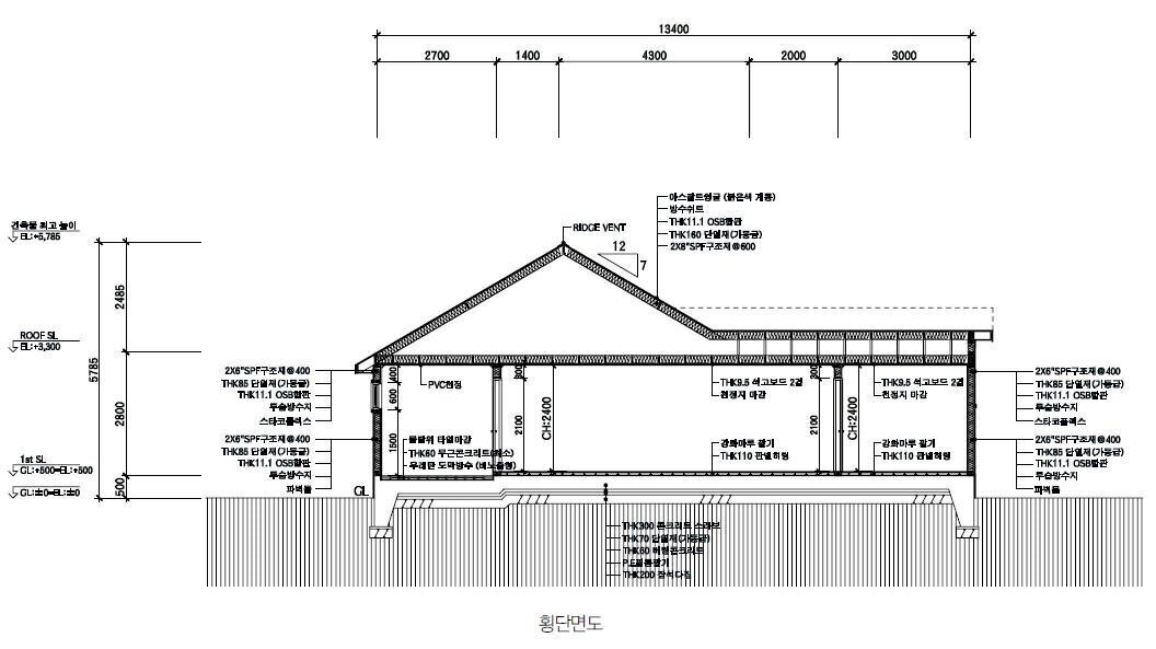
주택의 내부 구조를 명료하게 나타내기 위해, 가로나 세로로 절단한 가정 하에 그린 그림을 단면도라 한다. 그래서 단면도를 통해 겉으로 드러나지 않는 골조 등의 시공법을 상세히 알 수 있다. 단면도가 없으면 시공자가 평소 시공하는 방법으로 시공하거나, 비용을 절감하고자 일부 자재를 뺄 수도 있기에 시공 전 반드시 이를 확인한다. 이를 통해 건축주도 쉽게 감리할 수 있다는 점에서 꼭 필요한 도면이다.

집 짓기의 시작이면서, 여러 공정 중 차지하는 금액적 비중이 높은 게 기초 공사다. 기초 공사의 시방에 따라 공사 금액의 차이가 클 수 있으니, 사전에 정확한 기초 상세 도면을 작성해 공사 금액을 결정하도록 한다. 참고로 기초 시공법은 건축물 하중만을 따져 결정하는 것이 아니라, 지반과 지내력 등을 고려해야 한다.

출처 : 전원주택라이프

다음검색
현재 게시글 추가 기능 열기

댓글

댓글 리스트
맨위로

카페 검색

카페 검색어 입력폼