심학산을 배경으로한 약 150평의 계획관리지역 주택단지 필지이다. 이 필지는 정남향에 남쪽으로 넓은 형태여서 큰 마당과 충분한 채광을 받을 수 있는 조건을 가지고 있었고, 경사가 심하지 않아 적절한 높이의 평지를 확보할 수 있었다. 튀지 않고 모던한 집, 따뜻하고 실용적인 집, 그리고 마당 깊은 집. 이 집의 조건들이었다. 농촌에서 자란 남편의 순수함과 모든 것이 정리되어 있어야만 하는 깔끔한 성격의 부인의 요구사항이 집에 담겨야 하기에 1층과 2층의 분위기를 서로 다르게 연출하게 되었다.
건축정보
대지위치 : 경기도 파주시 산남동
대지면적 : 495㎡ (149.74평)
건물규모 : 지상2층
용도 : 단독주택
구조 : 경골목구조
건축면적 : 127.71㎡
연면적 : 211.59㎡
건폐율 : 25.80%
용적률 : 42.74%
주요 외장재 : 현무암벽돌, 이페사이딩
설계 및 시공 : (주)노바건축사사무소
사진 : 석정민
배산임수의 마당 깊은 집
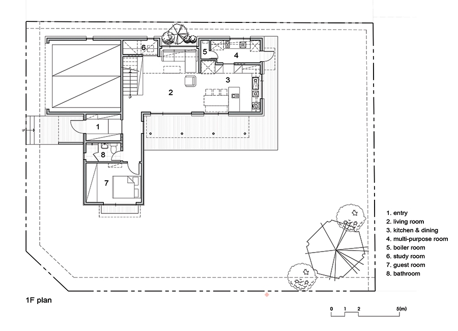
선여재는 외부공간인 마당이 우선된 집이다. 정남향의 넓은 면은 한강에 면하고 북쪽은 심학산에 면하는 이른바 배산임수의 좋은 땅이다. 두 도로에 접한 필지는 외부에 노출되기 쉬워 볕이 잘 드는 깊은 마당과 조경으로 영역을 만든 뒤 집을 앉히는 방법으로 계획하였다. 그렇게 만들어진 마당은 각각의 내부공간과 관계를 맺어 공간을 풍부하게 만들어간다.
데크와 포치로 확장
전체적인 디자인은 장식이 없는 모던한 스타일로 정리했다.
1층 거실과 식당은 내부에 서까래를 노출해 목재의 부드러움이 드러나게 하고 거실 밖 넓은 데크에는 수평의 캐노피가 포치의 역할을 할 수 있도록 1.5m의 폭으로 설치했다.
그래서 비가 오거나 눈이 올 때 의자를 내놓고 앉아 빗소리를 듣거나 풍경을 바라보며 상념에 젖을 수 있고, 비에 젖지 않고 아이들이 놀 수 있는 공간이 되기도 한다. 비바람이 불어도 문이나 벽이 젖지 않고, 한여름 햇빛을 가릴 수도 있는 포치는 깊은 처마의 역할을 한다. 또한 보조주방도 밖으로 연결되게 하여 텃밭에서 뜯은 채소를 외부 수돗가에서 씻을 수 있도록 공간을 마련했다.
박공 천장의 공간감 살린 가족실
2층에는 아이방 2개를 배치하고 그 위에 조그만 다락을 두어 아이들이 놀이터처럼 오르내릴 수 있게 했다. 박공지붕의 경사가 그대로 노출된 가족실은 아이와 함께 숙제도 하고 책을 읽을 수 있는 책장으로 둘렀다.
2층에도 넓은 마당이 있다. 1층의 게스트룸 상부를 옥상정원으로 만들어 다양한 꽃과 나무들을 심었다. 습기에 오랫동안 접촉할 경우 수축 등의 변형을 우려해 1차 방수를 하고 스테인리스 스틸로 2중 방수를 했다.
건축가의 바람
마음을 움직일 수 있는 것은 사람의 마음과 감성이다. 이 집을 의뢰한 부부는 마음을 움직일 수 있는 따뜻한 분들이었다. 그래서 이 집의 이름이 나눔과 베풂이 있는 집, 선여재가 되었다. 함께 나누고 언제나 웃음꽃이 가득한 집이 되길 기대한다.
건축가 소개 | 강승희 (주)노바건축사사무소 대표, 건축가
경희대학교 건축공학과 졸업하고, 서울시립대학교 도시과학대학원에서 농촌주거에 관한 연구로 석사학위를 받았으며, 인간과 친숙한 재료인 나무를 이용하여 구축하는 목조건축에 관심을 갖게 되어 캐나다 목조건축 기술연수 및 저에너지 주택을 위한 Super-E 교육과 Passive House 교육을 수료했다. 현재 (주)노바건축사사무소 대표, 서울시 공공건축가, 인천시 공공건축가, 한국목조건축협회 이사, 산림청 목조건축 자문위원, 한국목조건축대전 심사위원, 경희대학교 건축학과 겸임교수 등으로 활발한 활동을 하고 있는 강승희 소장은 한국목조건축대전 대상, 제주건축문화대상 본상, 경기도건축문화상 금상 등 목조건축으로 다수의 수상을 하였으며, 새로운 것을 만들기 보다는 시간의 흐름 속에 함께 할 수 있는 ‘보편적이고 따뜻함을 담을 수 있는 공간’을 구축하는 작업을 하고 있다.
출처 [나무신문=황인수 기자]
농가주택 .시골집 수리하기.전원주택,통나무 주택,목조주택,주말주택,컨테이너 하우스, 아동식주택.세컨드 하우스.황토주택,
귀농,귀촌, 강원도 부동산, 횡성 부동산의 모든것이 산골 전원주택 이야기에 다 있습니다
,·´″"`°³о산골 전원주택이야기о³°`"″´·, ![]() 용인전원주택 전원주택단지 양평전원주택 전원주택시공 전원주택매매 전원주택분양 전원주택설계 전원주택급매물 제주도 전원주택 양평전원주택 급매물 전원주택짓기 전원주택사진 용인전원주택단지 경기도전원주택 여주전원주택 강화전원주택 전원주택 건축비 이동식주택 이동식목조주택 단독주택 효소건강다이어트 |
