둔촌주공 분양 84㎡ (34평) 평면도 (설계변경)

작성자경호처장|작성시간18.08.19|조회수8,521 목록 댓글 0

전용 면적

분양 평형

 변경전 

 사업시행인가
변경(안) 세대수 

타입

재건축
소형

조합원
분양

타입별
세대수

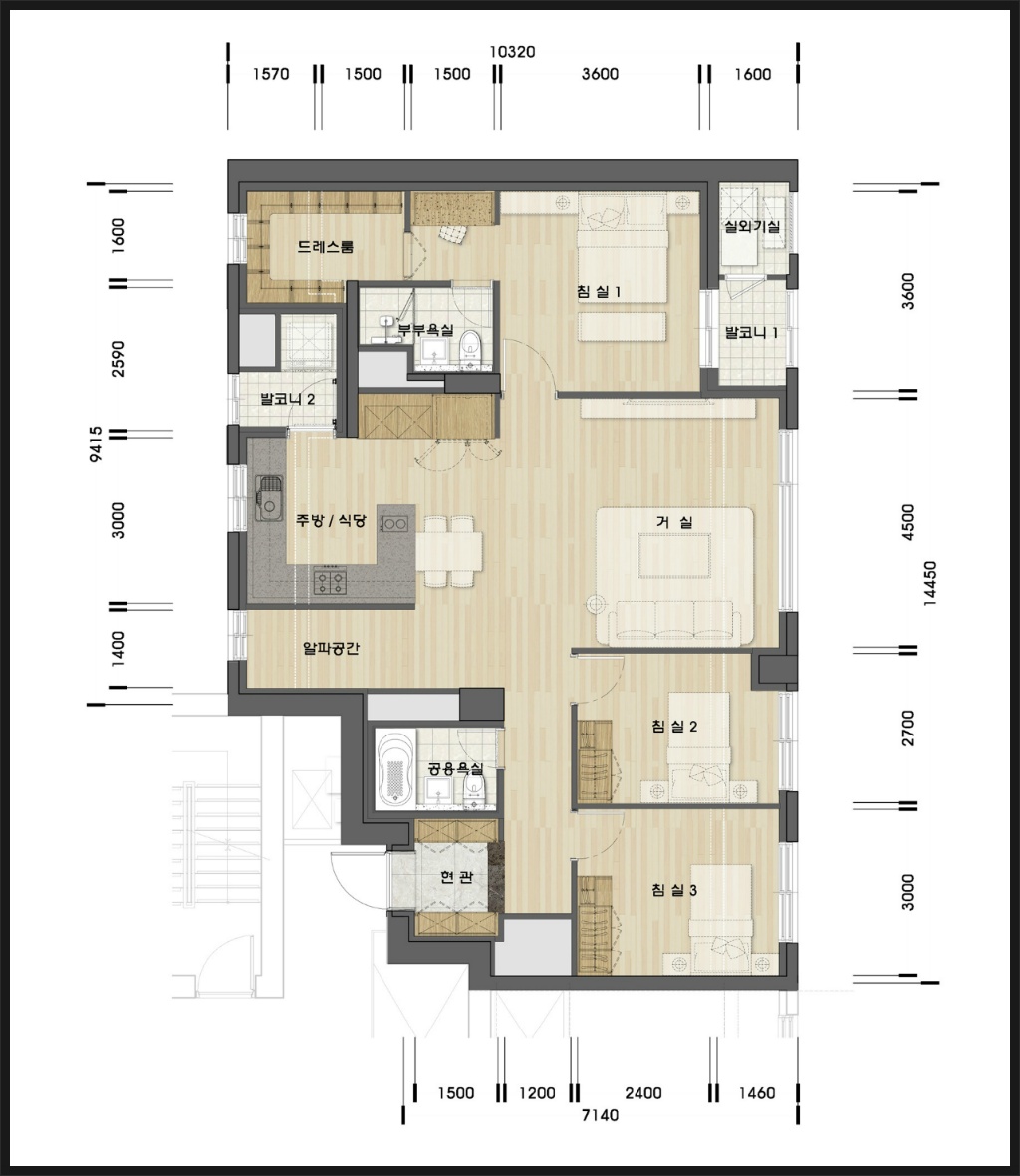
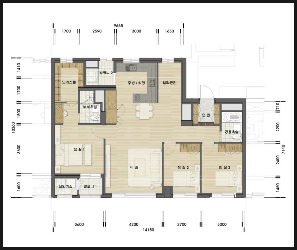
84㎡

34평

     3,944

              4,166

A

 

     1,780

     1,780

B

 

         49

         49

C

 

       297

       297

D

 

       770

       770

E

 

       636

       636

F

 

       230

       230

G

 

         58

         58

H

 

       346

       346


A 타입


B 타입


C 타입


D 타입


E 타입


F 타입


G 타입


H 타입


다음검색
현재 게시글 추가 기능 열기
  • 북마크
  • 신고 센터로 신고

댓글

댓글 리스트
맨위로

카페 검색

카페 검색어 입력폼