둔촌주공(올림픽파크 포레온 상가 일반분양) 관련 자료

작성자경호처장|작성시간23.08.30|조회수1,964 목록 댓글 0

둔촌주공 재건축(올림픽파크 포레온 상가 일반분양) 신축상가 일반분양과 관련한 대략적인 진행 사항과 예상되는 일정 그리고 5호선상가 배치도 및 상가관련 자료를 올려드립니다.

 

 1. 올림픽파크 포레온 신축 상가 공사 진행 상황 : 콘크리트 타설 공사 및 골조 100% 완료

 2. 조합원 상가 호수 배정 및 분양 계약 완료.

 3. 신축상가 일반분양 관련 부가세 산정을 위한 감정평가 진행 중.

 4. 신축상가 특화설계 도면 시공사업단에 전달.

 5. 일반분양관련 분양사무소 개설 예정 (9월중).

 6. 대략적인 분양일정 확정 및 분양가 결정 (10월경).

 7. 일반분양 예상 일정 : 11월~12월 경.

 

 

◆ 올림픽파크 포레온 상가 동명칭 확정

 

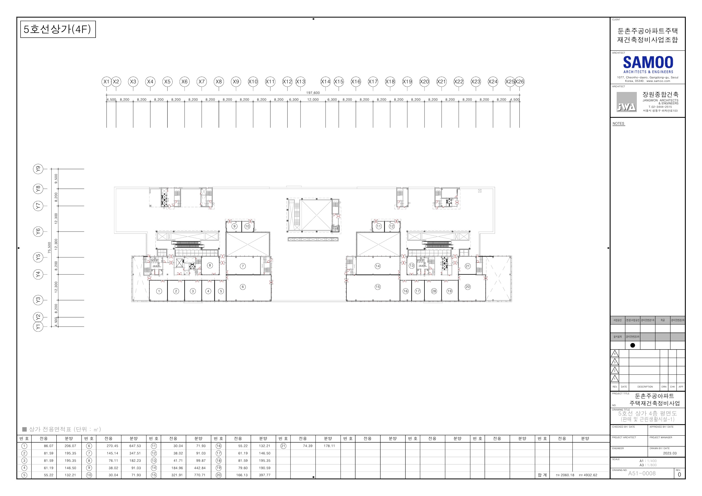
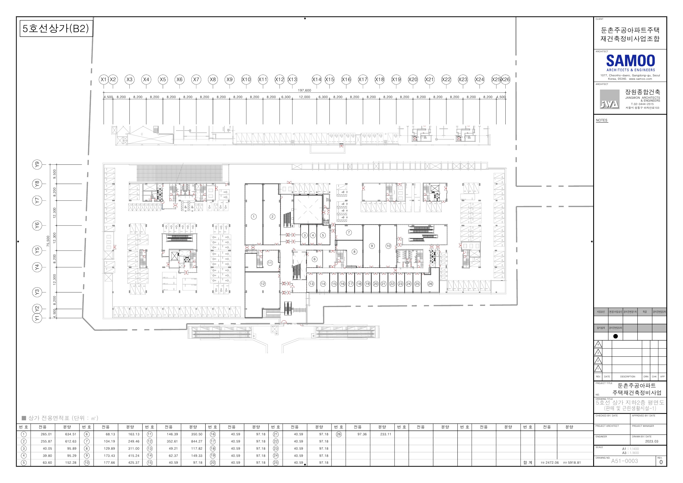
◆ 5호선상가(메인상가) 배치도

 

 

 

◆ 올림픽파크 포레온 신축상가 특화 설계 관련

 

향후 구체적인 분양일정 및 분양가격 그리고 분양방식 등이 결정 되면 다시 자세한 내용을 알려드리도록 하겠습니다.

 

더욱 노력하는 부동산헤드라인이 되겠습니다.

02 - 4 8 2 - 8 9 0 0

 

다음검색
현재 게시글 추가 기능 열기

댓글

댓글 리스트
맨위로

카페 검색

카페 검색어 입력폼