미국계정 다운로드 : http://itunes.apple.com/us/app/autocad-ws/id393149734?mt=8
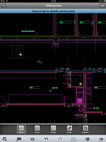
오토캐드 dwg 파일을 받아와서 보고, 편집이 가능한 어플입니다.
회원가입을 해야하고 인터넷 서버에 도면 올려놓으면 아이패드로 다운받아서 보기랑 편집이 가능한거 같네요.
아이폰에서도 사용가능합니다. ^^
다음검색
미국계정 다운로드 : http://itunes.apple.com/us/app/autocad-ws/id393149734?mt=8
오토캐드 dwg 파일을 받아와서 보고, 편집이 가능한 어플입니다.
회원가입을 해야하고 인터넷 서버에 도면 올려놓으면 아이패드로 다운받아서 보기랑 편집이 가능한거 같네요.
아이폰에서도 사용가능합니다. ^^