분양 상담
분양홍보관 대표번호
분양 문의 / 분양가 / 홍보관 위치
편안하고 깊이 있는 상담을 위하여 방문은 사전예약을 통해서만 가능하오니 양해 부탁드립니다.
ㅣ유원블리스 장안
2룸, 3룸 전세대 전용면적 60㎡ 이하, 6억원 이하, 주거용 오피스텔 75세대

ㅣ위치 환경
도보권 내 초,중,고교 및 상업시설, 공원 다수 위치 -> 생활 인프라 우수
경전철 면목선 등 반경 1km 내 개발계획 풍부 향후 미래가치 높음

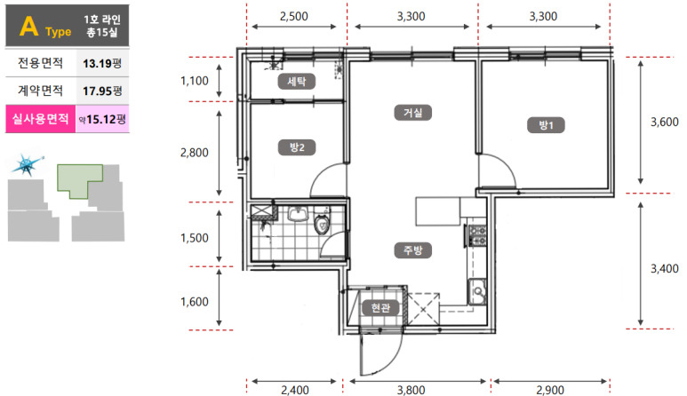
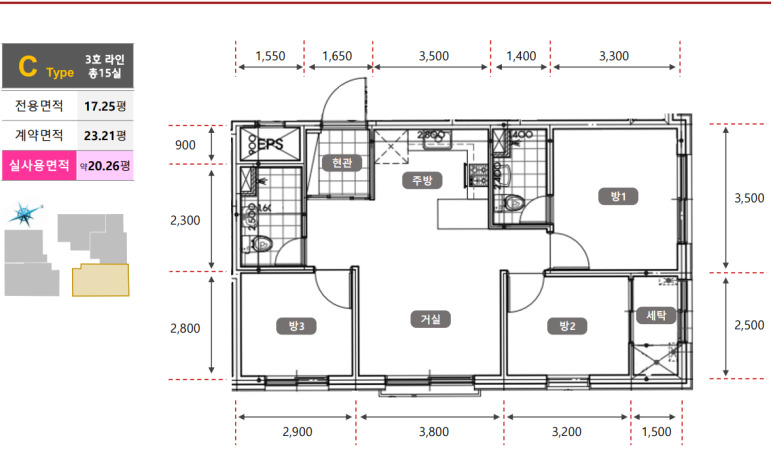
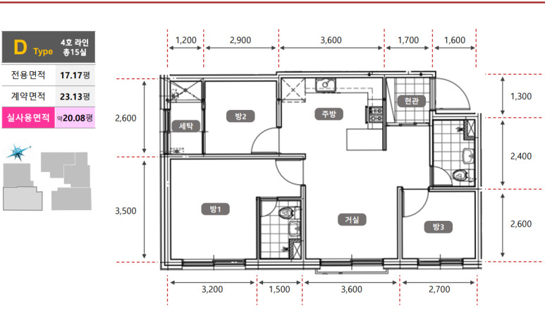
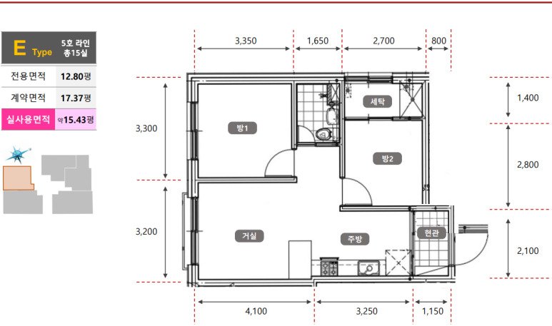
ㅣ타입 평면도






분양 상담
분양홍보관 대표번호
분양 문의 / 분양가 / 홍보관 위치
편안하고 깊이 있는 상담을 위하여 방문은 사전예약을 통해서만 가능하오니 양해 부탁드립니다.
다음검색

