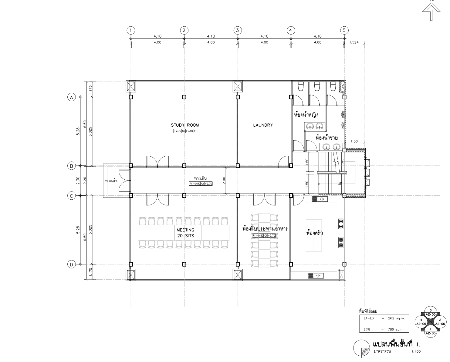
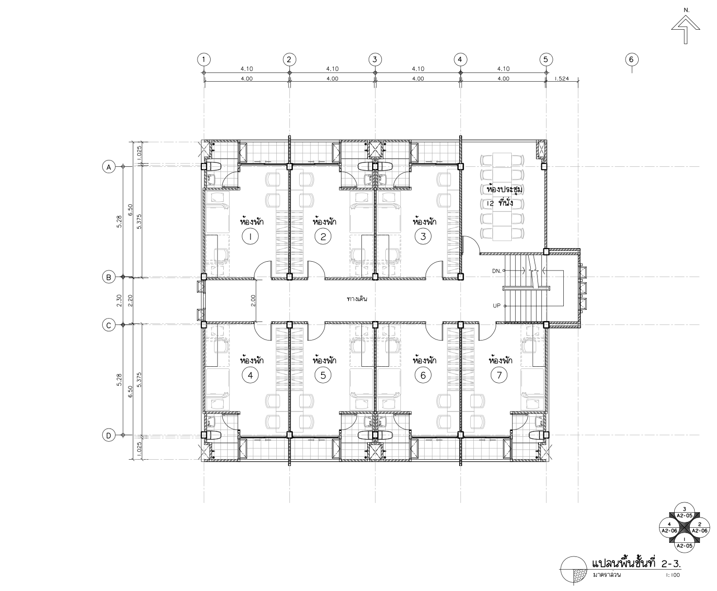
현재 준비중인 기숙사 설계도면 입니다.
아직 최종 완성본은 아니고 검토중입니다.
건평 475 평방미터의 3층 건물로 공사비는 2억 정도 예상하고 있습니다.
우선 한동을 지은 다음 옆으로 동일한 한 동 더 건축할 예정입니다.
공사준비와 진행이 원할하고 재정이 채워지도록 기도해 주시기 바랍니다.
기숙사 1층 도면
기숙사 2-3층 도면
다음검색
현재 준비중인 기숙사 설계도면 입니다.
아직 최종 완성본은 아니고 검토중입니다.
건평 475 평방미터의 3층 건물로 공사비는 2억 정도 예상하고 있습니다.
우선 한동을 지은 다음 옆으로 동일한 한 동 더 건축할 예정입니다.
공사준비와 진행이 원할하고 재정이 채워지도록 기도해 주시기 바랍니다.