CAFE

안양안산

경기도 시흥시 은행동 은계브리즈힐아파트

작성자아라누리|작성시간22.11.18|조회수32 목록 댓글 0

 

안녕하세요, 경매아라누리 운영하는

리치인베스트 선임이사 최호규입니다.

오늘 소개해드릴 물건은

 

경기도 은행동에 위치한

 

은계브리즈힐 아파트 입니다.

 

은행동 은계브리즈힐아파트 경매 사건

1차 감정가 650.000.000원에

진행22년12월01(유찰시)

3차 최저가 318.500.000원에

23년03월02일 진행 될 예정입니다.

 

사건번호 2022 타경1698

 

경기도 시흥시 은행동에 소재하는

'웃터골초등학교'동측

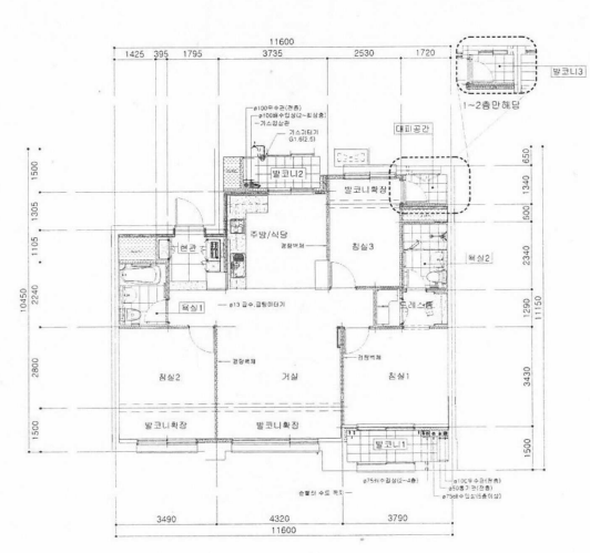
인근에 위치하는 은계브리즈힐아파트에 8층

(전유면적 75㎡)30평형 입니다.

 

☆은계브리즈힐 아파트 단지 정보☆

 

방3, 욕실2, 거실, 주방/식당, 발코니,

드레스룸등

구조이며 30평형 입니다.

 

감정가는 650.000.000

최저가는 318.500.000

 

●현장사진●

 

 

 

 

 

 

 

 

다음검색
현재 게시글 추가 기능 열기

댓글

댓글 리스트
맨위로

카페 검색

카페 검색어 입력폼