CAFE

설계도 모음

문경 공평 120평 통나무 카페 주택 평면도및 입면도

작성자머로|작성시간12.07.19|조회수540 목록 댓글 0

 

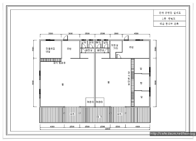
공평동 평면도 1층

카페&식당

 

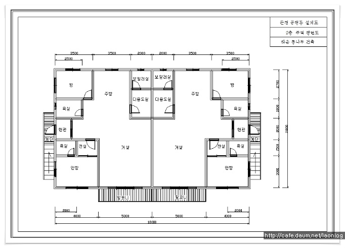
공평동 평면도 2층 주택

 

 

 

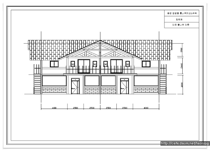
정면도

 

2층 주택의 출입은 좌우 별개의 외부 독립게단으로 하게되고

1층과는 완전 분리됩니다.

가운테 큰 킹 트러스 아래 좌우로 동일한 크기의 킹포스트 트러스를 배치해 통나무집의 웅장한 외관을

나타내려하고  이층은 멀리서도  눈에 잘 띄는 백색으로 일층은 전면 유리및 기타 다양한 컨셉으로 외부 마무리

 

 

 

 

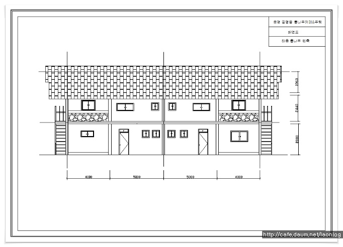
배면 

일층의 배면에는 독립된 냉장시설등이 자리를 잡아야 할것이고 부속 시설들도

자리를 잡을 가능성이 많겠습니다.

 

 

 

측면

 

 

공평동 건축일정은 인허가 문제만 해결되면 바로 진행될 가능성이 있습니다만 현재 통나무건축물이 아닌 다른 건축물로인해

절차상 제동이 걸린상태이고 해결중에 있습니다.

 

다음검색
현재 게시글 추가 기능 열기

댓글

댓글 리스트
맨위로

카페 검색

카페 검색어 입력폼