CAFE

일본의 목조주택

[일본주택] 중목구조의 골조노출이 이쁜 단층형 단독주택

작성자문팀장|작성시간19.12.23|조회수434 목록 댓글 1

[일본주택] 중목구조의 골조노출이 이쁜 단층형 단독주택


출처:

Area: 166.24 m2
Year: 2019
Photographs: Isamu Murai
Lead Architects
Takeru Shoji, Takayuki Shimada
Engineering
Tetsuya Tanaka (Tetsuya Tanaka Structural Engineers)
Contractor
Hirokatsu Yokoo (Yoshihara Gumi)



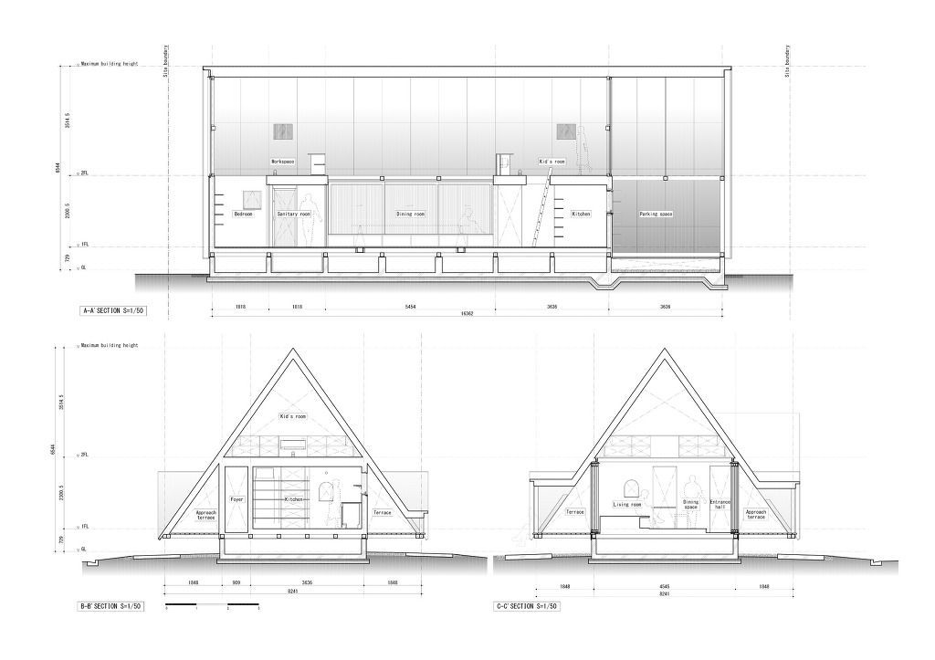
하라 하우스는 니가타 현 나가오카시의 농가에 위치하고 있습니다. 부모님의 집, 창고 및 개인 실과 같은 현장 기능을 고려합니다. 완전 자립형 주택에 필요한 대부분의 기능은 이미 현장에 존재했습니다. 우리의 디자인 방향은 현장에 이미 존재하는 구조를 활성화하고 필요 또는 분위기가 발생할 때 새로운 기능에 적응할 수있는 잠재력을 가진 건물을 만드는 것이 었습니다. 작은 건물을 본관의 '불완전한'원격 확장으로 개념화하여 디자인을 시작했습니다. 건물은 자급 자족이 충분하지 않기 때문에 건물에서 벗어나 주변 건물에 의존하여 완벽하게 기능하고 번성하는 공동체를 만들기 위해 마을을 관여시킵니다.

이 건물은 비닐 하우스와 작업 창고가 많은 주변 환경을 에뮬레이션하고 120mm 정사각형 목재 부재를 사용하여 간단한 일련의 '프레임'트러스를 만듭니다. 이 구조는 큰 텐트의 이미지를 만듭니다. 모든 인간의 행동을 동화시키는 뻣뻣하지만주는 구조. 사용자의 요구에 맞는 하나의 넓은 열린 공간을 시뮬레이션하기 위해 스토리지, 파티션 및 개인 실이 최대한 제거되었습니다. 이 상황에서는 주변 건물의 지원에 의존 할 수는 없지만 건물 외피를 튀어 나와 기존 아키텍처의 사용을 장려합니다.

목표는이 하나의 구조 내에서 결코 완전하지 않은 삶의 방식을 만드는 것이 었습니다. 그것은 더 큰 건축의 한 부분입니다. 건물 그룹의 일부인 집. 이 진공 기능은 사용자가 공간을 활용할 수있는 창의적인 방법을 고안하도록 장려합니다. 그것은 단지 당신이 집에 들어가는 것이 아니라 건물의 '사용'을 장려합니다. 이 '불완전한 집'은 빈 공간이 마을 사람들과 이벤트를 활용하여 '강력한 흡수제'가 될 것으로 예상됩니다. 따라서 집은 마을의 더 큰 건축물의 일부가됩니다. 부족과 빈 공간으로 이러한 유형의 건축물을 설립함으로써 마을에서 관심과 활동의 매력으로 자리 잡은 건물이 탄생합니다.

 





















▶브랜드하우징 본사 주소:
경기도 성남시 분당구 야탑로 81번길 10 아미고타워 707호 brandhousing
▶전화번호:
031-714-2426

▶첫상담은 전화 하셔서 민실장님 찾으시면 됩니다


▶브랜드하우징 세종지사 주소: 세종특별자치시 고은동 1533번지 부성빌딩 1층 브랜드하우징 세종지사: 전화번호(044-868-2426)

집이란 공학의 머리와 인문학의 가슴으로 지어야만 건축이란 이름을 붙일수 있다. 문팀장


#브하 #브랜드하우징 #문팀장의목조주택이야기 #네이버카페 #목조주택 #단독주택 #아름다운건축디자인#문팀장

◆ 목조주택 예비건축주가 시공사를 선택할때 참고할 만한 "문팀장의 목조주택이야기 카페"

https://cafe.naver.com/metalwood

◆ 주택의 본질을 알고 집을 짓는 목조주택시공사 브랜드하우징 <본질을 짓다>

◆ 예비 건축주들이 반드시 알아야 할 - 집짓기 가이드 - 가 필요할 때 문팀장의 목조주택이야기로 들어 오세요

도 한다.

다음검색
현재 게시글 추가 기능 열기

댓글

댓글 리스트
  • 작성자wonspace1 | 작성시간 25.01.13 고맙습니다. 좋은집 잘봤습니다
댓글 전체보기
맨위로

카페 검색

카페 검색어 입력폼