CAFE

아름다운 인테리어

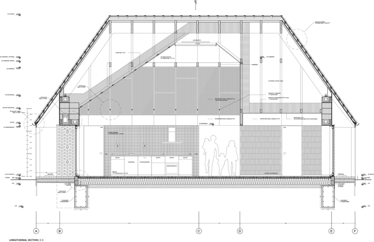
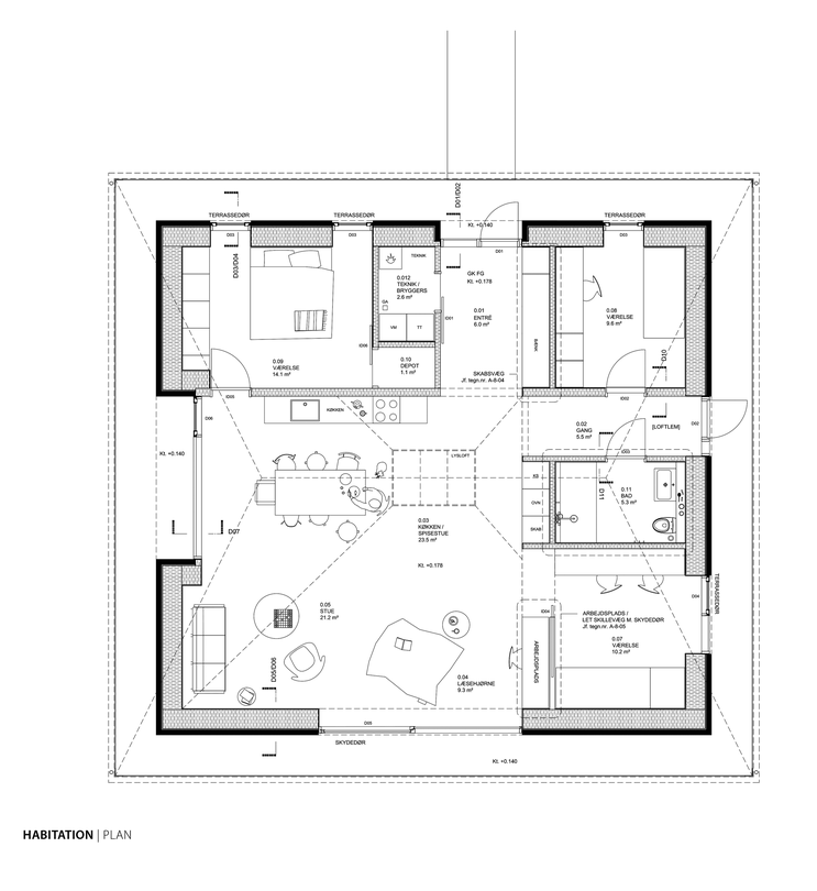
[덴마크 주택] 미송합판을 이용한 실내 마감

작성자문팀장|작성시간14.07.06|조회수981 목록 댓글 0

[덴마크 주택] 미송합판을 이용한 실내 마감

 

Architect: Uffe Leth and Karsten Gori, Leth & Gori

Client: Realdania Byg

Area: 136 m2.

Budget: 2.4 million DKK

Engineer: Buro Happold ApS

Consultants: Teknologisk Institut, Nini Leimand, KADK - Institut 2, Muro

Main contractor: Ebbe Bernth Murer og Tømrer

Bricklayer: Murermester Ask Askholm

Carpenter Ole Larsen & Sønner v. Anders Larsen ApS

Photography is by Stamers Kontor

 

 

 

 

 

 

 

 

 

 

 

 

 

 

 

 

 

 

 

 

 

 

 

 

 

 

 

 

 

 

 

 

 

 

다음검색
현재 게시글 추가 기능 열기

댓글

댓글 리스트
맨위로

카페 검색

카페 검색어 입력폼