CAFE

Durham House

듀크대 옆 신축 Luxury 타운하우스 렌트합니다 - 3 Bed 2.5 Bath (렌트 완료)

작성자USview|작성시간20.01.16|조회수1,253 목록 댓글 0

2월말 완공예정으로 3/1 입주 가능한 고급 타운홈 렌트합니다.   새로 완공된 집에  입주자가 되세요.  
냉장고, 식기세척기,가스렌지, 전자렌지, 세탁기, 건조기 모두 새것입니다.  

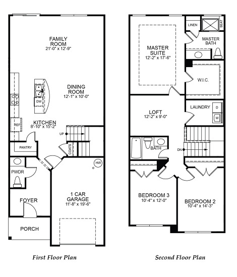
3 Bed 2.5 Bath.
 
1,818 SF     $1,950/

(전기,가스, 쓰레기,상하수도, 인터넷등 유틸리티 비는 입주자 부담


듀크대학 캠퍼스에서 가깝습니다.  
    American Village 지역.   
   캠퍼스, 듀크대병원까지 차로 5분거리 (2 mi)

- Hwy 85, 147, 501  만나는 지점 위치하여 접근성이 용이합니다. 
- 단지 입구에 정류장이 있어, 듀크캠퍼스에 버스로 통학 가능합니다. ( Durham Bus Route 6A) 
-  도로에서 떨어진 안쪽에 위치하여, 조용하고 쾌적합니다.  

-  내부는  Smart-home technology  적용된 오토메이션 하우스 입니다. 
- 2.5 mi 이내에 Harris Teeter, Food Lion Grocery가 위치하여 편리합니다.  

- 단지는 주로 듀크대학 교수, 학생, 병원, 엔지니어등 전문직 종사자로 구성된 단지로, 조용하고 살기 편리한 곳입니다. 

<구조> 
1 - 거실, 키친, 화장실, 차고

2 - 침실 (3), 다목적 공간 (Loft), 세탁실, 화장실




<모델하우스 사진>
* 실제 완공된 하우스는 모델하우스 사진과 약간의 차이가 있을수 있습니다.   












< 건설중인 사진> 1/17/2020 현재
- 2월말 완공. 3/1 입주 가능















연락처

crosswatersinvest@gmail.com  

919-200-0885



다음검색
현재 게시글 추가 기능 열기

댓글

댓글 리스트
맨위로

카페 검색

카페 검색어 입력폼