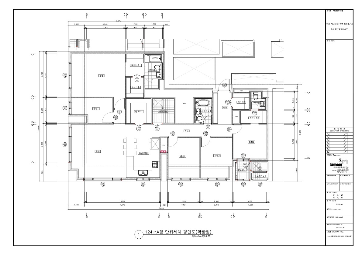
※ 촉진3구역 조합의 허가없이 게시글, 사진, 도면, 동영상 등을 무단으로 게시 및 배포하는 행위를 금지하며, 위반시에는 민형사상 책임을 질 수 있습니다.
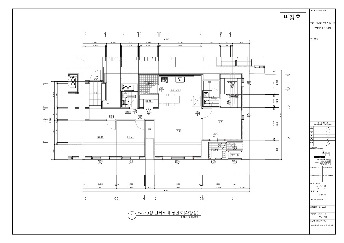
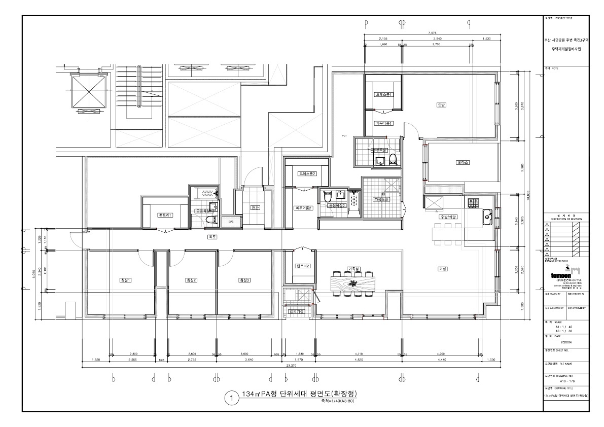
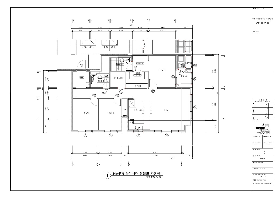
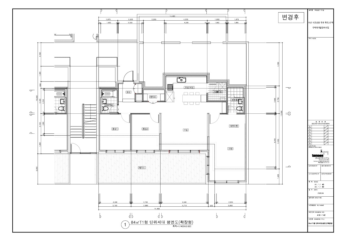
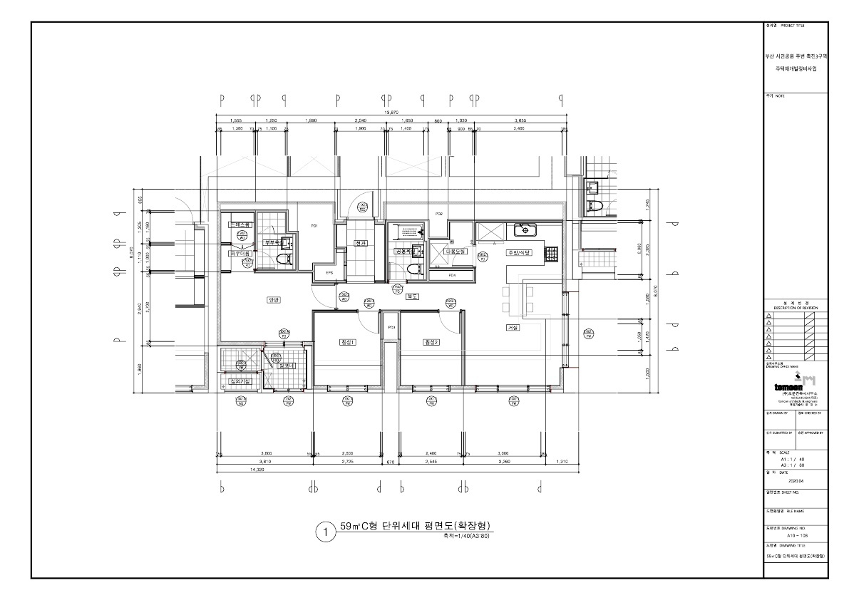
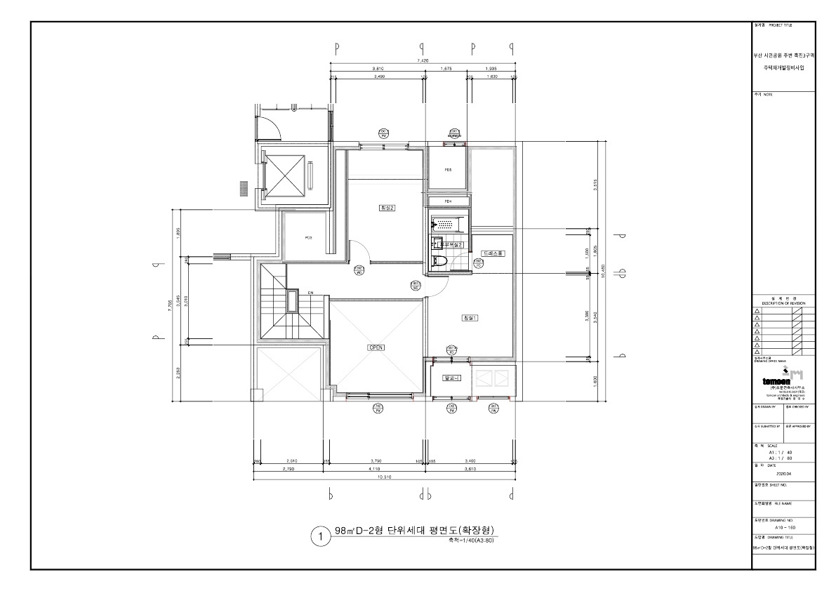
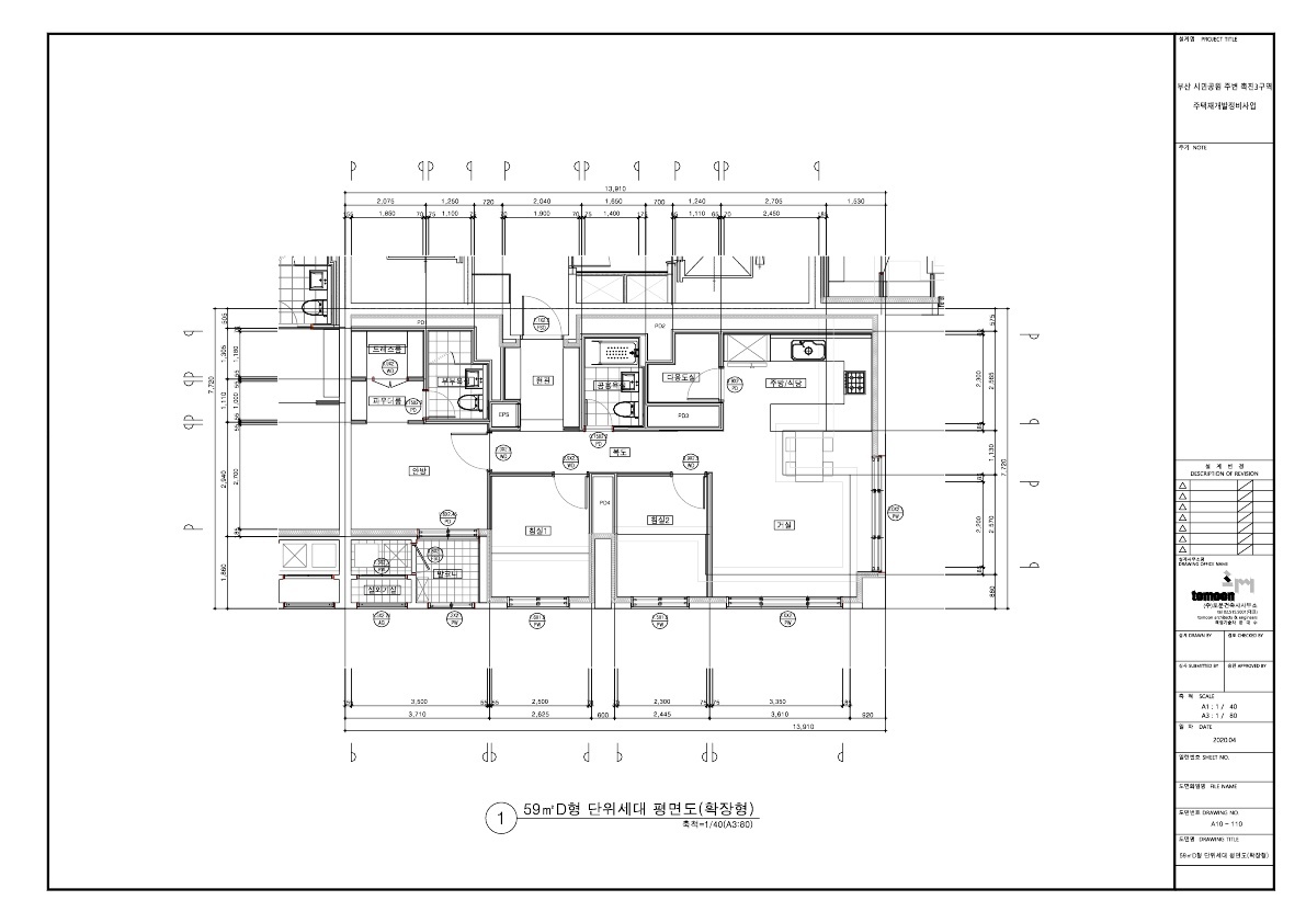
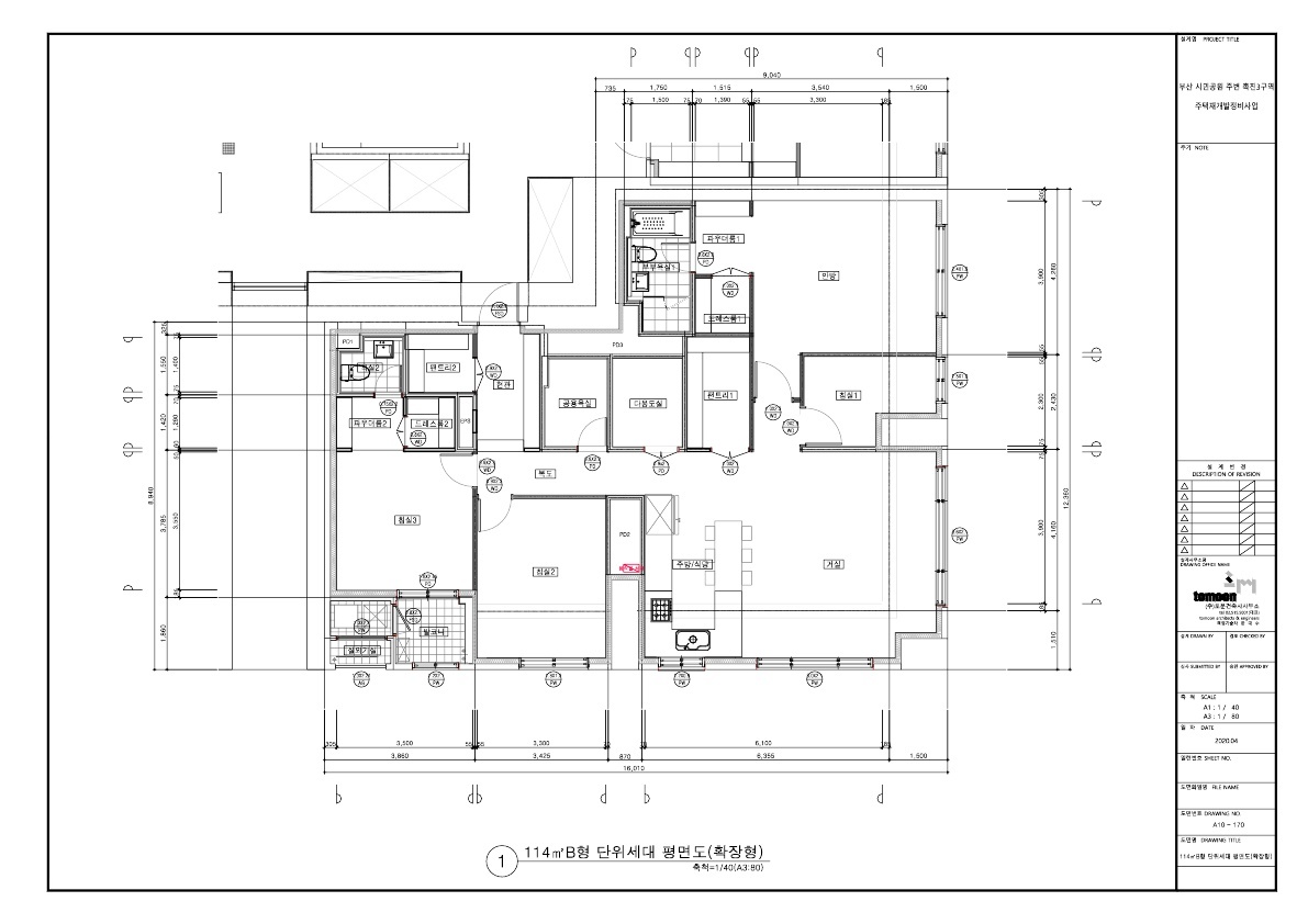
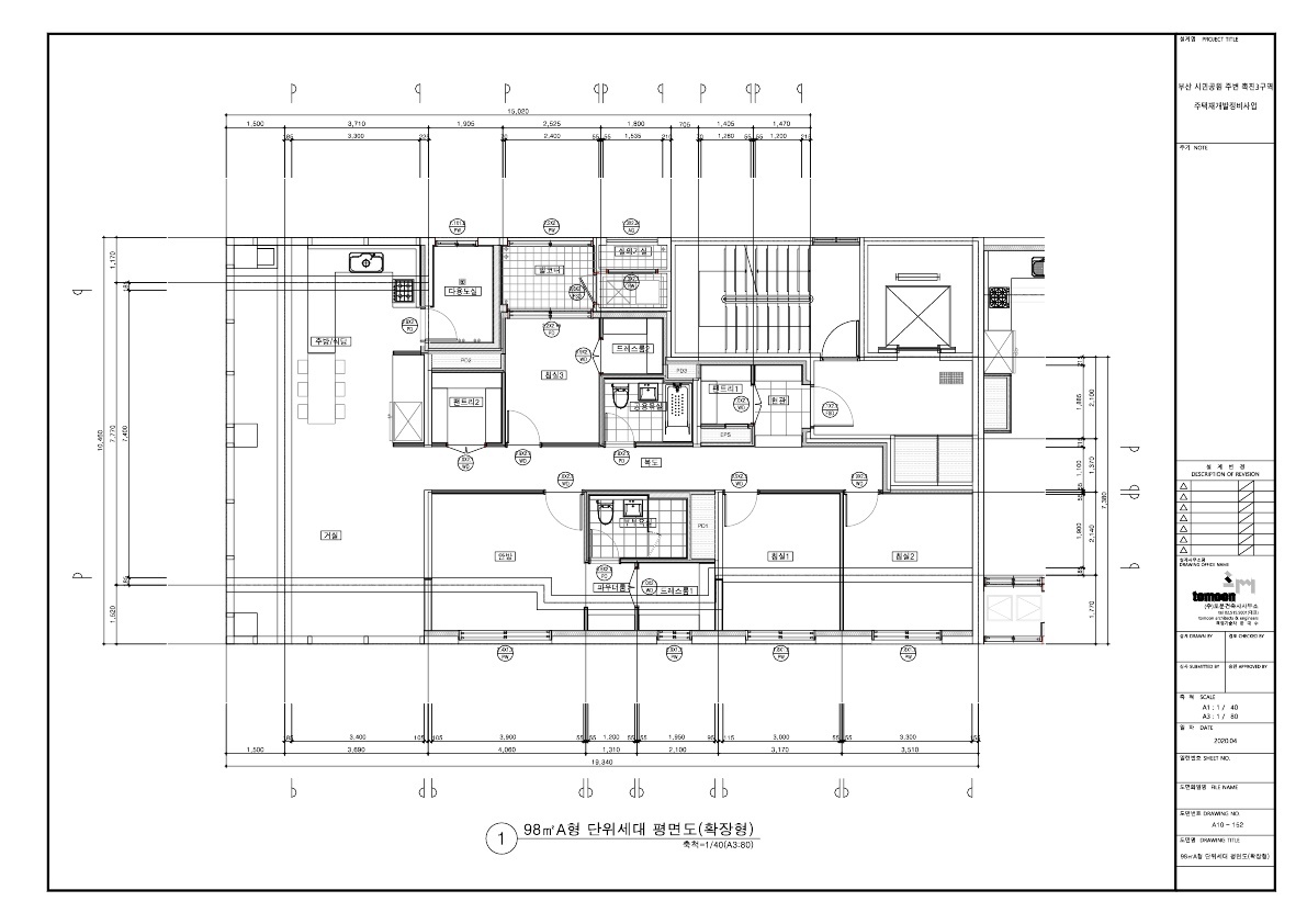
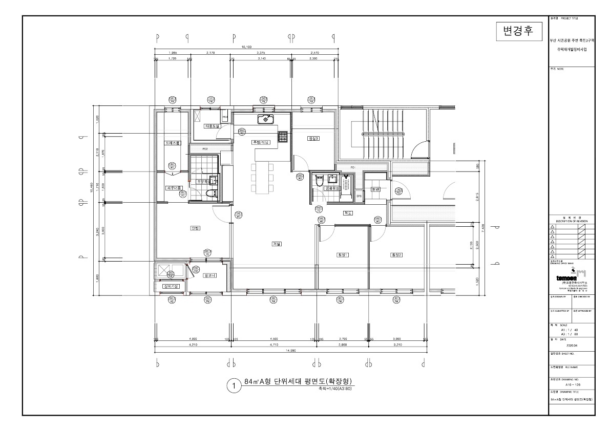
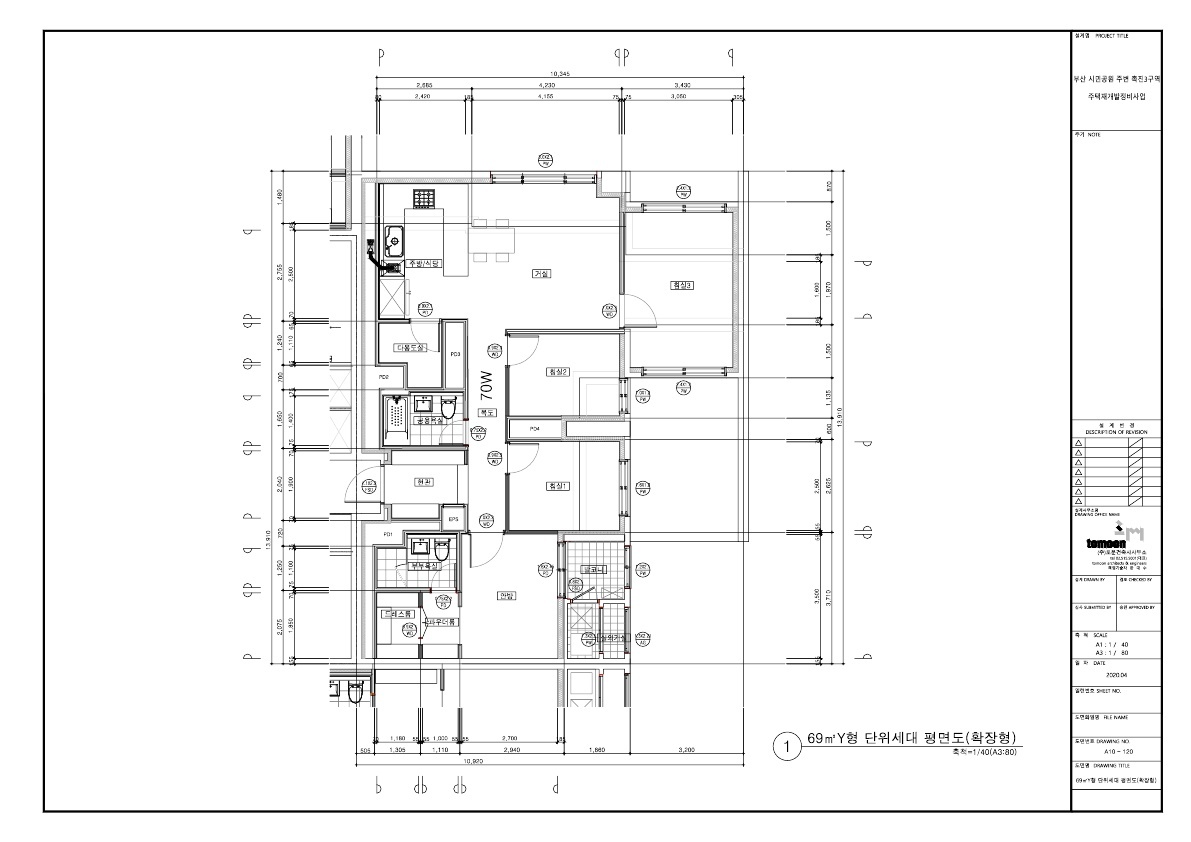
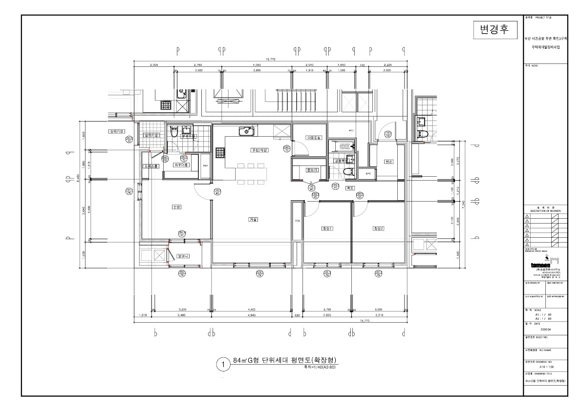
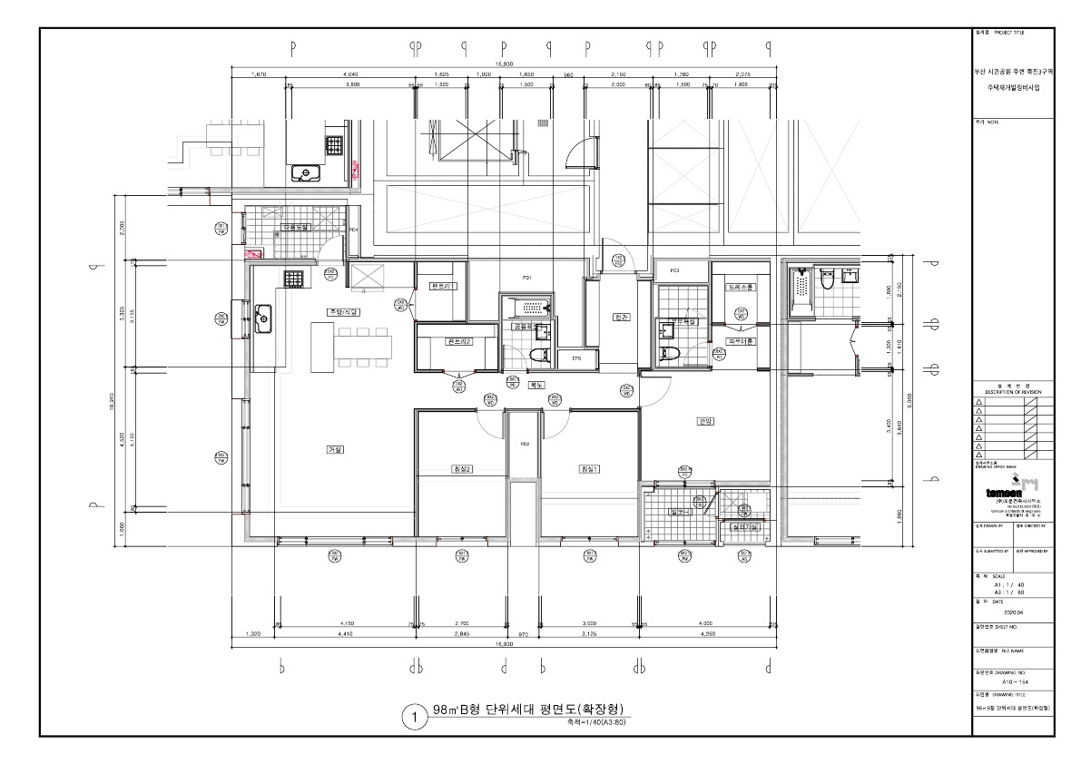
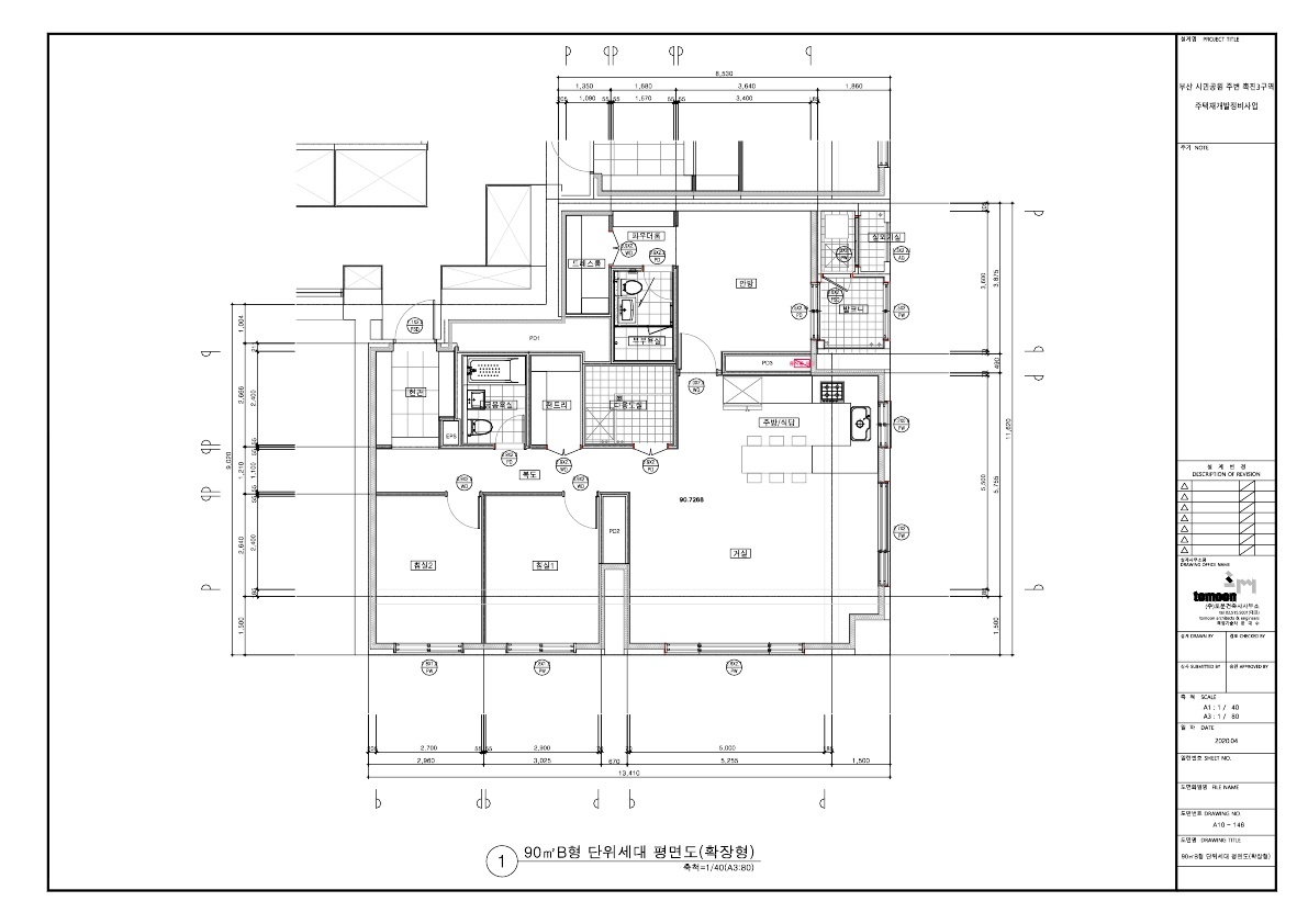
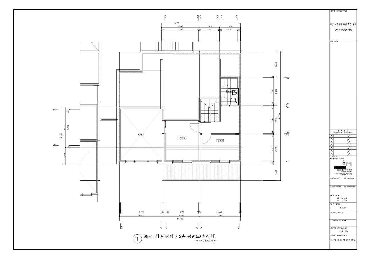
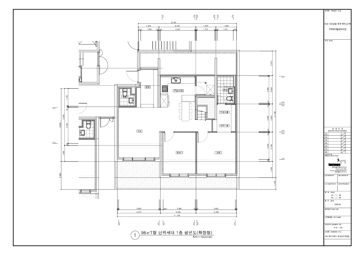
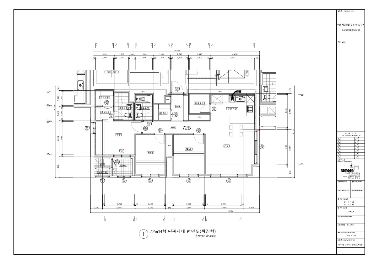
◆ 평면도 변경평형은 35평입니다.
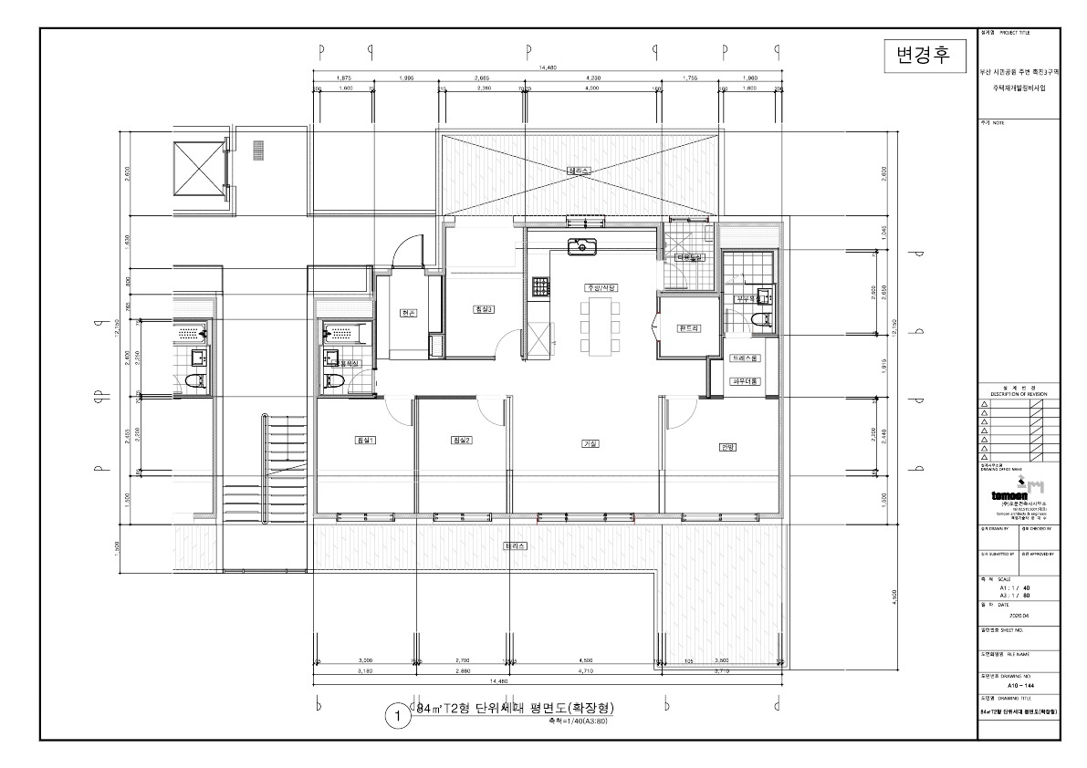
<35평 판상형 평면도 변경후>
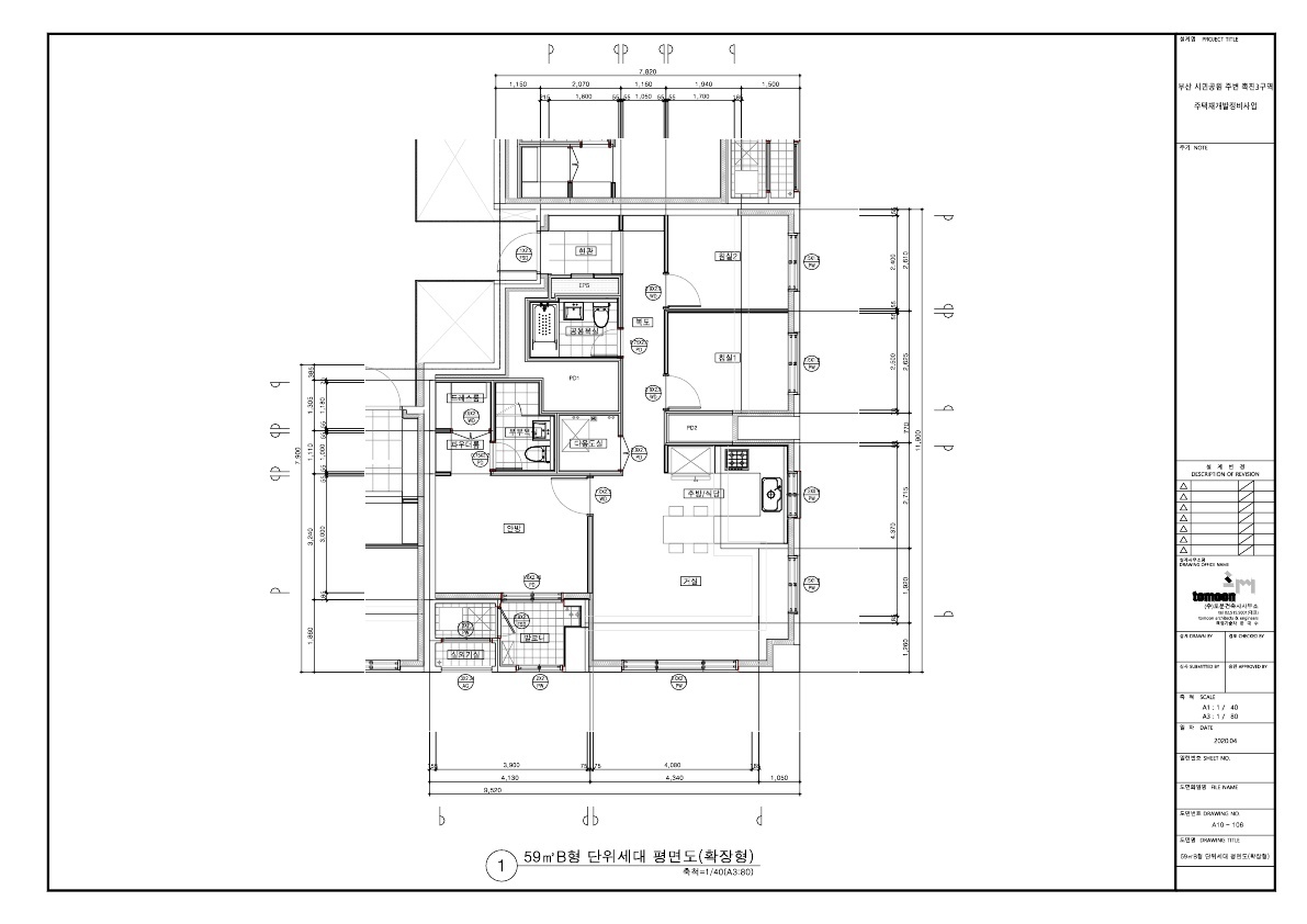
<35평 타워형 평면도 변경후>
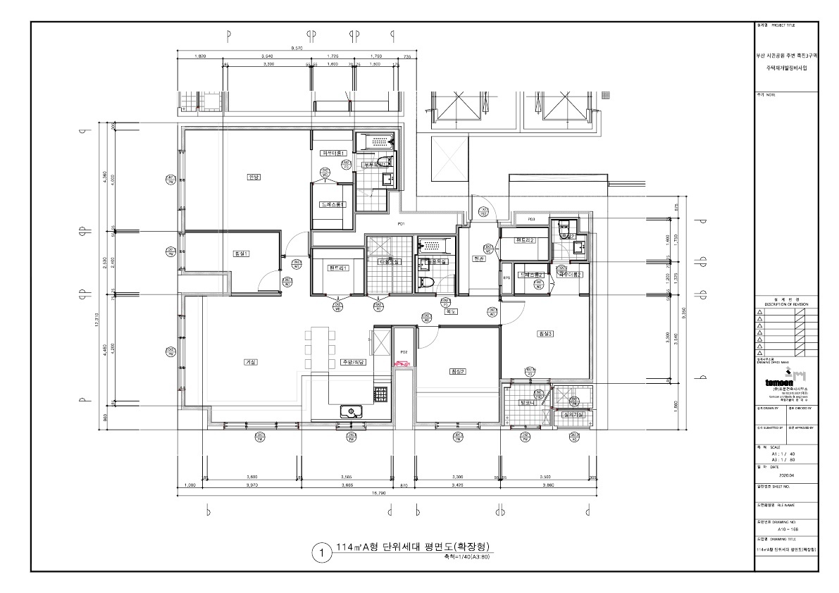
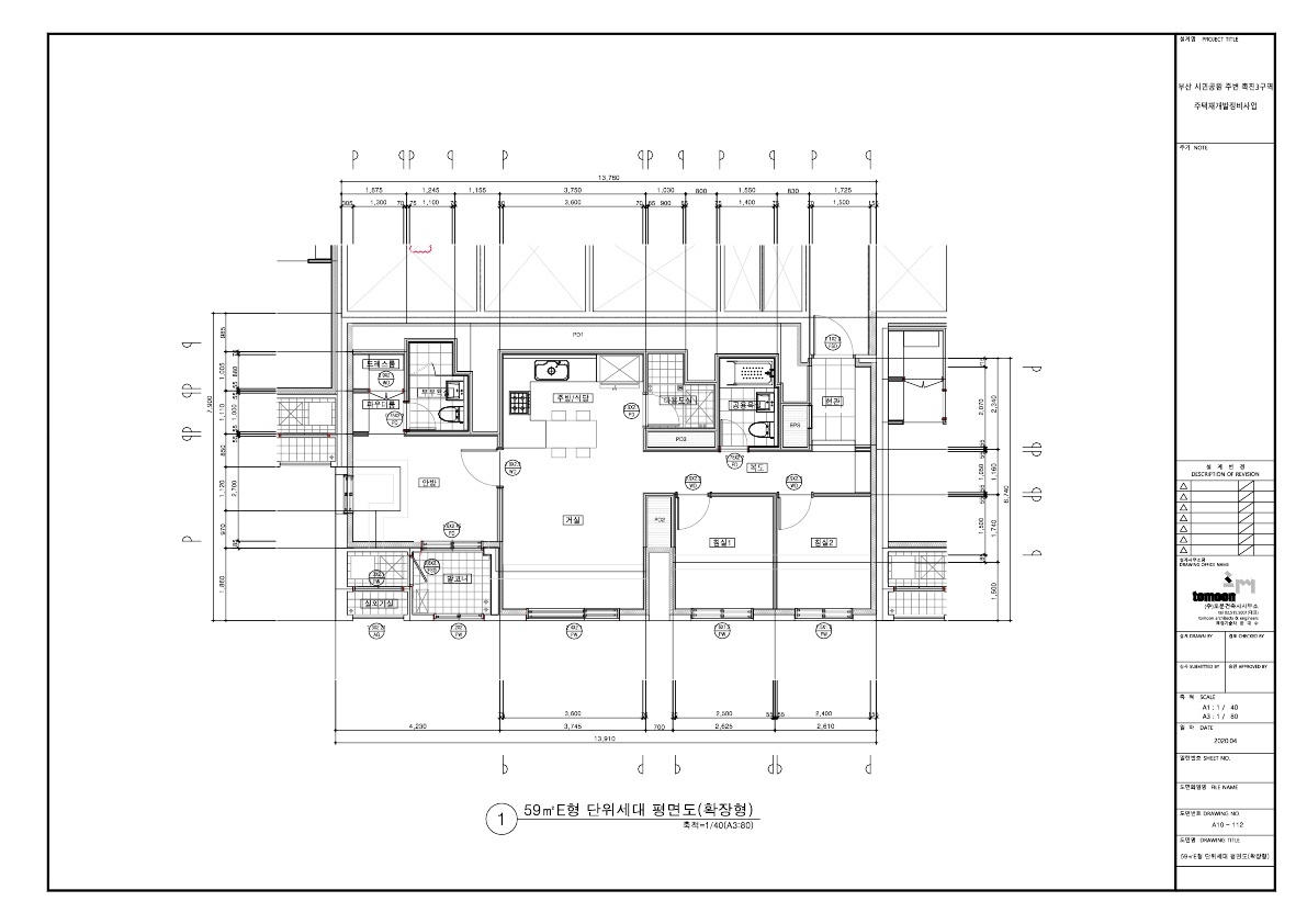
※ 본 도서는 사업시행계획인과 실과협의 및 각종 영향평가(소방심의.교육환경 등) 과정에서 일부 변경될 수 있습니다.
다음검색
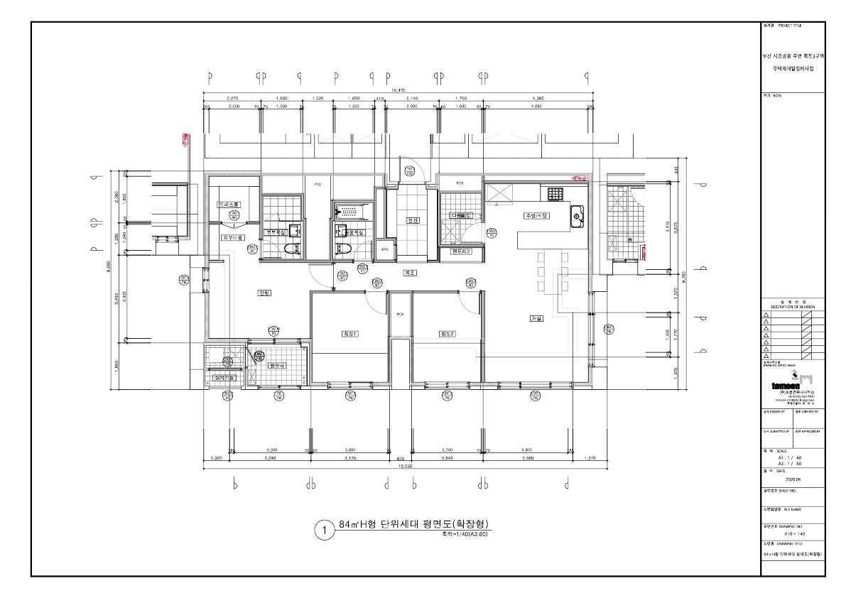
※ 촉진3구역 조합의 허가없이 게시글, 사진, 도면, 동영상 등을 무단으로 게시 및 배포하는 행위를 금지하며, 위반시에는 민형사상 책임을 질 수 있습니다.
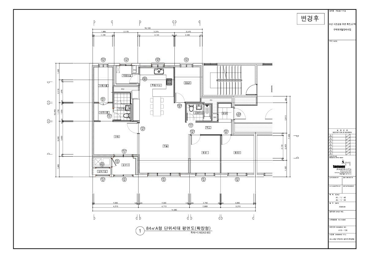
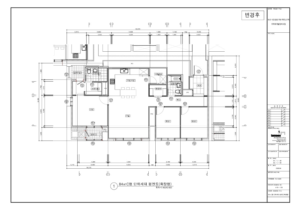
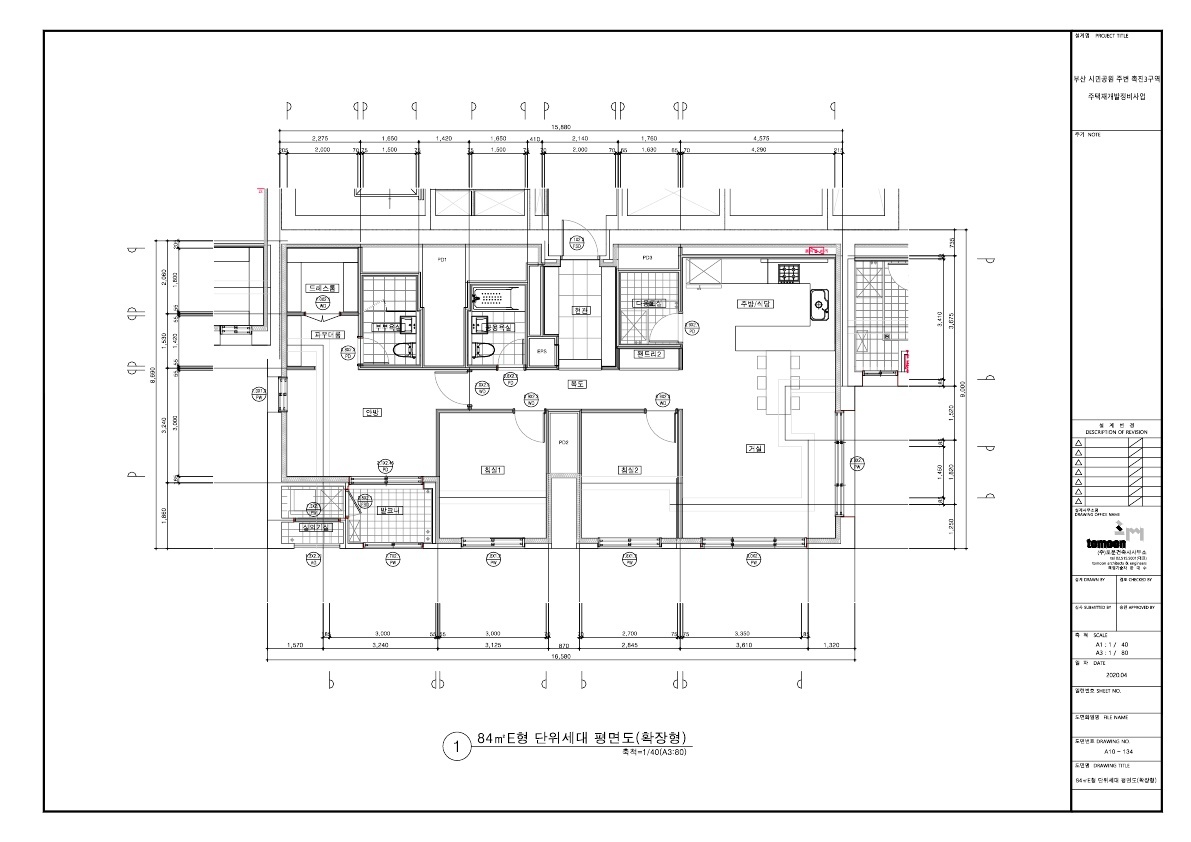
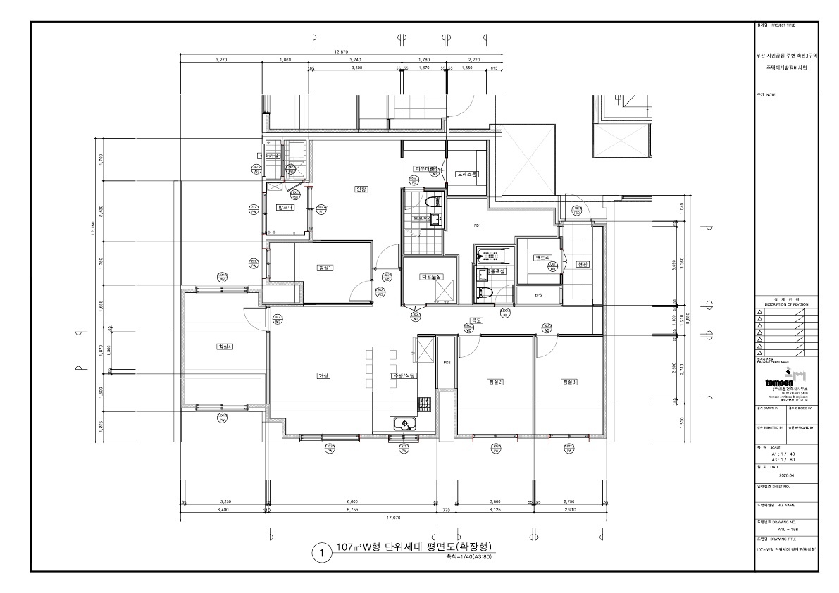
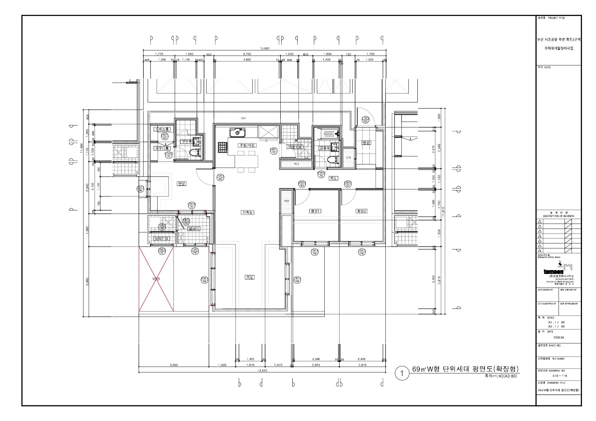
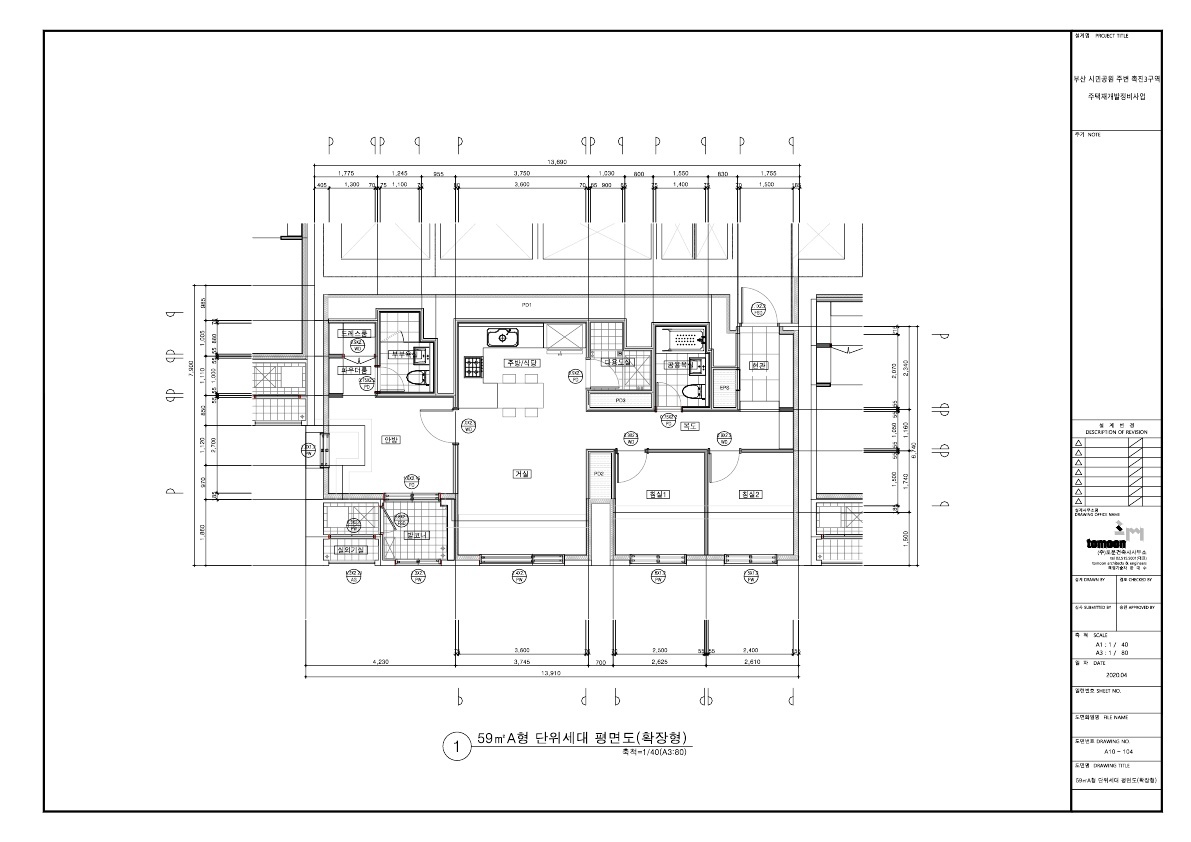
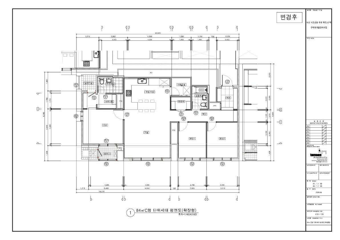
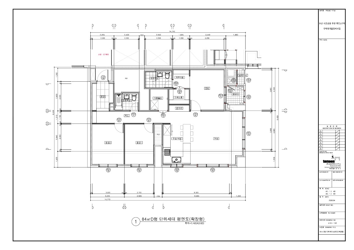
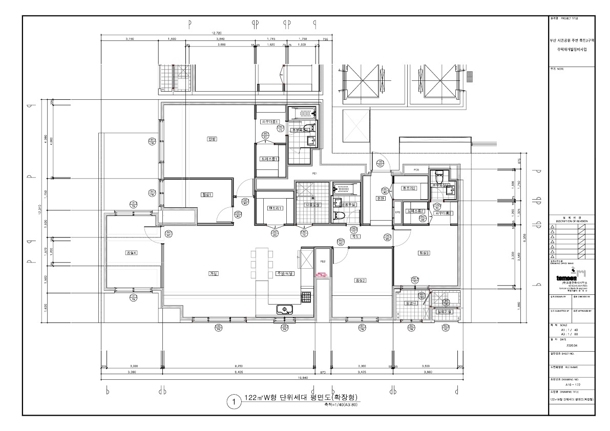
◆ 평면도 변경평형은 35평입니다.
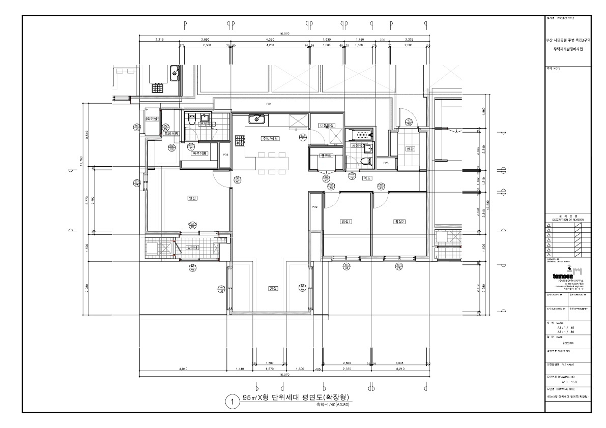
<35평 판상형 평면도 변경후>
<35평 타워형 평면도 변경후>
※ 본 도서는 사업시행계획인과 실과협의 및 각종 영향평가(소방심의.교육환경 등) 과정에서 일부 변경될 수 있습니다.