CAFE

84㎡(33~34형)

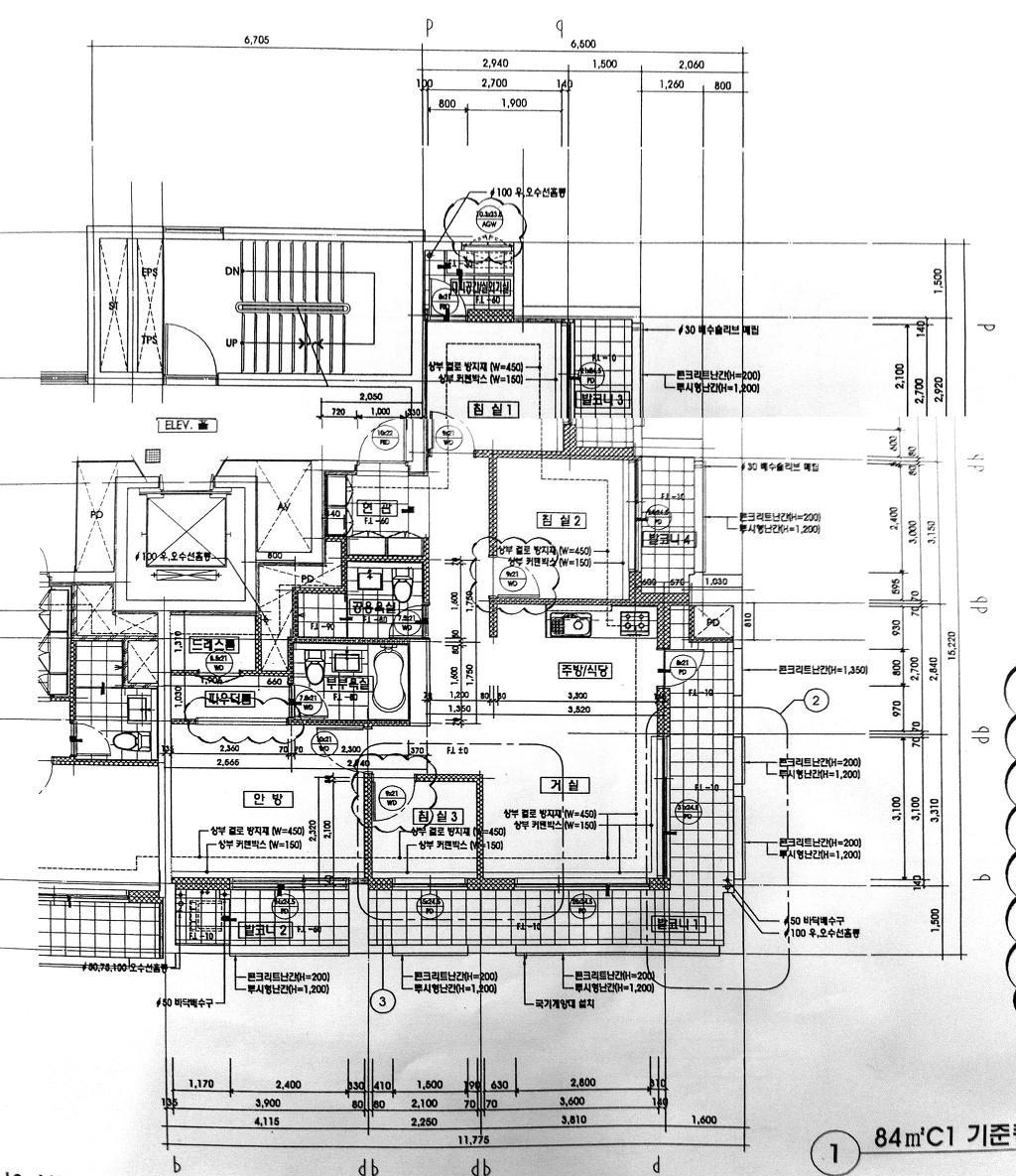
C타입 캐드도면과 각 방, 거실 등 치수 작업한 이미지입니다

작성자HOON(108동)|작성시간11.03.24|조회수991 목록 댓글 5

한참전에 제가 에코이야기마당 코너에 올렸던 이미지인데 흰떡아빠님이 제 대신(?) 또 올려 주셨네요.^^

 

다시 올려 놓습니다. 다운 받아서 사용하세요.

 

 

 

 

 

첨부파일 34PCtype.jpg

 

첨부파일 3D_84m_C.jpg

 

첨부파일 84m_C.jpg

다음검색
현재 게시글 추가 기능 열기

댓글

댓글 리스트
  • 작성자흰떡아빠(117B34) | 작성시간 11.03.24 에구 출처를 밣혔어야 하는데 죄송합니다..HOON님..(__)
    C타입 정보가 좀 부족한것 같아 훈님동의도 없이 올려버렸습니다.
    현재 올리신 자료가 2D,3D에 평면도까지..C타입 종결자료내요..^^
    회원님들께 아주 중요한 자료가 될것 같습니다.~~~
  • 작성자HOON(108동) 작성자 본인 여부 작성자 | 작성시간 11.03.24 아닙니다. 흰떡아빠님 ^^ 항상 수고하시는 모습이 멋지십니다
  • 작성자델파이208동B39 | 작성시간 11.03.24 훈님 자료가 너무 깔끔하고 보기 좋습니다... 롯데가 해줘야 할일을 대신 해주셨네요..
    다음에 시간 되시면 39B 좀 부탁드리면 안될까요?
  • 작성자지원맘(112C34) | 작성시간 11.03.25 책자에 C타입 도면이 축소해서 제공되어 다른형 대비 정확한 치수를 파악하기 어려웠는데 좋은 자료 넘넘 감사합니다.^^
  • 작성자아름다운세상 *^( | 작성시간 11.03.28 손님이 자주 오거나 애들을 따로 둘때 제일 좋은 타입입니다,
    안방옆서재나 옷방 그리고 따로 손님이나 애들방들로 주면 아주 좋아요
    견본타입이 없어서 잘몰라서 그런겁니다 아주 불리가 잘되죠
댓글 전체보기
맨위로

카페 검색

카페 검색어 입력폼