CAFE

사무실 매물

[트리플렉스지식산업센터]입지가 성공을 부른다~2호선 문래역초역세권 영등포사무실임대!!

작성자친절한민실장010-3078-0114|작성시간20.05.26|조회수57 목록 댓글 0


안녕하세요~

하루 행복한 시간 보내고 계신지요~? ㅎㅎ

날씨가 바람이 불어 쌀쌀하면서도

햇살이 따사로워 참 좋은 날씨가 아닐까 싶어요.

커피한잔과 함께 트리플렉스

사무실임대에 대한 내용 관련해서

여러 대표님들에게 말씀을

전달해드리고 있어요 :)

오늘 대표님들에게

전달해드리는 영등포 고층 사무실 임대는

인테리어 옵션이 좋기도 하고

입지도 좋아서 추천해드리는 곳으로

씽크대 & 발코니 두곳 올확장&고층 로얄층

가성비와 사무실 컨디션 두가지를 잡으시는 분들께

강력하게 권해드리고 싶은 근무 공간이예용!

그럼, 전체적인 내용을 말씀드릴께요~^^!





고층 로얄층 씽크대 & 발코니 2곳 확장

실면적 약 19평의 가성비 좋은 영등포 고층 사무실!

2호선 문래역과 가까운 사무실.

임대가는 1,400 / 140만원이예요 :)




트리플렉스 / 영등포 고층 사무실 임대

분양면적은 30.38평 / 실면적

약 19평의 사무실입니다.

임대가는 1,400 / 140만원

양쪽 발코니를 확장해서 실면적 약 19평으로

사용하고 있구요!

시스템 냉난방기 / 수도시설 완비로 보다 나은

사무환경 제공 해주고 있어요.

임차인분이 사업 확장으로 더 넓은 평수가 필요해

만기 기한 되시고 전출을 하셨는데

사무실 사용하시는데

만족하셨다고 말씀하시네용~

현재 공실상태라 언제든지

즉시~입주 가능합니다 !!



해당 영등포 고층사무실의

전반적인 내용을 말씀드릴게용 ㅎㅎ

사무실이 있는 빌딩은

입지좋기로 유명한 트리플렉스

지식산업센터예용!




트리플렉스 위치

서울 특별시 영등포구 문래동3가 46번지

용도

지식산업센터, 지원시설 (근린생활시설, 업무시설)

건축면적

404.19평

규모

6,559평

주차대수

계획 127대

승강기

승객용 3대, 비상용 1대 , 화물용 1대




건물의 용도는 지식산업센터로 1층에는

근린생활시설 상가들이 입점해 있고

위층은 사무실로 사용하고 있는데요~ㅎㅎ

건물이 준공된지 2년 반정도 되었는데

건물이 깔끔하고 세련되어 있어요.

실제 건물 내부 디자인도 현대적인 감각으로 지어져

사무보시는 직종의 업종분들에게 더욱 안성맞춤인

업무환경이예요.

문래역과는 도보 3분거리로

교통도 굉장히 편리해서

직원분들도 선호하는 그런 안성맞춤인

지식산업센터 건물이예용 ^^!

특히 여의도로 바로 연결되는 경인로가 인접해

여의도와 접근성도 GOOD~!

강남 테헤란로나 인천공항을 연결하는 올림픽대로까지

쾌속 교통망을 갖춘 영등포 최고의 입지를 자랑하는 곳이예요.

물류 운송 관련 업종 대표님들도

영등포가 교통이 편리해

영등포에 사무실을 두시고

활동하시는 경우가 많아용!





마곡MRC,상암DMC,구로 및 가산 디지털단지를 잇는

광역 비즈니스 밸리 최중심의 입지 트리플렉스.

이제 여러 신축 건물들이 들어서기 시작했으며

트리플렉스 인근에 제2세종문화회관 및

생각공장당산이 완공이 된다면

이 일대에 더욱 더 많은 인프라시설이

공급될 예정입니다!







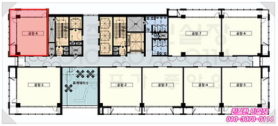
영등포 고층 사무실 임대 매물의 도면!

층은 사무보시는 가장 좋은위치의 고층 및 로얄층!

그곳에서도 탑으로 꼽히는

양발코니자리에 위치해 있어요

(양발코니는 가장자리에 있어 발코니 2곳 주어짐)

조금만 걸어가면 흡연도 하실 수 있는

휴게테라스도 완비 ^^

사무실의 조망차이가 그다지 상관없다고

생각하시는 분들이 많으신데

실제, 사무 업무를 보시는 회사 중에

조망권을 가지고 있는 사무실과

조망권이 없는 사무실의

업무효율도 많이 다르다고 해요

사무 효율을 중시하는 분들은 꼭

어느정도의 조망권을 갖춘 사무실로 가시는게

정말 좋다고 합니다 ^^





해당 영등포 고층 사무실 입구 부분 사진.

공용공간과 방화문도어는

굉장히 현대적인 느낌의

인테리어로 지어져 있는데요~

보다 깔끔하고 스마트한 느낌이 팍팍!

많은 영감이 솟는 디자인이예요 ㅋㅋㅋ

보통 이런 공용공간의 디자인이

건물의 얼굴과도 같은 것이라

어떠한 디자인으로 설계하느냐에 따라

건물의 가치가 다르다고 해요.

친절한 민실장이 보기에 해당 '트리플렉스'

건물만큼 이쁜 공용공간은 없다고 생각해요 ^^






본매물 영등포 고층 사무실 내부 모습인데용

간단히 사무실 옵션을 말씀해 드리면

도어락이 설치되어 있는 유리문

넉넉한 탕비공간과 시스템냉난방기

블라인드가 설치되어 있어요.

만기 전출하신지 얼마되지 않아

정말 깨끗한 느낌 그대로를 가지고 있네요.

입주날짜는 언제든지 협의 사항이예요.

될 수 있으시면 임차인, 임대인 분의

원하시는 일정에 들어오실 수 있도록 조율하겠습니다~!








채광이 너무 좋아서

사무실 내부가 밝아서 기운이 좋아요!

내부면적은 전용 15.55평이지만

양발코니 자리의 발코니 자리를 공사해서

실제 면적으로 사용하고 있어요 ~ (실 약 19평)








원래는 이렇게 발코니 공간이

있는 곳이예요 ㅎㅎ

확장해서 3.5평~4평정도의 공간을 더 사용해서

보다 알차고 효율있게 사용하는 영등포 고층 사무실.

제 예상으로는 해당 사무실은 6명내외로

근무하기 적절하지 않을까 싶어요 :)





굉장히 높은 층고의 탑층 뷰를 가지고 있는 만큼

업무를 보시다가 지칠 때 창문쪽을 바라본다면

답답하지도 않고 보다 더

오랜시간 근무를 할 수 있는 환경을 제공해요.

컴퓨터로 업무를 보시는 업종분들에게

더욱 효율적인 공간.

호실 옆에는 휴게테라스가 마련되어 있어서

간단히 대화하시면서 휴식하기도 정말 좋아요 ^^








탕비공간이 넉넉히 마련되어 있어서

물을 많이 사용하는 업종도 추천해요.

다른 사무실과도 비교했을 때

가성비가 뛰어난것 같아요!

공용관리비는 분양평당 5,000원에서 5,500원

(약 15만 2,000원)

주차 1대를 무료로 제공하고 있어서

대표님 주차하시는데

편리하게 주차하기 좋아요 ^^








영등포 고층 사무실 엘리베이터 사진이예용~ㅎㅎ


인승용은 총 3대 / 비상용 1대 /

화물용은 1대 배정되어 있는데

인승용3대는 각각

홀수층,짝수층,전층으로 운행을 하고 있습니다



실제로 촬영한 동영상이라 해당 동영상을 보시면

어느정도의 느낌을 가졌는지 보시기 좋아요 ㅎㅎ

실제 현장도 언제든지 먼저 연락주시면

보실 수 있는 곳입니다.

면적과 인테리어 옵션/ 위치 대비해서

굉장히 가성비 좋은 임대료를 가지고 있어요.

영등포 내에서 사무실을 구하신다면

이만한 조건을 가진 사무실을 없을꺼라 생각해요.

영등포 고층 사무실 글은

여기까지로 마무리 하겠습니다

친절한 중개로 최선을 다하겠습니다♡

다음에도 더 좋은 매물로 찾아뵙겠습니다 ^^

감사합니다 :)

지식산업센터 분양/매매/전매/임대 전문

친절한 민실장이었어요 !













다음검색
현재 게시글 추가 기능 열기

댓글

댓글 리스트
맨위로

카페 검색

카페 검색어 입력폼