CAFE

이전자료

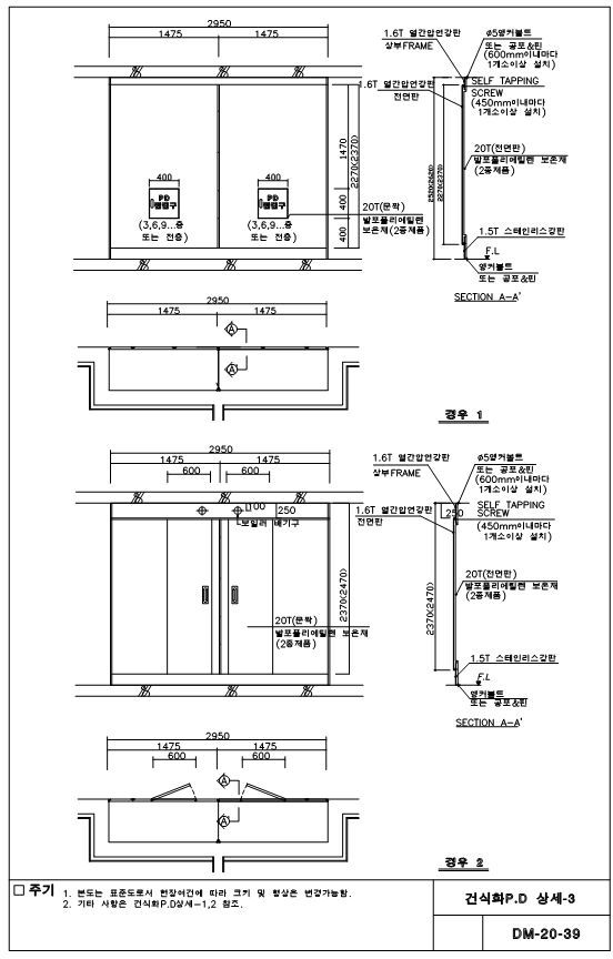
DM-20-39 건식화 P.D 상세-3

작성자산들이|작성시간09.10.08|조회수935 목록 댓글 1

 

 

 

 

다음검색
현재 게시글 추가 기능 열기

댓글

댓글 리스트
  • 작성자산들이 작성자 본인 여부 작성자 | 작성시간 10.05.10 요즘 가스입상밸브가 절연재가 들어가지 않는 제품이 사용된다고 하네요. 그러면 입상관에 본딩용 밴드 설치는 필요 없겠죠. 또한 접지용 밴드에 동관의 경우 절연볼트 및 너트를 사용하도록 하였는데... 이 경우 절연으로 인해 접지가 되지 않습니다. - 수정되어야 할 부분인것 같습니다.
댓글 전체보기
맨위로

카페 검색

카페 검색어 입력폼