CAFE

조립식 판넬주택 시공도면 도와주세요

작성자오독이인생|작성시간16.03.26|조회수3,095 목록 댓글 18

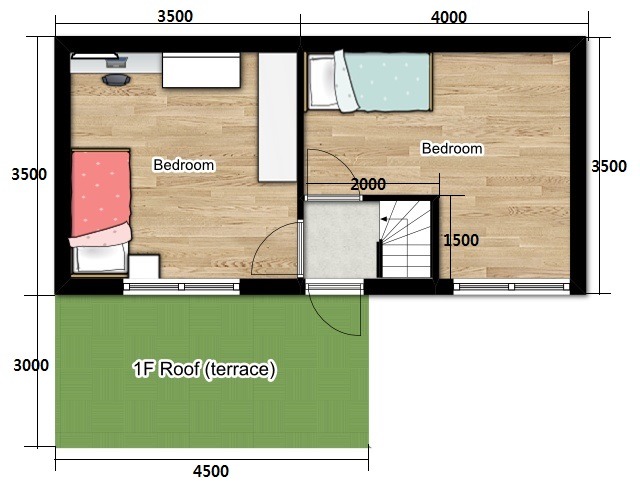
첨부 평면도를 직접그렸는데 설계사무소 가면 도움이되는지요 2층으로 지을 예정인데 시공이 가능한지 설계사무소에서 상세설계를 해주는지 궁굼함니다

다음검색
현재 게시글 추가 기능 열기

댓글

댓글 리스트
  • 작성자자연애건축 | 작성시간 16.03.29 보통 삼백에서~삼백오십까지 달라 하더군요.
  • 답댓글 작성자오독이인생 작성자 본인 여부 작성자 | 작성시간 16.03.29 네 감사합니다
  • 작성자墨潭(묵담) | 작성시간 16.03.29 안녕하세요.
    저도 같은 포항에 살고있는 사람입니다.
    샌드위치 판넬집이 아니더라도 직영으로 지을수 있는집이
    여러종류 있습니다.
    건축업이 직업은 아니지만 여러종류의 집을
    직접 지어본 경험이 있는사람으로써
    필요로 하신다면 몇가지 조언과 도움을 드리겠습니다.
    답글을 주시면 연락처를 드릴께요,,,,
  • 답댓글 작성자오독이인생 작성자 본인 여부 작성자 | 작성시간 16.03.29 네 감사합니다 같은 포항에 계신다니 방갑습니다 4월 중반에 송도에 신축 계획입니다 연락처주시면 여러가지 도움을받겠습니다 감사합니다
  • 작성자외롭고힘들어도 | 작성시간 16.05.02 화장실변기위치가 좀 어색해 보입니다.. 불편하겠는데요?
    식탁배치도 실제사용에리어를 감안해서 배치해 봐야 합니다.
    그래야 공간배치에 에러가 없죠..
    그리고 2층바닥을 뭐로 하실지 모르지만.. 각목뼈대에 판넬바닥 혹은 사각철제구조물에 판넬바닥?
    뭐로 하더라도 계단실벽체는 좀 약해보입니다.
    중앙의 계단실이 2층을 떠받히는 구조벽역할을 해야하는데..
댓글 전체보기
맨위로

카페 검색

카페 검색어 입력폼