CAFE

▣-예쁜 우리집

[(인테리어)]야외 산책로 같은 실내 벽돌 공간

작성자스타|작성시간24.10.31|조회수55 목록 댓글 0

30여 년의 추억이 담겨 있는 옛 집터에 새출발을 위한 신축 프로젝트를 진행했다. 두 개의 매스를 연결하는 붉은 벽돌의 계단실은 야외를 산책하는 듯한 풍경을 완성한다.

외부에 사용된 벽돌을 내부에도 적용했다. ㄱ자로 이어지는 커튼월을 통해 자연스러운 빛의 움직임을 끌어들인다.외부와 내부의 풍부한 연계성과 함께 건축주의 추억을 살린 집

대지는 건축주가 유년 시절부터 결혼 후 가정을 꾸리며 생활해 온 삼십여 년 동안 많은 추억을 함께해 온 옛 집터였다. 좋은 기억은 마음에 간직하고, 은퇴 후의 새로운 삶을 설계하기 위해 4인 가족을 위한 도심 단독주택 프로젝트가 시작되었다. 땅은 도심에서 보기 드문 이른바 뒷산, 근린공원의 초입에 위치하여 도시와 자연의 경계에 놓여 있다. 대지의 용적률은 250%로 지금 건물의 3배의 규모로 신축이 가능한 곳이었다. 하지만 건축주는 정해진 예산 내에서 4인 가족의 생활을 위한 집을 원했다. 또한 단독주택에서 오랫동안 살았던 경험으로 규모 대비 집을 관리할 때 들어가는 수고와 단독주택이라는 주거의 형태에서 가족 구성원에게 필요한 공간도 정확히 인지하고 있었다. 결국 40%의 건폐율과 80%의 용적률로 필요한 만큼의 집을 짓게 되었다.건축주가 들려주는 집의 옛 이야기가 배치계획의 기준이 되었다. 사계절을 느낄 수 있는 갖가지 나무와 꽃이 심겨 있던 남쪽 마당, 그런 마당을 통해 볕이 잘 들었던 거실, 1층을 세놓아 사용할 수 없었던 뒷마당 대신 2층의 작은 주방과 연결된 외부 공간에서 가족, 지인들과 고기를 구워 먹던 이야기 등 좋은 기억으로 남아있는 공간의 경험을 새로운 집에서도 지켜 드리고 싶었다.

현관에 들어섰을 때 보이는 풍경. 중앙 계단실은 채광을 담아내고, 모든 공간으로 시선을 이어주는 역할을 한다.

 

주방과 다이닝 공간은 뒷마당과 곧바로 연결된다. 높은 층고와 외부로의 공간 확장으로 트인 공간감을 갖는다.

북측의 뒷마당을 거실-주방과 연계함으로써 옛집의 외부공간에 대한 건축주의 기억을 이어주려고 했다. 인접한 초등학교와의 경계에 높게 쌓인 옹벽과 수목으로 둘러싸인 뒷마당은 도심에서 가지기 힘든 온전히 개인적인 외부 공간이 된다.단독주택 생활의 가장 큰 장점은 대지에 발을 붙이고 자연과 늘 가까이할 수 있다는 것 아닐까. 이에 우리는 역으로 바깥 환경을 실내로 끌어들여 외부 같은 내부 공간을 만들기로 하였다. 두 동으로 분리된 매스의 중심에 외부 중정 같은 내부 계단을 계획했다. 커튼월을 통해 남향과 동향으로 열려있는 내부 계단은 단지 층과 층을 연결해 주는 곳이 아니다. 계단의 보이드는 채광 통로가 되어 북측의 공용공간에서도 외부 환경을 온전히 느낄 수 있게 한다. 내부까지 시각적, 물리적으로 연결된 벽돌은 계단을 오르내릴 때나, 거실과 취미실에 앉아 내부 창을 통해 보았을 때 물성 그 자체로 외부공간에 있는 듯한 경험의 차이를 만든다. 벽돌 벽면에 투영되어 시시각각 변하는 해와 달의 그림자 또한 실내에서도 외부 중정을 거니는 듯한 독특한 감각을 사용자에게 제공한다.


SECTION


다이닝에서 연결되는 거실. 합판으로 마감해 분위기를 차별화했다. 3면의 창들이 각기 다른 풍경을 들여온다.

 

계단을 기준으로 남측 매스에는 가족 구성원들의 사적 공간이 구성되어 있다.

출입로 옆에는 1층 방과 연계한 앞마당을 조성했다.

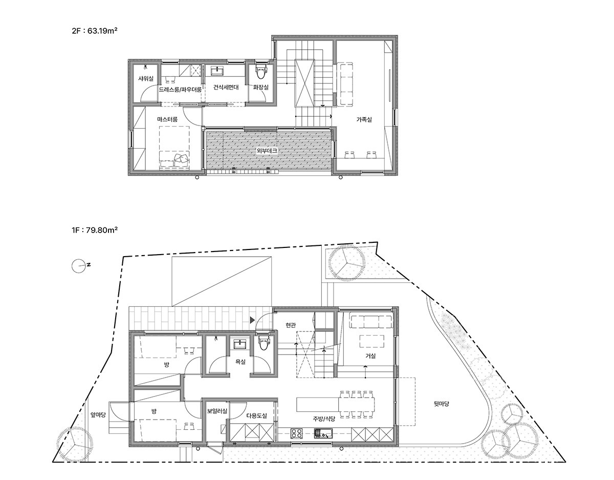
3×3m 모듈의 기본 매스로 구성된 두 동은 기능을 나누어 가진다. 두 영역을 잇는 중심 공간에는 외부로 열려있는 내부 계단이 위치한다. 이를 기준으로 북측에 면한 매스에는 거실, 다이닝룸, 취미실 등 가족들이 모이는 공간이 배치되어 뒷마당 및 내부 계단과 관계를 맺는다. 취미실은 2층으로 분리되어 있으면서도 시각적으로는 연결되어 있기 때문에 가족 구성원들의 ‘따로 또 같이’ 휴식이 가능하다. 남측의 작은 마당과 면한 매스는 사적 공간의 집합으로 최소면적과 합리적인 동선으로 구성했다. 1, 2층으로 자녀 공간과 부부 공간인 마스터룸을 분리하고 침실, 건식 세면대, 욕실, 화장실, 드레스룸, 파우더룸을 건축주에게 필요한 면적과 최소한의 동선으로 제안하고 나머지는 수납공간에 집중했다.


PLAN


HOUSE PLAN

대지위치 : 서울특별시 은평구
대지면적 : 195㎡(58.99평)
규모 : 지상 2층
최고높이 : 8.75m
건축면적 : 79.8㎡(24.14평)
연면적 : 142.99㎡(43.25평)
건폐율 : 40.92%
용적률 : 73.33%
구조 : 기초 - 철근콘크리트 매트기초 / 지상 –스틸하우스조주차대수 : 1대
단열재 :비드법보온판 2종1호, 수성연질폼 250mm, 100mm
외부마감재 : 외벽 –점토벽돌타일(로제레드), 적밤색 줄눈, 레드홀블록 / 지붕 –고내식 고내후성 합금도금강판 싱글락 패널
내부마감재 : 벽,천장 –벤자민 무어 클라우드화이트 에그쉘, 점토벽돌타일(로제레드), 자작나무 합판 / 바닥 – 구정마루 그랜드 텍스쳐 그랜드 오크, 포세린 타일
수전 등 욕실기기 : 아메리칸 스탠다드, 인조대리석 세면대
주방가구·붙박이장 : UncleJo
제작가구방문 : 예림도어
계단재, 난간 : 고무나무+평철난간
데크재 : 페데스탈 시스템 + 페데스탈 타일 20mm
담장재 : 점토벽돌, 큐블럭 레드
창호재 : LX하우시스 LX X-Profile Slim Façade
조경석 : 현무암 부정형 판석
현관문 :LX하우시스 E9-ADR80
전기·기계 : 성지이엔씨
설비 : 코담기술단
구조설계 : 진구조엔지니어링
시공 : 공간연구소 집
설계·감리 : 건축사사무소 히어 이동진, 윤선희


(위, 아래) (위, 아래) 2층 가족실 겸 취미실. 계단으로 통하는 입구와 벽돌 마감재는 외부 공간에 와 있는 듯 신선한 감각을 전한다.

2층 마스터룸은 외부 데크와 통한다. 가운데가 뚫린 블록으로 벽을 쌓아 빛을 받으면서도 외부의 시선을 차단하도록 했다.

2층 가족실 벽면은 높은 책장과 수납공간으로 채웠다.

남북으로 길게 형성된 대지에는 두 개의 매스가 구분된 듯한 모습으로 관계를 맺고 있다.


건축가 윤선희, 이동진 : 건축사사무소 히어

건축사사무소 히어는 윤선희, 이동진 건축사가 2023년 설립한 건축사사무소이다. HERE[히어]는 ‘여기, 지금‘을 의미하는 보통의 단어이지만, 대지를 의식하며 떠오른 첫 사유로부터 구축에 이르기까지의 매 순간 정성을 쏟고자 하는 태도를 의미한다. 히어는 사용자와의 교감, 공간의 쓰임에 대한 깊은 고민으로 공간과 시간을 디자인하며 그 속에서 일어나는 일상 속 비일상적 경험을 중시하는 건축 과정을 지향한다. 윤선희는 인하대학교 건축학과를 졸업하고 동 대학원에서 석사학위를 받았다. SKM Architects, OBBA(건축사사무소 오비비에이)에서 다양한 규모의 실무경험을 쌓았다. 이동진은 인하대학교 건축학과를 졸업하고 동 대학원에서 석사학위를 받았다. 정림건축을 거쳐 건축사사무소 틔움을 공동 운영했으며, 인하대학교 건축학과 겸임교수로 출강 중이다.
02-6958-5958│www.herearchitects.kr

글 건축사사무소 히어 | 사진 장원준 | 구성 조재희

다음검색
현재 게시글 추가 기능 열기

댓글

댓글 리스트
맨위로

카페 검색

카페 검색어 입력폼