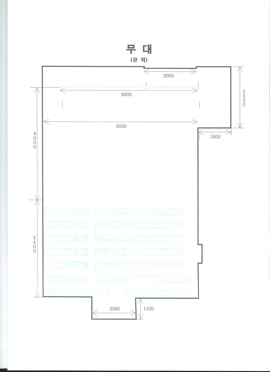
소극장 무대/조명걸이대/무대규격 PDF/엑셀 파일입니다. 작성자세이레|작성시간13.02.12|조회수966 목록 댓글 0 글자크기 작게가 글자크기 크게가 스캔0001.pdf 스캔0002.pdf 스캔0003.pdf 세이레아트센터-도면.xls 첨부파일첨부된 파일이 6개 있습니다. pdf 파일 스캔0001.pdf 다운로드 pdf 파일 스캔0002.pdf 다운로드 pdf 파일 스캔0003.pdf 다운로드 jpg 파일 그림걸다.jpg 다운로드 jpg 파일 그림걸다 001.jpg 다운로드 xls 파일 세이레아트센터-도면.xls 다운로드 다음검색 현재 게시글 추가 기능 열기 북마크 공유하기 신고 센터로 신고 댓글 댓글 0 댓글쓰기 답글쓰기 댓글 리스트