CAFE

▦▶통나무주택정보

전라북도 정읍에 지어진 39평 복층 통나무주택입니다.

작성자저탄소주택|작성시간12.11.26|조회수2,741 목록 댓글 25

 

전라북도 정읍에 지어진 39평 복층 통나무주택입니다.

 

 

 

 

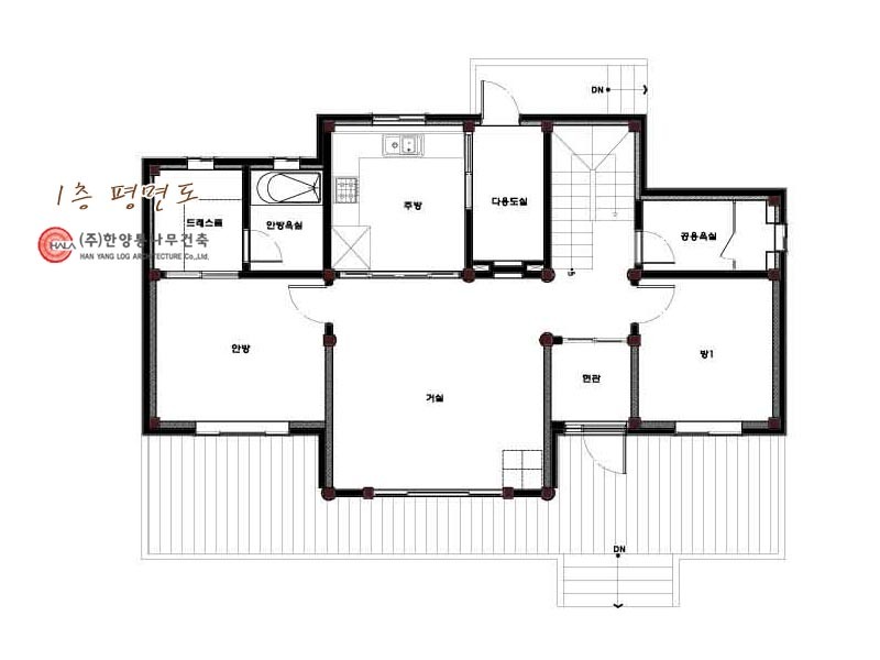
ㆍ위     치: 전라북도 정읍시 칠보면          ㆍ구    조: 목구조(Post&Beam공법)
ㆍ연 면 적: 129.42㎡(39평)                      ㆍ건축규모: 지상1층,지상2층
ㆍ용     도: 개인주택                              ㆍ골조수종: 북미산 더글러스 퍼
ㆍ난방방식: 습식난방                             ㆍ창    호: 유럽식 시스템창호 
ㆍ층별면적: 1층-95.12㎡(28.77평) /  2층-34.30㎡(10.37평)
ㆍ외부마감: 지붕-양식기와(오지) / 벽-2X6벽체  스톤미장 위 파벽돌, 채널사이딩
ㆍ내부마감: 천장-루바 / 벽-2X4벽체 위 황토벽돌, 한지,루바 / 바닥-횡토대리석, 타일

 

 

 

 

 

 

통나무골조와 경량목조벽체를 제작하여 현장으로 이동후 조립을 합니다.

공장에서 50%이상의 공정을 생산하기 때문에 공기가 50%정도 단축됩니다.

 

 

 

 

지붕에 평판형 오지기와를 얹고 내부바닥은 황토대리석으로 시공 하였습니다.

소개되는 주택의 특징은 거실과 주방은 통나무골조가 외,내부로 노출되며 그 외 방들은 목조벽체 안쪽에

 또 한번의 황토벽돌을 쌓아 올렸기 때문에 내부로만 골조를 노출 시켰습니다.

처음에 외내부 전체벽체를 황토벽돌로 쌓기를 원하였지만 내부에만 황토벽돌로 쌓아서 외부는 한결 깔끔하고

 환한 자태를 뽑내는 단열과 디자인을 모두 고려한 주택입니다.

 

 

 

 

완성된 주택의 모습니다.

 

 

  

어떻습니다?두마리의 토끼를 잡은듯한 느낌 아니신지요?

내부는 황토벽돌과 통나무골조가 그득그득!!

외부는 군더더기 없는 깔끔한 디자인!!!

 

문의 대표번호 1599-6657 /

-출처 www.lumber1.net (주)럼버홈코리아-

 토지사랑  http://cafe.daum.net/tozisarang/

다음검색
현재 게시글 추가 기능 열기

댓글

댓글 리스트
  • 작성자곰바위 | 작성시간 13.01.12 25평, 30평 단층 견적 부탁드립니다 강원도 홍천입니다
  • 작성자신영철 | 작성시간 13.02.26 이번4월에영월로내려가려고합니다~땅은사놔읍니다20_25평사이롬생각하고있읍니다~견적부탁합니다~~~01084456777
  • 작성자노가리촌 | 작성시간 13.04.05 똑같은 구조로1층20평2층10평 견적 부탁 드림니다,강원도속초(daeyoung7015@hanmail.net)
  • 답댓글 작성자저탄소주택 작성자 본인 여부 작성자 | 작성시간 13.04.19 안녕하십니까?노가리촌님!
    이메일 발송하였습니다.
    감사합니다.
  • 작성자소와쟁기 | 작성시간 14.03.10 구경 잘 하였습니다..1층30평 2층10평으로 지으려 합니다.무턱대고 평당 단가를 여쭤봐서 죄송 합니다 ..꾸^벅 그래도 들어가는 단가를 알아야 계획을 세울것 같아서 무례를 범 했습니다...토목공사는 완료한 상태입니다.soung9715@hanmail.net 연락 기다려 봅니다..수고하세요
댓글 전체보기
맨위로

카페 검색

카페 검색어 입력폼