CAFE

건축설계도 - 설계도면보는법,평수계산하는법

작성자우드왕|작성시간17.07.04|조회수20,961 목록 댓글 1

 

건축설계도 - 설계도면보는법,평수계산하는법

 

 

평수계산하는법

1坪->3.24  곧 이것은 3.24㎡(헤베)라는 이야기다.

㎡란->mXm=㎡(미터가  두개란 뜻으로 제곱미터가 되는것이다)

만약 가로X세로X높이를 계산한다면 ㎥(3제곱미터를 사용할것이다)

㎡ 를 계산 하는방법

"예" 가로15mX세로22m =330㎡

 

 

건축설계도 - 설계도면의 함축언어 - 표시기호 알아보기 (한번쯤 읽어 보시는게 좋겠지요?)

  

우리가 옷을 만들기 위해 치수를 재고 스케치를 하듯 주택을 지을때도 으레 설계도면을 그리고 각종 자재자재와 면적을 정하게 된다. 이 때 도면에는 설계자의 의도가 빠짐없이 담겨져야 하는데 한정된 지면에 이를 일일이 밝히기란 어려움이 따른다. 때문에 각종 약자와 표시기로를 사용해 설계도를 작성하면 효율적으로 설계의도를 설명할 수 있다.

 

즉, 설계기호는 설계자, 시공자, 건축주 모두에게 통용되는 함축적 언어인것이다. 설계기호에는 이 집이 남향인지 북향인지, 도면에서 보이는 방의 실제 너비는 어떻게 되는지 등의 일반사항 뿐 아니라 시공방법, 건축재료 등을 알리는 전문적인 사항까지 모두 해당된다. 이 난에서는 주택 건축의 기본인 설계도면에서 흔히 볼 수 있는 각종 표시기호와 설계약자에 대해 소개하고, 평면도와 단면도, 사진을 곁들어 건축주의 이해를 돕고자 한다.

 

 기초표시기호


빛이 잘 드는 주택을 짓기 위해서는 향을 볼 줄 알아야 하는 데 이를 일러주는 표시기호가 '방위표' 이다. 또 도면을 실제 크기에 비해 얼마나 축소했는지 가늠할 수 있는 '척도'를 익힐 필요가 있겠고, '치수선'은 실제치수를 한눈에 파악할 수 있어 공간의 스케일을 짐작하는 데 도움을 준다. 이외에도 알파벳 이니셜로 표기하는 '설계 약자' 에 대해서 알아본다.

 

 

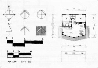
1) 방위표

정면도와 배치도 등의 도면은 통상 '북'을 위로 하여 그리는 것을 원칙으로 하고 있다. 영자 N이 나타내는 곳이 북쪽으로, 오른편은 동쪽, 왼편은 서쪽을 이른다. 북쪽의 반대편은 남쪽이다. 주택의 향을 알 수 있는 방위 표시기호는 여러 형태로 표현할 수 있다. 
 

2) 척도

주택을 도면으로 표현하기 위해서는 일정한 비율로 크기를 조절할 필요가 있다. 이때 '일정한 크기의 비율'을 척도라 한다. 도면의 척도에는 실물을 일정한 비율로 확대하는 '배척'과 실물과 같은 크기로 그리는 '실척', 축소하여 그리는 '축척'이 있으며 일반적으로 큰 건물을 도면에 축소해 표현하기 때문에 축척을 많이 쓴다.

 

3) 차수선
도면 각 부분의 길이를 나타내는 선과 치수이다. 축소된 도면에 실제 치수를 표기함으로써 시공 후의 스케일을 대략적으로 상상할 수 있고, 각 실의 크기도 비교할 수 있다. 치수의 단위는 mm이고, 단 도면에는 이 단위를 표기하지 않고 있어 단위를 감안해 계산해야 한다. 참고로 설계시 일반적으로 쓰이는 단위 또한 mm로, 도면을 볼 때 단위 표시가 되어 있지 않은 수치는 대부분 mm가 생략되어 있다고 보면 된다.

 

4) 약자
설계도면을 훑다보면 종종 영문 약자를 만나게 된다. 길이(L)만으로 표현이 부족한 대해서는 높이(H)며, 폭(W) 등까지도 밝혀 도면을 보는 이의 이해를 돕는다. 아래 약자는 건축 도면에서 통용되고 있는 것으로, 몇몇은 수학 교과서에서 보았음직한 것도 눈에 들어온다.


 

   
 
L : 길이 H : 높이  W : 폭  THK : 두께  Wt : 무게
A : 면적  V : 용적  D,ø : 지름  R : 반지름
 
   

 

 

재료구조 표시기호

 

평면도에는 각 실의 위치와 모양새뿐 아니라 창문과 문의 형태, 벽체의 종류 또한 표현할 수 있다. 이러한 재료 표시기호의 경우 축척 정도별로 표시사항이 구분되어 있어 1/100(또는1/200)일때보다 1/20(또는 1/50)일 때 재료표시를 더욱 자세하게 표현할 수 있다. 벽체의 경우 그 표기가 상세하기 때문에 1/400이나 1/500과 같은 축척이 큰 도면에는 나타내기 어렵고, 1/50 정도의 축척이어야 상세한 표현이 가능하다.

 


 

설계개요

설계개요는 설계도면을 그리기 위한 기본적인 사항들이다. 주택이 지어질 대지는 어디에 위치해 있고, 주변환경과 대지의 전체면적, 그리고 실제 주택은 몇 평, 몇 층 건물로 올릴 것이냐 하는 등의 내용이다.

 

대지위치는 건축주가 직접 결정할 수 있는 부분이지만 건축면적과 용적률 등은 법적으로 규정되어 각종 건축제한을 받게 된다.
여기에서는 도면에 첨가되는 '설계개요' 에 어떤 사항들이 언급되고, 주택의 면적 계산은 어떻게 하는지 확인한다.

1) 대지위치


지번도에 올라있는 해당 대지의 지번수를 말한다.

 

2) 지역지구


지역지구란? 토지이용계획에서 토지의 용도나 기능을 계획원칙에 부합하도록 유도하기 위해 마련한 법적ㆍ행정적 장치를 말하며, 해당지역에 따라 건축제한을 받게 된다.


'지역'은 크게 주거지역, 상업지역, 공업지역, 녹지지역 등 4개 지역으로 분류되며, 주거지역은 제 1종, 제2종 전용주거지역과 제1종, 제2종, 제3종 일반주거지역, 그리고 준주거지역으로 분류된다. 상업지역은 중심상업, 일반상업, 근린상업, 유통상업지역으로, 공업지역은 전용공업, 일반공업, 준공업지역으로 나뉘며, 녹지지역은 보전녹지, 생산녹지, 자연녹지 지역 등 16개 지역으로 각각 분류된다.

 지구'는 풍치, 미관, 고도, 방화, 시설보호, 보존, 공항, 아파트, 방재, 도시설계, 위락, 취락, 경관,

개발촉진지구 등으로 구분되어 있다.


예비 건축주님!
공부를 하셔야 부실공사없는 집짓기가 됩니다.
사전에 공부나 준비없이 공사진행중에 미심쩍은 점이 발견되면
그때서 검색하고 공부를 합니다.
공부를 하는순간 아는것이 병이되는 경우가 발생합니다.
건축정석 시방서대로 공사하는 업자는 거의 없거든요.
건축주가 아는많큼 업자와 갈등이 생깁니다.
건축주님!
집짓기전에 핵심만 공부하세요!
다음카페 도담채주택 전문카페 오셔서
"건축주 이것만 알아도 부실공사는 없다"
최소3번만 읽으면 부실공사 없읍니다.
 
3) 대지면적


대지는 건물을 지을 수 있는 땅을 말하고 보통 이웃집과 행길의 경계선으로 세워지는 울타리의 안쪽 공간이다. 대지란 토지안에서 포함된 개념으로 보지만 토지가 반드시 대지인 것은 아니다. 대지면적은 건축물 대장에 표시된 면적만을 말하기 때문에 토지면적과 같거나 작을 수도 있다.

 
4) 건축면적과 연면적


건축면적과 건축물의 1층 바닥면적을 말하며 건평이라 이름하기도 한다. 건물 각 층의 바닥면적을 합한 면적은 연면적이 되며 연건평이라 칭하기도 한다.

 
5) 건폐율


대지면적에 대한 건축면적의 비율이다. 건폐율은 건축법에 규정되어 있으며, 건축물의 과밀방지와 일조, 채광, 통풍 등의 위생상태 개선, 재난대비 등에 대한 공간확보를 위한 사항이다. 따라서 건물을 짓기 이전에 먼저 건폐율을 반드시 확인해야 한다. 건폐율은 건물 전체 면적을 결정하는 매우 중요한 요소가 되기 때문이다.

 
6) 용적률


용적률이란 건물이 들어선 대지의 면적에 대한 연면적의 비율을 말한다. 대지에 자리한 건물의 부피 개념으로 볼 수 있으며, 지역에 따라 허용된 용적률의 치수는 건축법규에 규정되어 있다. 도심지와 같이 고층 건물이 들어선 곳은 용적률이 높은 곳이고,

임야나 농어촌 지역에서는 용적률이 낮다.
 
7) 주요마감


내외부 마감은 주택의 표정을 결정짓는 중요한 요인이다. 예를 들어 주요마감 표시로 외부/외단열 시스템, 비닐사이딩, 18mm 투명복층유리, 내부/루바, 고급벽지, 온돌마루, 황토방이라고 적혀 있다면 그 집의 외장재 일부는 외단열 시스템이고, 그 나머지는 비닐사이딩이라는 뜻이다. 그리고 창문은 18mm 투명복층유리를 사용했다는 것을 의미한다. 또 내부바닥은 온돌마루와 황토방, 벽과 천장은 루바와 고급벽지로 마감했음을 설명한다. 이처럼 설계노트에 표시된 내용만으로도 집에 쓰인 주요자재를 한눈에 알 수 있다.

알아두면 좋은 정보

 

도면에 축척이 없을때

 

도면을 읽다보면 축척이 표기되어 있지 않은 경우를 으레 보기 마련이다. 치수선이나, 스케일 바 등 도면의 실체 치수를 가늠할 만한 정보가 하나도 없을 때 쓸 수 있는 방법. 대다수의 주택들이 실내 문은 외여닫이문을 쓰고 있고, 그 크기도 거의 비슷하다는 점을 감안하여 크기를 800 ~ 900 mm로 잡는다. 이것을 기준으로 하여 실의 크기를 어림 짐작할 수 있을 것이다. 보통 기성품의 실내문은 840 mm 문틀의 두께는 30 mm 이므로 참고하자. 화장실의 문은 보통 740 mm 이다

 

면적 계산법(㎡와 평)

 

각종 면적을 나타내는 단위로 우리는 '㎡(제곱미터)'와 '평'을 쓰고 있으며, ㎡는 건축 용어로 '헤베'라 읽는다. 이들 각각의 수치계산에 대해 알아보자. 1km의 1/1000 이 1m이며, 사방 1m의 면적을 ㎡라 한다. 1평은 약 3.3㎡로 본래 한 사람이 편히 눕거나 앉아서 책을 볼만한 면적을 말한다. 주택이나 소규모 상가의 경우는 대체로 평 단위로 계산하여 거래가 이루어지기 마련이다. 헤배(㎡)를 평으로 바꾸는 쉬운 계산법은 해당 면적을 3으로 나누는 것이며 근사치를 얻을 수 있다. 보다 정확한 계산을 원한다면

해당 면적에 3을 곱한 뒤 10으로 나누면 된다. 예컨대 100㎡의 면적인 경우 3을 곱하여 300으로 계산한 뒤 10으로 나누면

30평으로 계산되는 것이다. (카페내 우측에 평형계산기가 있으므로 이용하시면 되겠습니다.)

  

창호 표시 기호가 실제와 다를때

 

하나의 집을 짓기 위해서는 구상 단계에서부터 실제 시공에 필요한 실시설계도면을 작성하는 단계까지 그려지는 도면이 무수히 많다. 때문에 번번히 각 실의 다양한 창호와 벽체를 원칙대로 표현하는게 번거로우므로 실체 설계자들은 창호나 벽체를 약식으로 표현하고 있다. 따라서 잡지나 각종 팜플릿에서 보게 되는 도면 또한 약식으로 제도된 것들이 많다는 사실이다. 이러한 이유로 창호의 종류를 일일이 알아보기 어려운 도면을 만나게 되는 것이다.

 

 

 

 

 

 

              토지사랑 http://cafe.daum.net/tozisarang/


        추천하기  추천부탁드립니다 .

       


다음검색
현재 게시글 추가 기능 열기

댓글

댓글 리스트
  • 작성자이기완 | 작성시간 19.01.15 정보감사합니다
댓글 전체보기
맨위로

카페 검색

카페 검색어 입력폼